Реф. Номер: SOF-119646
Местоположение: Кръстова вада / София карта
Тип на сграда/комплекс: Жилищен
Клас на сградата/комплекса: Луксозен
Площи на жилищата: 112.19 м2
Типове имоти в сградата/комплекса: Тристайни апартаменти
Реф. Номер: SOF-119646
Местоположение: Кръстова вада / София
Тип на сграда/комплекс: Жилищен
Клас на сградата/комплекса: Луксозен
Площи на жилищата: 112.19 м2
Типове имоти в сградата/комплекса: Тристайни апартаменти
Без комисиона!
С АКТ 16.
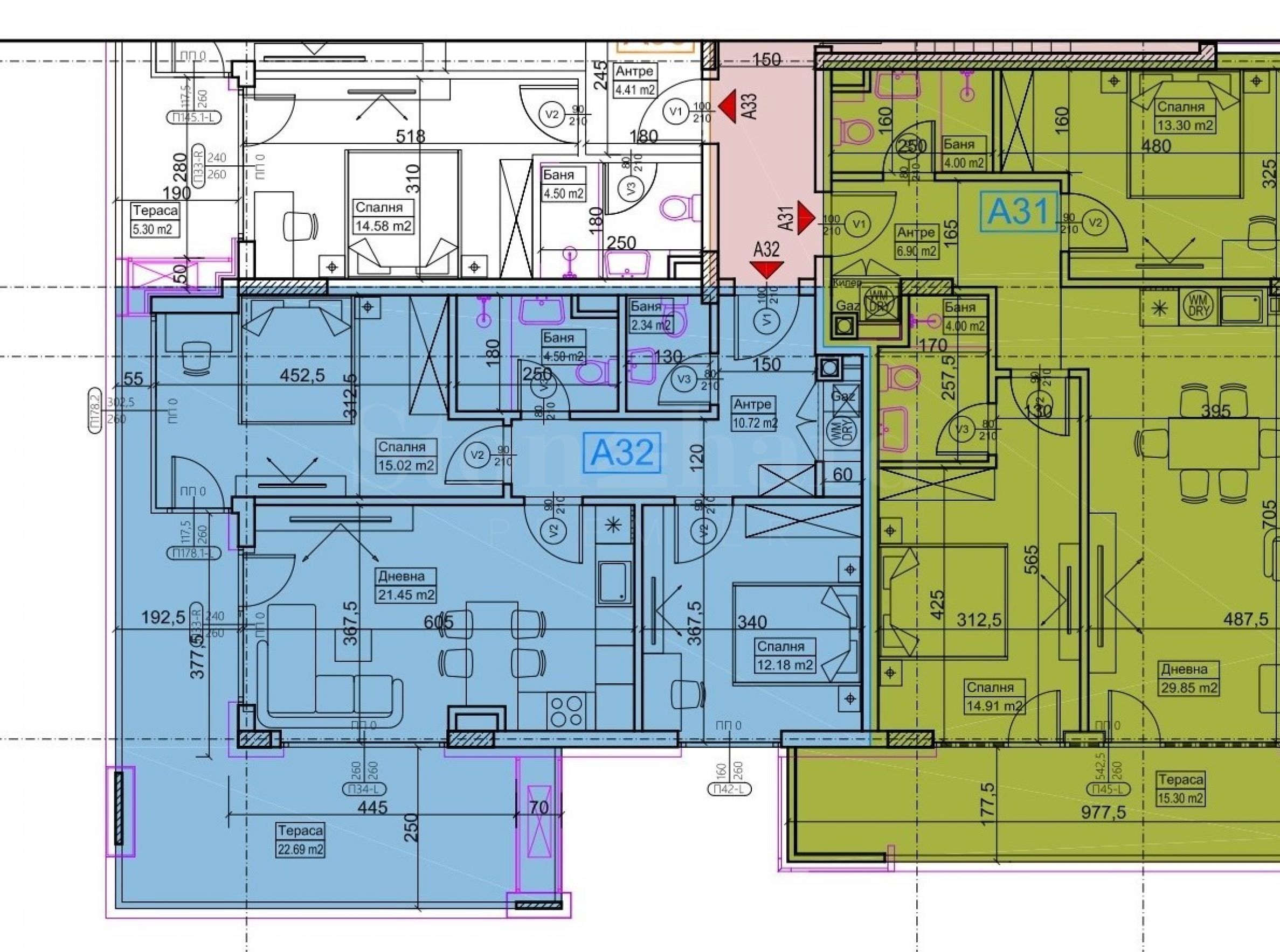
Представяме за продажба просторен тристаен апартамент с обща площ 112.19 кв.м, в модерен нов комплекс на отлична локация в столицата, в кв. "Кръстова вада". Комплексът предоставя уют, комфорт и качествена среда за живот. Сградата ще бъде завършена с изцяло окачена фасада от LAMINAM, алуминиева дограма SCHUCO, асансьори SCHINDLER, с луксозни общи части, богато озеленен вътрешен двор, денонощна охрана, видеонаблюдение и контрол на достъпа.
Комфортният имот се намира на 3-ти етаж от 9.
На чиста площ от 99.76 кв.м са разпределени:
антре, килер;
баня с тоалетна, отделна тоалетна;
спалня-1 - 12.18 кв.м;
спалня-2 - 15.02 кв.м;
просторна дневна с кухня и трапезария - 21.45 кв.м;
голяма тераса към дневната и с излаз от спалня-2 - 22.69 кв.м. Възможно е закупуването на подземни гаражи на цена от 40 000 Евро без ДДС.
Локация
Намира се в полите на Витоша, с гледка към планината и към града. Съчетавайки отлична локация в район с всички градски удобства, съвременни архитектура и дизайн, изпълнение с качествени материали, нови технологии и добро планиране, правейки го перфектния дом за съвременния човек. Комбинацията от инвеститор и архитект води до най-високо ниво на дизайн и реализация на проекта.
В близост до планината, на самия булевард "Черни връх", с много добра комуникация до основни точки в града и в район, богат на активности и осигуряващ необходимите нужди - това са критериите, които определят местоположението на този комплекс, като ключово и благоприятно. Изключително атрактивна локация в кв. "Кръстова вада", непосредствено до парк "Лозенец", в близост до мол "Парадайс", супермаркет "Фантастико", бензиностанция "ЕКО" и бъдеща метростанция.
Възможна покупка с 10% самоучастие!
Посочената цена е без ДДС.
Степен на завършеност - БДС:
• Алуминиева дограма Schuco AWS 70 HI, с прекъснат термомост и прахово боядисана в цвят, стъклопакети - три стъкла: 42 мм – 6 мм външно четирисезонно стъкло /14 мм Argon 90%/, междинно 4 мм стъкло /14 мм Argon 90%/, вътрешно 6 мм стъкло. Битумна хидроизолационно и пароизолационна лента с алуминиево фолио по периметъра на дограмата.
• Подови настилки - циментова замазка в спални, дневни, бани, санитарни възли, коридор, антре, килер - тип плаваща армирана замазка върху топлоизолационен и звукоизолационен слой от каменна подова вата 4 см.
• Тавани - машинна гипсова мазилка по БДС.
• Балкони, лоджии и тераси – настилка от студоустойчив гранитогрес с монтиран парапет според проект - изцяло завършени.
• Врати - входна блиндирана с включен обков, тристранно заключване, касова брава, секретен патрон, бронировка, обхватна каса, шпионка и дръжка неръждавейка с покритие HPL – дървесен ефект.
• Газова инсталация за двуконтурни кондензационни котли с индивидуални газомерни табла. Oтопление на газ и изградена инсталация за климатици със скрит монтаж.
• ОВК, Ел. и ВиК инсталации.
• Oкачена вентилируема фасада от Laminam и HPL плоскости.
Общите части - изцяло завършени:
• Стълбища и площадки – под - циментова замазка и настилка от гранитогрес, метални парапет и ръкохватка, стени – боядисани с латекс върху гипсова шпакловка, тавани – боядисани с латекс върху гипсова шпакловка, с дизайнерско осветление по проект.
• Фоайета и коридори – под - циментова замазка и настилка от гранитогрес, стени - ламперия и облицовки според интериорен проект, окачени тавани с гипсокартон, боядисани с латекс върху гипсова шпакловка, с дизайнерско осветление по проект.
• Луксозни асансьори Schindler за 8 души.
За комплекса
Комплексът е един нов прочит на идеята на сграда с модерна и иновативна фасада, съчетана с апартаменти с правилни разпределения и оптимизирани общи части.
Концепцията за динамиката в градската среда е търсена в обемно-пространствено и фасадно отношение. Проектът представлява композиция от 9-, 8-, 6- и 4-етажни обеми в обща стъпаловидна структура, слизаща на изток към бъдещия парк "Лозенец". Допълнителни акценти в композицията са обемите на пентхаусите като своеобразни кутии, изпълнени с HPL плоскости FUNDERMAX орех, в които са поместени луксозни апартаменти с по-голяма светла етажна височина (3,30 м).
Комплексът включва 119 апартамента (двустайни, тристайни, четиристайни, многостайни, мезонети и пентхауси), 3 магазина, 114 гаража и 36 паркоместа.
Състои се от 4 входа: Вход А - 9 етажа, Вход Б - 8 етажа, Вход В - 6 етажа и Вход Г - 4 етажа, сутеренът е на две нива, като ниво -2 е само при вход Г.
Търсената игра в пластиката на изпъкващи и потъващи обеми от стъкло в общата фасада е съчетана с мотив от вертикални зелени стени, естетически криещи климатични тела. Всички тераси, включително и тези на последния етаж, са решени като покрити с оглед на ослънчаването. Настилката на терасите е тип двоен под от плочи от гранитогрес. Ажурните парапети са изпълнени в два варианта – стъклени триплекс или с метална рамка с мрежа expanded metal в цвят черно по архитектурен детайл, следващи композиционната идея. Допълнителната композиция от фасадното линейно LED осветление е целенасочено търсена, за да подчертае основната идея и през нощта. Идеята на динамичната композиция е продължена в проекта за озеленяване на основния двор на комплекса в комбинация с габиони, парково обзавеждане и осветление и водна площ.
Свържете се с нас за професионална консултация относно интересуващия Ви тип имот!
Местоположение на картата
Без комисиона!
С АКТ 16.
Представяме за продажба просторен тристаен апартамент с обща площ 112.19 кв.м, в модерен нов комплекс на отлична локация в столицата, в кв. "Кръстова вада". Комплексът предоставя уют, комфорт и качествена среда за живот. Сградата ще бъде завършена с изцяло окачена фасада от LAMINAM, алуминиева дограма SCHUCO, асансьори SCHINDLER, с луксозни общи части, богато озеленен вътрешен двор, денонощна охрана, видеонаблюдение и контрол на достъпа.
Комфортният имот се намира на 3-ти етаж от 9.
На чиста площ от 99.76 кв.м са разпределени:
антре, килер;
баня с тоалетна, отделна тоалетна;
спалня-1 - 12.18 кв.м;
спалня-2 - 15.02 кв.м;
просторна дневна с кухня и трапезария - 21.45 кв.м;
голяма тераса към дневната и с излаз от спалня-2 - 22.69 кв.м. Възможно е закупуването на подземни гаражи на цена от 40 000 Евро без ДДС.
Локация
Намира се в полите на Витоша, с гледка към планината и към града. Съчетавайки отлична локация в район с всички градски удобства, съвременни архитектура и дизайн, изпълнение с качествени материали, нови технологии и добро планиране, правейки го перфектния дом за съвременния човек. Комбинацията от инвеститор и архитект води до най-високо ниво на дизайн и реализация на проекта.
В близост до планината, на самия булевард "Черни връх", с много добра комуникация до основни точки в града и в район, богат на активности и осигуряващ необходимите нужди - това са критериите, които определят местоположението на този комплекс, като ключово и благоприятно. Изключително атрактивна локация в кв. "Кръстова вада", непосредствено до парк "Лозенец", в близост до мол "Парадайс", супермаркет "Фантастико", бензиностанция "ЕКО" и бъдеща метростанция.
Възможна покупка с 10% самоучастие!
Посочената цена е без ДДС.
Степен на завършеност - БДС:
• Алуминиева дограма Schuco AWS 70 HI, с прекъснат термомост и прахово боядисана в цвят, стъклопакети - три стъкла: 42 мм – 6 мм външно четирисезонно стъкло /14 мм Argon 90%/, междинно 4 мм стъкло /14 мм Argon 90%/, вътрешно 6 мм стъкло. Битумна хидроизолационно и пароизолационна лента с алуминиево фолио по периметъра на дограмата.
• Подови настилки - циментова замазка в спални, дневни, бани, санитарни възли, коридор, антре, килер - тип плаваща армирана замазка върху топлоизолационен и звукоизолационен слой от каменна подова вата 4 см.
• Тавани - машинна гипсова мазилка по БДС.
• Балкони, лоджии и тераси – настилка от студоустойчив гранитогрес с монтиран парапет според проект - изцяло завършени.
• Врати - входна блиндирана с включен обков, тристранно заключване, касова брава, секретен патрон, бронировка, обхватна каса, шпионка и дръжка неръждавейка с покритие HPL – дървесен ефект.
• Газова инсталация за двуконтурни кондензационни котли с индивидуални газомерни табла. Oтопление на газ и изградена инсталация за климатици със скрит монтаж.
• ОВК, Ел. и ВиК инсталации.
• Oкачена вентилируема фасада от Laminam и HPL плоскости.
Общите части - изцяло завършени:
• Стълбища и площадки – под - циментова замазка и настилка от гранитогрес, метални парапет и ръкохватка, стени – боядисани с латекс върху гипсова шпакловка, тавани – боядисани с латекс върху гипсова шпакловка, с дизайнерско осветление по проект.
• Фоайета и коридори – под - циментова замазка и настилка от гранитогрес, стени - ламперия и облицовки според интериорен проект, окачени тавани с гипсокартон, боядисани с латекс върху гипсова шпакловка, с дизайнерско осветление по проект.
• Луксозни асансьори Schindler за 8 души.
За комплекса
Комплексът е един нов прочит на идеята на сграда с модерна и иновативна фасада, съчетана с апартаменти с правилни разпределения и оптимизирани общи части.
Концепцията за динамиката в градската среда е търсена в обемно-пространствено и фасадно отношение. Проектът представлява композиция от 9-, 8-, 6- и 4-етажни обеми в обща стъпаловидна структура, слизаща на изток към бъдещия парк "Лозенец". Допълнителни акценти в композицията са обемите на пентхаусите като своеобразни кутии, изпълнени с HPL плоскости FUNDERMAX орех, в които са поместени луксозни апартаменти с по-голяма светла етажна височина (3,30 м).
Комплексът включва 119 апартамента (двустайни, тристайни, четиристайни, многостайни, мезонети и пентхауси), 3 магазина, 114 гаража и 36 паркоместа.
Състои се от 4 входа: Вход А - 9 етажа, Вход Б - 8 етажа, Вход В - 6 етажа и Вход Г - 4 етажа, сутеренът е на две нива, като ниво -2 е само при вход Г.
Търсената игра в пластиката на изпъкващи и потъващи обеми от стъкло в общата фасада е съчетана с мотив от вертикални зелени стени, естетически криещи климатични тела. Всички тераси, включително и тези на последния етаж, са решени като покрити с оглед на ослънчаването. Настилката на терасите е тип двоен под от плочи от гранитогрес. Ажурните парапети са изпълнени в два варианта – стъклени триплекс или с метална рамка с мрежа expanded metal в цвят черно по архитектурен детайл, следващи композиционната идея. Допълнителната композиция от фасадното линейно LED осветление е целенасочено търсена, за да подчертае основната идея и през нощта. Идеята на динамичната композиция е продължена в проекта за озеленяване на основния двор на комплекса в комбинация с габиони, парково обзавеждане и осветление и водна площ.
Свържете се с нас за професионална консултация относно интересуващия Ви тип имот!
Без комисиона!
С АКТ 16.
Представяме за продажба просторен тристаен апартамент с обща площ 112.19 кв.м, в модерен нов комплекс на отлична локация в столицата, в кв. "Кръстова вада". Комплексът предоставя уют, комфорт и качествена среда за живот. Сградата ще бъде завършена с изцяло окачена фасада от LAMINAM, алуминиева дограма SCHUCO, асансьори SCHINDLER, с луксозни общи части, богато озеленен вътрешен двор, денонощна охрана, видеонаблюдение и контрол на достъпа.
Комфортният имот се намира на 3-ти етаж от 9.
На чиста площ от 99.76 кв.м са разпределени:
антре, килер;
баня с тоалетна, отделна тоалетна;
спалня-1 - 12.18 кв.м;
спалня-2 - 15.02 кв.м;
просторна дневна с кухня и трапезария - 21.45 кв.м;
голяма тераса към дневната и с излаз от спалня-2 - 22.69 кв.м. Възможно е закупуването на подземни гаражи на цена от 40 000 Евро без ДДС.
Локация
Намира се в полите на Витоша, с гледка към планината и към града. Съчетавайки отлична локация в район с всички градски удобства, съвременни архитектура и дизайн, изпълнение с качествени материали, нови технологии и добро планиране, правейки го перфектния дом за съвременния човек. Комбинацията от инвеститор и архитект води до най-високо ниво на дизайн и реализация на проекта.
В близост до планината, на самия булевард "Черни връх", с много добра комуникация до основни точки в града и в район, богат на активности и осигуряващ необходимите нужди - това са критериите, които определят местоположението на този комплекс, като ключово и благоприятно. Изключително атрактивна локация в кв. "Кръстова вада", непосредствено до парк "Лозенец", в близост до мол "Парадайс", супермаркет "Фантастико", бензиностанция "ЕКО" и бъдеща метростанция.
Възможна покупка с 10% самоучастие!
Посочената цена е без ДДС.
Степен на завършеност - БДС:
• Алуминиева дограма Schuco AWS 70 HI, с прекъснат термомост и прахово боядисана в цвят, стъклопакети - три стъкла: 42 мм – 6 мм външно четирисезонно стъкло /14 мм Argon 90%/, междинно 4 мм стъкло /14 мм Argon 90%/, вътрешно 6 мм стъкло. Битумна хидроизолационно и пароизолационна лента с алуминиево фолио по периметъра на дограмата.
• Подови настилки - циментова замазка в спални, дневни, бани, санитарни възли, коридор, антре, килер - тип плаваща армирана замазка върху топлоизолационен и звукоизолационен слой от каменна подова вата 4 см.
• Тавани - машинна гипсова мазилка по БДС.
• Балкони, лоджии и тераси – настилка от студоустойчив гранитогрес с монтиран парапет според проект - изцяло завършени.
• Врати - входна блиндирана с включен обков, тристранно заключване, касова брава, секретен патрон, бронировка, обхватна каса, шпионка и дръжка неръждавейка с покритие HPL – дървесен ефект.
• Газова инсталация за двуконтурни кондензационни котли с индивидуални газомерни табла. Oтопление на газ и изградена инсталация за климатици със скрит монтаж.
• ОВК, Ел. и ВиК инсталации.
• Oкачена вентилируема фасада от Laminam и HPL плоскости.
Общите части - изцяло завършени:
• Стълбища и площадки – под - циментова замазка и настилка от гранитогрес, метални парапет и ръкохватка, стени – боядисани с латекс върху гипсова шпакловка, тавани – боядисани с латекс върху гипсова шпакловка, с дизайнерско осветление по проект.
• Фоайета и коридори – под - циментова замазка и настилка от гранитогрес, стени - ламперия и облицовки според интериорен проект, окачени тавани с гипсокартон, боядисани с латекс върху гипсова шпакловка, с дизайнерско осветление по проект.
• Луксозни асансьори Schindler за 8 души.
За комплекса
Комплексът е един нов прочит на идеята на сграда с модерна и иновативна фасада, съчетана с апартаменти с правилни разпределения и оптимизирани общи части.
Концепцията за динамиката в градската среда е търсена в обемно-пространствено и фасадно отношение. Проектът представлява композиция от 9-, 8-, 6- и 4-етажни обеми в обща стъпаловидна структура, слизаща на изток към бъдещия парк "Лозенец". Допълнителни акценти в композицията са обемите на пентхаусите като своеобразни кутии, изпълнени с HPL плоскости FUNDERMAX орех, в които са поместени луксозни апартаменти с по-голяма светла етажна височина (3,30 м).
Комплексът включва 119 апартамента (двустайни, тристайни, четиристайни, многостайни, мезонети и пентхауси), 3 магазина, 114 гаража и 36 паркоместа.
Състои се от 4 входа: Вход А - 9 етажа, Вход Б - 8 етажа, Вход В - 6 етажа и Вход Г - 4 етажа, сутеренът е на две нива, като ниво -2 е само при вход Г.
Търсената игра в пластиката на изпъкващи и потъващи обеми от стъкло в общата фасада е съчетана с мотив от вертикални зелени стени, естетически криещи климатични тела. Всички тераси, включително и тези на последния етаж, са решени като покрити с оглед на ослънчаването. Настилката на терасите е тип двоен под от плочи от гранитогрес. Ажурните парапети са изпълнени в два варианта – стъклени триплекс или с метална рамка с мрежа expanded metal в цвят черно по архитектурен детайл, следващи композиционната идея. Допълнителната композиция от фасадното линейно LED осветление е целенасочено търсена, за да подчертае основната идея и през нощта. Идеята на динамичната композиция е продължена в проекта за озеленяване на основния двор на комплекса в комбинация с габиони, парково обзавеждане и осветление и водна площ.
Свържете се с нас за професионална консултация относно интересуващия Ви тип имот!
Апартаменти в Етап 1 на модерен комплекс близо до "Симеоновско шосе"
Малинова долина / София / София / България карта
Завършване: Март, 2028 г.
Цени на имотите: 114 096 - 247 180 €
Цени на м²: 1 828 - 2 296 €/м2
Апартаменти до ул. "Проф. Крикор Азарян" в кв. "Малинова долина"
Малинова долина / София / София / България карта
Завършване: Октомври, 2026 г.
Цени на имотите: 187 575 - 396 363 €
Цени на м²: 2 330 - 3 881 €/м2
ПРОДАЖБА
ПРОЕКТ
Просторен тристаен апартамент в бутиков комплекс в кв. "Бояна"
Бояна / София / София / България карта
Клас на сградата/комплекса: Висок стандарт
Площ: 135.73 м2
Цена: 298 606 € /// 2 200 €/м2
Изберете тази опция и ще Ви уведомяваме по имейла при настъпили промени по статуса на офертата, например:
• Промяна на цената;
• Имотът влезе в промоционално предложение;
• Имотът бъде резервран или продаден;
• Други новости, свързани с имота.
• Имотът бъде свален от продажба;
Може да се отпишете от нотификациите лесно, когато пожелаете.• Промени по условията на офертата;
• Промяна в сумата на инвестицията;
• Предметът на инвестицията е изцяло реализиран;
• Валидността на офертата е изтекла.
Може лесно да се отпишете, ако в бъдеще решите, че повече не желаете да следите тази оферта.



...В качеството си на доказан спецалист Stonehard PREMIER работи по пазарното позициониране и продажбите на множество проекти ново строителство, чиято реализация ни е поверена от водещи предприемачески компании в България и чужбина...