Art.-Nr. Nummer: STO-135374 / 4812
Standort: Malinova Dolina / Sofia Karte
Gebäude-/Komplextyp: Wohnen
Wohngebiete: 49.02 m 2
Arten von Immobilien im Gebäude/Komplex: 1-Raum-Apartments
Art.-Nr. Nummer: STO-135374
Standort: Malinova Dolina / Sofia
Gebäude-/Komplextyp: Жилищен
Gebäude-/Komplexklasse:
Wohngebiete: 49.02 m 2
Arten von Immobilien im Gebäude/Komplex: 1-Raum-Apartments
Der Komplex umfasst drei freistehende Wohngebäude mit Tiefgarage, gemütlichen Gemeinschaftsräumen und einem vollständig bewohnbaren oberirdischen Teil mit drei Stockwerken und einem Dachgeschoss.
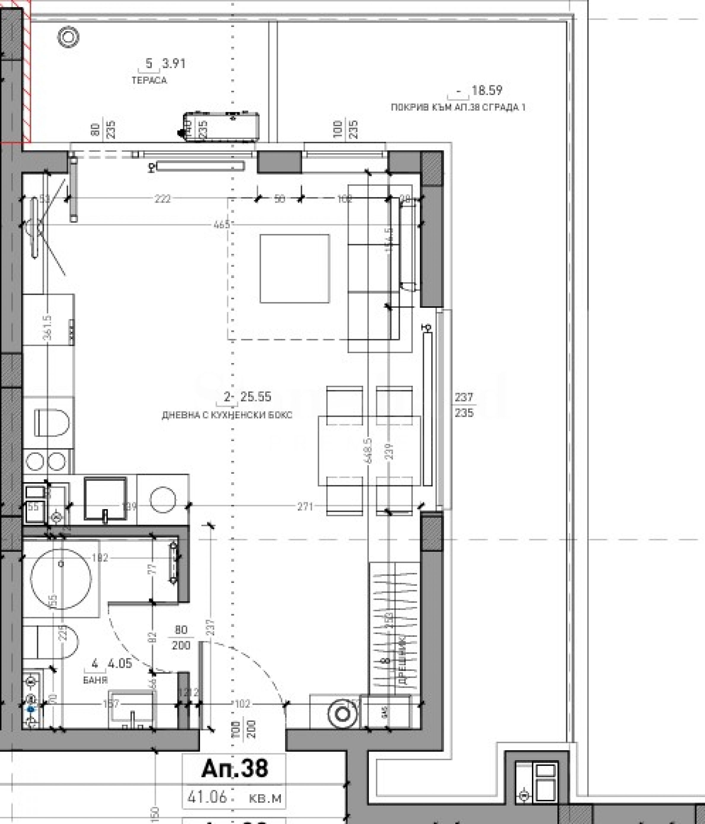
Die Wohnung befindet sich im Gebäude 1 im 4. Stock und hat eine Gesamtfläche von 49,02 m², davon 41,06 m² Nettofläche. Die Wohnung besteht aus einem Eingangsbereich, Bad/WC, Wohnzimmer mit Küche und Terrasse. Das Anwesen verfügt über eine angrenzende Dachfläche von 18,59 m².
Es wird laut BDS im fertiggestellten Zustand verkauft.
*Der Angebotspreis gilt für Zahlungsplan 1 (50 %/30 %/10 %/10 %).
Funktionen der Stufe 1:
• Phase 1 befindet sich im Bau und soll im März 2028 abgeschlossen sein.
• 132 funktionale Wohnungen – Einzimmer-, Zweizimmer- und Dreizimmerwohnungen;
• 134 Tiefgaragenplätze und Garagen;
• Grünflächen und Erholungsgebiete, Spielplätze, sichere und angenehme Familienumgebung.
Phase 2 des Komplexes, bestehend aus drei weiteren Gebäuden, hat ebenfalls begonnen. Die beiden Phasen werden ein modernes Wohnensemble im Herzen von „Malinova Dolina“ bilden.
Hochwertige Konstruktion:
• Stahlbetonkonstruktion;
• Dächer mit XPS-Wärmedämmung;
• PVC-Fenster, Dreifachverglasung mit „Vier-Jahreszeiten“-Glas;
• Heizung mit Strom über Klimaanlagen und Gas;
• Lichte Höhe der Wohnräume – 2,60 m;
• Mauerwerk 25 cm.
Lage und Vorteile:
• Ruhige und grüne Gegend am Fuße des Witoschagebirges;
• Unmittelbare Nähe zum Simeonovsko Shose Blvd. und der Ringstraße;
• In der Nähe von NSA, Studentski Grad, Supermärkten, Sportzentren und Restaurants;
• Entwicklung von Infrastruktur und Investitionspotenzial.
Flexible Zahlungspläne – Auswahl je nach Budget und Bauphase:
Schema Nr. 1:
• 50 % bei Vorvertrag;
• 30 % für Gesetz 14;
• 10 % für Gesetz 15;
• 10 % für Gesetz 16.
Schema Nr. 2:
• 30 % bei Vorvertrag;
• 30 % für Gesetz 14;
• 30 % für Gesetz 15;
• 10 % für Gesetz 16.
Schema Nr. 3:
• 30 % bei Vorvertrag;
• 70 % bei Akt 16.
Warum dieses Projekt wählen:
• Moderne Architektur und komfortable Wohngrundrisse;
• Sichere und grüne Wohnumgebung;
• Hervorragende Investition in einem sich schnell entwickelnden Viertel von Sofia;
• Balance zwischen städtischen Annehmlichkeiten und Nähe zur Natur.
Wir freuen uns auf Ihre Anfrage.
Wenn Sie eine Besichtigung einer Immobilie Ihrer Wahl oder einen Besuch in einem unserer Büros vereinbaren möchten, kontaktieren Sie uns bitte. Um einen Termin für ein Treffen oder eine Besichtigung zu vereinbaren, rufen Sie die in der Anzeige angegebene Telefonnummer an oder senden Sie eine Anfrage per E-Mail. Unser Berater berät Sie gerne bei allen notwendigen Details und vereinbart einen passenden Termin für Sie.
Sie suchen die passende Immobilie für sich?
Zögern Sie nicht, uns zu kontaktieren und uns Ihre Wünsche und Bedürfnisse mitzuteilen. Unser Team führt eine gründliche Marktforschung durch, um Ihnen Immobilien anzubieten, die genau Ihren Kriterien entsprechen. Wir verfügen über ein außergewöhnliches Portfolio an hochwertigen und exklusiven Immobilien, die nur unseren Kunden zur Verfügung stehen. Um als Erster Informationen darüber zu erhalten, kontaktieren Sie uns.
Zusätzliche Dienstleistungen
Als geschätzter Kunde unseres Unternehmens genießen Sie die Vorteile unseres erfahrenen Rechtsanwaltsteams völlig kostenlos. Darüber hinaus bieten wir umfassende Lösungen, darunter Gebäudeversicherungen, kostenlose Finanzberatung sowie günstige Finanzierungskonditionen. Unsere Dienstleistungen umfassen auch den Wiederverkauf, die Vermietung und die Hausverwaltung. Hochwertige Renovierungen und Möblierungen führen wir durch spezialisierte Unternehmen unserer Unternehmensgruppe durch, die unsere langjährigen professionellen Partner sind.
Besichtigungen
Wir können eine Besichtigung der Immobilie zu einer für Sie passenden Zeit vereinbaren. Bitte kontaktieren Sie den für dieses Angebot zuständigen Makler und teilen Sie ihm die von Ihnen gewünschte Uhrzeit mit.
Reservierung der Immobilie
Gegen eine nicht erstattete Anzahlung in Höhe von 2.000 Euro wird die Immobilie reserviert. Weitere Besichtigungen mit anderen Käufern finden nicht statt und Makler beginnt mit der Vorbereitung der Dokumente für den Abschluss des endgültigen Vertrags für Eigentumsübertragung. Bitte kontaktieren Sie den zuständigen Makler für mehr Information über den Kauf einer Immobilie und Zahlungsarten.
Zusatzleistungen und Kundendienst
Wir sind ein seriöses Unternehmen und werden nicht nur während des Kaufs, sondern auch danach bei Ihnen sein und Ihnen auf Ihren Wunsch zusätzliche Dienstleistungen anbieten, um die neu gekaufte Immobilie vollständig und nahtlos zu nutzen. Die Dienstleistungen, die wir anbieten können, umfassen die Erlangung einer Hypothekengenehmigung, eine Versicherung für bewegliche und unbewegliche Sachen, eine Lebensversicherung, eine Kranken- und Autoversicherung, Bau- und Reparaturaktivitäten, Möbel, Rechts- und Buchhaltungsdienstleistungen usw.
Bei uns können Sie nicht nur eine Immobilie mieten, sondern auch eine Reihe von Zusatzleistungen in Anspruch nehmen. Wir können Versicherungen für bewegliches und unbewegliches Vermögen, Lebensversicherungen, Kranken- und Kfz-Versicherungen, Bau- und Reparaturarbeiten, Möbel, Rechts- und Buchhaltungsdienstleistungen usw. anbieten.
Standort auf der Karte
Der Komplex umfasst drei freistehende Wohngebäude mit Tiefgarage, gemütlichen Gemeinschaftsräumen und einem vollständig bewohnbaren oberirdischen Teil mit drei Stockwerken und einem Dachgeschoss.
Die Wohnung befindet sich im Gebäude 1 im 4. Stock und hat eine Gesamtfläche von 49,02 m², davon 41,06 m² Nettofläche. Die Wohnung besteht aus einem Eingangsbereich, Bad/WC, Wohnzimmer mit Küche und Terrasse. Das Anwesen verfügt über eine angrenzende Dachfläche von 18,59 m².
Es wird laut BDS im fertiggestellten Zustand verkauft.
*Der Angebotspreis gilt für Zahlungsplan 1 (50 %/30 %/10 %/10 %).
Funktionen der Stufe 1:
• Phase 1 befindet sich im Bau und soll im März 2028 abgeschlossen sein.
• 132 funktionale Wohnungen – Einzimmer-, Zweizimmer- und Dreizimmerwohnungen;
• 134 Tiefgaragenplätze und Garagen;
• Grünflächen und Erholungsgebiete, Spielplätze, sichere und angenehme Familienumgebung.
Phase 2 des Komplexes, bestehend aus drei weiteren Gebäuden, hat ebenfalls begonnen. Die beiden Phasen werden ein modernes Wohnensemble im Herzen von „Malinova Dolina“ bilden.
Hochwertige Konstruktion:
• Stahlbetonkonstruktion;
• Dächer mit XPS-Wärmedämmung;
• PVC-Fenster, Dreifachverglasung mit „Vier-Jahreszeiten“-Glas;
• Heizung mit Strom über Klimaanlagen und Gas;
• Lichte Höhe der Wohnräume – 2,60 m;
• Mauerwerk 25 cm.
Lage und Vorteile:
• Ruhige und grüne Gegend am Fuße des Witoschagebirges;
• Unmittelbare Nähe zum Simeonovsko Shose Blvd. und der Ringstraße;
• In der Nähe von NSA, Studentski Grad, Supermärkten, Sportzentren und Restaurants;
• Entwicklung von Infrastruktur und Investitionspotenzial.
Flexible Zahlungspläne – Auswahl je nach Budget und Bauphase:
Schema Nr. 1:
• 50 % bei Vorvertrag;
• 30 % für Gesetz 14;
• 10 % für Gesetz 15;
• 10 % für Gesetz 16.
Schema Nr. 2:
• 30 % bei Vorvertrag;
• 30 % für Gesetz 14;
• 30 % für Gesetz 15;
• 10 % für Gesetz 16.
Schema Nr. 3:
• 30 % bei Vorvertrag;
• 70 % bei Akt 16.
Warum dieses Projekt wählen:
• Moderne Architektur und komfortable Wohngrundrisse;
• Sichere und grüne Wohnumgebung;
• Hervorragende Investition in einem sich schnell entwickelnden Viertel von Sofia;
• Balance zwischen städtischen Annehmlichkeiten und Nähe zur Natur.
Wir freuen uns auf Ihre Anfrage.
Wenn Sie eine Besichtigung einer Immobilie Ihrer Wahl oder einen Besuch in einem unserer Büros vereinbaren möchten, kontaktieren Sie uns bitte. Um einen Termin für ein Treffen oder eine Besichtigung zu vereinbaren, rufen Sie die in der Anzeige angegebene Telefonnummer an oder senden Sie eine Anfrage per E-Mail. Unser Berater berät Sie gerne bei allen notwendigen Details und vereinbart einen passenden Termin für Sie.
Sie suchen die passende Immobilie für sich?
Zögern Sie nicht, uns zu kontaktieren und uns Ihre Wünsche und Bedürfnisse mitzuteilen. Unser Team führt eine gründliche Marktforschung durch, um Ihnen Immobilien anzubieten, die genau Ihren Kriterien entsprechen. Wir verfügen über ein außergewöhnliches Portfolio an hochwertigen und exklusiven Immobilien, die nur unseren Kunden zur Verfügung stehen. Um als Erster Informationen darüber zu erhalten, kontaktieren Sie uns.
Zusätzliche Dienstleistungen
Als geschätzter Kunde unseres Unternehmens genießen Sie die Vorteile unseres erfahrenen Rechtsanwaltsteams völlig kostenlos. Darüber hinaus bieten wir umfassende Lösungen, darunter Gebäudeversicherungen, kostenlose Finanzberatung sowie günstige Finanzierungskonditionen. Unsere Dienstleistungen umfassen auch den Wiederverkauf, die Vermietung und die Hausverwaltung. Hochwertige Renovierungen und Möblierungen führen wir durch spezialisierte Unternehmen unserer Unternehmensgruppe durch, die unsere langjährigen professionellen Partner sind.
Besichtigungen
Wir können eine Besichtigung der Immobilie zu einer für Sie passenden Zeit vereinbaren. Bitte kontaktieren Sie den für dieses Angebot zuständigen Makler und teilen Sie ihm die von Ihnen gewünschte Uhrzeit mit.
Reservierung der Immobilie
Gegen eine nicht erstattete Anzahlung in Höhe von 2.000 Euro wird die Immobilie reserviert. Weitere Besichtigungen mit anderen Käufern finden nicht statt und Makler beginnt mit der Vorbereitung der Dokumente für den Abschluss des endgültigen Vertrags für Eigentumsübertragung. Bitte kontaktieren Sie den zuständigen Makler für mehr Information über den Kauf einer Immobilie und Zahlungsarten.
Zusatzleistungen und Kundendienst
Wir sind ein seriöses Unternehmen und werden nicht nur während des Kaufs, sondern auch danach bei Ihnen sein und Ihnen auf Ihren Wunsch zusätzliche Dienstleistungen anbieten, um die neu gekaufte Immobilie vollständig und nahtlos zu nutzen. Die Dienstleistungen, die wir anbieten können, umfassen die Erlangung einer Hypothekengenehmigung, eine Versicherung für bewegliche und unbewegliche Sachen, eine Lebensversicherung, eine Kranken- und Autoversicherung, Bau- und Reparaturaktivitäten, Möbel, Rechts- und Buchhaltungsdienstleistungen usw.
Bei uns können Sie nicht nur eine Immobilie mieten, sondern auch eine Reihe von Zusatzleistungen in Anspruch nehmen. Wir können Versicherungen für bewegliches und unbewegliches Vermögen, Lebensversicherungen, Kranken- und Kfz-Versicherungen, Bau- und Reparaturarbeiten, Möbel, Rechts- und Buchhaltungsdienstleistungen usw. anbieten.
Der Komplex umfasst drei freistehende Wohngebäude mit Tiefgarage, gemütlichen Gemeinschaftsräumen und einem vollständig bewohnbaren oberirdischen Teil mit drei Stockwerken und einem Dachgeschoss.
Die Wohnung befindet sich im Gebäude 1 im 4. Stock und hat eine Gesamtfläche von 49,02 m², davon 41,06 m² Nettofläche. Die Wohnung besteht aus einem Eingangsbereich, Bad/WC, Wohnzimmer mit Küche und Terrasse. Das Anwesen verfügt über eine angrenzende Dachfläche von 18,59 m².
Es wird laut BDS im fertiggestellten Zustand verkauft.
*Der Angebotspreis gilt für Zahlungsplan 1 (50 %/30 %/10 %/10 %).
Funktionen der Stufe 1:
• Phase 1 befindet sich im Bau und soll im März 2028 abgeschlossen sein.
• 132 funktionale Wohnungen – Einzimmer-, Zweizimmer- und Dreizimmerwohnungen;
• 134 Tiefgaragenplätze und Garagen;
• Grünflächen und Erholungsgebiete, Spielplätze, sichere und angenehme Familienumgebung.
Phase 2 des Komplexes, bestehend aus drei weiteren Gebäuden, hat ebenfalls begonnen. Die beiden Phasen werden ein modernes Wohnensemble im Herzen von „Malinova Dolina“ bilden.
Hochwertige Konstruktion:
• Stahlbetonkonstruktion;
• Dächer mit XPS-Wärmedämmung;
• PVC-Fenster, Dreifachverglasung mit „Vier-Jahreszeiten“-Glas;
• Heizung mit Strom über Klimaanlagen und Gas;
• Lichte Höhe der Wohnräume – 2,60 m;
• Mauerwerk 25 cm.
Lage und Vorteile:
• Ruhige und grüne Gegend am Fuße des Witoschagebirges;
• Unmittelbare Nähe zum Simeonovsko Shose Blvd. und der Ringstraße;
• In der Nähe von NSA, Studentski Grad, Supermärkten, Sportzentren und Restaurants;
• Entwicklung von Infrastruktur und Investitionspotenzial.
Flexible Zahlungspläne – Auswahl je nach Budget und Bauphase:
Schema Nr. 1:
• 50 % bei Vorvertrag;
• 30 % für Gesetz 14;
• 10 % für Gesetz 15;
• 10 % für Gesetz 16.
Schema Nr. 2:
• 30 % bei Vorvertrag;
• 30 % für Gesetz 14;
• 30 % für Gesetz 15;
• 10 % für Gesetz 16.
Schema Nr. 3:
• 30 % bei Vorvertrag;
• 70 % bei Akt 16.
Warum dieses Projekt wählen:
• Moderne Architektur und komfortable Wohngrundrisse;
• Sichere und grüne Wohnumgebung;
• Hervorragende Investition in einem sich schnell entwickelnden Viertel von Sofia;
• Balance zwischen städtischen Annehmlichkeiten und Nähe zur Natur.
Wir freuen uns auf Ihre Anfrage.
Wenn Sie eine Besichtigung einer Immobilie Ihrer Wahl oder einen Besuch in einem unserer Büros vereinbaren möchten, kontaktieren Sie uns bitte. Um einen Termin für ein Treffen oder eine Besichtigung zu vereinbaren, rufen Sie die in der Anzeige angegebene Telefonnummer an oder senden Sie eine Anfrage per E-Mail. Unser Berater berät Sie gerne bei allen notwendigen Details und vereinbart einen passenden Termin für Sie.
Sie suchen die passende Immobilie für sich?
Zögern Sie nicht, uns zu kontaktieren und uns Ihre Wünsche und Bedürfnisse mitzuteilen. Unser Team führt eine gründliche Marktforschung durch, um Ihnen Immobilien anzubieten, die genau Ihren Kriterien entsprechen. Wir verfügen über ein außergewöhnliches Portfolio an hochwertigen und exklusiven Immobilien, die nur unseren Kunden zur Verfügung stehen. Um als Erster Informationen darüber zu erhalten, kontaktieren Sie uns.
Zusätzliche Dienstleistungen
Als geschätzter Kunde unseres Unternehmens genießen Sie die Vorteile unseres erfahrenen Rechtsanwaltsteams völlig kostenlos. Darüber hinaus bieten wir umfassende Lösungen, darunter Gebäudeversicherungen, kostenlose Finanzberatung sowie günstige Finanzierungskonditionen. Unsere Dienstleistungen umfassen auch den Wiederverkauf, die Vermietung und die Hausverwaltung. Hochwertige Renovierungen und Möblierungen führen wir durch spezialisierte Unternehmen unserer Unternehmensgruppe durch, die unsere langjährigen professionellen Partner sind.
Besichtigungen
Wir können eine Besichtigung der Immobilie zu einer für Sie passenden Zeit vereinbaren. Bitte kontaktieren Sie den für dieses Angebot zuständigen Makler und teilen Sie ihm die von Ihnen gewünschte Uhrzeit mit.
Reservierung der Immobilie
Gegen eine nicht erstattete Anzahlung in Höhe von 2.000 Euro wird die Immobilie reserviert. Weitere Besichtigungen mit anderen Käufern finden nicht statt und Makler beginnt mit der Vorbereitung der Dokumente für den Abschluss des endgültigen Vertrags für Eigentumsübertragung. Bitte kontaktieren Sie den zuständigen Makler für mehr Information über den Kauf einer Immobilie und Zahlungsarten.
Zusatzleistungen und Kundendienst
Wir sind ein seriöses Unternehmen und werden nicht nur während des Kaufs, sondern auch danach bei Ihnen sein und Ihnen auf Ihren Wunsch zusätzliche Dienstleistungen anbieten, um die neu gekaufte Immobilie vollständig und nahtlos zu nutzen. Die Dienstleistungen, die wir anbieten können, umfassen die Erlangung einer Hypothekengenehmigung, eine Versicherung für bewegliche und unbewegliche Sachen, eine Lebensversicherung, eine Kranken- und Autoversicherung, Bau- und Reparaturaktivitäten, Möbel, Rechts- und Buchhaltungsdienstleistungen usw.
Bei uns können Sie nicht nur eine Immobilie mieten, sondern auch eine Reihe von Zusatzleistungen in Anspruch nehmen. Wir können Versicherungen für bewegliches und unbewegliches Vermögen, Lebensversicherungen, Kranken- und Kfz-Versicherungen, Bau- und Reparaturarbeiten, Möbel, Rechts- und Buchhaltungsdienstleistungen usw. anbieten.
Wohnungen in Phase 1 eines modernen Komplexes in der Nähe von „Simeonovsko Shose“
Malinova Dolina / Sofia / Sofia / Bulgarien Karte
Immobilienpreise: 114 096 - 247 180 €
Preise pro m²: 1 828 - 2 296 €/m 2
RECHTE
VERKAUF
PROJEKT
Ein-Zimmer-Wohnung mit Parkplatz in der OKINAWA Boutique Residence
Malinova Dolina / Sofia / Sofia / Bulgarien Karte
Gebäude-/Komplexklasse: Hoher Standard
Bereich: 55.85 m 2
Preis: 116 354 € /// 2 083 €/m 2
Ein neues Wohnprojekt mit acht Gebäuden und unterschiedlichen Wohnungstypen im Stadtteil „Malinova Dolina“
Malinova Dolina / Sofia / Sofia / Bulgarien Karte
Immobilienpreise: 94 500 - 209 500 €
Preise pro m²: 1 738 - 1 933 €/m 2
Wählen Sie diese Option und wir benachrichtigen Sie per E-Mail, wenn sich der Angebotsstatus ändert, zum Beispiel:
• Preisänderung;
• Die Immobilie hat ein Sonderangebot abgegeben;
• Die Immobilie ist reserviert oder verkauft;
• Weitere Neuigkeiten im Zusammenhang mit der Immobilie.
• Die Immobilie wird aus dem Verkauf genommen;
Sie können Benachrichtigungen jederzeit problemlos abbestellen.• Änderungen der Angebotsbedingungen;
• Änderung der Investitionshöhe;
• Der Investitionsgegenstand wurde vollständig realisiert;
• Das Angebot ist abgelaufen.
Sie können sich ganz einfach abmelden, wenn Sie in Zukunft entscheiden, dass Sie dieses Angebot nicht mehr nutzen möchten.



...Als ausgewiesener Spezialist arbeitet Stonehard PREMIER an der Marktpositionierung und dem Vertrieb zahlreicher Neubauprojekte, deren Umsetzung uns führende Unternehmergesellschaften in Bulgarien und im Ausland anvertraut haben...