Двухкомнатная квартира в новом комплексе рядом с Симеоновским шоссе в Малиновой Долине

на карте

Цена:

114 096 (2 328 €/м 2)

*Цены и наличие свободных площадей в проекте указаны ориентировочно. Для получения актуальной информации о ценах, пожалуйста, свяжитесь с нами!

Ссылка. Число: STO-135374 / 4812

Расположение: Малинова долина / София карта

Тип здания/комплекса: Жилой

Жилые районы: 49.02 м 2

Типы объектов недвижимости в здании/комплексе: Квартиры-студии

Ссылка. Число: STO-135374 / 4812

Расположение: Малинова долина / София

Тип здания/комплекса: Жилой

Класс здания/комплекса:  

Жилые районы: 49.02 м 2

Типы объектов недвижимости в здании/комплексе: Квартиры-студии

Описание проекта
Представляем вашему вниманию двухкомнатную квартиру в современном жилом комплексе в одном из самых перспективных районов Софии – «Малиновой долине». Район динамично развивается, отличается отличной инфраструктурой и быстрым доступом к центральной части города, сочетая в себе удобство, природу и высокий инвестиционный потенциал.

Комплекс включает в себя три отдельно стоящих жилых дома с подземной парковкой, уютными помещениями общего пользования и полностью жилую надземную часть из трех этажей и мансардного уровня.

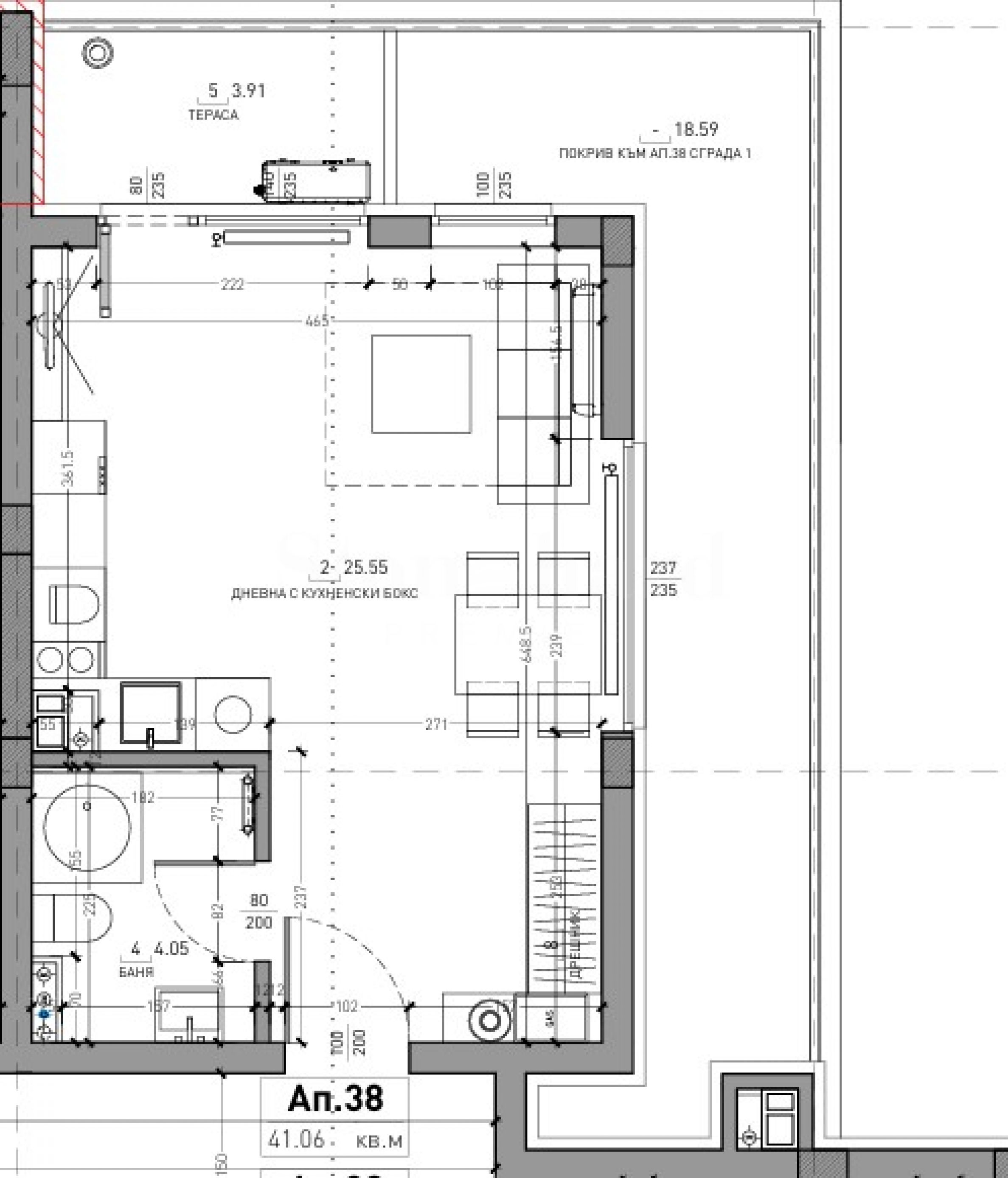
Квартира расположена в корпусе №1, на 4 этаже. Общая площадь составляет 49,02 м2., жилая – 41,06 м2. Квартира состоит из прихожей, ванной комнаты с туалетом, гостиной с кухней и террасы. К квартире прилегает мансардное помещение площадью 18,59 м2.

Продается в состоянии полной готовности согласно BDS.
*Цена предложения указана при Плане оплаты - 1 (50%/30%/10%/10%).

Особенности этапа 1:
• Первая очередь находится в стадии строительства, завершение которого запланировано на март 2028 года.
• 132 функциональных дома – однокомнатные, двухкомнатные и трехкомнатные квартиры;
• 134 подземных парковочных места и гаражей;
• Зеленые зоны и зоны отдыха, игровые площадки, безопасная и приятная семейная обстановка.

Также началось строительство второй очереди комплекса, состоящей из ещё трёх зданий. Обе очереди сформируют современный жилой ансамбль в самом сердце «Малиновой долины».

Качественное строительство:
• Железобетонная конструкция;
• Крыши с теплоизоляцией из XPS;
• Окна ПВХ, тройной стеклопакет со стеклом «четыре сезона»;
• Отопление электричеством через кондиционеры и газом;
• Высота жилых помещений в свету – 2,60 м;
• Кирпичная кладка 25 см.

Расположение и преимущества:
• Тихий и зеленый район, у подножия горы Витоша;
• Непосредственная близость к Симеоновскому шоссе и Кольцевой дороге;
• Рядом находятся NSA, Студенческий Град, супермаркеты, спортивные центры и рестораны;
• Развитие инфраструктуры и инвестиционного потенциала.

Гибкие схемы оплаты — выбор в зависимости от бюджета и этапа строительства:

Схема № 1:
• 50% по предварительному договору;
• 30% для Акта 14;
• 10% для Акта 15;
• 10% для Акта 16.

Схема № 2:
• 30% по предварительному договору;
• 30% для Акта 14;
• 30% для Акта 15;
• 10% для Акта 16.

Схема № 3:
• 30% по предварительному договору;
• 70% в Акте 16.

Почему стоит выбрать этот проект:
• Современная архитектура и удобные планировки жилых помещений;
• Безопасная и экологичная среда проживания;
• Отличная инвестиция в быстроразвивающемся районе Софии;
• Баланс между городскими удобствами и близостью к природе.

Мы с нетерпением ждем вашего запроса.

Если вы хотите договориться о просмотре интересующего вас объекта недвижимости или посетить один из наших офисов, пожалуйста, свяжитесь с нами. Чтобы договориться о встрече или просмотре, позвоните по указанному в объявлении номеру телефона или отправьте запрос по электронной почте. Наш консультант свяжется с вами по всем необходимым вопросам и подберет удобное для вас время.

Вы ищете подходящую для себя недвижимость?

Не стесняйтесь обращаться к нам и рассказать о своих потребностях и предпочтениях. Наша команда проведёт тщательное исследование рынка, чтобы предложить вам недвижимость, которая точно соответствует вашим критериям. У нас есть исключительное портфолио высококачественных и эксклюзивных домов, доступных только нашим клиентам. Чтобы первыми получать информацию о них, свяжитесь с нами.

Дополнительные услуги

Став нашим ценным клиентом, вы получите право пользоваться услугами нашей опытной юридической команды совершенно бесплатно. Кроме того, мы предлагаем комплексные решения, включая страхование имущества, бесплатные финансовые консультации и выгодные условия финансирования. Мы также предлагаем услуги по перепродаже, аренде и управлению недвижимостью. Мы осуществляем высококачественный ремонт и меблировку через специализированные компании, входящие в нашу группу компаний и являющиеся нашими давними профессиональными партнерами.

Смотр недвижимости
Мы готовы организовать смотр недвижимости в удобное для вас время. Обратитесь к ответственному менеджеру по продажам и проинформируйте его, когда бы Вы хотели приехать на смотровой тур. Мы можем помочь Вам забронировать авиабилет и отель, а также помочь Вам оформить визу и необходимую страховку.

Бронирование недвижимости
Вы можете забронировать недвижимость, заплатив невозмещаемый задаток в размере 2 000 евро наличным платежом, кредитной картой или банковским переводом на фирменный счет компании. После получения задатка недвижимость бронируется, осмотры с другими потенциальными покупателями производиться не будут, и начнется изготовление необходимых документов по оформлению сделки. Пожалуйста, обратитесь к ответственному за данный объект менеджеру по продажам для получения подробной информации относительно процедуры покупки и способов оплаты.

Послепродажное обслуживание
Мы уважаемая компания, за плечами которой многолетний опыт работы в сфере недвижимости. Мы будем сопровождать Вас не только во время покупки, но и после приобретения недвижимости, обеспечивая Вам дополнительный набор услуг с учетом Ваших требовании, для того, чтобы Вы могли насладиться полноценным и спокойным времяпровождением в Болгарии. Услуги, которые мы можем предложить, включают страхование, строительство и ремонт, услуги по меблировке, бухгалтерские и юридическиe услуги, переоформление договоров на электричество, воду, телефон и многое другое.
Контакты нашего офиса
Контакты нашего офиса

Расположение на карте

ПРИБЛИЗИТЕЛЬНОЕ МЕСТОПОЛОЖЕНИЕ
Отправьте запрос для получения дополнительной информации
Контакты нашего офиса
Ваше имя*
Ваш адрес электронной почты*
Ваш номер телефона*

ООО «Стоунхард Маркетинг» защищает Ваши персональные данные и соблюдает Политику конфиденциальности компании, в соответствии с требованиями Регламента (ЕС) № 2016/679. На следующем этапе вы сможете разрешить или запретить нам хранить и использовать ваши персональные данные. Сделайте свой выбор в электронном письме, которое мы отправим вам после получения вашего запроса.

Больше объектов недвижимости с похожими характеристиками

Новый жилой проект из восьми домов с разными типами квартир в квартале «Малиновая Долина»

Малинова долина / София / София / Болгария карта

Цены на недвижимость: 73 000 - 212 000

Цены за м²: 1 738 - 1 933 €/м 2

Квартиры разных типов в новом доме с элегантной современной архитектурой в районе Горубляне

Горубляне / София / София / Болгария карта

Цены на недвижимость: 72 557 - 248 851

Цены за м²: 1 850 - 1 850 €/м 2

Новый жилой комплекс с большим двором рядом с парками и благоустройством

Малинова долина / София / София / Болгария карта

Сдача планируется: Ноябрь, 2025

Цены на недвижимость: 144 774 - 279 842

Цены за м²: 1 710 - 3 265 €/м 2

...Как проверенный специалист, Stonehard PREMIER работает над позиционированием на рынке и продажами многочисленных новых строительных проектов, реализацию которых нам доверили ведущие предпринимательские компании в Болгарии и за рубежом...

Выберите эту опцию, и мы уведомим вас по электронной почте в случае каких-либо изменений в статусе предложения, например:

• Изменение цены;

• Объект недвижимости попал в рекламное предложение;

• Имущество зарезервировано или продано;

• Другие новости, связанные с недвижимостью.

• Имущество снимается с продажи;

Вы можете легко отписаться от уведомлений в любое время.
Площадь недвижимости в Дубае/ОАЭ исчисляется в квадратных футах. Все площади в этом предложении автоматически переводятся в квадратные метры по формуле 1 кв.м = 10,7639 кв.фута.
Арендодатель оплачивает электроэнергию, воду, отопление/охлаждение, интернет, кабельное телевидение и утилизацию твердых отходов.
Первоначальная цена недвижимости указывается в местной валюте — дирхамах (AED). Цена, указанная в валюте, отличной от дирхама, является ориентировочной и рассчитывается автоматически с использованием кросс-курса, который мы обновляем 4 раза в день. Вот почему цена, указанная в валюте, отличной от дирхама (AED), постоянно колеблется, хотя и в небольших пределах.
Цены указаны ориентировочные. Для абсолютно точного расчета цены и предложения обращайтесь к ответственному консультанту!
Выберите эту опцию, и вы начнете получать новые предложения с похожим объектом инвестирования и расположенные в том же районе.
Все новые предложения и актуальную информацию о нашей деятельности вы будете получать по электронной почте.
Учитывая текущую высокую динамику продаж и рынка, цены и наличие свободных объектов недвижимости в этом проекте, указанные на нашем сайте, могут незначительно отличаться от текущих.
Для получения абсолютно корректной информации о свободных объектах недвижимости, выставленных на продажу в проекте, и их актуальных ценах, пожалуйста, свяжитесь с нашим офисом по указанным контактам.
Мы прилагаем все усилия, чтобы наши прайс-листы были абсолютно актуальными и правильными, но зачастую это невозможно, учитывая большое количество новых проектов в нашем каталоге и высокую динамику продаж.
Благодарим за понимание!