Vierzimmerwohnung in einem Neubau neben der U-Bahn-Station „Business Park“.
auf der Karte
Preis:
217 759 € (1 661 €/m 2)
*Die angegebenen Preise und die Verfügbarkeit freier Immobilien im Projekt sind Richtwerte. Für aktuelle Preisinformationen kontaktieren Sie uns bitte!
Art.-Nr. Nummer: AP 114385 / 3390
Standort: Mladost 4 / Sofia Karte
Gebäude-/Komplextyp: Wohnen
Wohngebiete: 131.13 m 2
Arten von Immobilien im Gebäude/Komplex: Mehr-Zimmer-Apartments
Art.-Nr. Nummer: AP 114385 / 3390
Standort: Mladost 4 / Sofia
Gebäude-/Komplextyp: Wohnen
Gebäude-/Komplexklasse:
Wohngebiete: 131.13 m 2
Arten von Immobilien im Gebäude/Komplex: Mehr-Zimmer-Apartments
Baubeginn – Oktober 2023. Fertigstellungszeitraum – 2,5 Jahre.
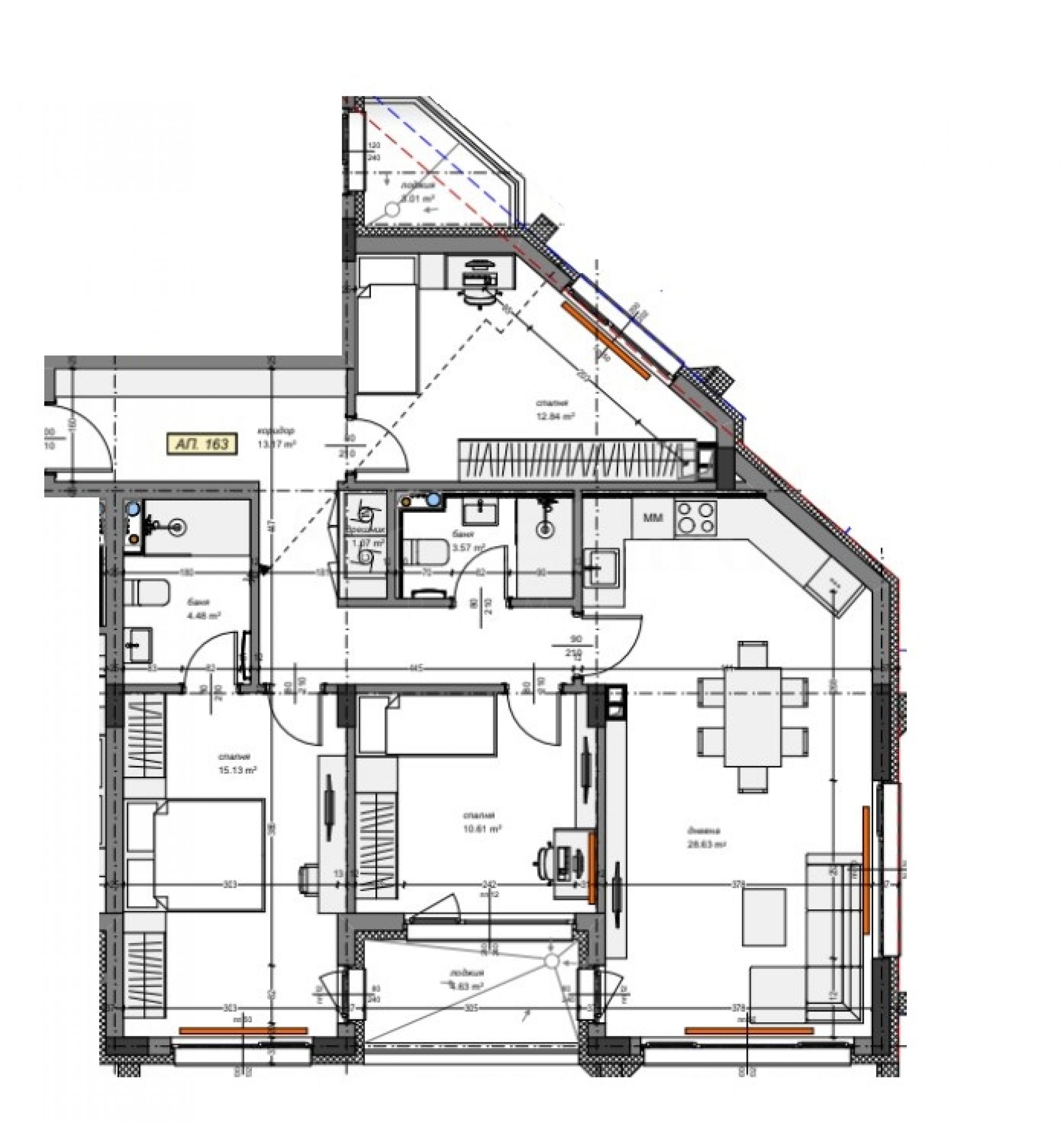
Die Immobilie befindet sich im 8. von insgesamt 11 Stockwerken und bietet eine Gesamtfläche von 131,13 m². Es besteht aus einem Flur, drei Schlafzimmern, einem Wohnzimmer mit Küche, einer Loggia, zwei Badezimmern mit Toilette. Es wird im Abschlussgrad nach BDS angeboten.
Das Gebäude verfügt über eine zeitgemäße, moderne architektonische Vision und ist auf 11 Etagen verteilt, mit geplanten Zwei-, Drei- und Vier-Zimmer-Wohnungen mit Flächen von 49 bis 195 m². Auf der Erdgeschossebene sind Geschäfte und ein Restaurant geplant, für die Parkmöglichkeiten sorgen Stellplätze und Garagen im Tief- und Erdgeschoss sowie Freistellplätze.
Die Immobilien sind mit funktionalen Grundrissen und günstigen Belichtungen gestaltet, um ein komfortables Wohnen zu gewährleisten.
Spezifikationen:
Wände und Decken mit Gipsputz, Böden mit Zementputz;
PVC-Tischlerei, 5-Kammer-Profil mit Dreifachverglasung;
gepanzerte Fronttür mit Patronenschloss;
Wände in Bädern und WC mit Kalkputz;
moderne Fassade mit Wärmedämmung und Polymersilikatputz, massiven und/oder durchbrochenen Geländern;
Gemeinschaftsräume mit Granitböden, Latexwänden, Edelstahl- oder durchbrochenen Geländern;
Sanitär- und Elektroinstallationen;
BHKW-Heizungs- und Klimaanlagenanschlüsse.
Es besteht die Möglichkeit, Lagerflächen zu erwerben.
Zahlungssysteme
Option 1 (- 100 Euro/qm):
90 % – Vorvertrag;
10 % – Gesetz 16.
Option 2: (- 50 Euro/qm):
60 % – Vorvertrag;
20 % – Gesetz 14;
10 % – Gesetz 15;
10 % – Gesetz 16.
Option 3 (Standardschema):
30 % - Vorvertrag;
20 % – Gesetz 14;
20 % – Zertifikat gemäß Art. 181;
20 % – Gesetz 15;
10 % – Gesetz 16.
Option 4 (+ 80 Euro/qm):
10 % - Vorvertrag;
30 % – Gesetz 14;
30 % – Zertifikat gemäß Art. 181;
20 % – Gesetz 15;
10 % – Gesetz 16.
Option 5 (+ 250 Euro/qm):
10 % - Vorvertrag;
90 % – Gesetz 16.
Für weitere Informationen und die Vereinbarung einer Besichtigung wenden Sie sich bitte an den für das Angebot zuständigen Makler.
Besichtigungen
Wir können eine Besichtigung der Immobilie zu einer für Sie passenden Zeit vereinbaren. Bitte kontaktieren Sie den für dieses Angebot zuständigen Makler und teilen Sie ihm die von Ihnen gewünschte Uhrzeit mit.
Reservierung der Immobilie
Gegen eine nicht erstattete Anzahlung in Höhe von 2.000 Euro wird die Immobilie reserviert. Weitere Besichtigungen mit anderen Käufern finden nicht statt und Makler beginnt mit der Vorbereitung der Dokumente für den Abschluss des endgültigen Vertrags für Eigentumsübertragung. Bitte kontaktieren Sie den zuständigen Makler für mehr Information über den Kauf einer Immobilie und Zahlungsarten.
Zusatzleistungen und Kundendienst
Wir sind ein seriöses Unternehmen und werden nicht nur während des Kaufs, sondern auch danach bei Ihnen sein und Ihnen auf Ihren Wunsch zusätzliche Dienstleistungen anbieten, um die neu gekaufte Immobilie vollständig und nahtlos zu nutzen. Die Dienstleistungen, die wir anbieten können, umfassen die Erlangung einer Hypothekengenehmigung, eine Versicherung für bewegliche und unbewegliche Sachen, eine Lebensversicherung, eine Kranken- und Autoversicherung, Bau- und Reparaturaktivitäten, Möbel, Rechts- und Buchhaltungsdienstleistungen usw.
Bei uns können Sie nicht nur eine Immobilie mieten, sondern auch eine Reihe von Zusatzleistungen in Anspruch nehmen. Wir können Versicherungen für bewegliches und unbewegliches Vermögen, Lebensversicherungen, Kranken- und Kfz-Versicherungen, Bau- und Reparaturarbeiten, Möbel, Rechts- und Buchhaltungsdienstleistungen usw. anbieten.
Standort auf der Karte
Ein neues Wohnprojekt aus drei Gebäuden mit unterschiedlichen Wohnungstypen im Stadtteil „Dianabad“
Dianabad / Sofia / Sofia / Bulgarien Karte
Immobilienpreise: 176 199 - 450 565 €
Preise pro m²: 2 913 - 3 339 €/m 2
Wohnungen verschiedener Typen in einem neuen Gebäude mit eleganter, zeitgenössischer Architektur im Stadtteil Gorublyane
Gorublyane / Sofia / Sofia / Bulgarien Karte
Immobilienpreise: 72 557 - 248 851 €
Preise pro m²: 1 850 - 1 850 €/m 2
VERKAUF
PROJEKT
Vier-Zimmer-Wohnung mit drei Terrassen in einem exklusiven Komplex mit Act 16 im Bezirk Boyana
Boyana / Sofia / Sofia / Bulgarien Karte
Gebäude-/Komplexklasse: Hoher Standard
Bereich: 212.60 m 2
Preis: 434 767 € /// 2 045 €/m 2
Wählen Sie diese Option und wir benachrichtigen Sie per E-Mail, wenn sich der Angebotsstatus ändert, zum Beispiel:
• Preisänderung;
• Die Immobilie hat ein Sonderangebot abgegeben;
• Die Immobilie ist reserviert oder verkauft;
• Weitere Neuigkeiten im Zusammenhang mit der Immobilie.
• Die Immobilie wird aus dem Verkauf genommen;
Sie können Benachrichtigungen jederzeit problemlos abbestellen.• Änderungen der Angebotsbedingungen;
• Änderung der Investitionshöhe;
• Der Investitionsgegenstand wurde vollständig realisiert;
• Das Angebot ist abgelaufen.
Sie können sich ganz einfach abmelden, wenn Sie in Zukunft entscheiden, dass Sie dieses Angebot nicht mehr nutzen möchten.
Um absolut korrekte Informationen über die im Projekt verfügbaren, leerstehenden Immobilien und deren aktuelle Preise zu erhalten, kontaktieren Sie bitte unser Büro unter den angegebenen Kontaktdaten.
Wir bemühen uns nach Kräften, unsere Preislisten stets aktuell und korrekt zu halten, doch angesichts der Vielzahl neuer Projekte in unserem Katalog und der stark schwankenden Verkaufszahlen ist dies oft unmöglich.
Vielen Dank für Ihr Verständnis!



...Als ausgewiesener Spezialist arbeitet Stonehard PREMIER an der Marktpositionierung und dem Vertrieb zahlreicher Neubauprojekte, deren Umsetzung uns führende Unternehmergesellschaften in Bulgarien und im Ausland anvertraut haben...