Ein-Zimmer-Wohnung in einem neuen Boutique-Gebäude
Preis:
210 500 € (ohne MwSt.) (2 537 €/m 2 (ohne MwSt.))
*Die angegebenen Preise und die Verfügbarkeit freier Immobilien im Projekt sind Richtwerte. Für aktuelle Preisinformationen kontaktieren Sie uns bitte!
Art.-Nr. Nummer: SOF-137980 / 4647
Standort: Krustova Vada / Sofia Karte
Gebäude-/Komplextyp: Wohnen
Gebäude-/Komplexklasse: Hoher Standard
Wohngebiete: 82.98 m 2
Arten von Immobilien im Gebäude/Komplex: 2-Raum-Apartments
Art.-Nr. Nummer: SOF-137980 / 4647
Standort: Krustova Vada / Sofia
Gebäude-/Komplextyp: Wohnen
Gebäude-/Komplexklasse: Hoher Standard
Wohngebiete: 82.98 m 2
Arten von Immobilien im Gebäude/Komplex: 2-Raum-Apartments
Das Gebäude befindet sich in der prestigeträchtigen südlichen Gegend der Hauptstadt – in unmittelbarer Nähe des Zoos, nur 950 m vom Paradise Center und der Metrostation Vitosha entfernt. Gelegen in einer ruhigen Seitenstraße, bietet es Privatsphäre und Sicherheit sowie eine schnelle Anbindung über den neuen Philip-Kutev-Boulevard an den Cherni-Vrah-Boulevard und die Simeonovsko-Chaussee. Die Gegend vereint Ruhe, hervorragende Infrastruktur und die schnelle Erreichbarkeit wichtiger Orte der Stadt.
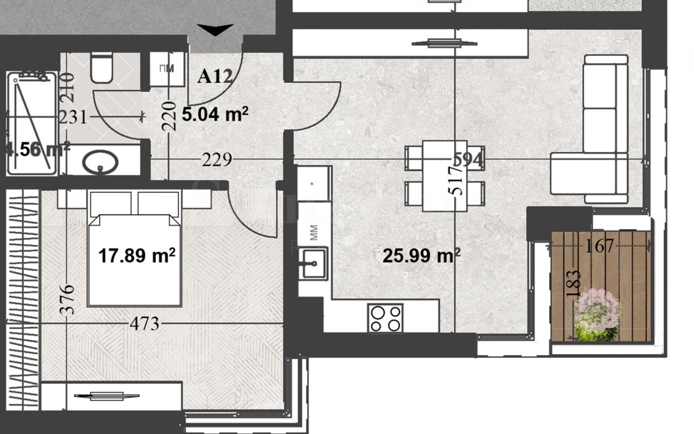
Die Wohnung (Wohnung 12) befindet sich im dritten Stock, hat eine Gesamtfläche von 82,98 m² und folgende Aufteilung:
• Korridor;
• Wohnzimmer mit Küche und Essbereich,
• Schlafzimmer;
• Badezimmer mit Toilette;
• Loggia.
Das Gebäude verfügt über fünf oberirdische und ein unterirdisches Geschoss. Im Untergeschoss befinden sich Garagen, Parkplätze und Kellerräume. Die fünf übrigen Wohnetagen beherbergen 14 Wohnungen mit zwei, drei und vier Schlafzimmern.
Die Immobilien vereinen helle Räume, klare Linien und ein Gefühl der Ruhe – alles ist mit viel Liebe zum Detail und für Menschen gestaltet, die Wert auf Qualität und einen modernen Lebensstil legen. Ein innovatives Konzept, das moderne Architektur, Naturverbundenheit und neue Technologien verbindet.
Moderne und hochwertige Bauweise, sehr hoher Qualitätsstandard der verwendeten Materialien.
Technische Merkmale:
• Energieklasse A – Das Gebäude ist auf hohe Energieeffizienz ausgelegt, was einen niedrigen Energieverbrauch und optimale Heiz- und Kühlkosten gewährleistet – für einen nachhaltigeren und komfortableren Lebensstil.
• Photovoltaikanlage – Ein eingebautes System zur Stromversorgung der Gemeinschaftsbereiche, das zu niedrigeren Energiekosten und einem nachhaltigeren Betrieb des Gebäudes beiträgt.
• Premium-Fassade – Keramikfassade mit modernem Design und hervorragender Langlebigkeit.
• Französische Fenster - Maximale Verglasung für mehr Licht, Raum und eine natürliche Verbindung mit dem umgebenden Raum.
• Hochwertige Aluminiumverbindungen – mit hervorragender Wärme- und Schalldämmung, modernem Aussehen und langer Lebensdauer.
• Dezente Fassaden- und Gartenbeleuchtung, die die Architektur betont und nachts für Komfort und Sicherheit sorgt.
• Hochwirksame Schalldämmung – Garantiert Ruhe, Privatsphäre und akustischen Komfort in jedem Zuhause.
• Vorgefertigte Installation für Wärmepumpensysteme – eine energieeffiziente Lösung für Heizung, Kühlung und Warmwasser.
• Luxuriöse Gemeinschaftsbereiche - Individuell gestaltet nach einem exklusiven Interieurdesign mit hochwertigen Materialien und Liebe zum Detail.
• In allen Wohnungen ist eine Fußbodenheizung eingebaut, die ganzjährigen Komfort gewährleistet.
• Ein üppig gestalteter, umzäunter Garten – eine ruhige, grüne und ästhetische Umgebung zur Erholung und Entspannung.
• Tiefgarage – Großzügig und gut organisiert mit direktem Zugang zum Gebäude, ausgelegt für bequemes Parken auch für größere Fahrzeuge.
• Beschränkter Zugang – Automatisiertes Videokontrollsystem für den Zugang zum Gebäude und zum Innenhof – für mehr Sicherheit und ein beruhigendes Gefühl.
Drei Zahlungsmodelle:
Schema 1:
•30 % bei vorläufiger Vereinbarung
•30 % für Gesetz 14
•30 % für Gesetz 15
•10 % für Act 16
Schema 2:
•60 % bei Vertragsabschluss
•30 % für Gesetz 15
•10 % für Act 16
Schema 3:
•90 % mit einem Vorvertrag
•10 % für Act 16
Reservierung gegen Anzahlung möglich.
Es besteht die Möglichkeit, Außenstellplätze ab 35.000 € (68.454 Lewa), Tiefgaragenstellplätze ab 39.000 € (76.277 Lewa) und Tiefgaragenplätze ab 45.000 € (88.012 Lewa) zu erwerben. Die Preise verstehen sich zuzüglich Mehrwertsteuer.
Baubeginn: November 2025, voraussichtliche Inbetriebnahme: 16. Dezember 2027.
Standort auf der Karte
VERKAUF
PROJEKT
Ein-Zimmer-Wohnung in einem bezugsfertigen Boutique-Gebäude mit Baugenehmigung vom 16. Juni im Stadtteil Krastova Vada zu verkaufen
Krustova Vada / Sofia / Sofia / Bulgarien Karte
Bereich: 76.78 m 2
Preis: 268 730 € /// 3 500 €/m 2
VERKAUF
PROJEKT
Ein-Zimmer-Apartment mit Parkplatz im 8. Stock der Teatralna Park Residence
Oborishte / Sofia / Sofia / Bulgarien Karte
Bereich: 64.44 m 2
Preis: 416 974 € /// 6 471 €/m 2
VERKAUF
PROJEKT
Ein-Zimmer-Wohnung zum Verkauf, bezugsfertig, Neubau im Stadtteil „Krustova Vada“, ACT, 16. Juni
Krustova Vada / Sofia / Sofia / Bulgarien Karte
Bereich: 81.60 m 2
Preis: 285 600 € /// 3 500 €/m 2
Wählen Sie diese Option und wir benachrichtigen Sie per E-Mail, wenn sich der Angebotsstatus ändert, zum Beispiel:
• Preisänderung;
• Die Immobilie hat ein Sonderangebot abgegeben;
• Die Immobilie ist reserviert oder verkauft;
• Weitere Neuigkeiten im Zusammenhang mit der Immobilie.
• Die Immobilie wird aus dem Verkauf genommen;
Sie können Benachrichtigungen jederzeit problemlos abbestellen.• Änderungen der Angebotsbedingungen;
• Änderung der Investitionshöhe;
• Der Investitionsgegenstand wurde vollständig realisiert;
• Das Angebot ist abgelaufen.
Sie können sich ganz einfach abmelden, wenn Sie in Zukunft entscheiden, dass Sie dieses Angebot nicht mehr nutzen möchten.
Um absolut korrekte Informationen über die im Projekt verfügbaren, leerstehenden Immobilien und deren aktuelle Preise zu erhalten, kontaktieren Sie bitte unser Büro unter den angegebenen Kontaktdaten.
Wir bemühen uns nach Kräften, unsere Preislisten stets aktuell und korrekt zu halten, doch angesichts der Vielzahl neuer Projekte in unserem Katalog und der stark schwankenden Verkaufszahlen ist dies oft unmöglich.
Vielen Dank für Ihr Verständnis!



...Als ausgewiesener Spezialist arbeitet Stonehard PREMIER an der Marktpositionierung und dem Vertrieb zahlreicher Neubauprojekte, deren Umsetzung uns führende Unternehmergesellschaften in Bulgarien und im Ausland anvertraut haben...