Двустаен апартамент в нова бутикова сграда
Цена:
210 500 € (без ДДС) (2 537 €/м2 (без ДДС))
*Указаните цени и наличности от свободни имоти в проекта са индикативни. За актуална ценова информация, моля свържете се с нас!
Реф. Номер: SOF-137980 / 4647
Местоположение: кв. Кръстова вада / гр. София карта
Тип на сграда/комплекс: Жилищен
Клас на сградата/комплекса: Висок стандарт
Площи на жилищата: 82.98 м2
Типове имоти в сградата/комплекса: Двустайни апартаменти
Реф. Номер: SOF-137980 / 4647
Местоположение: кв. Кръстова вада / гр. София
Тип на сграда/комплекс: Жилищен
Клас на сградата/комплекса: Висок стандарт
Площи на жилищата: 82.98 м2
Типове имоти в сградата/комплекса: Двустайни апартаменти
Сградата се намира в престижната южна част на столицата – в непосредствена близост до Зоологическата градина, само на 950 м от Paradise Center и метростанция „Витоша“. Разположена на тиха вътрешна улица, сградата осигурява уединение и сигурност, съчетани с бърза връзка през новия булевард „Филип Кутев“ към бул. „Черни връх“ и Симеоновско шосе. Районът съчетава тишина, отлична инфраструктура и бърз достъп до ключови точки на града.
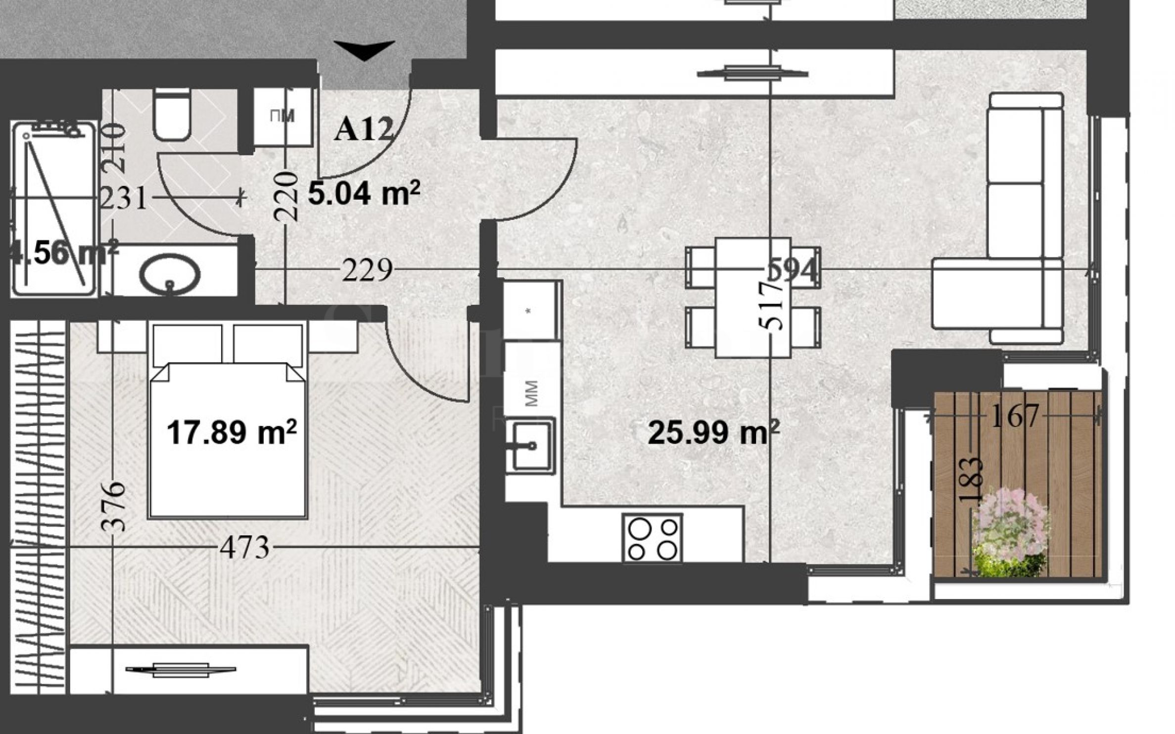
Апартаментът (ап. 12) е ситуиран на трети етаж с обща площ 82.98 кв.м и има следното разпределение:
• коридор;
• всекидневна с кухня и кът за хранене,
• спалня;
• баня с тоалетна;
• лоджия.
Сградата е с пет надземни етажа и един подземен. На подземния са разположени гаражи, паркоместа и мазета. На останалите пет жилищни етажа са разположени 14 апартамента от тип двустайни, тристайни и четиристайни.
Имотите съчетават светли пространства, изчистени форми и усещане за спокойствие – всичко е проектирано с внимание към детайла и с мисъл за онези, които ценят качеството и модерния начин на живот. Иновативна концепция, съчетаваща модерна архитектура, връзка с природата и новите технологии.
Модерно и качествено строителство, много висок стандарт на качество на използваните материали.
Технически характеристики:
• Енергиен клас А - Сградата е проектирана с висока енергийна ефективност, осигуряваща ниско енергопотребление и оптимални разходи за отопление и охлаждане – за по-устойчив и комфортен начин на живот.
• Фотоволтаична система - Изградена система за захранване на общите части, която допринася за по-ниски разходи за енергия и по-устойчива експлоатация на сградата.
• Премиум фасада - Керамична фасада с модерен дизайн и отлична устойчивост във времето.
• Френски прозорци - Максимално остъкляване за повече светлина, простор и естествена връзка с околното пространство.
• Алуминиева дограма от най-висок клас - С отлична топло- и шумоизолация, модерна визия и дълъг експлоатационен живот.
• Дискретно фасадно и градинско осветление, подчертаващо архитектурата и създаващо комфорт и сигурност през нощта.
• Високоефективна звукоизолация - Гарантира тишина, уединение и акустичен комфорт във всяко жилище.
• Предварително изградена инсталация за термопомпени системи – енергийно ефективно решение за отопление, охлаждане и топла вода.
• Луксозни общи части - Изпълнени по индивидуален интериорен проект с премиум материали и внимание към всеки детайл.
• Изградена система за подово отопление на всички апартаменти, осигуряваща целогодишен комфорт.
• Богато озеленен затворен двор -тиха, зелена и естетична среда за отдих и релакс.
• Подземен паркинг - Просторен и добре организиран с директен достъп до сградата, предвиден за удобно паркиране дори при по-големи автомобили.
• Лимитиран достъп - Автоматизирана система за видеоконтрол на достъпа до сградата и вътрешния двор – за повишена сигурност и спокойствие.
Три схеми на плащане:
Схема 1:
•30% при предварителен договор
•30% при Акт 14
•30% при Акт 15
•10% при Акт 16
Схема 2:
•60% при предварителен договор
•30% при Акт 15
•10% при Акт 16
Схема 3:
•90% при предварителен договор
•10% при Акт 16
Възможна резервация с депозит.
Възможно е закупуване на външни паркоместа – 35,000 €( 68 454 лева), подземни паркоместа – 39,000 € (76 277 лева)и подземни гаражи - 45 000 €( 88 012 лева), цените са без ДДС.
Стартиране на строителството: ноември 2025 г, очакван Акт 16 декември 2027 г.
Местоположение на картата
ПРОДАЖБА
ПРОЕКТ
Двустаен апартамент за продажба в бутикова сграда „до ключ“с АКТ 16 юни в кв. „Кръстова вада“
кв. Кръстова вада / гр. София / София / България карта
Площ: 76.78 м2
Цена: 268 730 € /// 3 500 €/м2
ПРОДАЖБА
ПРОЕКТ
Двустаен апартамент с паркомясто на 8-ми етаж в „Театрална Парк Резиденс“
кв. Оборище / гр. София / София / България карта
Площ: 64.44 м2
Цена: 416 974 € /// 6 471 €/м2
ПРОДАЖБА
ПРОЕКТ
Двустаен апартамент за продажба, до ключ, ново строителство в кв. „Кръстова вада“ АКТ 16 юни
кв. Кръстова вада / гр. София / София / България карта
Площ: 81.60 м2
Цена: 285 600 € /// 3 500 €/м2
Изберете тази опция и ще Ви уведомяваме по имейла при настъпили промени по статуса на офертата, например:
• Промяна на цената;
• Имотът влезе в промоционално предложение;
• Имотът бъде резервран или продаден;
• Други новости, свързани с имота.
• Имотът бъде свален от продажба;
Може да се отпишете от нотификациите лесно, когато пожелаете.• Промени по условията на офертата;
• Промяна в сумата на инвестицията;
• Предметът на инвестицията е изцяло реализиран;
• Валидността на офертата е изтекла.
Може лесно да се отпишете, ако в бъдеще решите, че повече не желаете да следите тази оферта.
За да получите абсолютно коректна информация относно свободните имоти, налични за продажба в проекта и техните актуални цени, моля свържете се с нашия офис на посочената информация за контакт.
Ние полагаме усилия, за да поддържаме нашите ценови листи абсолютно актуални и коректни, но често това е невъзможно, предвид големия брой нови проекти в нашия каталог и силно динамичните продажби.
Благодарим Ви за проявеното разбиране!



...В качеството си на доказан спецалист Stonehard PREMIER работи по пазарното позициониране и продажбите на множество проекти ново строителство, чиято реализация ни е поверена от водещи предприемачески компании в България и чужбина...