Zweizimmerwohnung mit Garten in einem neuen Komplex vor Act 14 im prestigeträchtigen Stadtteil "Vinitsa".
auf der Karte
Preis:
155 200 € (2 000 €/m 2)
*Die angegebenen Preise und die Verfügbarkeit freier Immobilien im Projekt sind Richtwerte. Für aktuelle Preisinformationen kontaktieren Sie uns bitte!
Art.-Nr. Nummer: VAR-136117 / 4868
Standort: Vinitsa / Varna Karte
Gebäude-/Komplextyp: Wohnen
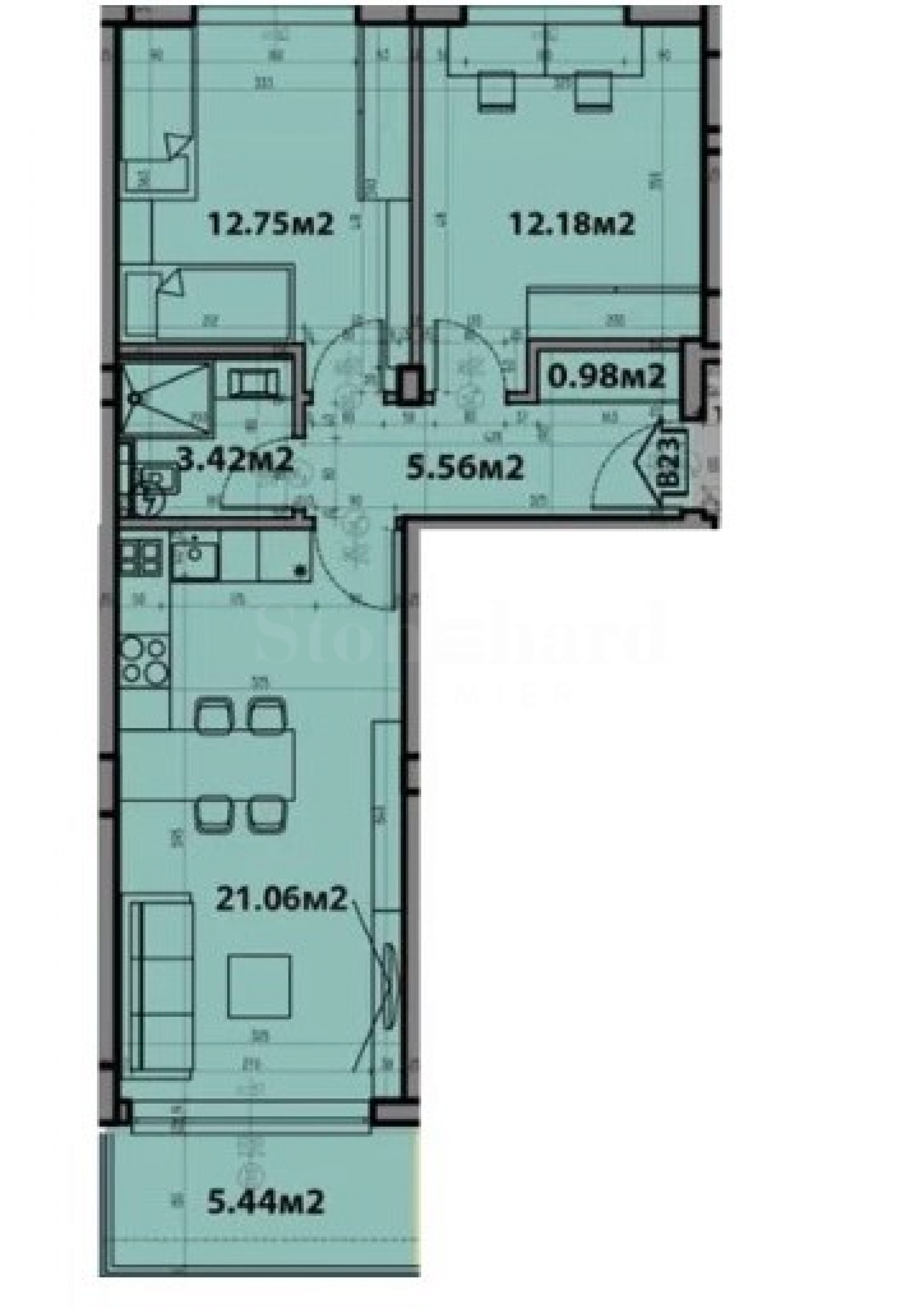
Wohngebiete: 77.60 m 2
Arten von Immobilien im Gebäude/Komplex: 3-Raum-Apartments
Art.-Nr. Nummer: VAR-136117 / 4868
Standort: Vinitsa / Varna
Gebäude-/Komplextyp: Wohnen
Gebäude-/Komplexklasse:
Wohngebiete: 77.60 m 2
Arten von Immobilien im Gebäude/Komplex: 3-Raum-Apartments
Der Komplex befindet sich derzeit in der Phase der Fertigstellung von Akt 14, Akt 16 ist für Dezember 2026 geplant.
Das Gebäude vereint modernes Design, Funktionalität und ein ruhiges Wohnumfeld. Die Lage bietet bequemen Zugang zum Ortskern, öffentlichen Verkehrsmitteln, Schulen, Kindergärten und verschiedenen Geschäften. Der Panoramablick aufs Meer und die Ruhe der Gegend machen es zur idealen Wahl für einen modernen Lebensstil.
Der Komplex umfasst 62 geräumige Zwei- und Dreizimmerwohnungen, die komfortabel und funktional gestaltet sind. Jede Wohnung bietet die Möglichkeit zur individuellen Raumaufteilung nach den Wünschen des Kunden.
Das Objekt mit einer Gesamtfläche von 77,60 qm befindet sich im 4. Stock eines 4-stöckigen Gebäudes.
Die Wohnungen werden gemäß den bulgarischen Baunormen im fertiggestellten Zustand mit Putz und Estrich übergeben.
Im Innenhof des Gebäudes befinden sich 65 Parkplätze mit 24-Stunden-Videoüberwachung und 2 Schnellladestationen für Elektrofahrzeuge mit einer Leistung von 22 kW.
Technische Merkmale:
• Gemeinschaftsbereiche - zu 100 % luxuriös ausgestattet;
• Fassade - besteht aus einem System mit EPS-Wärmedämmung 10 cm im Detail mit Silikatputz;
• Räume - unter Zementestrich, Wände - weißer Gipsputz, Decke - Gipsspachtel;
• Badezimmer - Wände und Decke - verputzt, unter Estrich, ohne Sanitäreinrichtungen;
• Heizung - gelöst mit Split-Systemen, bei denen die Klimaanlagenrohre vorgefertigt in den Wänden verlegt sind;
• Aluminium-Fenster und -Türen – innovatives 7-Kammer-System, Dreifachverglasung, 80 mm Fensterprofil;
• Außentür - hochwertige Panzertüren;
• Sicherheit – Für die Ruhe und Sicherheit der Bewohner ist der Komplex mit zahlreichen Videokameras an wichtigen Standorten ausgestattet, die die Eingänge zum Gebäude und den Parkplatz überwachen. • Die Video-Gegensprechanlage in jeder Wohnung ist mit einer Videokamera an jedem Eingang verbunden;
• Aufzüge - ORONA.
Zahlungsmodalitäten:
Option 1:
• 30 % bei Unterzeichnung eines Vorvertrags;
• 50 % bei Unterzeichnung des Gesetzes Nr. 14 mit/ohne Gutschrift;
• 20 % bei Unterzeichnung des Gesetzes Nr. 15.
Option 2: Es wird ein Rabatt von -1,5 % gegenüber Option 1 gewährt.
• 30 % bei Unterzeichnung eines Vorvertrags;
• 30 % für eine fertige Dachplatte im zweiten Obergeschoss;
• 30 %, wenn Gesetz 14 /ohne Gutschrift/ unterzeichnet wird;
• 10 % bei Unterzeichnung des Gesetzes Nr. 15.
Option 3: Es wird ein Rabatt von -2,5 % gegenüber Option 1 gewährt.
• 80 % bei Unterzeichnung eines Vorvertrags;
• 20 % bei Unterzeichnung des Gesetzes Nr. 15.
Option 4: Es wird eine Preiserhöhung von +9% gegenüber Option 1 vorgenommen.
• 20 % bei Unterzeichnung eines Vorvertrags;
• 80 % bei Unterzeichnung des Gesetzes Nr. 15.
Für weitere Informationen kontaktieren Sie uns bitte.
Besichtigungen
Wir können eine Besichtigung der Immobilie zu einer für Sie passenden Zeit vereinbaren. Bitte kontaktieren Sie den für dieses Angebot zuständigen Makler und teilen Sie ihm die von Ihnen gewünschte Uhrzeit mit.
Reservierung der Immobilie
Gegen eine nicht erstattete Anzahlung in Höhe von 2.000 Euro wird die Immobilie reserviert. Weitere Besichtigungen mit anderen Käufern finden nicht statt und Makler beginnt mit der Vorbereitung der Dokumente für den Abschluss des endgültigen Vertrags für Eigentumsübertragung. Bitte kontaktieren Sie den zuständigen Makler für mehr Information über den Kauf einer Immobilie und Zahlungsarten.
Zusatzleistungen und Kundendienst
Wir sind ein seriöses Unternehmen und werden nicht nur während des Kaufs, sondern auch danach bei Ihnen sein und Ihnen auf Ihren Wunsch zusätzliche Dienstleistungen anbieten, um die neu gekaufte Immobilie vollständig und nahtlos zu nutzen. Die Dienstleistungen, die wir anbieten können, umfassen die Erlangung einer Hypothekengenehmigung, eine Versicherung für bewegliche und unbewegliche Sachen, eine Lebensversicherung, eine Kranken- und Autoversicherung, Bau- und Reparaturaktivitäten, Möbel, Rechts- und Buchhaltungsdienstleistungen usw.
Bei uns können Sie nicht nur eine Immobilie mieten, sondern auch eine Reihe von Zusatzleistungen in Anspruch nehmen. Wir können Versicherungen für bewegliches und unbewegliches Vermögen, Lebensversicherungen, Kranken- und Kfz-Versicherungen, Bau- und Reparaturarbeiten, Möbel, Rechts- und Buchhaltungsdienstleistungen usw. anbieten.
Standort auf der Karte
Wohnungen in einem Neubau vor Act 14 im prestigeträchtigen Viertel "Vinitsa".
Vinitsa / Varna / Varna / Bulgarien Karte
Immobilienpreise: 98 000 - 183 200 €
Preise pro m²: 1 649 - 2 119 €/m 2
PROJEKT
Boutique-Dreizimmerwohnung in einem anspruchsvollen Neubau in Starite Lozya
m-t Dolna Traka / Varna / Varna / Bulgarien Karte
Bereich: 153.51 m 2
Preis: 570 000 € /// 3 713 €/m 2
VERKAUF
PROJEKT
Zwei-Zimmer-Wohnung in einem neuen modernen Gebäude neben der Kathedrale in Varna
Center / Varna / Varna / Bulgarien Karte
Bereich: 126.06 m 2
Preis: 250 000 € /// 1 983 €/m 2
Wählen Sie diese Option und wir benachrichtigen Sie per E-Mail, wenn sich der Angebotsstatus ändert, zum Beispiel:
• Preisänderung;
• Die Immobilie hat ein Sonderangebot abgegeben;
• Die Immobilie ist reserviert oder verkauft;
• Weitere Neuigkeiten im Zusammenhang mit der Immobilie.
• Die Immobilie wird aus dem Verkauf genommen;
Sie können Benachrichtigungen jederzeit problemlos abbestellen.• Änderungen der Angebotsbedingungen;
• Änderung der Investitionshöhe;
• Der Investitionsgegenstand wurde vollständig realisiert;
• Das Angebot ist abgelaufen.
Sie können sich ganz einfach abmelden, wenn Sie in Zukunft entscheiden, dass Sie dieses Angebot nicht mehr nutzen möchten.
Um absolut korrekte Informationen über die im Projekt verfügbaren, leerstehenden Immobilien und deren aktuelle Preise zu erhalten, kontaktieren Sie bitte unser Büro unter den angegebenen Kontaktdaten.
Wir bemühen uns nach Kräften, unsere Preislisten stets aktuell und korrekt zu halten, doch angesichts der Vielzahl neuer Projekte in unserem Katalog und der stark schwankenden Verkaufszahlen ist dies oft unmöglich.
Vielen Dank für Ihr Verständnis!



...Als ausgewiesener Spezialist arbeitet Stonehard PREMIER an der Marktpositionierung und dem Vertrieb zahlreicher Neubauprojekte, deren Umsetzung uns führende Unternehmergesellschaften in Bulgarien und im Ausland anvertraut haben...