Einfamilienhaus mit Garten und Garage in einem Häuserkomplex im Bezirk Seslavtsi, Sofia
Preis:
384 000 €
*Die angegebenen Preise und die Verfügbarkeit freier Immobilien im Projekt sind Richtwerte. Für aktuelle Preisinformationen kontaktieren Sie uns bitte!
Art.-Nr. Nummer: SOF-135272 / 4803
Standort: Seslavtsi / Sofia Karte
Gebäude-/Komplextyp: Wohnen
Wohngebiete: 258 m 2
Arten von Immobilien im Gebäude/Komplex: Häuser
Art.-Nr. Nummer: SOF-135272 / 4803
Standort: Seslavtsi / Sofia
Gebäude-/Komplextyp: Wohnen
Gebäude-/Komplexklasse:
Wohngebiete: 258 m 2
Arten von Immobilien im Gebäude/Komplex: Häuser
Das Projekt umfasst den Bau moderner, gemütlicher und energieeffizienter Einfamilienhäuser im Stadtteil Seslavtsi im Nordosten Sofias. Die Gegend ist bekannt für ihre schöne Natur, die saubere Luft und die ruhige Atmosphäre und somit der perfekte Ort, um dem Stadtleben zu entfliehen.
Aufteilung der Häuser Nr. 1 (Grundstück 374 m²) und Nr. 2 (Grundstück 394 m²):
• Untergeschoss – 74,30 m²:
- Eingangshalle – 8,45 m²;
- Doppelgarage - 34,77 m²;
- Abstellraum 1 – 5,38 m²;
- Abstellraum 2 – 3,57 m²;
- Treppenhaus – 8,16 m²
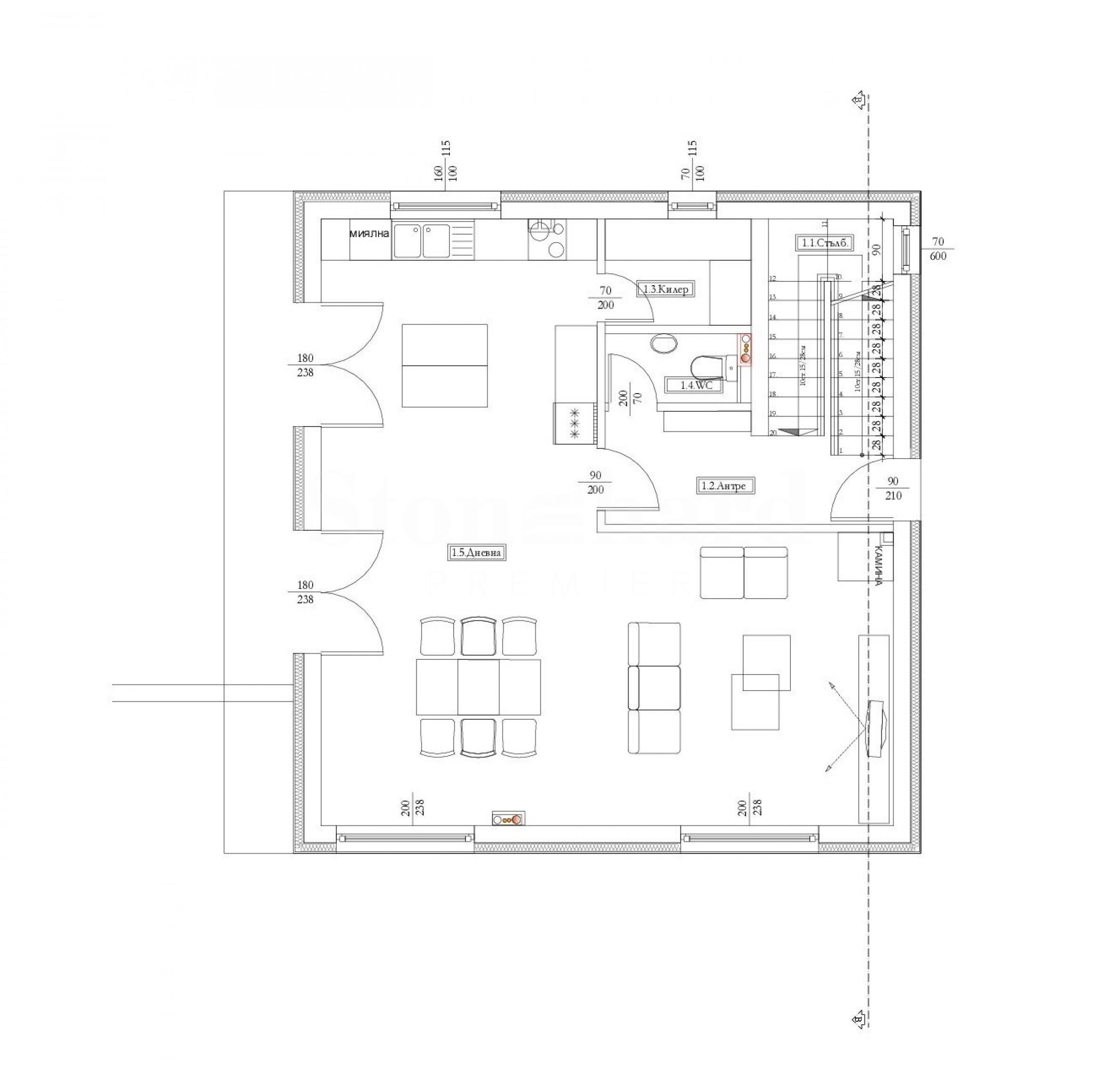
• Ebene 1 (Höhe 0) – 87 m²:
- Wohnzimmer mit Kochnische – 52,73 m²;
- Speisekammer – 3,25 m²;
- Toilette – 2,11 m²;
- Eingangshalle – 5,84 m²;
- Treppenhaus – 5,89 m²
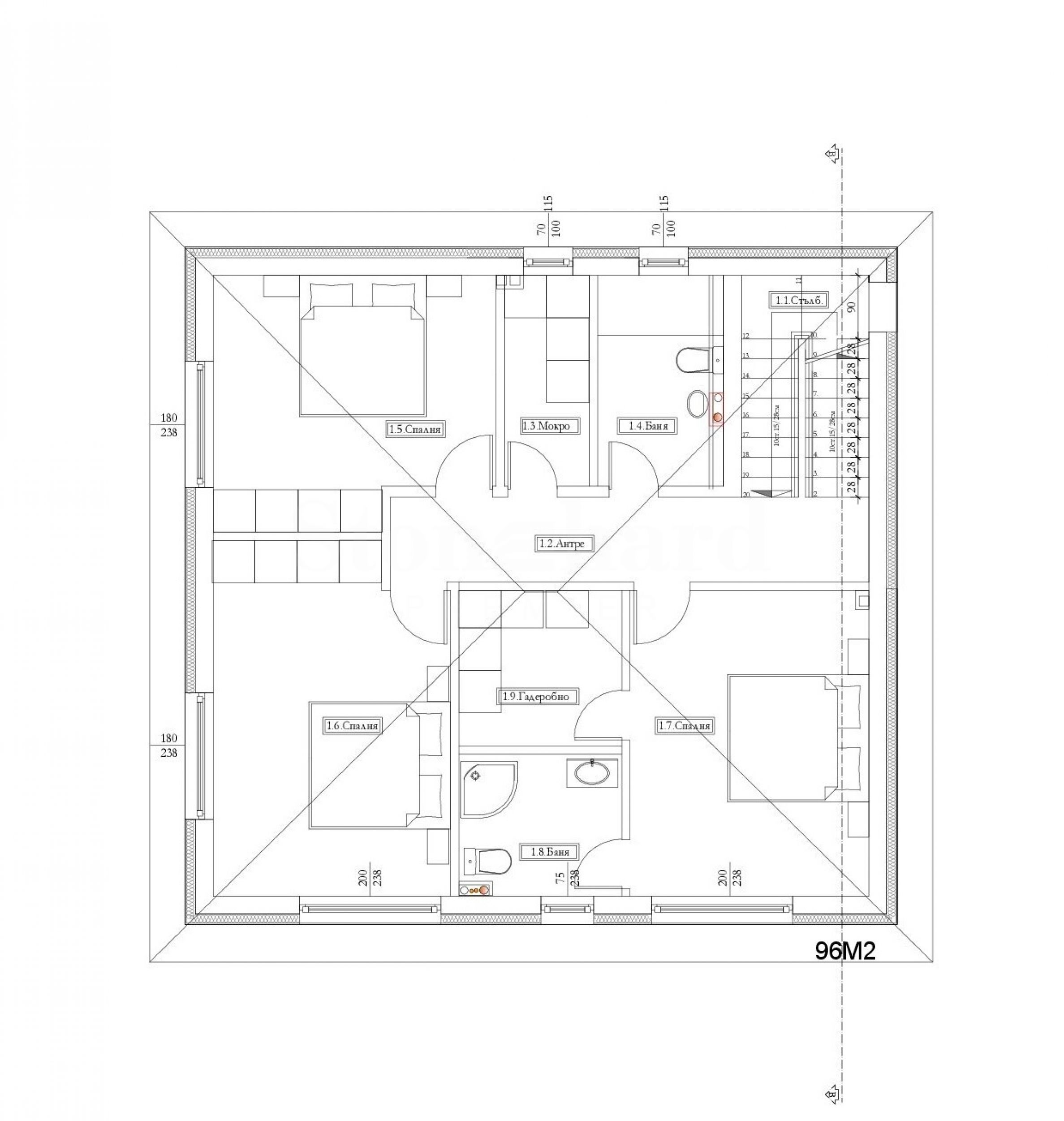
• Ebene 2 (Höhe 3,00):
- Schlafzimmer 1 – 13,55 m²;
- Schlafzimmer 2 – 16,32 m²;
- Hauptschlafzimmer (14,38 m²) mit Ankleidezimmer (4,96 m²) und Badezimmer mit WC (4,34 m²);
- Badezimmer mit Toilette – 3,57 m²;
- Nasszelle - 3,57 m²;
- Flur – 8,11 Quadratmeter;
- Treppenhaus – 5,89 m²
Hauptmerkmale:
• Immobilientyp: freistehende Häuser mit drei Schlafzimmern;
• Anzahl der Häuser: 8;
• Grundstücksfläche: von 340 bis 570 m²;
• Bebauungsfläche der Häuser: von 180 bis 258 m².
Technische Merkmale:
• Wienerberger Porotherm-Ziegel 25 cm;
• Innenwände aus Ziegelstein Wienerberger Porotherm 12 cm;
• 15 cm Fassadendämmung;
• Baumit Fassadenputz;
• zwei automatische Garagentore von Hörmann;
• hochwertige Eingangstür;
• Fenster: 5-Kammer-PVC, Dreifachverglasung, 4K-Außenbereich – hohe Qualität;
• Blitzschutz;
• Elektro- und Sanitärinstallationen wurden durchgeführt;
• elektrische Heizung mit Vorbereitung zur Installation einer Wärmepumpe;
• individuelle Kläranlage und Vorbereitung für den Anschluss an das zentrale Abwassersystem;
• Ziegel und Dachmaterialien – Bramak;
• Landschaftsgestaltung und Rasenansaat im Garten.
Standardzahlungsschema:
• 20 % - Vorvertrag;
• 80% - Nutzungserlaubnis.
Bauphasen:
Das Projekt wird in zwei Phasen umgesetzt, wobei Phase I, bestehend aus den Häusern Nr. 1 und Nr. 2, bereits über Akt 14 verfügt und im August 2026 abgeschlossen sein wird.
Die nächste Phase mit dem Bau der verbleibenden 6 Häuser wird Anfang April 2026 beginnen.
Projektvorteile:
• Natur und frische Luft: Das Viertel Seslavtsi ist von viel Grün umgeben und bietet einen herrlichen Bergblick. Die saubere Luft und die Ruhe der Gegend schaffen ideale Bedingungen für einen gesunden und entspannten Lebensstil.
• Flucht aus dem städtischen Umfeld: Die Häuser bieten die Möglichkeit für Privatsphäre und Ruhe, fernab vom Lärm und Stress der Großstadt, und liegen gleichzeitig nur eine kurze Entfernung vom Zentrum Sofias (19 km).
• Moderne Annehmlichkeiten: Jedes Haus wurde mit viel Liebe zum Detail gestaltet und verfügt über moderne Annehmlichkeiten wie geräumige Wohnzimmer, zeitgemäße Grundrisse, energieeffiziente Systeme und schöne Gärten.
• Sicherheit und Komfort: Das Projekt umfasst einen Komplex mit kontrolliertem Zugang, der die Sicherheit und das Wohlbefinden der Bewohner gewährleistet.
Über die Gegend
Das Projekt für Einfamilienhäuser im Stadtteil Seslavtsi bietet die einzigartige Möglichkeit für ein komfortables und ruhiges Leben inmitten der Natur, ohne auf die Annehmlichkeiten des städtischen Lebens verzichten zu müssen. Es ist der ideale Ort für Familien, die ein ausgewogenes Verhältnis zwischen Berufs- und Privatleben suchen, sowie für alle, die Wert auf Lebensqualität und Naturschönheit legen.
Das Viertel Seslavtsi liegt im Nordosten Sofias und gehört zum Stadtbezirk Kremikovtsi. Bis 1978 war Seslavtsi ein eigenständiges Dorf, wurde dann aber in die Hauptstadt eingemeindet. Es ist bekannt für seine reiche Geschichte und sein kulturelles Erbe, darunter mehrere Klöster. Eines der bedeutendsten ist das Kloster „St. Nikolaus von Myra“ in Seslav. Weitere bemerkenswerte Klöster in der Gegend sind das Kloster „St. Georg der Siegreiche“ in Kremikovtsi und das Kloster „St. Erzengel Michael“ in Buchow.
• Infrastruktur
Seslavtsi verfügt über eine grundlegende Infrastruktur, darunter die regelmäßig verkehrende Buslinie 117, die das Viertel mit dem Rest der Stadt verbindet. Zudem gibt es im Viertel neu angelegte Spielplätze und Sportanlagen.
• Schule
In Seslavtsi gibt es eine Grundschule, die von den Kindern der Umgebung betreut wird und eine qualitativ hochwertige Ausbildung bietet.
• Kindergarten
Im Jahr 2022 wurde in Seslavtsi ein neues Kindergartengebäude, eine Zweigstelle der DG Nr. 146 „Zvezditsa“, eröffnet. Es verfügt über geräumige Klassen- und Schlafräume, eine Turnhalle und einen Musiksaal sowie einen Küchenbereich mit komplett neuer Ausstattung. Zum Kindergarten gehören außerdem Außenspielplätze und ein Fußballfeld.
• Geschäfte
In der Nachbarschaft gibt es mehrere kleine Läden, die Lebensmittel und andere Dinge des täglichen Bedarfs für die Anwohner anbieten.
Besichtigungen
Wir können eine Besichtigung der Immobilie zu einer für Sie passenden Zeit vereinbaren. Bitte kontaktieren Sie den für dieses Angebot zuständigen Makler und teilen Sie ihm die von Ihnen gewünschte Uhrzeit mit.
Reservierung der Immobilie
Gegen eine nicht erstattete Anzahlung in Höhe von 2.000 Euro wird die Immobilie reserviert. Weitere Besichtigungen mit anderen Käufern finden nicht statt und Makler beginnt mit der Vorbereitung der Dokumente für den Abschluss des endgültigen Vertrags für Eigentumsübertragung. Bitte kontaktieren Sie den zuständigen Makler für mehr Information über den Kauf einer Immobilie und Zahlungsarten.
Zusatzleistungen und Kundendienst
Wir sind ein seriöses Unternehmen und werden nicht nur während des Kaufs, sondern auch danach bei Ihnen sein und Ihnen auf Ihren Wunsch zusätzliche Dienstleistungen anbieten, um die neu gekaufte Immobilie vollständig und nahtlos zu nutzen. Die Dienstleistungen, die wir anbieten können, umfassen die Erlangung einer Hypothekengenehmigung, eine Versicherung für bewegliche und unbewegliche Sachen, eine Lebensversicherung, eine Kranken- und Autoversicherung, Bau- und Reparaturaktivitäten, Möbel, Rechts- und Buchhaltungsdienstleistungen usw.
Bei uns können Sie nicht nur eine Immobilie mieten, sondern auch eine Reihe von Zusatzleistungen in Anspruch nehmen. Wir können Versicherungen für bewegliches und unbewegliches Vermögen, Lebensversicherungen, Kranken- und Kfz-Versicherungen, Bau- und Reparaturarbeiten, Möbel, Rechts- und Buchhaltungsdienstleistungen usw. anbieten.
Standort auf der Karte
VERKAUF
PROJEKT
Ein Einfamilienhaus mit Garten in einem neuen Boutique-Komplex am Fuße von Vitosha
Dragalevtsi / Sofia / Sofia / Bulgarien Karte
Bereich: 345.60 m 2
Preis: 670 000 € ///
VERKAUF
PROJEKT
Neues Einfamilienhaus mit Garten und Blick auf Vitosha im Stadtteil Dragalevtsi
Dragalevtsi / Sofia / Sofia / Bulgarien Karte
Bereich: 371 m 2
Preis: 780 000 € ///
VERKAUF
PROJEKT
Ein neues Haus mit Garten und Blick auf Vitosha in einer geschlossenen Anlage
Dragalevtsi / Sofia / Sofia / Bulgarien Karte
Bereich: 394.70 m 2
Preis: 820 000 € ///
Wählen Sie diese Option und wir benachrichtigen Sie per E-Mail, wenn sich der Angebotsstatus ändert, zum Beispiel:
• Preisänderung;
• Die Immobilie hat ein Sonderangebot abgegeben;
• Die Immobilie ist reserviert oder verkauft;
• Weitere Neuigkeiten im Zusammenhang mit der Immobilie.
• Die Immobilie wird aus dem Verkauf genommen;
Sie können Benachrichtigungen jederzeit problemlos abbestellen.• Änderungen der Angebotsbedingungen;
• Änderung der Investitionshöhe;
• Der Investitionsgegenstand wurde vollständig realisiert;
• Das Angebot ist abgelaufen.
Sie können sich ganz einfach abmelden, wenn Sie in Zukunft entscheiden, dass Sie dieses Angebot nicht mehr nutzen möchten.
Um absolut korrekte Informationen über die im Projekt verfügbaren, leerstehenden Immobilien und deren aktuelle Preise zu erhalten, kontaktieren Sie bitte unser Büro unter den angegebenen Kontaktdaten.
Wir bemühen uns nach Kräften, unsere Preislisten stets aktuell und korrekt zu halten, doch angesichts der Vielzahl neuer Projekte in unserem Katalog und der stark schwankenden Verkaufszahlen ist dies oft unmöglich.
Vielen Dank für Ihr Verständnis!



...Als ausgewiesener Spezialist arbeitet Stonehard PREMIER an der Marktpositionierung und dem Vertrieb zahlreicher Neubauprojekte, deren Umsetzung uns führende Unternehmergesellschaften in Bulgarien und im Ausland anvertraut haben...