Studio in einem modernen Neubau am Fuße des Witoschagebirges, Bezirk „Himbeertal“
REF#SOF-131019
/
1-Raum-Apartments
/
Umgesetzte Projekte
/
Sofia
/
Malinova Dolina
/
Sofia
/
Bulgarien
auf der Karte
Preis:
99 401 € (2 384 €/m 2)
*Die angegebenen Preise und die Verfügbarkeit freier Immobilien im Projekt sind Richtwerte. Für aktuelle Preisinformationen kontaktieren Sie uns bitte!
Art.-Nr. Nummer: SOF-131019 / 2851
Standort: Malinova Dolina / Sofia Karte
Gebäude-/Komplextyp: Wohnen
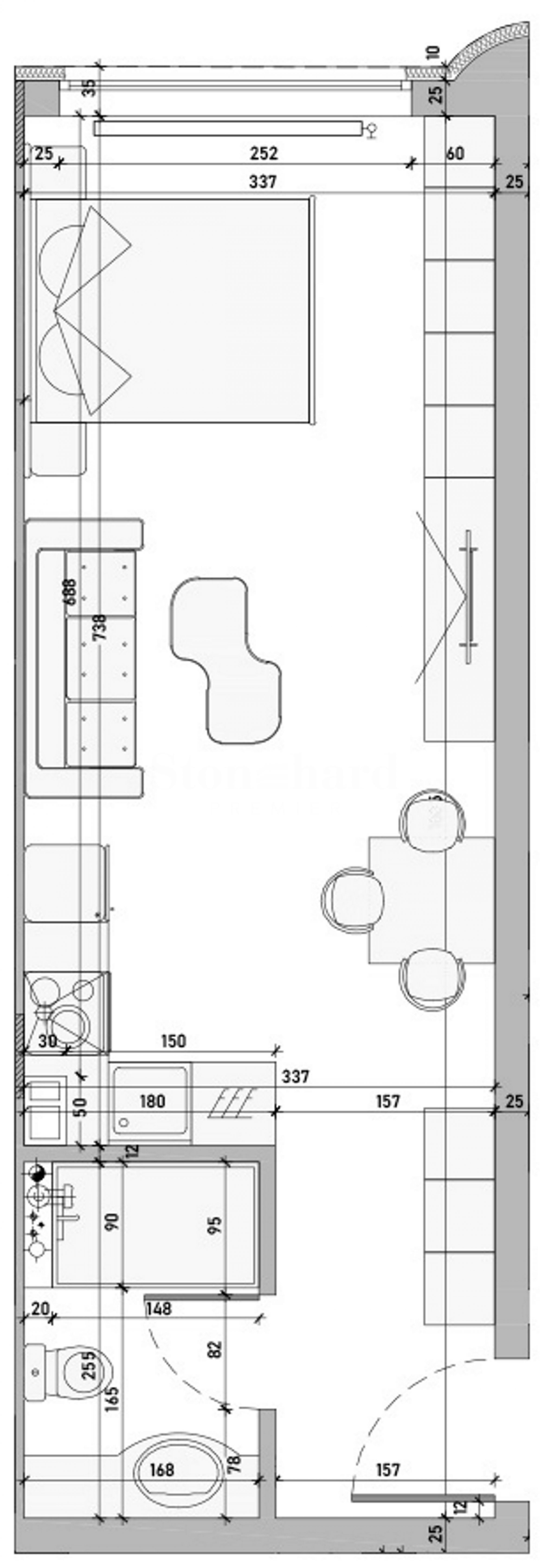
Wohngebiete: 41.69 m 2
Arten von Immobilien im Gebäude/Komplex: 1-Raum-Apartments
Art.-Nr. Nummer: SOF-131019 / 2851
Standort: Malinova Dolina / Sofia
Gebäude-/Komplextyp: Wohnen
Gebäude-/Komplexklasse:
Wohngebiete: 41.69 m 2
Arten von Immobilien im Gebäude/Komplex: 1-Raum-Apartments
Die Immobilie ist als Studio-Apartment konzipiert und wird mit verputzten und vereisten Wänden angeboten. Der großzügige Raum mit 41,69 m² befindet sich im 2. Obergeschoss und ermöglicht die einfache Trennung von Schlaf-, Wohn- und Küchenbereich. Er eignet sich sowohl als Kapitalanlage als auch zur Eigennutzung.
Wir bieten weitere ähnliche Studios im selben Gebäude an, darunter ein benachbartes Studio, mit Größen von 38 bis 44 m² auf verschiedenen Etagen!
Zahlungsplan: 90 % bei Vertragsabschluss und 10 % bei Erfüllung von Gesetz Nr. 16.
* Es ist auch möglich, auf Kredit zu kaufen, gegen eine Anzahlung von 15% des Betrags eines Vorvertrags.
*Geplantes Gesetz 16 – Dezember 2025
Das Gebäude befindet sich in unmittelbarer Nähe zu Haltestellen des öffentlichen Nahverkehrs, Schulen, Supermärkten und Parks. Beim Bau werden Materialien und Technologien höchster Qualität verwendet. Die Architektur ist modern, in Weiß- und Dunkelgrautönen gehalten und mit dekorativen Elementen in Holzoptik versehen. Die Gemeinschaftsbereiche werden luxuriös gestaltet sein und über einen hochwertigen Aufzug verfügen.
Standort
„Malinova Dolina“ ist ein neues, sich rasant entwickelndes Viertel in Sofia, das aufgrund der sauberen Luft, des Ausblicks auf das Vitosha-Gebirge und der entstehenden Infrastruktur – neue, niedrige Wohngebäude, neue Straßen, Anbindung an den Autobahnring über den „Prof. Krikor Azaryan“-Boulevard sowie ausgewiesene Grundstücke für eine Schule und einen Kindergarten – in naher Zukunft zu den begehrtesten Wohngegenden zählen wird. Die Lage des Komplexes ist günstig: Die Nationale Sportakademie und die zahlreichen Angebote des Studentenviertels sind nur sieben Gehminuten entfernt.
Wir freuen uns auf Ihre Anfrage.
Wenn Sie eine Immobilie besichtigen möchten, die Sie interessiert, oder eines unserer Büros besuchen möchten, kontaktieren Sie uns bitte. Um einen Termin für eine Besichtigung oder ein Treffen zu vereinbaren, rufen Sie uns bitte unter der in der Anzeige angegebenen Telefonnummer an oder senden Sie uns eine Anfrage per E-Mail. Unser Berater unterstützt Sie gerne mit allen notwendigen Informationen und findet einen passenden Termin für Sie.
Sind Sie auf der Suche nach der passenden Immobilie für sich?
Zögern Sie nicht, uns zu kontaktieren und uns Ihre Wünsche und Vorlieben mitzuteilen. Unser Team führt eine gründliche Marktanalyse durch, um Ihnen Immobilien anzubieten, die genau Ihren Kriterien entsprechen. Wir verfügen über ein außergewöhnliches Portfolio an hochwertigen und exklusiven Häusern, die nur unseren Kunden zur Verfügung stehen. Um als Erster Informationen darüber zu erhalten, kontaktieren Sie uns.
Zusätzliche Dienstleistungen
Als geschätzter Kunde unseres Unternehmens genießen Sie den Vorteil, die Dienste unseres erfahrenen Rechtsteams kostenfrei in Anspruch zu nehmen. Darüber hinaus bieten wir Ihnen umfassende Lösungen, darunter Gebäudeversicherungen, kostenlose Finanzberatung sowie attraktive Finanzierungskonditionen. Unser Leistungsspektrum umfasst auch die Bereiche Wiederverkauf, Vermietung und Immobilienverwaltung. Hochwertige Renovierungen und Einrichtungsarbeiten vermitteln wir Ihnen über spezialisierte Unternehmen unserer Unternehmensgruppe, mit denen wir seit Langem zusammenarbeiten.
Besichtigungen
Wir können eine Besichtigung der Immobilie zu einer für Sie passenden Zeit vereinbaren. Bitte kontaktieren Sie den für dieses Angebot zuständigen Makler und teilen Sie ihm die von Ihnen gewünschte Uhrzeit mit.
Reservierung der Immobilie
Gegen eine nicht erstattete Anzahlung in Höhe von 2.000 Euro wird die Immobilie reserviert. Weitere Besichtigungen mit anderen Käufern finden nicht statt und Makler beginnt mit der Vorbereitung der Dokumente für den Abschluss des endgültigen Vertrags für Eigentumsübertragung. Bitte kontaktieren Sie den zuständigen Makler für mehr Information über den Kauf einer Immobilie und Zahlungsarten.
Zusatzleistungen und Kundendienst
Wir sind ein seriöses Unternehmen und werden nicht nur während des Kaufs, sondern auch danach bei Ihnen sein und Ihnen auf Ihren Wunsch zusätzliche Dienstleistungen anbieten, um die neu gekaufte Immobilie vollständig und nahtlos zu nutzen. Die Dienstleistungen, die wir anbieten können, umfassen die Erlangung einer Hypothekengenehmigung, eine Versicherung für bewegliche und unbewegliche Sachen, eine Lebensversicherung, eine Kranken- und Autoversicherung, Bau- und Reparaturaktivitäten, Möbel, Rechts- und Buchhaltungsdienstleistungen usw.
Bei uns können Sie nicht nur eine Immobilie mieten, sondern auch eine Reihe von Zusatzleistungen in Anspruch nehmen. Wir können Versicherungen für bewegliches und unbewegliches Vermögen, Lebensversicherungen, Kranken- und Kfz-Versicherungen, Bau- und Reparaturarbeiten, Möbel, Rechts- und Buchhaltungsdienstleistungen usw. anbieten.
Standort auf der Karte
Wohnungen verschiedener Typen in einem neuen Gebäude mit eleganter, zeitgenössischer Architektur im Stadtteil Gorublyane
Gorublyane / Sofia / Sofia / Bulgarien Karte
Immobilienpreise: 72 557 - 248 851 €
Preise pro m²: 1 850 - 1 850 €/m 2
Neue Wohnanlage mit großem Innenhof neben Parks und Annehmlichkeiten
Malinova Dolina / Sofia / Sofia / Bulgarien Karte
Geplante Fertigstellung: November, 2025
Immobilienpreise: 144 774 - 279 842 €
Preise pro m²: 1 710 - 3 265 €/m 2
RECHTE
VERKAUF
PROJEKT
Ein-Zimmer-Wohnung mit Parkplatz in der OKINAWA Boutique Residence
Malinova Dolina / Sofia / Sofia / Bulgarien Karte
Gebäude-/Komplexklasse: Hoher Standard
Bereich: 55.85 m 2
Preis: 111 667 € /// 1 999 €/m 2
Wählen Sie diese Option und wir benachrichtigen Sie per E-Mail, wenn sich der Angebotsstatus ändert, zum Beispiel:
• Preisänderung;
• Die Immobilie hat ein Sonderangebot abgegeben;
• Die Immobilie ist reserviert oder verkauft;
• Weitere Neuigkeiten im Zusammenhang mit der Immobilie.
• Die Immobilie wird aus dem Verkauf genommen;
Sie können Benachrichtigungen jederzeit problemlos abbestellen.• Änderungen der Angebotsbedingungen;
• Änderung der Investitionshöhe;
• Der Investitionsgegenstand wurde vollständig realisiert;
• Das Angebot ist abgelaufen.
Sie können sich ganz einfach abmelden, wenn Sie in Zukunft entscheiden, dass Sie dieses Angebot nicht mehr nutzen möchten.
Um absolut korrekte Informationen über die im Projekt verfügbaren, leerstehenden Immobilien und deren aktuelle Preise zu erhalten, kontaktieren Sie bitte unser Büro unter den angegebenen Kontaktdaten.
Wir bemühen uns nach Kräften, unsere Preislisten stets aktuell und korrekt zu halten, doch angesichts der Vielzahl neuer Projekte in unserem Katalog und der stark schwankenden Verkaufszahlen ist dies oft unmöglich.
Vielen Dank für Ihr Verständnis!



...Als ausgewiesener Spezialist arbeitet Stonehard PREMIER an der Marktpositionierung und dem Vertrieb zahlreicher Neubauprojekte, deren Umsetzung uns führende Unternehmergesellschaften in Bulgarien und im Ausland anvertraut haben...