2-Zimmer-Wohnung in einem innovativen, energieeffizienten Wohngebäude mit Photovoltaikanlage
Preis:
206 324 € (2 486 €/m 2)
*Die angegebenen Preise und die Verfügbarkeit freier Immobilien im Projekt sind Richtwerte. Für aktuelle Preisinformationen kontaktieren Sie uns bitte!
Art.-Nr. Nummer: SOF 129081 / 4197
Standort: Manastirski Livadi - East / Sofia Karte
Gebäude-/Komplextyp: Wohnen
Gesamtfläche des Gebäudes/Komplexes: 2 896м²
Wohngebiete: 83 m 2
Arten von Immobilien im Gebäude/Komplex: 2-Raum-Apartments
Art.-Nr. Nummer: SOF 129081 / 4197
Standort: Manastirski Livadi - East / Sofia
Gebäude-/Komplextyp: Wohnen
Gebäude-/Komplexklasse:
Gesamtfläche des Gebäudes/Komplexes: 2 896м²
Wohngebiete: 83 m 2
Arten von Immobilien im Gebäude/Komplex: 2-Raum-Apartments
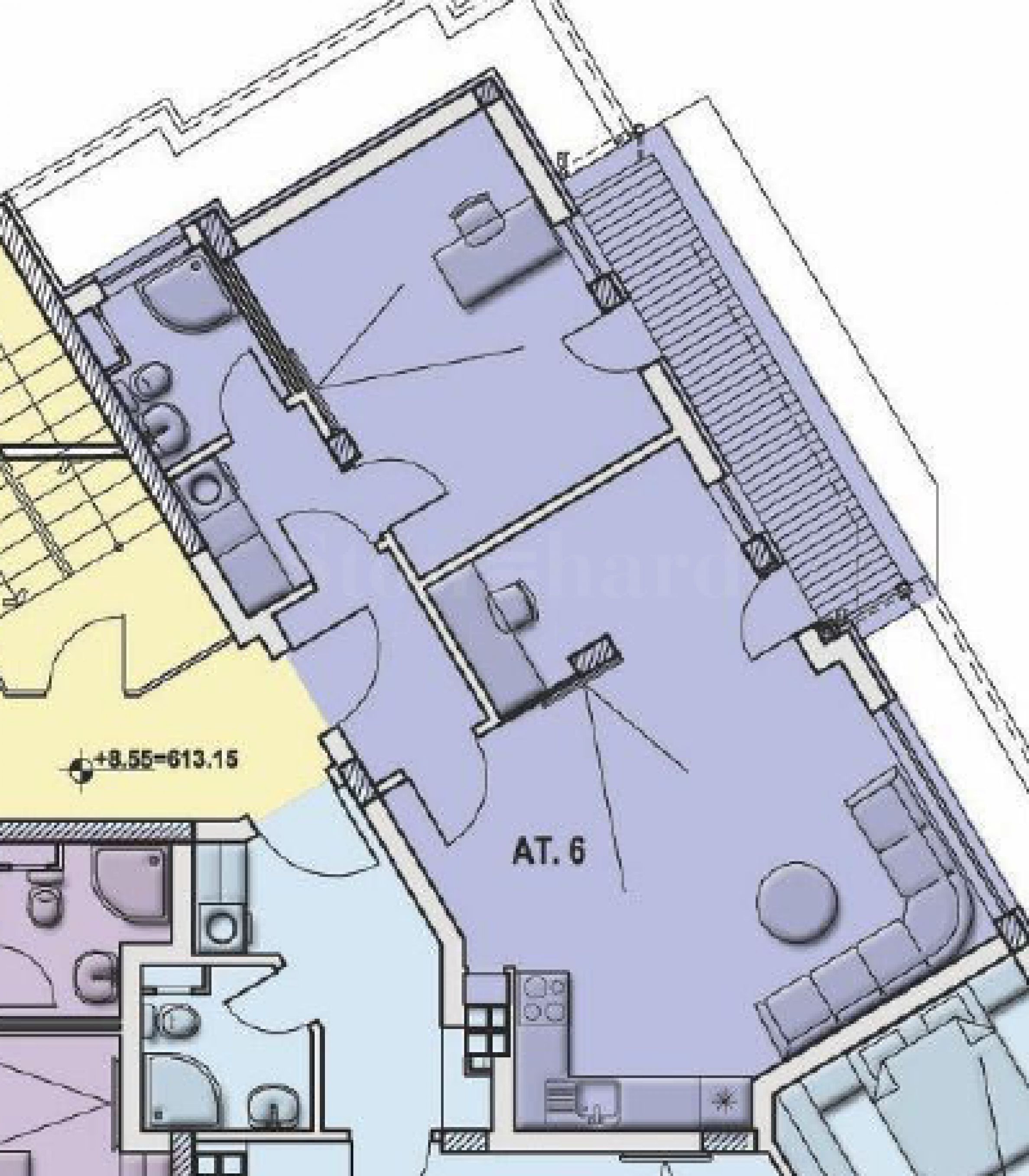
Die Wohnung hat eine Fläche von 85,25 m² und besteht aus einem Eingangsbereich, einem Wohnzimmer mit Küchenzeile, einem Schlafzimmer, einem Badezimmer mit WC und einer Terrasse, die vom Wohnzimmer und vom Schlafzimmer aus zugänglich ist.
Das Gebäude ist sechsgeschossig und verfügt über insgesamt 9 Wohnungen und 6 Studios, die im Hinblick auf Energieeffizienz und Komfort konzipiert wurden. Es stehen 15 Parkplätze sowie 8 Keller für zusätzlichen Komfort der Bewohner zur Verfügung. Das Gebäude ist mit Gas versorgt und die Heizung erfolgt über eine eingebaute Anlage mit Heizkörpern in jedem Raum.
Die Fassade ist mit hochwertigen Materialien ausgestattet, einschließlich einer Photovoltaikanlage, die grüne Energie für die Gemeinschaftsbereiche und Haushalte erzeugt und so für niedrigere Stromrechnungen und größere Energieunabhängigkeit sorgt.
Die Wohnungen verfügen über geräumige und helle Zimmer, dank der französischen Fenster und der hohen Decken von 2,70 m. Die Außenschreinereiarbeiten bestehen aus Fünfkammer-PVC mit Doppelverglasung (24 mm) mit „4-Jahreszeiten“-Technologie, die zu einer hervorragenden Wärme- und Schalldämmung beiträgt.
Für den Komfort der zukünftigen Eigentümer steht ein gemeinsamer Hof zur Verfügung, der mit einem Bewässerungssystem ausgestattet ist, und die an einige der Häuser angrenzenden Höfe sind durch einen diskreten Holzzaun getrennt.
Das Gebäude ist vollständig fertiggestellt und verfügt über das Gesetz 16, das den neuen Eigentümern einen sofortigen Einzug ermöglicht.
Standortvorteile:
In fußläufiger Entfernung zu:
Süd Park;
Nahrungsketten;
Paradise Center, Einkaufszentrum Bulgaria;
Schulen und Kindergärten;
Medizinische Zentren und Sportkomplexe.
Stadtverkehr:
Busse;
Oberleitungsbusse;
Mit Anschluss an die Metrostation (Linie M3).
Wir freuen uns auf Ihre Anfrage.
Wenn Sie einen Besichtigungstermin für eine Immobilie Ihres Interesses vereinbaren oder eines unserer Büros besuchen möchten, nehmen Sie bitte Kontakt mit uns auf. Um einen Tag und eine Uhrzeit für ein Treffen oder eine Besichtigung zu vereinbaren, können Sie die in der Anzeige angegebene Telefonnummer anrufen oder eine Anfrage per E-Mail senden. Unser Berater unterstützt Sie bei allen notwendigen Details und vereinbart einen für Sie passenden Termin.
Sie suchen die passende Immobilie für sich?
Zögern Sie nicht, Kontakt mit uns aufzunehmen und uns Ihre Wünsche und Bedürfnisse mitzuteilen. Unser Team führt eine gründliche Marktforschung durch, um Ihnen Immobilien anzubieten, die genau Ihren Kriterien entsprechen. Wir verfügen über ein außergewöhnliches Portfolio hochwertiger und exklusiver Häuser, die nur unseren Kunden zur Verfügung stehen. Um als Erster Informationen darüber zu erhalten, kontaktieren Sie uns.
Zusätzliche Dienstleistungen
Als geschätzter Kunde unseres Unternehmens haben Sie das Privileg, die Dienste unseres erfahrenen Rechtsteams völlig kostenlos in Anspruch zu nehmen. Darüber hinaus bieten wir umfassende Lösungen inklusive Sachversicherung, kostenloser Finanzberatung sowie günstigen Finanzierungskonditionen. Unsere Leistungen erstrecken sich zudem auf die Bereiche Weiterverkauf, Vermietung und Hausverwaltung. Hochwertige Renovierungen und Einrichtungen realisieren wir durch spezialisierte Firmen, die zu unserer Unternehmensgruppe gehören und uns als langjährige, professionelle Partner zur Seite stehen.
Standort auf der Karte
Komfortable Familienhäuser in einem neuen Gebäude neben dem Blvd. "Zar Boris III."
Lagera / Sofia / Sofia / Bulgarien Karte
Immobilienpreise: 175 000 - 450 000 €
Preise pro m²: 1 997 - 2 234 €/m 2
VERKAUF
PROJEKT
Ein-Zimmer-Wohnung mit Garten und Garage neben dem Park im Stadtteil "Gorna Banya".
Gorna Banya / Sofia / Sofia / Bulgarien Karte
Bereich: 73.20 m 2
Preis: 218 525 € /// 2 985 €/m 2
Boutique building at the foot of Vitosha mountain - Boyana quarter
Boyana / Sofia / Sofia / Bulgarien Karte
Immobilienpreise: 170 181 - 712 380 € (ohne MwSt.)
Preise pro m²: 2 600 - 2 900 €/m 2 (ohne MwSt.)
Wählen Sie diese Option und wir benachrichtigen Sie per E-Mail, wenn sich der Angebotsstatus ändert, zum Beispiel:
• Preisänderung;
• Die Immobilie hat ein Sonderangebot abgegeben;
• Die Immobilie ist reserviert oder verkauft;
• Weitere Neuigkeiten im Zusammenhang mit der Immobilie.
• Die Immobilie wird aus dem Verkauf genommen;
Sie können Benachrichtigungen jederzeit problemlos abbestellen.• Änderungen der Angebotsbedingungen;
• Änderung der Investitionshöhe;
• Der Investitionsgegenstand wurde vollständig realisiert;
• Das Angebot ist abgelaufen.
Sie können sich ganz einfach abmelden, wenn Sie in Zukunft entscheiden, dass Sie dieses Angebot nicht mehr nutzen möchten.
Um absolut korrekte Informationen über die im Projekt verfügbaren, leerstehenden Immobilien und deren aktuelle Preise zu erhalten, kontaktieren Sie bitte unser Büro unter den angegebenen Kontaktdaten.
Wir bemühen uns nach Kräften, unsere Preislisten stets aktuell und korrekt zu halten, doch angesichts der Vielzahl neuer Projekte in unserem Katalog und der stark schwankenden Verkaufszahlen ist dies oft unmöglich.
Vielen Dank für Ihr Verständnis!



...Als ausgewiesener Spezialist arbeitet Stonehard PREMIER an der Marktpositionierung und dem Vertrieb zahlreicher Neubauprojekte, deren Umsetzung uns führende Unternehmergesellschaften in Bulgarien und im Ausland anvertraut haben...