Dvosoban apartman u inovativnoj, energetski efikasnoj stambenoj zgradi sa fotonaponskom instalacijom
REF#SOF 129081
/
Jednosobni stanovi
/
Prodaja
/
Sofia
/
Manastirski Livadi - East
/
Sofia
/
Бугарска
na karti
Cena:
206 324 € (2 486 €/m2)
*Ukazane cene i dostupnosti od slobodnih nekretnina u projektu su indikativne. Za aktuelne cenovne informacije, molimo vas da nas kontaktirate!
Ref. Broj: SOF 129081 / 4197
Lokacija: Manastirski Livadi - East / Sofia karta
Tip na zgrada/kompleks: Stambeni
RZP na zgradi/kompleksu: 2 896м²
Površine stanova: 83 m2
Tipovi nekretnina u zgradi/kompleksu: Jednosobni stanovi
Ref. Broj: SOF 129081 / 4197
Lokacija: Manastirski Livadi - East / Sofia
Tip na zgrada/kompleks: Stambeni
Klas na zgradi/kompleksu:
RZP na zgradi/kompleksu: 2 896м²
Površine stanova: 83 m2
Tipovi nekretnina u zgradi/kompleksu: Jednosobni stanovi
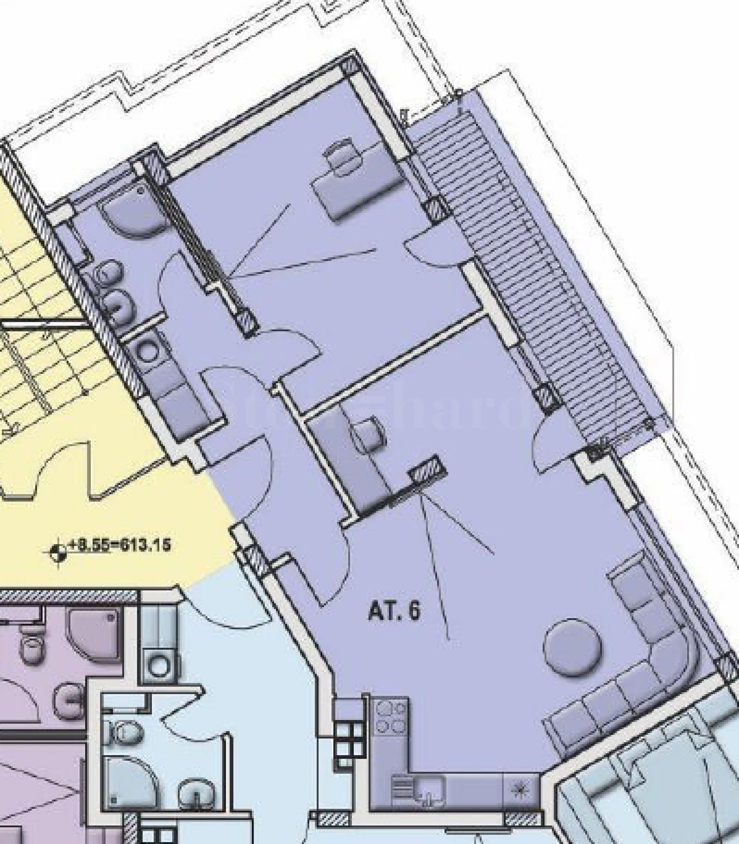
Apartman površine 85.25 kv.m sastoji se od predsoblja, dnevnog boravka sa kuhinjskim blokom, spavaće sobe, kupatila sa toaletom i terase na koju se izlazi iz dnevnog boravka i spavaće sobe.
Zgrada je šestospratna i raspolaže sa ukupno 9 apartmana i 6 ateljea, projektovanih sa mišlju o energetskoj efikasnosti i komforu. Obezbeđeno je 15 parking mesta, kao i 8 podruma za dodatnu udobnost stanara. Zgrada je gasifikovana, a grejanje je rešeno ugrađenom instalacijom sa radijatorima u svakoj prostoriji.
Fasada je izvedena od visokokvalitetnih materijala, uključujući fotonaponski sistem koji generiše zelenu energiju za zajedničke delove i domaćinstva, obezbeđujući niže račune za struju i veću energetsku nezavisnost.
Stanovi su sa prostranim i svetlim prostorijama, zahvaljujući francuskim prozorima i visokom plafonu od 2.70 m. Spoljna stolarija je petokomorna PVC sa dvostrukim staklom (24 mm) sa tehnologijom „4 sezone“, što doprinosi odličnoj toplotnoj i zvučnoj izolaciji.
Za udobnost budućih vlasnika predviđeno je zajedničko dvorište, koje je opremljeno sistemom za navodnjavanje, a dvorišta koja pripadaju nekim stanovima su odvojena diskretnom drvenom ogradom.
Zgrada je potpuno završena i poseduje Akt 16, što omogućava trenutni useljenje novih vlasnika.
Prednosti lokacije:
Na pešačkoj udaljenosti od:
Južni park;
Prodavnice prehrambenih lanaca;
Paradise Center, Bulgaria Mall;
Škole i vrtići;
Medicinski centri i sportski kompleksi.
Gradski prevoz:
Autobusi;
Trolejbusi;
Sa vezom ka Metro stanici (linija M3).
Očekujemo Vaš upit
Ako želite da organizujete razgledanje nekretnine koja Vas interesuje ili da posetite neki od naših kancelarija, molimo Vas da nas kontaktirate. Da biste dogovorili dan i vreme za sastanak ili razgledanje, možete pozvati broj telefona naveden u oglasu ili poslati upit putem elektronske pošte. Naš konsultant će Vam pomoći sa svim potrebnim detaljima i dogovoriti Vam pogodno vreme.
Tražite odgovarajuću nekretninu za sebe?
Ne oklevajte da nas kontaktirate i ispričate nam o Vašim potrebama i preferencijama. Naš tim će sprovesti detaljno istraživanje tržišta kako bi Vam ponudio nekretnine koje tačno odgovaraju Vašim kriterijumima. Raspolažemo izuzetnim portfoliom visokokvalitetnih i ekskluzivnih stanova, koji su dostupni samo našim klijentima. Da biste bili prvi koji će dobiti informacije o njima – kontaktirajte nas.
Dodatne usluge
Kao cenjeni klijent naše kompanije, imaćete privilegiju da besplatno koristite usluge našeg iskusnog pravnog tima. Pored toga, nudimo kompleksna rešenja koja uključuju imovinsko osiguranje, besplatne finansijske konsultacije, kao i povoljne uslove za finansiranje. Naše usluge se prostiru i na oblast preprodaje, izdavanja u zakup i upravljanja nekretninama. Obezbeđujemo visokokvalitetne radove na renoviranju i opremanju preko specijalizovanih firmi koje su deo naše korporativne grupe i naši dugogodišnji profesionalni partneri.
Mesto na karti
Нови стамбени пројекат од три зграде са различитим типовима станова у округу „Дианабад“
Dianabad / Sofia / Sofia / Бугарска karta
Cene na imovinu: 176 199 - 450 565 €
Cene po m²: 2 913 - 3 339 €/m2
Novostrojeća se zgrada u podnožju Vitoše
Boyana / Sofia / Sofia / Бугарска karta
Cene na imovinu: 299 640 - 400 125 €
Cene po m²: 3 000 - 3 300 €/m2
PRODAŽBA
PROJEKAT
Prostoran, dvosoban apartman za prodaju do Mall Paradise
Krustova Vada / Sofia / Sofia / Бугарска karta
Plošča: 71 m2
Cena: 304 000 € /// 4 282 €/m2
Izaberite ovu opciju i obaveštavaćemo Vas putem imejla o promenama statusa ponude, na primer:
• Promena cene;
• Nekretnina je ušla u promotivnu ponudu;
• Nekretnina je rezervisana ili prodata;
• Druge novosti vezane za nekretninu.
• Nekretnina je skinuta sa prodaje;
Možete se lako odjaviti sa notifikacija kad god poželite.• Promene uslova ponude;
• Promena iznosa investicije;
• Predmet investicije je u potpunosti realizovan;
• Važenje ponude je isteklo.
Možete se lako odjaviti ako u budućnosti odlučite da više ne želite da pratite ovu ponudu.
Da biste dobili apsolutno tačne informacije o slobodnim nekretninama dostupnim za prodaju u projektu i njihovim aktuelnim cenama, molimo vas da kontaktirate našu kancelariju na navedene kontakt informacije.
Trudimo se da naše cenovnike održavamo apsolutno aktuelnim i tačnim, ali često to nije moguće zbog velikog broja novih projekata u našem katalogu i snažne dinamike prodaje.
Hvala vam na razumevanju!



...Kao dokazani stručnjak Stonehard PREMIER radi na tržišnom pozicioniranju i prodaji brojnih projekata novogradnje, čija je realizacija poverena od strane vodećih preduzetničkih kompanija u Bugarskoj i inostranstvu...