Dvoupokojový byt v inovativní, energeticky úsporné obytné budově s fotovoltaickou instalací
REF#SOF 129081
/
Jednopokojov? byty
/
Prodej
/
Sofia
/
Manastirski Livadi - East
/
Sofia
/
Bulharsko
na mapě
Cena:
206 324 € (2 486 €/m²)
*Ceny a dostupnost volných nemovitostí v projektu jsou orientační. Pro aktuální informace o cenách nás prosím kontaktujte!
Referenční číslo: SOF 129081 / 4197
Umístění: Manastirski Livadi - East / Sofia mapa
Typ budovy/komplexu: Obytný
Celková plocha budovy/komplexu: 2 896м²
Obytné oblasti: 83 m²
Typy nemovitostí v budově/komplexu: Jednopokojov? byty
Referenční číslo: SOF 129081 / 4197
Umístění: Manastirski Livadi - East / Sofia
Typ budovy/komplexu: Obytný
Třída budovy/komplexu:
Celková plocha budovy/komplexu: 2 896м²
Obytné oblasti: 83 m²
Typy nemovitostí v budově/komplexu: Jednopokojov? byty
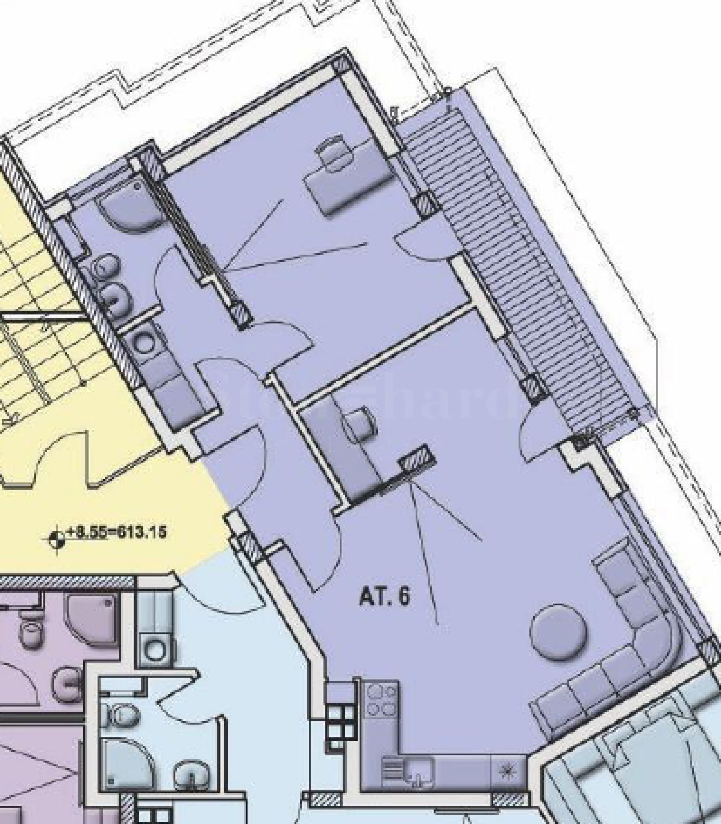
Byt o rozloze 85,25 m² se skládá z předsíně, obývacího pokoje s kuchyňským koutem, ložnice, koupelny s toaletou a terasy, na kterou je přístup z obývacího pokoje i ložnice.
Budova je šestipodlažní a disponuje celkem 9 byty a 6 ateliéry, navrženými s ohledem na energetickou efektivitu a komfort. K dispozici je 15 parkovacích míst a 8 sklepů pro větší pohodlí obyvatel. Budova je plynofikovaná a vytápění je řešeno instalací s radiátory v každé místnosti.
Fasáda je provedena z vysoce kvalitních materiálů, včetně fotovoltaického systému, který generuje zelenou energii pro společné prostory a domácnosti, což zajišťuje nižší účty za elektřinu a větší energetickou nezávislost.
Byty mají prostorné a světlé místnosti díky francouzským oknům a vysokému stropu o výšce 2,70 m. Vnější rámování je pětikomorové PVC s dvojitým zasklením (24 mm) s technologií „4 sezóny“, což přispívá k vynikající tepelné a zvukové izolaci.
Pro pohodlí budoucích majitelů je k dispozici společný dvůr vybavený zavlažovacím systémem a přilehlé dvory některých bytů jsou odděleny diskrétním dřevěným plotem.
Budova je plně dokončena a má kolaudační rozhodnutí (Akt 16), což umožňuje okamžité nastěhování nových majitelů.
Výhody lokality:
V pěší vzdálenosti od:
Jižní park;
Potravinové řetězce;
Paradise Center, Bulgaria Mall;
Školy a mateřské školky;
Lékařská centra a sportovní komplexy.
Městská doprava:
Autobusy;
Trolejbusy;
S přestupem na stanici metra (linka M3).
Očekáváme Vaši poptávku
Pokud si přejete zorganizovat prohlídku nemovitosti, která Vás zajímá, nebo navštívit některou z našich kanceláří, prosím kontaktujte nás. Pro domluvení dne a času schůzky nebo prohlídky můžete zavolat na telefon uvedený v inzerátu nebo zaslat poptávku e-mailem. Náš konzultant Vám poskytne všechny potřebné informace a domluví Vám vhodný termín.
Hledáte vhodnou nemovitost pro Vás?
Neváhejte nás kontaktovat a sdělit nám Vaše potřeby a preference. Náš tým provede důkladný průzkum trhu, aby Vám nabídl nemovitosti, které přesně odpovídají Vašim kritériím. Disponujeme vynikajícím portfoliem vysoce kvalitních a exkluzivních bytů, které jsou dostupné pouze našim klientům. Abyste byli mezi prvními, kdo o nich získají informace – kontaktujte nás.
Další služby
Jako cenný klient naší společnosti budete mít privilegium využívat zcela zdarma služby našeho zkušeného právního týmu. Navíc nabízíme komplexní řešení zahrnující pojištění majetku, bezplatné finanční poradenství a výhodné podmínky financování. Naše služby zahrnují také oblast přeprodeje, pronájmu a správy nemovitostí. Zajišťujeme vysoce kvalitní opravárenské práce a vybavení prostřednictvím specializovaných firem, které jsou součástí naší korporátní skupiny a jsou našimi dlouholetými profesionálními partnery.
Poloha na mapě
PRODEJ
PROJEKT
Dvoupokojový byt s krytým parkovacím místem v kv. "Malinova dolina"
Malinova Dolina / Sofia / Sofia / Bulharsko mapa
Plocha: 72.53 m²
Cena: 135 250 € /// 1 865 €/m²
Nový rezidenční projekt tří budov s různými typy bytů v okrese "Dianabad"
Dianabad / Sofia / Sofia / Bulharsko mapa
Ceny nemovitostí: 176 199 - 450 565 €
Ceny za m²: 2 913 - 3 339 €/m²
Novostavba na úpatí Vitoshy
Boyana / Sofia / Sofia / Bulharsko mapa
Ceny nemovitostí: 299 640 - 400 125 €
Ceny za m²: 3 000 - 3 300 €/m²
Vyberte tuto možnost a my vás e-mailem upozorníme na jakékoli změny stavu nabídky, například:
• Změna ceny;
• Nemovitost se zapojila do propagační nabídky;
• Nemovitost je rezervována nebo prodána;
• Další novinky týkající se nemovitosti.
• Nemovitost je stažena z prodeje;
Z odběru oznámení se můžete kdykoli snadno odhlásit.• Změny podmínek nabídky;
• Změna výše investice;
• Předmět investice byl plně realizován;
• Nabídka vypršela.
Pokud se v budoucnu rozhodnete, že tuto nabídku již nechcete sledovat, můžete se snadno odhlásit.
Chcete-li získat naprosto přesné informace o volných nemovitostech k prodeji v projektu a jejich aktuálních cenách, kontaktujte prosím naši kancelář na uvedených kontaktních údajích.
Snažíme se udržovat naše ceníky naprosto aktuální a správné, ale vzhledem k velkému počtu nových projektů v našem katalogu a velmi dynamickému prodeji je to často nemožné.
Děkujeme za pochopení!



...Jako osvědčený specialista pracuje Stonehard PREMIER na tržním umístění a prodeji řady nových stavebních projektů, jejichž realizaci nám svěřily přední podnikatelské společnosti v Bulharsku i v zahraničí...