Art.-Nr. Nummer: SOF-126323 / 2713
Standort: Krustova Vada / Sofia Karte
Gebäude-/Komplextyp: Wohnen
Gebäude-/Komplexklasse: Luxuriös
Wohngebiete: 174.29 m 2
Arten von Immobilien im Gebäude/Komplex: 4-Raum-Apartments
Art.-Nr. Nummer: SOF-126323
Standort: Krustova Vada / Sofia
Gebäude-/Komplextyp: Жилищен
Gebäude-/Komplexklasse: Luxuriös
Wohngebiete: 174.29 m 2
Arten von Immobilien im Gebäude/Komplex: 4-Raum-Apartments
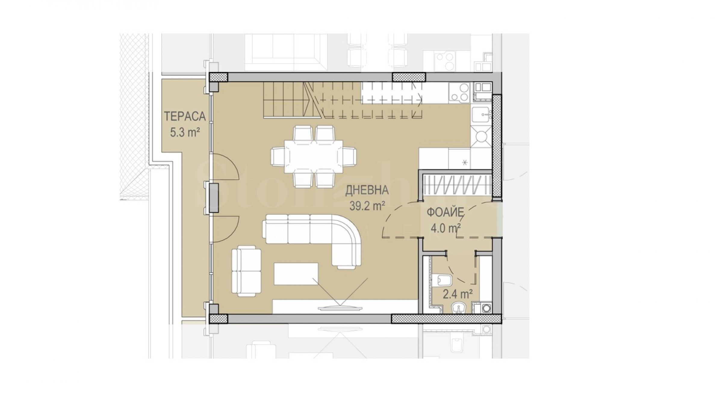
Im ersten Stock finden Sie ein Wohnzimmer mit Kochnische und ein Esszimmer (39,2 m²) mit Zugang zu einer sonnigen Terrasse mit Blick auf die Stadt und den Vitosha-Berg. Die zweite Etage der Wohnung ist ein „Nacht“-Bereich und verfügt über drei Schlafzimmer, die jeweils über einen französischen Balkon verfügen. Das Hauptschlafzimmer bietet den exklusiven Vorteil eines hellen und geräumigen Kleiderschranks (13,6 m²) und eines eigenen Badezimmers mit Toilette. Auf dieser Etage gibt es ein weiteres Badezimmer mit Toilette und einen großen Raum im Flur für die Installation eines Kleiderschranks, einer Waschmaschine und eines Trockenraums.
Das Objekt erhielt Mitte Juni 2023 das Gesetz 16.
Für das Projekt
Die attraktive Lage in unmittelbarer Nähe des U-Bahnhofs Vitosha und der Paradise Mall, zeitlose neoklassizistische Architektur und die Nutzung von Gebäuden
Materialien und Technologien führender globaler Marken verwandeln diesen bemerkenswerten geschlossenen Komplex in ein luxuriöses, ökologisch nachhaltiges und sicheres Wohnumfeld der Spitzenklasse.
Der aus fünf Gebäuden bestehende Komplex mit einer bebauten Fläche von 40.209 Quadratmetern wurde mit einer einheitlichen Raum- und Kommunikationslösung konzipiert. Die vier Wohngebäude („A“, „B“, „C“ und „D“) liegen am Rande des Feldes und bilden einen gemeinsamen innerstädtischen Raum, der als Park ausgewiesen und bewohnerfreundlich gestaltet wird und ihre Kinder. Ein Gleichgewicht zwischen Grünflächen, Rastplätzen und Gassen bietet einen Ort für völlige Entspannung, da in der Mitte des Komplexes der Bau eines Spielplatzes für Kinder im Alter von 2 bis 13 Jahren geplant ist. Er wird von viel Grün umgeben sein und allen modernen Anforderungen gerecht werden Anforderungen an Funktionalität und Sicherheit.
Das Gebäude „G“ hingegen ist vollständig unterirdisch und wird über eine unterirdische Straße erreicht, die an beiden Enden mit zwei in beide Richtungen führenden Rampen endet.
Es ermöglicht den Transport- und Kommunikationszugang zu den Tiefgaragen und Stellplätzen, die jeweils mit den Eingängen der Gebäude verbunden sind. Einige von ihnen sind auch mit Stauräumen ausgestattet.
Der Komplex verfügt außerdem über ein Spa-Center mit Innenpool und Fitnessstudio sowie eine Rezeption mit Concierge-Funktion, die den zukünftigen Eigentümern alle 5-Sterne-Annehmlichkeiten, Gemütlichkeit und Wohnkomfort bieten wird.
Spa-Komplex mit Pool
Im Gebäude „B“ sind ein 19-Meter-Innenpool, ein Spa-Center und ein Fitnessstudio geplant. In einer luxuriösen Umgebung und modernen Annehmlichkeiten können sich die Bewohner der Anlage und ihre Gäste nach dem stressigen Alltag entspannen.
Der Komplex ist umzäunt und verfügt über einen 24-Stunden-Sicherheitsdienst und ein speziell entwickeltes Sicherheitssystem. Der Zugang zu den Gebäuden für Fußgänger und Fahrzeuge erfolgt von zwei Standorten aus.
In unmittelbarer Nähe des Komplexes befinden sich:
U-Bahnstation „Vitosha“ sowie Bus- und Straßenbahnhaltestellen;
Paradise Mall und Billa;
Kindergärten und Schulen – International Business School, Kindergarten der British School of Sofia, Privatschule „Peter Beron“;
Sportanlagen – Silver City Sport Complex, MG Sport Tennis Club, Sportzentrum „Pulev“;
Krankenhäuser – Acibadem City Clinic Tokuda Hospital, VITA Hospital, Robert Koch Medical Center;
Parks und Gärten – Zoo, Jagdpark, Südpark, Vitosha-Naturpark, Botanischer Garten.
Technische Eigenschaften:
Konstruktion – monolithische Stahlbetonskelettkonstruktion ohne Träger mit Beton der Klasse C20/25 und Bewehrungsstahl der Klasse B500B. Deckenstärke 22 cm, Aufbauhöhe der Böden – 295 cm. Außenwände aus Wienerberger Porotherm 25 NF Ziegeln. Innenliegende Trennwände aus Wienerberger Porotherm 12 NF + 2 cm Steinwolle + 12 NF Ziegel für bessere Wärme- und Schalldämmung zwischen einzelnen Räumen.
Fassade – hinterlüftete, abgehängte Fassade; Wärmedämmung aus 10 cm Steinwolle. Dampfdurchlässige, wasserdichte und winddichte Membran. Endbeschichtungskombination aus Vratchan-Kalkstein „Krema extra“ und Travertin. Außenbeleuchtung nach einem Architekturprojekt.
Terrassen und Dächer – Abdichtungssystem mit Materialien der deutschen Firma „KÖSTER“. Abdeckungen und Beschläge aus hochwertigem Kupferblech für Steil- und Ovaldächer.
Klempnerarbeiten – Installation von Trinkwasser- und Hauswasserversorgungsanlagen. Feuerfeste Sanitärinstallation aus verzinkten Rohren. Einleitung von Abwasser in das Straßenkanalnetz. Gebäudeabwasserinstallation aus Polypropylen-Dreischichtrohren mit schalldämmender Einlage. Hängende Entwässerung unter der Bodenplatte des ersten Kellergeschosses aus dickwandigen PVC-Dämpfungsrohren. Alle abgehängten Teile der Anlage sind mit mikroporösem Gummi mit einer Dicke von 1 cm isoliert. Druckkanal aus hochdichten Polyethylenrohren, PN10.
HVAC – verlegte Gasleitungen zum Auslass für die Installation eines Gaskessels in der Wohnung und Leitungen zum Auslass für die Installation einer Klimaanlage. Ein separater Ort für externe Einheiten der Klimaanlagen in jeder Wohnung. Notlüftungsanlage in den Treppenhäusern und Aufzugsschächten, Absauganlage zur Absaugung der verunreinigten Luft in den Kellergeschossen.
Aufzüge – die neueste Generation von Aufzugsanlagen des Weltmarktführers „Schindler“ mit geräuschlosem Betriebsmodus und reduziertem Energieverbrauch. Verbesserte Fahrqualität und mehr Sicherheit.
Bodenbeläge und Verkleidungen
Wohnungen: Fußbodenwärme- und Schalldämmung aus Steinwolle in Wohn- und Schlafräumen mit abschließender Beschichtung aus bewehrtem Zementsandestrich. Maschinell verlegter feiner Gips- und Kalkzementputz an Wänden und Decken.
Lobby: Fußbodenwärme- und Schalldämmung aus Steinwolle mit verstärktem Zementsandestrich und Endbeschichtung aus exotischem Naturstein.
Bodenlobbys: Bodenwärme- und Schalldämmung aus Steinwolle mit armiertem Zementsandestrich und Endbeschichtung aus hochwertigem Teppich, in Kombination mit geprägter Glastextiltapete – entsprechend einem Innenprojekt.
Treppenhäuser: Zement-Sand-Estrich und Endbeschichtung aus Naturstein – Marmor, in Kombination mit Vorderwandverkleidung aus Gipskarton und Endbeschichtung aus hochwertigem Latex an Wänden und Decken.
Parkplatz: Hochbeständiger polierter Beton mit Metallfasern.
Fenster – Holzfenster mit dreischichtig verleimtem ausgewähltem Profil „Münchinger“ Deutschland, mit Profilstärke 78 mm. Deutsche einbruchhemmende „GU“-Beschläge. Fensterdichtstoff „Primo“ GmbH, Oberflächenlackierung in drei Schichten der deutschen Firma „Rhenocoll“. „Gutmann“-Durchlass mit hervorragendem Wasserdurchfluss und einer Rutsche zum Schutz des empfindlichsten Holzteils vor Feuchtigkeit. Dreifachverglasung 34 mm, mit einem Wärmeleitkoeffizienten von 0,7 UgW/m2K.
Türen – hochwertige gepanzerte italienische „Gasperotti“-Eingangstüren zu jeder Wohnung.
Installationen – Stromversorgung des Gebäudes über zwei neue unabhängige Umspannwerke, die an das Energiesystem angeschlossen sind. Hauptstromzählertafel /GET/, befindet sich im Erdgeschoss. Hochwertige Wohnungsschaltanlagen aus Kunststoff, nicht brennbar, mit transparenter Öffnungstür. Installation von SVT-Kabeln. In den Wohnungen erfolgt die Installation mit PVVM-Kabeln, die verdeckt unter dem Putz verlegt werden. Automatische Brandmeldeanlage für Keller (Auflagen -2,95 und -5,90 m) und in den Gemeinschaftsbereichen des Gebäudes (im Erdgeschoss und Obergeschoss). Blitzschutz- und Erdungsanlagen. Ladestation für Elektroautos.
Internetinstallation und TV-Installation an einem Punkt in der Wohnung. Video-Gegensprechanlage und konventionelles Videoüberwachungssystem basierend auf DVR-Geräten mit Überwachungs- und Aufzeichnungssoftware, einer Reihe von Monitoren an der Sicherheit und am Empfang. Verkabelung jeder Wohnung mit der Möglichkeit von SOT.
Der Komplex ist das Werk zuverlässiger, renommierter Unternehmen mit umfassender Erfahrung im Baubereich:
Das Bau- und Investitionsunternehmen hat sich als Maßstab für die Qualität und nachhaltige Ausführung hochwertiger Wohn- und öffentlicher Gebäude sowie Objekte im Bereich des Industrie- und Infrastrukturbaus etabliert. Die zahlreichen Auszeichnungen und Anerkennungen bei nationalen und internationalen Wettbewerben zeugen von der kompromisslosen Herangehensweise bei der Auswahl und Umsetzung der Objekte aus dem Portfolio des Unternehmens, denn ein besonderes Merkmal ist der Einsatz und die Umsetzung innovativer Baupraktiken, Technologien und Materialien nach Weltbeispielen im Bereich Bauwesen.
Der Designer der Website ist eines der größten Architekturbüros in Bulgarien, das auf dem Markt unseres Landes bekannt ist. Seit nunmehr 20 Jahren beweist es seine Professionalität im Bereich Stadtplanung, umfassende Forschung und Gestaltung von Wohnanlagen, Mehrfamilien- und Einfamilienhäusern, Hotels und Hotelkomplexen, Firmen-, Gewerbe- und Industriegebäuden. Das Unternehmen verfügt auch über Erfahrung in der Zusammenarbeit mit ausländischen Architekturbüros.
Der Investor des Projekts ist ein neu gegründetes Unternehmen, dessen Haupttätigkeit die Planung und der Bau von Wohngebäuden ist. Der vorgestellte Komplex ist der erste geschlossene Wohnkomplex, den das Unternehmen baut.
Wartungsgebühr:
- 1,00 €/m² Wohnfläche inklusive Gemeinschaftsräume;
- 0,40 €/m² Fläche Garagen und Stellplätze mit Gemeinschaftsteilen inklusive.
Alle Preise verstehen sich exklusive Mehrwertsteuer. Die Wartung umfasst 24-Stunden-Sicherheitsdienst und Rezeption, Concierge, Reinigungskosten, Aufzugswartung, Grünflächen, Strom, Wasser und allgemeine Reinigungskosten, Tiefgaragenreinigung und Schneeräumung.
Besichtigungen
Wir können eine Besichtigung der Immobilie zu einer für Sie passenden Zeit vereinbaren. Bitte kontaktieren Sie den für dieses Angebot zuständigen Makler und teilen Sie ihm die von Ihnen gewünschte Uhrzeit mit.
Reservierung der Immobilie
Gegen eine nicht erstattete Anzahlung in Höhe von 2.000 Euro wird die Immobilie reserviert. Weitere Besichtigungen mit anderen Käufern finden nicht statt und Makler beginnt mit der Vorbereitung der Dokumente für den Abschluss des endgültigen Vertrags für Eigentumsübertragung. Bitte kontaktieren Sie den zuständigen Makler für mehr Information über den Kauf einer Immobilie und Zahlungsarten.
Zusatzleistungen und Kundendienst
Wir sind ein seriöses Unternehmen und werden nicht nur während des Kaufs, sondern auch danach bei Ihnen sein und Ihnen auf Ihren Wunsch zusätzliche Dienstleistungen anbieten, um die neu gekaufte Immobilie vollständig und nahtlos zu nutzen. Die Dienstleistungen, die wir anbieten können, umfassen die Erlangung einer Hypothekengenehmigung, eine Versicherung für bewegliche und unbewegliche Sachen, eine Lebensversicherung, eine Kranken- und Autoversicherung, Bau- und Reparaturaktivitäten, Möbel, Rechts- und Buchhaltungsdienstleistungen usw.
Bei uns können Sie nicht nur eine Immobilie mieten, sondern auch eine Reihe von Zusatzleistungen in Anspruch nehmen. Wir können Versicherungen für bewegliches und unbewegliches Vermögen, Lebensversicherungen, Kranken- und Kfz-Versicherungen, Bau- und Reparaturarbeiten, Möbel, Rechts- und Buchhaltungsdienstleistungen usw. anbieten.
Standort auf der Karte
Im ersten Stock finden Sie ein Wohnzimmer mit Kochnische und ein Esszimmer (39,2 m²) mit Zugang zu einer sonnigen Terrasse mit Blick auf die Stadt und den Vitosha-Berg. Die zweite Etage der Wohnung ist ein „Nacht“-Bereich und verfügt über drei Schlafzimmer, die jeweils über einen französischen Balkon verfügen. Das Hauptschlafzimmer bietet den exklusiven Vorteil eines hellen und geräumigen Kleiderschranks (13,6 m²) und eines eigenen Badezimmers mit Toilette. Auf dieser Etage gibt es ein weiteres Badezimmer mit Toilette und einen großen Raum im Flur für die Installation eines Kleiderschranks, einer Waschmaschine und eines Trockenraums.
Das Objekt erhielt Mitte Juni 2023 das Gesetz 16.
Für das Projekt
Die attraktive Lage in unmittelbarer Nähe des U-Bahnhofs Vitosha und der Paradise Mall, zeitlose neoklassizistische Architektur und die Nutzung von Gebäuden
Materialien und Technologien führender globaler Marken verwandeln diesen bemerkenswerten geschlossenen Komplex in ein luxuriöses, ökologisch nachhaltiges und sicheres Wohnumfeld der Spitzenklasse.
Der aus fünf Gebäuden bestehende Komplex mit einer bebauten Fläche von 40.209 Quadratmetern wurde mit einer einheitlichen Raum- und Kommunikationslösung konzipiert. Die vier Wohngebäude („A“, „B“, „C“ und „D“) liegen am Rande des Feldes und bilden einen gemeinsamen innerstädtischen Raum, der als Park ausgewiesen und bewohnerfreundlich gestaltet wird und ihre Kinder. Ein Gleichgewicht zwischen Grünflächen, Rastplätzen und Gassen bietet einen Ort für völlige Entspannung, da in der Mitte des Komplexes der Bau eines Spielplatzes für Kinder im Alter von 2 bis 13 Jahren geplant ist. Er wird von viel Grün umgeben sein und allen modernen Anforderungen gerecht werden Anforderungen an Funktionalität und Sicherheit.
Das Gebäude „G“ hingegen ist vollständig unterirdisch und wird über eine unterirdische Straße erreicht, die an beiden Enden mit zwei in beide Richtungen führenden Rampen endet.
Es ermöglicht den Transport- und Kommunikationszugang zu den Tiefgaragen und Stellplätzen, die jeweils mit den Eingängen der Gebäude verbunden sind. Einige von ihnen sind auch mit Stauräumen ausgestattet.
Der Komplex verfügt außerdem über ein Spa-Center mit Innenpool und Fitnessstudio sowie eine Rezeption mit Concierge-Funktion, die den zukünftigen Eigentümern alle 5-Sterne-Annehmlichkeiten, Gemütlichkeit und Wohnkomfort bieten wird.
Spa-Komplex mit Pool
Im Gebäude „B“ sind ein 19-Meter-Innenpool, ein Spa-Center und ein Fitnessstudio geplant. In einer luxuriösen Umgebung und modernen Annehmlichkeiten können sich die Bewohner der Anlage und ihre Gäste nach dem stressigen Alltag entspannen.
Der Komplex ist umzäunt und verfügt über einen 24-Stunden-Sicherheitsdienst und ein speziell entwickeltes Sicherheitssystem. Der Zugang zu den Gebäuden für Fußgänger und Fahrzeuge erfolgt von zwei Standorten aus.
In unmittelbarer Nähe des Komplexes befinden sich:
U-Bahnstation „Vitosha“ sowie Bus- und Straßenbahnhaltestellen;
Paradise Mall und Billa;
Kindergärten und Schulen – International Business School, Kindergarten der British School of Sofia, Privatschule „Peter Beron“;
Sportanlagen – Silver City Sport Complex, MG Sport Tennis Club, Sportzentrum „Pulev“;
Krankenhäuser – Acibadem City Clinic Tokuda Hospital, VITA Hospital, Robert Koch Medical Center;
Parks und Gärten – Zoo, Jagdpark, Südpark, Vitosha-Naturpark, Botanischer Garten.
Technische Eigenschaften:
Konstruktion – monolithische Stahlbetonskelettkonstruktion ohne Träger mit Beton der Klasse C20/25 und Bewehrungsstahl der Klasse B500B. Deckenstärke 22 cm, Aufbauhöhe der Böden – 295 cm. Außenwände aus Wienerberger Porotherm 25 NF Ziegeln. Innenliegende Trennwände aus Wienerberger Porotherm 12 NF + 2 cm Steinwolle + 12 NF Ziegel für bessere Wärme- und Schalldämmung zwischen einzelnen Räumen.
Fassade – hinterlüftete, abgehängte Fassade; Wärmedämmung aus 10 cm Steinwolle. Dampfdurchlässige, wasserdichte und winddichte Membran. Endbeschichtungskombination aus Vratchan-Kalkstein „Krema extra“ und Travertin. Außenbeleuchtung nach einem Architekturprojekt.
Terrassen und Dächer – Abdichtungssystem mit Materialien der deutschen Firma „KÖSTER“. Abdeckungen und Beschläge aus hochwertigem Kupferblech für Steil- und Ovaldächer.
Klempnerarbeiten – Installation von Trinkwasser- und Hauswasserversorgungsanlagen. Feuerfeste Sanitärinstallation aus verzinkten Rohren. Einleitung von Abwasser in das Straßenkanalnetz. Gebäudeabwasserinstallation aus Polypropylen-Dreischichtrohren mit schalldämmender Einlage. Hängende Entwässerung unter der Bodenplatte des ersten Kellergeschosses aus dickwandigen PVC-Dämpfungsrohren. Alle abgehängten Teile der Anlage sind mit mikroporösem Gummi mit einer Dicke von 1 cm isoliert. Druckkanal aus hochdichten Polyethylenrohren, PN10.
HVAC – verlegte Gasleitungen zum Auslass für die Installation eines Gaskessels in der Wohnung und Leitungen zum Auslass für die Installation einer Klimaanlage. Ein separater Ort für externe Einheiten der Klimaanlagen in jeder Wohnung. Notlüftungsanlage in den Treppenhäusern und Aufzugsschächten, Absauganlage zur Absaugung der verunreinigten Luft in den Kellergeschossen.
Aufzüge – die neueste Generation von Aufzugsanlagen des Weltmarktführers „Schindler“ mit geräuschlosem Betriebsmodus und reduziertem Energieverbrauch. Verbesserte Fahrqualität und mehr Sicherheit.
Bodenbeläge und Verkleidungen
Wohnungen: Fußbodenwärme- und Schalldämmung aus Steinwolle in Wohn- und Schlafräumen mit abschließender Beschichtung aus bewehrtem Zementsandestrich. Maschinell verlegter feiner Gips- und Kalkzementputz an Wänden und Decken.
Lobby: Fußbodenwärme- und Schalldämmung aus Steinwolle mit verstärktem Zementsandestrich und Endbeschichtung aus exotischem Naturstein.
Bodenlobbys: Bodenwärme- und Schalldämmung aus Steinwolle mit armiertem Zementsandestrich und Endbeschichtung aus hochwertigem Teppich, in Kombination mit geprägter Glastextiltapete – entsprechend einem Innenprojekt.
Treppenhäuser: Zement-Sand-Estrich und Endbeschichtung aus Naturstein – Marmor, in Kombination mit Vorderwandverkleidung aus Gipskarton und Endbeschichtung aus hochwertigem Latex an Wänden und Decken.
Parkplatz: Hochbeständiger polierter Beton mit Metallfasern.
Fenster – Holzfenster mit dreischichtig verleimtem ausgewähltem Profil „Münchinger“ Deutschland, mit Profilstärke 78 mm. Deutsche einbruchhemmende „GU“-Beschläge. Fensterdichtstoff „Primo“ GmbH, Oberflächenlackierung in drei Schichten der deutschen Firma „Rhenocoll“. „Gutmann“-Durchlass mit hervorragendem Wasserdurchfluss und einer Rutsche zum Schutz des empfindlichsten Holzteils vor Feuchtigkeit. Dreifachverglasung 34 mm, mit einem Wärmeleitkoeffizienten von 0,7 UgW/m2K.
Türen – hochwertige gepanzerte italienische „Gasperotti“-Eingangstüren zu jeder Wohnung.
Installationen – Stromversorgung des Gebäudes über zwei neue unabhängige Umspannwerke, die an das Energiesystem angeschlossen sind. Hauptstromzählertafel /GET/, befindet sich im Erdgeschoss. Hochwertige Wohnungsschaltanlagen aus Kunststoff, nicht brennbar, mit transparenter Öffnungstür. Installation von SVT-Kabeln. In den Wohnungen erfolgt die Installation mit PVVM-Kabeln, die verdeckt unter dem Putz verlegt werden. Automatische Brandmeldeanlage für Keller (Auflagen -2,95 und -5,90 m) und in den Gemeinschaftsbereichen des Gebäudes (im Erdgeschoss und Obergeschoss). Blitzschutz- und Erdungsanlagen. Ladestation für Elektroautos.
Internetinstallation und TV-Installation an einem Punkt in der Wohnung. Video-Gegensprechanlage und konventionelles Videoüberwachungssystem basierend auf DVR-Geräten mit Überwachungs- und Aufzeichnungssoftware, einer Reihe von Monitoren an der Sicherheit und am Empfang. Verkabelung jeder Wohnung mit der Möglichkeit von SOT.
Der Komplex ist das Werk zuverlässiger, renommierter Unternehmen mit umfassender Erfahrung im Baubereich:
Das Bau- und Investitionsunternehmen hat sich als Maßstab für die Qualität und nachhaltige Ausführung hochwertiger Wohn- und öffentlicher Gebäude sowie Objekte im Bereich des Industrie- und Infrastrukturbaus etabliert. Die zahlreichen Auszeichnungen und Anerkennungen bei nationalen und internationalen Wettbewerben zeugen von der kompromisslosen Herangehensweise bei der Auswahl und Umsetzung der Objekte aus dem Portfolio des Unternehmens, denn ein besonderes Merkmal ist der Einsatz und die Umsetzung innovativer Baupraktiken, Technologien und Materialien nach Weltbeispielen im Bereich Bauwesen.
Der Designer der Website ist eines der größten Architekturbüros in Bulgarien, das auf dem Markt unseres Landes bekannt ist. Seit nunmehr 20 Jahren beweist es seine Professionalität im Bereich Stadtplanung, umfassende Forschung und Gestaltung von Wohnanlagen, Mehrfamilien- und Einfamilienhäusern, Hotels und Hotelkomplexen, Firmen-, Gewerbe- und Industriegebäuden. Das Unternehmen verfügt auch über Erfahrung in der Zusammenarbeit mit ausländischen Architekturbüros.
Der Investor des Projekts ist ein neu gegründetes Unternehmen, dessen Haupttätigkeit die Planung und der Bau von Wohngebäuden ist. Der vorgestellte Komplex ist der erste geschlossene Wohnkomplex, den das Unternehmen baut.
Wartungsgebühr:
- 1,00 €/m² Wohnfläche inklusive Gemeinschaftsräume;
- 0,40 €/m² Fläche Garagen und Stellplätze mit Gemeinschaftsteilen inklusive.
Alle Preise verstehen sich exklusive Mehrwertsteuer. Die Wartung umfasst 24-Stunden-Sicherheitsdienst und Rezeption, Concierge, Reinigungskosten, Aufzugswartung, Grünflächen, Strom, Wasser und allgemeine Reinigungskosten, Tiefgaragenreinigung und Schneeräumung.
Besichtigungen
Wir können eine Besichtigung der Immobilie zu einer für Sie passenden Zeit vereinbaren. Bitte kontaktieren Sie den für dieses Angebot zuständigen Makler und teilen Sie ihm die von Ihnen gewünschte Uhrzeit mit.
Reservierung der Immobilie
Gegen eine nicht erstattete Anzahlung in Höhe von 2.000 Euro wird die Immobilie reserviert. Weitere Besichtigungen mit anderen Käufern finden nicht statt und Makler beginnt mit der Vorbereitung der Dokumente für den Abschluss des endgültigen Vertrags für Eigentumsübertragung. Bitte kontaktieren Sie den zuständigen Makler für mehr Information über den Kauf einer Immobilie und Zahlungsarten.
Zusatzleistungen und Kundendienst
Wir sind ein seriöses Unternehmen und werden nicht nur während des Kaufs, sondern auch danach bei Ihnen sein und Ihnen auf Ihren Wunsch zusätzliche Dienstleistungen anbieten, um die neu gekaufte Immobilie vollständig und nahtlos zu nutzen. Die Dienstleistungen, die wir anbieten können, umfassen die Erlangung einer Hypothekengenehmigung, eine Versicherung für bewegliche und unbewegliche Sachen, eine Lebensversicherung, eine Kranken- und Autoversicherung, Bau- und Reparaturaktivitäten, Möbel, Rechts- und Buchhaltungsdienstleistungen usw.
Bei uns können Sie nicht nur eine Immobilie mieten, sondern auch eine Reihe von Zusatzleistungen in Anspruch nehmen. Wir können Versicherungen für bewegliches und unbewegliches Vermögen, Lebensversicherungen, Kranken- und Kfz-Versicherungen, Bau- und Reparaturarbeiten, Möbel, Rechts- und Buchhaltungsdienstleistungen usw. anbieten.
Im ersten Stock finden Sie ein Wohnzimmer mit Kochnische und ein Esszimmer (39,2 m²) mit Zugang zu einer sonnigen Terrasse mit Blick auf die Stadt und den Vitosha-Berg. Die zweite Etage der Wohnung ist ein „Nacht“-Bereich und verfügt über drei Schlafzimmer, die jeweils über einen französischen Balkon verfügen. Das Hauptschlafzimmer bietet den exklusiven Vorteil eines hellen und geräumigen Kleiderschranks (13,6 m²) und eines eigenen Badezimmers mit Toilette. Auf dieser Etage gibt es ein weiteres Badezimmer mit Toilette und einen großen Raum im Flur für die Installation eines Kleiderschranks, einer Waschmaschine und eines Trockenraums.
Das Objekt erhielt Mitte Juni 2023 das Gesetz 16.
Für das Projekt
Die attraktive Lage in unmittelbarer Nähe des U-Bahnhofs Vitosha und der Paradise Mall, zeitlose neoklassizistische Architektur und die Nutzung von Gebäuden
Materialien und Technologien führender globaler Marken verwandeln diesen bemerkenswerten geschlossenen Komplex in ein luxuriöses, ökologisch nachhaltiges und sicheres Wohnumfeld der Spitzenklasse.
Der aus fünf Gebäuden bestehende Komplex mit einer bebauten Fläche von 40.209 Quadratmetern wurde mit einer einheitlichen Raum- und Kommunikationslösung konzipiert. Die vier Wohngebäude („A“, „B“, „C“ und „D“) liegen am Rande des Feldes und bilden einen gemeinsamen innerstädtischen Raum, der als Park ausgewiesen und bewohnerfreundlich gestaltet wird und ihre Kinder. Ein Gleichgewicht zwischen Grünflächen, Rastplätzen und Gassen bietet einen Ort für völlige Entspannung, da in der Mitte des Komplexes der Bau eines Spielplatzes für Kinder im Alter von 2 bis 13 Jahren geplant ist. Er wird von viel Grün umgeben sein und allen modernen Anforderungen gerecht werden Anforderungen an Funktionalität und Sicherheit.
Das Gebäude „G“ hingegen ist vollständig unterirdisch und wird über eine unterirdische Straße erreicht, die an beiden Enden mit zwei in beide Richtungen führenden Rampen endet.
Es ermöglicht den Transport- und Kommunikationszugang zu den Tiefgaragen und Stellplätzen, die jeweils mit den Eingängen der Gebäude verbunden sind. Einige von ihnen sind auch mit Stauräumen ausgestattet.
Der Komplex verfügt außerdem über ein Spa-Center mit Innenpool und Fitnessstudio sowie eine Rezeption mit Concierge-Funktion, die den zukünftigen Eigentümern alle 5-Sterne-Annehmlichkeiten, Gemütlichkeit und Wohnkomfort bieten wird.
Spa-Komplex mit Pool
Im Gebäude „B“ sind ein 19-Meter-Innenpool, ein Spa-Center und ein Fitnessstudio geplant. In einer luxuriösen Umgebung und modernen Annehmlichkeiten können sich die Bewohner der Anlage und ihre Gäste nach dem stressigen Alltag entspannen.
Der Komplex ist umzäunt und verfügt über einen 24-Stunden-Sicherheitsdienst und ein speziell entwickeltes Sicherheitssystem. Der Zugang zu den Gebäuden für Fußgänger und Fahrzeuge erfolgt von zwei Standorten aus.
In unmittelbarer Nähe des Komplexes befinden sich:
U-Bahnstation „Vitosha“ sowie Bus- und Straßenbahnhaltestellen;
Paradise Mall und Billa;
Kindergärten und Schulen – International Business School, Kindergarten der British School of Sofia, Privatschule „Peter Beron“;
Sportanlagen – Silver City Sport Complex, MG Sport Tennis Club, Sportzentrum „Pulev“;
Krankenhäuser – Acibadem City Clinic Tokuda Hospital, VITA Hospital, Robert Koch Medical Center;
Parks und Gärten – Zoo, Jagdpark, Südpark, Vitosha-Naturpark, Botanischer Garten.
Technische Eigenschaften:
Konstruktion – monolithische Stahlbetonskelettkonstruktion ohne Träger mit Beton der Klasse C20/25 und Bewehrungsstahl der Klasse B500B. Deckenstärke 22 cm, Aufbauhöhe der Böden – 295 cm. Außenwände aus Wienerberger Porotherm 25 NF Ziegeln. Innenliegende Trennwände aus Wienerberger Porotherm 12 NF + 2 cm Steinwolle + 12 NF Ziegel für bessere Wärme- und Schalldämmung zwischen einzelnen Räumen.
Fassade – hinterlüftete, abgehängte Fassade; Wärmedämmung aus 10 cm Steinwolle. Dampfdurchlässige, wasserdichte und winddichte Membran. Endbeschichtungskombination aus Vratchan-Kalkstein „Krema extra“ und Travertin. Außenbeleuchtung nach einem Architekturprojekt.
Terrassen und Dächer – Abdichtungssystem mit Materialien der deutschen Firma „KÖSTER“. Abdeckungen und Beschläge aus hochwertigem Kupferblech für Steil- und Ovaldächer.
Klempnerarbeiten – Installation von Trinkwasser- und Hauswasserversorgungsanlagen. Feuerfeste Sanitärinstallation aus verzinkten Rohren. Einleitung von Abwasser in das Straßenkanalnetz. Gebäudeabwasserinstallation aus Polypropylen-Dreischichtrohren mit schalldämmender Einlage. Hängende Entwässerung unter der Bodenplatte des ersten Kellergeschosses aus dickwandigen PVC-Dämpfungsrohren. Alle abgehängten Teile der Anlage sind mit mikroporösem Gummi mit einer Dicke von 1 cm isoliert. Druckkanal aus hochdichten Polyethylenrohren, PN10.
HVAC – verlegte Gasleitungen zum Auslass für die Installation eines Gaskessels in der Wohnung und Leitungen zum Auslass für die Installation einer Klimaanlage. Ein separater Ort für externe Einheiten der Klimaanlagen in jeder Wohnung. Notlüftungsanlage in den Treppenhäusern und Aufzugsschächten, Absauganlage zur Absaugung der verunreinigten Luft in den Kellergeschossen.
Aufzüge – die neueste Generation von Aufzugsanlagen des Weltmarktführers „Schindler“ mit geräuschlosem Betriebsmodus und reduziertem Energieverbrauch. Verbesserte Fahrqualität und mehr Sicherheit.
Bodenbeläge und Verkleidungen
Wohnungen: Fußbodenwärme- und Schalldämmung aus Steinwolle in Wohn- und Schlafräumen mit abschließender Beschichtung aus bewehrtem Zementsandestrich. Maschinell verlegter feiner Gips- und Kalkzementputz an Wänden und Decken.
Lobby: Fußbodenwärme- und Schalldämmung aus Steinwolle mit verstärktem Zementsandestrich und Endbeschichtung aus exotischem Naturstein.
Bodenlobbys: Bodenwärme- und Schalldämmung aus Steinwolle mit armiertem Zementsandestrich und Endbeschichtung aus hochwertigem Teppich, in Kombination mit geprägter Glastextiltapete – entsprechend einem Innenprojekt.
Treppenhäuser: Zement-Sand-Estrich und Endbeschichtung aus Naturstein – Marmor, in Kombination mit Vorderwandverkleidung aus Gipskarton und Endbeschichtung aus hochwertigem Latex an Wänden und Decken.
Parkplatz: Hochbeständiger polierter Beton mit Metallfasern.
Fenster – Holzfenster mit dreischichtig verleimtem ausgewähltem Profil „Münchinger“ Deutschland, mit Profilstärke 78 mm. Deutsche einbruchhemmende „GU“-Beschläge. Fensterdichtstoff „Primo“ GmbH, Oberflächenlackierung in drei Schichten der deutschen Firma „Rhenocoll“. „Gutmann“-Durchlass mit hervorragendem Wasserdurchfluss und einer Rutsche zum Schutz des empfindlichsten Holzteils vor Feuchtigkeit. Dreifachverglasung 34 mm, mit einem Wärmeleitkoeffizienten von 0,7 UgW/m2K.
Türen – hochwertige gepanzerte italienische „Gasperotti“-Eingangstüren zu jeder Wohnung.
Installationen – Stromversorgung des Gebäudes über zwei neue unabhängige Umspannwerke, die an das Energiesystem angeschlossen sind. Hauptstromzählertafel /GET/, befindet sich im Erdgeschoss. Hochwertige Wohnungsschaltanlagen aus Kunststoff, nicht brennbar, mit transparenter Öffnungstür. Installation von SVT-Kabeln. In den Wohnungen erfolgt die Installation mit PVVM-Kabeln, die verdeckt unter dem Putz verlegt werden. Automatische Brandmeldeanlage für Keller (Auflagen -2,95 und -5,90 m) und in den Gemeinschaftsbereichen des Gebäudes (im Erdgeschoss und Obergeschoss). Blitzschutz- und Erdungsanlagen. Ladestation für Elektroautos.
Internetinstallation und TV-Installation an einem Punkt in der Wohnung. Video-Gegensprechanlage und konventionelles Videoüberwachungssystem basierend auf DVR-Geräten mit Überwachungs- und Aufzeichnungssoftware, einer Reihe von Monitoren an der Sicherheit und am Empfang. Verkabelung jeder Wohnung mit der Möglichkeit von SOT.
Der Komplex ist das Werk zuverlässiger, renommierter Unternehmen mit umfassender Erfahrung im Baubereich:
Das Bau- und Investitionsunternehmen hat sich als Maßstab für die Qualität und nachhaltige Ausführung hochwertiger Wohn- und öffentlicher Gebäude sowie Objekte im Bereich des Industrie- und Infrastrukturbaus etabliert. Die zahlreichen Auszeichnungen und Anerkennungen bei nationalen und internationalen Wettbewerben zeugen von der kompromisslosen Herangehensweise bei der Auswahl und Umsetzung der Objekte aus dem Portfolio des Unternehmens, denn ein besonderes Merkmal ist der Einsatz und die Umsetzung innovativer Baupraktiken, Technologien und Materialien nach Weltbeispielen im Bereich Bauwesen.
Der Designer der Website ist eines der größten Architekturbüros in Bulgarien, das auf dem Markt unseres Landes bekannt ist. Seit nunmehr 20 Jahren beweist es seine Professionalität im Bereich Stadtplanung, umfassende Forschung und Gestaltung von Wohnanlagen, Mehrfamilien- und Einfamilienhäusern, Hotels und Hotelkomplexen, Firmen-, Gewerbe- und Industriegebäuden. Das Unternehmen verfügt auch über Erfahrung in der Zusammenarbeit mit ausländischen Architekturbüros.
Der Investor des Projekts ist ein neu gegründetes Unternehmen, dessen Haupttätigkeit die Planung und der Bau von Wohngebäuden ist. Der vorgestellte Komplex ist der erste geschlossene Wohnkomplex, den das Unternehmen baut.
Wartungsgebühr:
- 1,00 €/m² Wohnfläche inklusive Gemeinschaftsräume;
- 0,40 €/m² Fläche Garagen und Stellplätze mit Gemeinschaftsteilen inklusive.
Alle Preise verstehen sich exklusive Mehrwertsteuer. Die Wartung umfasst 24-Stunden-Sicherheitsdienst und Rezeption, Concierge, Reinigungskosten, Aufzugswartung, Grünflächen, Strom, Wasser und allgemeine Reinigungskosten, Tiefgaragenreinigung und Schneeräumung.
Besichtigungen
Wir können eine Besichtigung der Immobilie zu einer für Sie passenden Zeit vereinbaren. Bitte kontaktieren Sie den für dieses Angebot zuständigen Makler und teilen Sie ihm die von Ihnen gewünschte Uhrzeit mit.
Reservierung der Immobilie
Gegen eine nicht erstattete Anzahlung in Höhe von 2.000 Euro wird die Immobilie reserviert. Weitere Besichtigungen mit anderen Käufern finden nicht statt und Makler beginnt mit der Vorbereitung der Dokumente für den Abschluss des endgültigen Vertrags für Eigentumsübertragung. Bitte kontaktieren Sie den zuständigen Makler für mehr Information über den Kauf einer Immobilie und Zahlungsarten.
Zusatzleistungen und Kundendienst
Wir sind ein seriöses Unternehmen und werden nicht nur während des Kaufs, sondern auch danach bei Ihnen sein und Ihnen auf Ihren Wunsch zusätzliche Dienstleistungen anbieten, um die neu gekaufte Immobilie vollständig und nahtlos zu nutzen. Die Dienstleistungen, die wir anbieten können, umfassen die Erlangung einer Hypothekengenehmigung, eine Versicherung für bewegliche und unbewegliche Sachen, eine Lebensversicherung, eine Kranken- und Autoversicherung, Bau- und Reparaturaktivitäten, Möbel, Rechts- und Buchhaltungsdienstleistungen usw.
Bei uns können Sie nicht nur eine Immobilie mieten, sondern auch eine Reihe von Zusatzleistungen in Anspruch nehmen. Wir können Versicherungen für bewegliches und unbewegliches Vermögen, Lebensversicherungen, Kranken- und Kfz-Versicherungen, Bau- und Reparaturarbeiten, Möbel, Rechts- und Buchhaltungsdienstleistungen usw. anbieten.
VERKAUF
PROJEKT
Luxuriöses Penthouse mit Blick auf das Witoschagebirge und das Parkhotel „Moskau“ im Stadtteil „Ost“
Iztok / Sofia / Sofia / Bulgarien Karte
Gebäude-/Komplexklasse: Hoher Standard
Bereich: 314.22 m 2
Preis: 1 700 000 € /// 5 410 €/m 2
Mehrfamilienhaus im Stadtteil „Krasno Selo“ – moderne Bauweise in hervorragender Lage
Krasno Selo / Sofia / Sofia / Bulgarien Karte
Immobilienpreise: 178 813 - 640 990 €
Preise pro m²: 2 188 - 2 880 €/m 2
VERKAUF
PROJEKT
Emblematisches Anwesen mit Panoramablick auf die Stadt. Sofia und Vitosha in einem Boutique-Gebäude im Stadtteil Boyana
Boyana / Sofia / Sofia / Bulgarien Karte
Bereich: 363 m 2
Preis: 990 000 € /// 2 727 €/m 2
Wählen Sie diese Option und wir benachrichtigen Sie per E-Mail, wenn sich der Angebotsstatus ändert, zum Beispiel:
• Preisänderung;
• Die Immobilie hat ein Sonderangebot abgegeben;
• Die Immobilie ist reserviert oder verkauft;
• Weitere Neuigkeiten im Zusammenhang mit der Immobilie.
• Die Immobilie wird aus dem Verkauf genommen;
Sie können Benachrichtigungen jederzeit problemlos abbestellen.• Änderungen der Angebotsbedingungen;
• Änderung der Investitionshöhe;
• Der Investitionsgegenstand wurde vollständig realisiert;
• Das Angebot ist abgelaufen.
Sie können sich ganz einfach abmelden, wenn Sie in Zukunft entscheiden, dass Sie dieses Angebot nicht mehr nutzen möchten.



...Als ausgewiesener Spezialist arbeitet Stonehard PREMIER an der Marktpositionierung und dem Vertrieb zahlreicher Neubauprojekte, deren Umsetzung uns führende Unternehmergesellschaften in Bulgarien und im Ausland anvertraut haben...