Реф. Номер: SOF-126323
Местоположение: Кръстова вада / София карта
Тип на сграда/комплекс: Жилищен
Клас на сградата/комплекса: Луксозен
Площи на жилищата: 174.29 м2
Типове имоти в сградата/комплекса: Четиристайни апартаменти
Реф. Номер: SOF-126323
Местоположение: Кръстова вада / София
Тип на сграда/комплекс: Жилищен
Клас на сградата/комплекса: Луксозен
Площи на жилищата: 174.29 м2
Типове имоти в сградата/комплекса: Четиристайни апартаменти
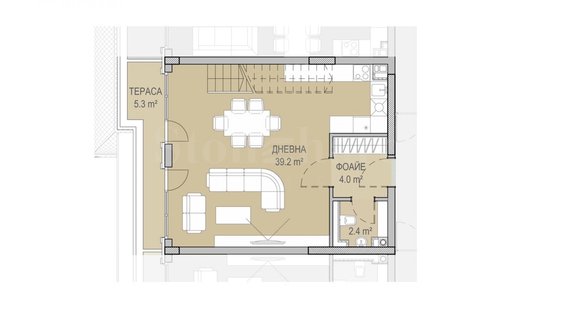
На първия етаж ще откриете всекидневна с кухненски бокс и трапезария (39.2 кв.м) с излаз на слънчева тераса с гледка към града и Витоша планина. Вторият етаж на жилището представлява зона “нощ” и разполага с три спални, към всяка от които има френски балкон. Родителската спалня предлага изключителното предимство на светъл и просторен дрешник (13.6 кв.м) и собствена баня с тоалетна. Този етаж разполага с още една баня с тоалетна и голямо пространство в коридора за вграждане на гардероб, пералня и сущилня.
Обектът е с получен Акт 16 в средата на юни 2023 г.
За проекта
Атрактивната локация в непосредствена близост от Метростанция „Витоша“ и Мол „Парадайс“, непреходната неокласическа архитектура и използването на строителни
материали и технологии от водещи световни брандове, превръщат този забележителен комплекс от затворен тип в луксозна, екологично устойчива и сигурна среда за живот от най-висок клас.
Комплексът с РЗП от 40 209 кв.м, който се състои от пет сгради, е проектиран с единно пространствено и комуникационно решение. Четирите жилищни сгради („А“, „В“, С“ и „D”) са по периферията на терена, като оформят общо вътрешно-квартално пространство, което е обособено като парк, проектиран с грижа към жителите и техните деца. Баланс между зеленина, кътове за почивка и алеи предоставят място за пълноценен отдих като в центъра на комплекса е предвидено изграждането и на площадка за деца от 2 до 13 г. Тя ще е обградена от зеленина и ще отговаря на всички съвременни изисквания за функционалност и безопасност.
Сграда „G“ пък е изцяло подземна, а достъпът до нея се осъществява от подземна улица, завършваща в двата си края с две двупосочни рампи.
Тя осъществява транспортно-комуникационната достъпност до подземните гаражи и паркоместа като всяко от тях има връзка с входовете на сградите. Към част от тях са проектирани и складови пространства.
Комплексът разполага още със спа център със закрит плувен басейн и фитнес зала, и рецепция с функции на консиерж, които ще накарат бъдещите собственици да получат своите пълноценни 5-звездни удобства, уют и комфорт на обитаване.
Спа комплекс с басейн
В сграда „В“ са проектирани вътрешен 19 –метров басейн, спа-център и фитнес. В луксозна обстановка и съвременни удобства обитателите на комлекса и техните гости, ще могат да се отпуснат след напрегнатото ежедневие.
Комплексът е от затворен тип и ще разполага с 24-часова физическа охрана и специално проектирана охранителна система. Пешеходният и автомобилен достъп до сградите ще се осъществява от две места.
В непосредствена близост до комплекса са разположени:
Метростанция „Витоша“ и спирки на автобуси и трамвай;
Paradise Mall и Billa;
Детски градини и училища - Международно бизнес училище, British School of Sofia Kindergarten, частно училище „Петър Берон“;
Спортни обекти - Silver City Sport Complex, MG Sport Тенис клуб, спортен център „Пулев“;
Болници - Аджибадем Сити Клиник болница Токуда, МБАЛ „ВИТА“, МЦ „Роберт Кох“;
Паркове и градини - Зоологическа градина, Ловен парк, Южен парк, Природен парк „Витоша“, Ботаническа градина.
Технически характеристики:
Конструкция - монолитна стоманобетонна скелетно-безгредова конструкция с бетон клас С20/25 и армировъчна стомана клас В500В. Дебелина на плочата от 22 см, конструктивна височина на етажите – 295 см. Външни стени от тухли Wienerberger Porotherm 25 NF. Вътрешни преградни стени от тухли Wienerberger Porotherm 12 NF + 2 см каменна вата + 12 NF за по-добра топло и шумоизолация между отделните помещения.
Фасада - вентилируема окачена фасада; топлоизолация от 10 см каменна вата. Паропропусклива-водонепропусклива и ветрова мембрана. Крайно покритие комбинация от врачански варовик „Крема екстра” и травертин. Екстериорно осветление по архитектурен проект.
Тераси и покриви - хидроизолационна система с материали на немската фирма "KÖSTER". Обшивки и окомплектовки от висококачествена медна ламарина при скатни и овални покриви.
ВиК - сградна питейно-битова водопроводна инсталация. Противопожарна водопроводна инсталация от поцинковани тръби. Заустване на отпадъчните води в уличната канализационна мрежа. Сградна канализационна инсталация от полипропиленови трислойни тръби с шумопоглъщаща вложка. Окачена канализация под плочата на първи сутерен от PVC дебелостенни муфени тръби. Всички окачени участъци от инсталацията са с изолация от микропореста гума с дебелина 1см. Напорна канализация от полиетиленови тръби висока плътност, PN10.
ОВК - прокарана газова тръбна разводка до извод за монтаж на газово котле в апартамента и тръбна разводка до извод за монтаж на климатична система.Обособено място за външни тела на климатиците във всеки апартамент. Аварийна вентилационна система по стълбищните клетки и асансьорните шахти, смукателна инсталация за отвеждане на замърсения въздух в сутеренните нива.
Асансьори - последна генерация асансьорни уредби от водещия световен лидер "Schindler" с безшумен режим на рабора и намалено потребление на енергия. Подобрено качество на возене и по-голяма сигурност.
Настилки и облицовки
Апартаменти: Подова топло и шумоизолация от каменна вата при дневни и спални помещения с крайно покритие от армирана цименто-пясъчна замазка. Машинно положена фина гипсова и вароциментова мазилка по стени и тавани.
Лоби: Подова топло и шумоизолация от каменна вата с армирана цименто-пясъчна замазка и крайно покритие от екзотичен естествен камък.
Етажни фоайета: Подова топло и шумоизолация от каменна вата с армирана цименто-пясъчна замазка и крайно покритие от висококачествен мокет, в комбинация с релефен стъклотекстилен тапет – по интериорен проект.
Стълбищни клетки: Цименто-пясъчна замазка и крайно покритие от естествен камък - мрамор, в комбинация с предстенна обшивка от гипсокартон и крайно покритие висококачествен латекс по стени и тавани.
Паркинг: Високоустойчив полиран бетон с метални фибри.
Дограма - дървена дограма с трислойно слепен селектиран профил „Muenchinger“ Германия, с дебелина на профила 78мм. Немски противовзломов „G-U“обков. Уплътнител за прозорци “Primo” GmbH, повърхностно лаково покритие в три слоя на немската фирма “Rhenocoll”. Водобран „Gutmann", с отлична водооточна част и улей за предпазване на най-уязвимата от влага дървена част. Троен стъклопакет 34 mm, с коефициент на топлопроводимост 0,7 UgW/m2K.
Врати - висококачествени италиански входни блиндирани врати "Gasperotti" към всеки апартамент.
Инсталации - Захранване на сградата от два нови самостоятелни трафопоста, свързани към енергийната система. Главно електромерно ел.табло /ГЕТ/, разположено на партера. Апартаментни ел.табла висок клас пластмасови, негорими, с прозрачна отваряема вратичка. Инсталация от кабели СВТ. В апартаментите инсталацията е с проводници тип ПВВМ, положени скрито под мазилките. Автоматична пожароизвестителна инсталация за сутерени (коти -2,95 и -5,90 м) и в общите части на сградата (на партера и ет.площадки). Мълниезащитна и заземителна инсталации. Зарядна станция за електромобили.
Интернет инсталация и инсталация за телевизия до точка в апартамента. Видеодомофонна система и конвенционална система за видеонаблюдение базирана на DVR устройства със софтуер за мониторинг и запис, комплект с монитори при охраната и рецепцията. Окабеляване на всеки апартамент с възможност за СОТ.
Комплексът е дело на надеждни реномирани компании с голям опит в сферата на строителството:
Строително-инвестиционна компания се е наложила като еталон за качествено и устойчиво изпълнение на премиум жилищни и обществени сгради, обекти в сферата на промишленото и инфраструктурното строителство. Множеството отличия и признания от национални и международни конкурси са доказателство за безкомпромисния подход в подбора и реализирането на обектите от портфолиото на компанията, като отличителен почерк е използването и внедряването на иновативни строителни практики, технологии и материали почерпени от световни примери за подражание в сферата на строителството.
Проектантът на обекта е една от големите архитектурни фирми в България, добре позната на пазара у нас. Вече 20 години доказва професионализма си в сферата на градоустройственото планиране, цялостно проучване и проектирането на жилищни комплекси, многофамилни и еднофамилни жилищни сгради, хотели и хотелски комплекси, корпоративни, търговски и производствени сгради. Фирмата има опит и в съвместната работа с чуждестранни архитектурни компании.
Инвеститорът на проекта е новосъздадено дружество, чиято основна дейност е проектиране и изграждане на жилищни сгради. Представеният комплекс е първият жилищен комплекс от затворен тип, който дружеството изгражда.
Такса поддръжка:
- 1,00 €/кв.м жилищна площ с включени общи части;
- 0,40 €/кв.м площ гаражи и паркоместа с включени общи части.
Всички цени са без включено ДДС. Поддръжката включва 24-часова охрана и рецепция, консиерж, разходи за почистване, поддръжка на асансьори, зелени площи, разходи за ток, вода и препарати за общи нужди, почистване на подземен паркинг и снегопочистване.
Местоположение на картата
На първия етаж ще откриете всекидневна с кухненски бокс и трапезария (39.2 кв.м) с излаз на слънчева тераса с гледка към града и Витоша планина. Вторият етаж на жилището представлява зона “нощ” и разполага с три спални, към всяка от които има френски балкон. Родителската спалня предлага изключителното предимство на светъл и просторен дрешник (13.6 кв.м) и собствена баня с тоалетна. Този етаж разполага с още една баня с тоалетна и голямо пространство в коридора за вграждане на гардероб, пералня и сущилня.
Обектът е с получен Акт 16 в средата на юни 2023 г.
За проекта
Атрактивната локация в непосредствена близост от Метростанция „Витоша“ и Мол „Парадайс“, непреходната неокласическа архитектура и използването на строителни
материали и технологии от водещи световни брандове, превръщат този забележителен комплекс от затворен тип в луксозна, екологично устойчива и сигурна среда за живот от най-висок клас.
Комплексът с РЗП от 40 209 кв.м, който се състои от пет сгради, е проектиран с единно пространствено и комуникационно решение. Четирите жилищни сгради („А“, „В“, С“ и „D”) са по периферията на терена, като оформят общо вътрешно-квартално пространство, което е обособено като парк, проектиран с грижа към жителите и техните деца. Баланс между зеленина, кътове за почивка и алеи предоставят място за пълноценен отдих като в центъра на комплекса е предвидено изграждането и на площадка за деца от 2 до 13 г. Тя ще е обградена от зеленина и ще отговаря на всички съвременни изисквания за функционалност и безопасност.
Сграда „G“ пък е изцяло подземна, а достъпът до нея се осъществява от подземна улица, завършваща в двата си края с две двупосочни рампи.
Тя осъществява транспортно-комуникационната достъпност до подземните гаражи и паркоместа като всяко от тях има връзка с входовете на сградите. Към част от тях са проектирани и складови пространства.
Комплексът разполага още със спа център със закрит плувен басейн и фитнес зала, и рецепция с функции на консиерж, които ще накарат бъдещите собственици да получат своите пълноценни 5-звездни удобства, уют и комфорт на обитаване.
Спа комплекс с басейн
В сграда „В“ са проектирани вътрешен 19 –метров басейн, спа-център и фитнес. В луксозна обстановка и съвременни удобства обитателите на комлекса и техните гости, ще могат да се отпуснат след напрегнатото ежедневие.
Комплексът е от затворен тип и ще разполага с 24-часова физическа охрана и специално проектирана охранителна система. Пешеходният и автомобилен достъп до сградите ще се осъществява от две места.
В непосредствена близост до комплекса са разположени:
Метростанция „Витоша“ и спирки на автобуси и трамвай;
Paradise Mall и Billa;
Детски градини и училища - Международно бизнес училище, British School of Sofia Kindergarten, частно училище „Петър Берон“;
Спортни обекти - Silver City Sport Complex, MG Sport Тенис клуб, спортен център „Пулев“;
Болници - Аджибадем Сити Клиник болница Токуда, МБАЛ „ВИТА“, МЦ „Роберт Кох“;
Паркове и градини - Зоологическа градина, Ловен парк, Южен парк, Природен парк „Витоша“, Ботаническа градина.
Технически характеристики:
Конструкция - монолитна стоманобетонна скелетно-безгредова конструкция с бетон клас С20/25 и армировъчна стомана клас В500В. Дебелина на плочата от 22 см, конструктивна височина на етажите – 295 см. Външни стени от тухли Wienerberger Porotherm 25 NF. Вътрешни преградни стени от тухли Wienerberger Porotherm 12 NF + 2 см каменна вата + 12 NF за по-добра топло и шумоизолация между отделните помещения.
Фасада - вентилируема окачена фасада; топлоизолация от 10 см каменна вата. Паропропусклива-водонепропусклива и ветрова мембрана. Крайно покритие комбинация от врачански варовик „Крема екстра” и травертин. Екстериорно осветление по архитектурен проект.
Тераси и покриви - хидроизолационна система с материали на немската фирма "KÖSTER". Обшивки и окомплектовки от висококачествена медна ламарина при скатни и овални покриви.
ВиК - сградна питейно-битова водопроводна инсталация. Противопожарна водопроводна инсталация от поцинковани тръби. Заустване на отпадъчните води в уличната канализационна мрежа. Сградна канализационна инсталация от полипропиленови трислойни тръби с шумопоглъщаща вложка. Окачена канализация под плочата на първи сутерен от PVC дебелостенни муфени тръби. Всички окачени участъци от инсталацията са с изолация от микропореста гума с дебелина 1см. Напорна канализация от полиетиленови тръби висока плътност, PN10.
ОВК - прокарана газова тръбна разводка до извод за монтаж на газово котле в апартамента и тръбна разводка до извод за монтаж на климатична система.Обособено място за външни тела на климатиците във всеки апартамент. Аварийна вентилационна система по стълбищните клетки и асансьорните шахти, смукателна инсталация за отвеждане на замърсения въздух в сутеренните нива.
Асансьори - последна генерация асансьорни уредби от водещия световен лидер "Schindler" с безшумен режим на рабора и намалено потребление на енергия. Подобрено качество на возене и по-голяма сигурност.
Настилки и облицовки
Апартаменти: Подова топло и шумоизолация от каменна вата при дневни и спални помещения с крайно покритие от армирана цименто-пясъчна замазка. Машинно положена фина гипсова и вароциментова мазилка по стени и тавани.
Лоби: Подова топло и шумоизолация от каменна вата с армирана цименто-пясъчна замазка и крайно покритие от екзотичен естествен камък.
Етажни фоайета: Подова топло и шумоизолация от каменна вата с армирана цименто-пясъчна замазка и крайно покритие от висококачествен мокет, в комбинация с релефен стъклотекстилен тапет – по интериорен проект.
Стълбищни клетки: Цименто-пясъчна замазка и крайно покритие от естествен камък - мрамор, в комбинация с предстенна обшивка от гипсокартон и крайно покритие висококачествен латекс по стени и тавани.
Паркинг: Високоустойчив полиран бетон с метални фибри.
Дограма - дървена дограма с трислойно слепен селектиран профил „Muenchinger“ Германия, с дебелина на профила 78мм. Немски противовзломов „G-U“обков. Уплътнител за прозорци “Primo” GmbH, повърхностно лаково покритие в три слоя на немската фирма “Rhenocoll”. Водобран „Gutmann", с отлична водооточна част и улей за предпазване на най-уязвимата от влага дървена част. Троен стъклопакет 34 mm, с коефициент на топлопроводимост 0,7 UgW/m2K.
Врати - висококачествени италиански входни блиндирани врати "Gasperotti" към всеки апартамент.
Инсталации - Захранване на сградата от два нови самостоятелни трафопоста, свързани към енергийната система. Главно електромерно ел.табло /ГЕТ/, разположено на партера. Апартаментни ел.табла висок клас пластмасови, негорими, с прозрачна отваряема вратичка. Инсталация от кабели СВТ. В апартаментите инсталацията е с проводници тип ПВВМ, положени скрито под мазилките. Автоматична пожароизвестителна инсталация за сутерени (коти -2,95 и -5,90 м) и в общите части на сградата (на партера и ет.площадки). Мълниезащитна и заземителна инсталации. Зарядна станция за електромобили.
Интернет инсталация и инсталация за телевизия до точка в апартамента. Видеодомофонна система и конвенционална система за видеонаблюдение базирана на DVR устройства със софтуер за мониторинг и запис, комплект с монитори при охраната и рецепцията. Окабеляване на всеки апартамент с възможност за СОТ.
Комплексът е дело на надеждни реномирани компании с голям опит в сферата на строителството:
Строително-инвестиционна компания се е наложила като еталон за качествено и устойчиво изпълнение на премиум жилищни и обществени сгради, обекти в сферата на промишленото и инфраструктурното строителство. Множеството отличия и признания от национални и международни конкурси са доказателство за безкомпромисния подход в подбора и реализирането на обектите от портфолиото на компанията, като отличителен почерк е използването и внедряването на иновативни строителни практики, технологии и материали почерпени от световни примери за подражание в сферата на строителството.
Проектантът на обекта е една от големите архитектурни фирми в България, добре позната на пазара у нас. Вече 20 години доказва професионализма си в сферата на градоустройственото планиране, цялостно проучване и проектирането на жилищни комплекси, многофамилни и еднофамилни жилищни сгради, хотели и хотелски комплекси, корпоративни, търговски и производствени сгради. Фирмата има опит и в съвместната работа с чуждестранни архитектурни компании.
Инвеститорът на проекта е новосъздадено дружество, чиято основна дейност е проектиране и изграждане на жилищни сгради. Представеният комплекс е първият жилищен комплекс от затворен тип, който дружеството изгражда.
Такса поддръжка:
- 1,00 €/кв.м жилищна площ с включени общи части;
- 0,40 €/кв.м площ гаражи и паркоместа с включени общи части.
Всички цени са без включено ДДС. Поддръжката включва 24-часова охрана и рецепция, консиерж, разходи за почистване, поддръжка на асансьори, зелени площи, разходи за ток, вода и препарати за общи нужди, почистване на подземен паркинг и снегопочистване.
На първия етаж ще откриете всекидневна с кухненски бокс и трапезария (39.2 кв.м) с излаз на слънчева тераса с гледка към града и Витоша планина. Вторият етаж на жилището представлява зона “нощ” и разполага с три спални, към всяка от които има френски балкон. Родителската спалня предлага изключителното предимство на светъл и просторен дрешник (13.6 кв.м) и собствена баня с тоалетна. Този етаж разполага с още една баня с тоалетна и голямо пространство в коридора за вграждане на гардероб, пералня и сущилня.
Обектът е с получен Акт 16 в средата на юни 2023 г.
За проекта
Атрактивната локация в непосредствена близост от Метростанция „Витоша“ и Мол „Парадайс“, непреходната неокласическа архитектура и използването на строителни
материали и технологии от водещи световни брандове, превръщат този забележителен комплекс от затворен тип в луксозна, екологично устойчива и сигурна среда за живот от най-висок клас.
Комплексът с РЗП от 40 209 кв.м, който се състои от пет сгради, е проектиран с единно пространствено и комуникационно решение. Четирите жилищни сгради („А“, „В“, С“ и „D”) са по периферията на терена, като оформят общо вътрешно-квартално пространство, което е обособено като парк, проектиран с грижа към жителите и техните деца. Баланс между зеленина, кътове за почивка и алеи предоставят място за пълноценен отдих като в центъра на комплекса е предвидено изграждането и на площадка за деца от 2 до 13 г. Тя ще е обградена от зеленина и ще отговаря на всички съвременни изисквания за функционалност и безопасност.
Сграда „G“ пък е изцяло подземна, а достъпът до нея се осъществява от подземна улица, завършваща в двата си края с две двупосочни рампи.
Тя осъществява транспортно-комуникационната достъпност до подземните гаражи и паркоместа като всяко от тях има връзка с входовете на сградите. Към част от тях са проектирани и складови пространства.
Комплексът разполага още със спа център със закрит плувен басейн и фитнес зала, и рецепция с функции на консиерж, които ще накарат бъдещите собственици да получат своите пълноценни 5-звездни удобства, уют и комфорт на обитаване.
Спа комплекс с басейн
В сграда „В“ са проектирани вътрешен 19 –метров басейн, спа-център и фитнес. В луксозна обстановка и съвременни удобства обитателите на комлекса и техните гости, ще могат да се отпуснат след напрегнатото ежедневие.
Комплексът е от затворен тип и ще разполага с 24-часова физическа охрана и специално проектирана охранителна система. Пешеходният и автомобилен достъп до сградите ще се осъществява от две места.
В непосредствена близост до комплекса са разположени:
Метростанция „Витоша“ и спирки на автобуси и трамвай;
Paradise Mall и Billa;
Детски градини и училища - Международно бизнес училище, British School of Sofia Kindergarten, частно училище „Петър Берон“;
Спортни обекти - Silver City Sport Complex, MG Sport Тенис клуб, спортен център „Пулев“;
Болници - Аджибадем Сити Клиник болница Токуда, МБАЛ „ВИТА“, МЦ „Роберт Кох“;
Паркове и градини - Зоологическа градина, Ловен парк, Южен парк, Природен парк „Витоша“, Ботаническа градина.
Технически характеристики:
Конструкция - монолитна стоманобетонна скелетно-безгредова конструкция с бетон клас С20/25 и армировъчна стомана клас В500В. Дебелина на плочата от 22 см, конструктивна височина на етажите – 295 см. Външни стени от тухли Wienerberger Porotherm 25 NF. Вътрешни преградни стени от тухли Wienerberger Porotherm 12 NF + 2 см каменна вата + 12 NF за по-добра топло и шумоизолация между отделните помещения.
Фасада - вентилируема окачена фасада; топлоизолация от 10 см каменна вата. Паропропусклива-водонепропусклива и ветрова мембрана. Крайно покритие комбинация от врачански варовик „Крема екстра” и травертин. Екстериорно осветление по архитектурен проект.
Тераси и покриви - хидроизолационна система с материали на немската фирма "KÖSTER". Обшивки и окомплектовки от висококачествена медна ламарина при скатни и овални покриви.
ВиК - сградна питейно-битова водопроводна инсталация. Противопожарна водопроводна инсталация от поцинковани тръби. Заустване на отпадъчните води в уличната канализационна мрежа. Сградна канализационна инсталация от полипропиленови трислойни тръби с шумопоглъщаща вложка. Окачена канализация под плочата на първи сутерен от PVC дебелостенни муфени тръби. Всички окачени участъци от инсталацията са с изолация от микропореста гума с дебелина 1см. Напорна канализация от полиетиленови тръби висока плътност, PN10.
ОВК - прокарана газова тръбна разводка до извод за монтаж на газово котле в апартамента и тръбна разводка до извод за монтаж на климатична система.Обособено място за външни тела на климатиците във всеки апартамент. Аварийна вентилационна система по стълбищните клетки и асансьорните шахти, смукателна инсталация за отвеждане на замърсения въздух в сутеренните нива.
Асансьори - последна генерация асансьорни уредби от водещия световен лидер "Schindler" с безшумен режим на рабора и намалено потребление на енергия. Подобрено качество на возене и по-голяма сигурност.
Настилки и облицовки
Апартаменти: Подова топло и шумоизолация от каменна вата при дневни и спални помещения с крайно покритие от армирана цименто-пясъчна замазка. Машинно положена фина гипсова и вароциментова мазилка по стени и тавани.
Лоби: Подова топло и шумоизолация от каменна вата с армирана цименто-пясъчна замазка и крайно покритие от екзотичен естествен камък.
Етажни фоайета: Подова топло и шумоизолация от каменна вата с армирана цименто-пясъчна замазка и крайно покритие от висококачествен мокет, в комбинация с релефен стъклотекстилен тапет – по интериорен проект.
Стълбищни клетки: Цименто-пясъчна замазка и крайно покритие от естествен камък - мрамор, в комбинация с предстенна обшивка от гипсокартон и крайно покритие висококачествен латекс по стени и тавани.
Паркинг: Високоустойчив полиран бетон с метални фибри.
Дограма - дървена дограма с трислойно слепен селектиран профил „Muenchinger“ Германия, с дебелина на профила 78мм. Немски противовзломов „G-U“обков. Уплътнител за прозорци “Primo” GmbH, повърхностно лаково покритие в три слоя на немската фирма “Rhenocoll”. Водобран „Gutmann", с отлична водооточна част и улей за предпазване на най-уязвимата от влага дървена част. Троен стъклопакет 34 mm, с коефициент на топлопроводимост 0,7 UgW/m2K.
Врати - висококачествени италиански входни блиндирани врати "Gasperotti" към всеки апартамент.
Инсталации - Захранване на сградата от два нови самостоятелни трафопоста, свързани към енергийната система. Главно електромерно ел.табло /ГЕТ/, разположено на партера. Апартаментни ел.табла висок клас пластмасови, негорими, с прозрачна отваряема вратичка. Инсталация от кабели СВТ. В апартаментите инсталацията е с проводници тип ПВВМ, положени скрито под мазилките. Автоматична пожароизвестителна инсталация за сутерени (коти -2,95 и -5,90 м) и в общите части на сградата (на партера и ет.площадки). Мълниезащитна и заземителна инсталации. Зарядна станция за електромобили.
Интернет инсталация и инсталация за телевизия до точка в апартамента. Видеодомофонна система и конвенционална система за видеонаблюдение базирана на DVR устройства със софтуер за мониторинг и запис, комплект с монитори при охраната и рецепцията. Окабеляване на всеки апартамент с възможност за СОТ.
Комплексът е дело на надеждни реномирани компании с голям опит в сферата на строителството:
Строително-инвестиционна компания се е наложила като еталон за качествено и устойчиво изпълнение на премиум жилищни и обществени сгради, обекти в сферата на промишленото и инфраструктурното строителство. Множеството отличия и признания от национални и международни конкурси са доказателство за безкомпромисния подход в подбора и реализирането на обектите от портфолиото на компанията, като отличителен почерк е използването и внедряването на иновативни строителни практики, технологии и материали почерпени от световни примери за подражание в сферата на строителството.
Проектантът на обекта е една от големите архитектурни фирми в България, добре позната на пазара у нас. Вече 20 години доказва професионализма си в сферата на градоустройственото планиране, цялостно проучване и проектирането на жилищни комплекси, многофамилни и еднофамилни жилищни сгради, хотели и хотелски комплекси, корпоративни, търговски и производствени сгради. Фирмата има опит и в съвместната работа с чуждестранни архитектурни компании.
Инвеститорът на проекта е новосъздадено дружество, чиято основна дейност е проектиране и изграждане на жилищни сгради. Представеният комплекс е първият жилищен комплекс от затворен тип, който дружеството изгражда.
Такса поддръжка:
- 1,00 €/кв.м жилищна площ с включени общи части;
- 0,40 €/кв.м площ гаражи и паркоместа с включени общи части.
Всички цени са без включено ДДС. Поддръжката включва 24-часова охрана и рецепция, консиерж, разходи за почистване, поддръжка на асансьори, зелени площи, разходи за ток, вода и препарати за общи нужди, почистване на подземен паркинг и снегопочистване.
ПРОДАЖБА
ПРОЕКТ
Разкошен пентхаус с гледка към Витоша и Парк-хотел "Москва" в кв. "Изток"
Изток / София / София / България карта
Клас на сградата/комплекса: Висок стандарт
Площ: 314.22 м2
Цена: 1 700 000 € /// 5 410 €/м2
Многофамилна жилищна сграда в кв. „Красно село“ – модерно строителство с отлична локация
Красно село / София / София / България карта
Завършване: Юни, 2026 г.
Цени на имотите: 178 813 - 640 990 €
Цени на м²: 2 188 - 2 880 €/м2
ПРОДАЖБА
ПРОЕКТ
Емблематичен имот с панорамна гледка към гр. София и Витоша в бутикова сграда в кв. Бояна
Бояна / София / София / България карта
Площ: 363 м2
Цена: 990 000 € /// 2 727 €/м2
Изберете тази опция и ще Ви уведомяваме по имейла при настъпили промени по статуса на офертата, например:
• Промяна на цената;
• Имотът влезе в промоционално предложение;
• Имотът бъде резервран или продаден;
• Други новости, свързани с имота.
• Имотът бъде свален от продажба;
Може да се отпишете от нотификациите лесно, когато пожелаете.• Промени по условията на офертата;
• Промяна в сумата на инвестицията;
• Предметът на инвестицията е изцяло реализиран;
• Валидността на офертата е изтекла.
Може лесно да се отпишете, ако в бъдеще решите, че повече не желаете да следите тази оферта.



...В качеството си на доказан спецалист Stonehard PREMIER работи по пазарното позициониране и продажбите на множество проекти ново строителство, чиято реализация ни е поверена от водещи предприемачески компании в България и чужбина...