Art.-Nr. Nummer: SOF-122064 / 3592
Standort: Manastirski Livadi - East / Sofia Karte
Gebäude-/Komplextyp: Wohnen
Wohngebiete: 141.02 m 2
Arten von Immobilien im Gebäude/Komplex: 3-Raum-Apartments
Art.-Nr. Nummer: SOF-122064
Standort: Manastirski Livadi - East / Sofia
Gebäude-/Komplextyp: Жилищен
Gebäude-/Komplexklasse:
Wohngebiete: 141.02 m 2
Arten von Immobilien im Gebäude/Komplex: 3-Raum-Apartments
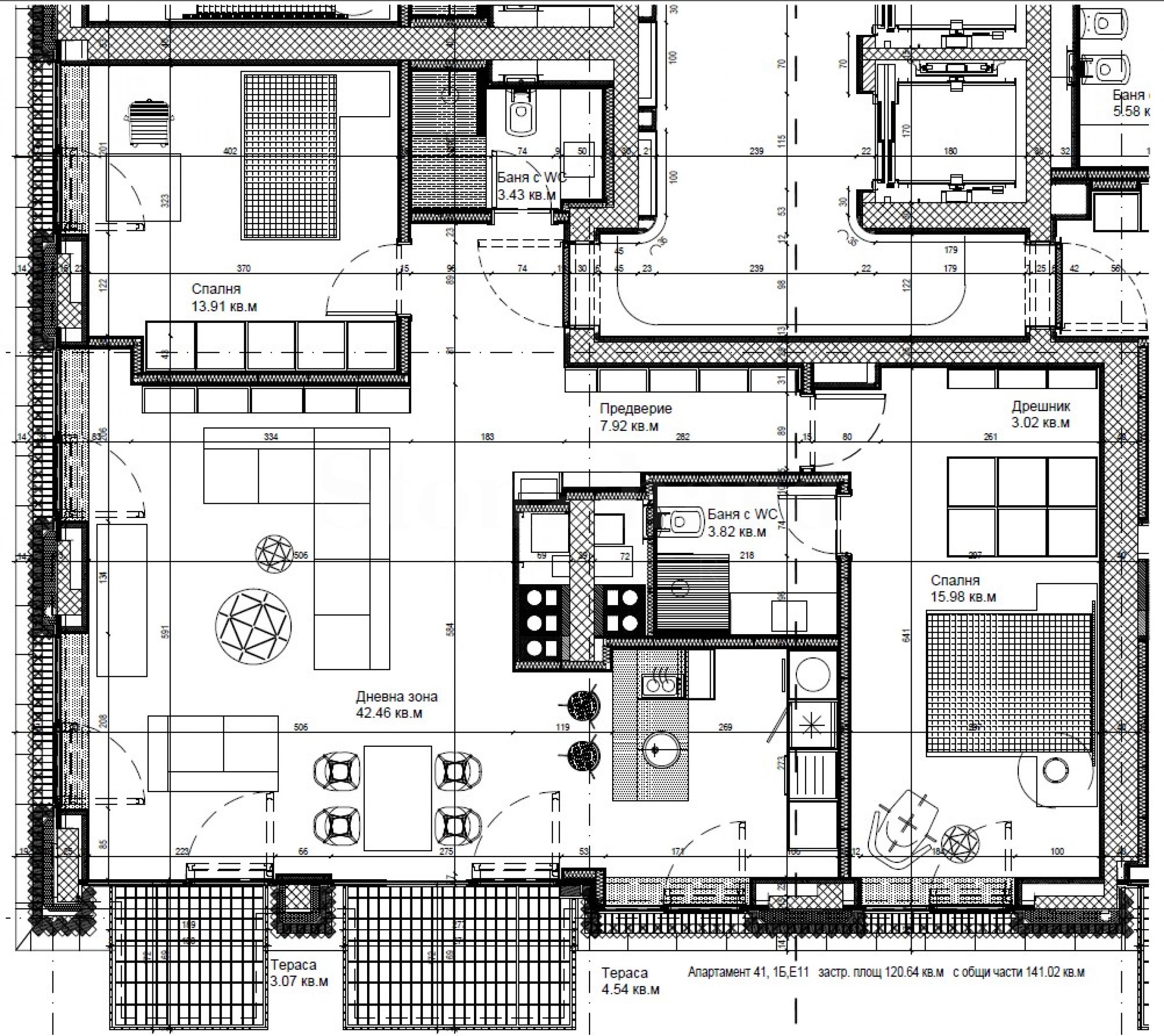
Es befindet sich im 11. Stock von elf Stockwerken in der fertiggestellten ersten Phase des Projekts, das aus fünf in Betrieb genommenen Gebäuden besteht.
Die Dreizimmerwohnung hat eine Gesamtfläche von 141,02 qm und eine Nettofläche von 120,64 qm und hat folgende Aufteilung:
• Eingang;
• Wohnzimmer mit Esszimmer und Kochnische;
• zwei Schlafzimmer, eines davon mit Kleiderschrank;
• zwei Badezimmer mit Toilette;
• zwei Terrassen.
Die Lage des Anwesens macht es einzigartig mit Blick auf die Berge und die Stadt.
Die Wohnung wird qualitativ hochwertig nach BDS fertiggestellt übergeben. Es wird eine Fußbodenheizung installiert, die an einen einzelnen Gaskessel angeschlossen ist. Es besteht die Möglichkeit, Klimaanlagen an bestimmten Stellen im Gebäude zu platzieren.
Über den Komplex
Die beim Bau der Gebäude verwendeten Materialien sind:
• Ziegelstein – eine Kombination aus Beige über Schwarz und Grau bis Kupfer;
• Stein – Travertin, der Widerstand und ein Gefühl der Verbundenheit mit der Natur bringt;
• Metall – schillernd von Gold bis Kupfer und von Rot bis Grau;
• Glas – dreischichtige Glaseinheiten mit UV-Filter für maximale Schalldämmung und Energieeffizienz.
Die Nähe zum Berg und die Grünflächen in der Umgebung schaffen eine Verbindung zur Natur, die neue Möglichkeiten für Freizeit, Sport und Unterhaltung bietet.
Durch die grünen Parkflächen werden Gassen entstehen, die eine barrierefreie Erschließung einzelner Bereiche der Wohnanlage ermöglichen. Für Kinder ist der Bau einer Joggingstrecke mit einer Länge von 500 m sowie der Bau eines Kindergartens geplant.
Vorteile:
• eine Wohnanlage mit einer saubereren und sichereren Umgebung und vielfältigen Möglichkeiten für ein aktives und soziales Leben;
• moderne und funktionale Architektur, innovative Materialien und Technologien;
• ausgezeichnete Lage in der Nähe des Berges und wichtiger Straßenverbindungen wie der Ringstraße und dem Boulevard „Bulgaria“;
• reich begrünter Parkraum mit Alleen für Sport und Erholung;
• Gewährleistung der Sicherheit und eines hohen Wartungsniveaus des Komplexes.
Weitere im Gebäude verfügbare Eigenschaften
Auf der gesamten 11. /letzten/ Etage im Gebäude 1 bieten wir Ihnen:
• drei Zweizimmerwohnungen;
• eine Dreizimmerwohnung.
Für weitere Details wenden Sie sich bitte an den für die Immobilie zuständigen Makler.
Standort auf der Karte
Es befindet sich im 11. Stock von elf Stockwerken in der fertiggestellten ersten Phase des Projekts, das aus fünf in Betrieb genommenen Gebäuden besteht.
Die Dreizimmerwohnung hat eine Gesamtfläche von 141,02 qm und eine Nettofläche von 120,64 qm und hat folgende Aufteilung:
• Eingang;
• Wohnzimmer mit Esszimmer und Kochnische;
• zwei Schlafzimmer, eines davon mit Kleiderschrank;
• zwei Badezimmer mit Toilette;
• zwei Terrassen.
Die Lage des Anwesens macht es einzigartig mit Blick auf die Berge und die Stadt.
Die Wohnung wird qualitativ hochwertig nach BDS fertiggestellt übergeben. Es wird eine Fußbodenheizung installiert, die an einen einzelnen Gaskessel angeschlossen ist. Es besteht die Möglichkeit, Klimaanlagen an bestimmten Stellen im Gebäude zu platzieren.
Über den Komplex
Die beim Bau der Gebäude verwendeten Materialien sind:
• Ziegelstein – eine Kombination aus Beige über Schwarz und Grau bis Kupfer;
• Stein – Travertin, der Widerstand und ein Gefühl der Verbundenheit mit der Natur bringt;
• Metall – schillernd von Gold bis Kupfer und von Rot bis Grau;
• Glas – dreischichtige Glaseinheiten mit UV-Filter für maximale Schalldämmung und Energieeffizienz.
Die Nähe zum Berg und die Grünflächen in der Umgebung schaffen eine Verbindung zur Natur, die neue Möglichkeiten für Freizeit, Sport und Unterhaltung bietet.
Durch die grünen Parkflächen werden Gassen entstehen, die eine barrierefreie Erschließung einzelner Bereiche der Wohnanlage ermöglichen. Für Kinder ist der Bau einer Joggingstrecke mit einer Länge von 500 m sowie der Bau eines Kindergartens geplant.
Vorteile:
• eine Wohnanlage mit einer saubereren und sichereren Umgebung und vielfältigen Möglichkeiten für ein aktives und soziales Leben;
• moderne und funktionale Architektur, innovative Materialien und Technologien;
• ausgezeichnete Lage in der Nähe des Berges und wichtiger Straßenverbindungen wie der Ringstraße und dem Boulevard „Bulgaria“;
• reich begrünter Parkraum mit Alleen für Sport und Erholung;
• Gewährleistung der Sicherheit und eines hohen Wartungsniveaus des Komplexes.
Weitere im Gebäude verfügbare Eigenschaften
Auf der gesamten 11. /letzten/ Etage im Gebäude 1 bieten wir Ihnen:
• drei Zweizimmerwohnungen;
• eine Dreizimmerwohnung.
Für weitere Details wenden Sie sich bitte an den für die Immobilie zuständigen Makler.
Es befindet sich im 11. Stock von elf Stockwerken in der fertiggestellten ersten Phase des Projekts, das aus fünf in Betrieb genommenen Gebäuden besteht.
Die Dreizimmerwohnung hat eine Gesamtfläche von 141,02 qm und eine Nettofläche von 120,64 qm und hat folgende Aufteilung:
• Eingang;
• Wohnzimmer mit Esszimmer und Kochnische;
• zwei Schlafzimmer, eines davon mit Kleiderschrank;
• zwei Badezimmer mit Toilette;
• zwei Terrassen.
Die Lage des Anwesens macht es einzigartig mit Blick auf die Berge und die Stadt.
Die Wohnung wird qualitativ hochwertig nach BDS fertiggestellt übergeben. Es wird eine Fußbodenheizung installiert, die an einen einzelnen Gaskessel angeschlossen ist. Es besteht die Möglichkeit, Klimaanlagen an bestimmten Stellen im Gebäude zu platzieren.
Über den Komplex
Die beim Bau der Gebäude verwendeten Materialien sind:
• Ziegelstein – eine Kombination aus Beige über Schwarz und Grau bis Kupfer;
• Stein – Travertin, der Widerstand und ein Gefühl der Verbundenheit mit der Natur bringt;
• Metall – schillernd von Gold bis Kupfer und von Rot bis Grau;
• Glas – dreischichtige Glaseinheiten mit UV-Filter für maximale Schalldämmung und Energieeffizienz.
Die Nähe zum Berg und die Grünflächen in der Umgebung schaffen eine Verbindung zur Natur, die neue Möglichkeiten für Freizeit, Sport und Unterhaltung bietet.
Durch die grünen Parkflächen werden Gassen entstehen, die eine barrierefreie Erschließung einzelner Bereiche der Wohnanlage ermöglichen. Für Kinder ist der Bau einer Joggingstrecke mit einer Länge von 500 m sowie der Bau eines Kindergartens geplant.
Vorteile:
• eine Wohnanlage mit einer saubereren und sichereren Umgebung und vielfältigen Möglichkeiten für ein aktives und soziales Leben;
• moderne und funktionale Architektur, innovative Materialien und Technologien;
• ausgezeichnete Lage in der Nähe des Berges und wichtiger Straßenverbindungen wie der Ringstraße und dem Boulevard „Bulgaria“;
• reich begrünter Parkraum mit Alleen für Sport und Erholung;
• Gewährleistung der Sicherheit und eines hohen Wartungsniveaus des Komplexes.
Weitere im Gebäude verfügbare Eigenschaften
Auf der gesamten 11. /letzten/ Etage im Gebäude 1 bieten wir Ihnen:
• drei Zweizimmerwohnungen;
• eine Dreizimmerwohnung.
Für weitere Details wenden Sie sich bitte an den für die Immobilie zuständigen Makler.
RECHTE
VERKAUF
PROJEKT
Geräumige Designerwohnung mit Parkplatz in einem Luxusgebäude mit Akt 16
Malinova Dolina / Sofia / Sofia / Bulgarien Karte
Gebäude-/Komplexklasse: Hoher Standard
Bereich: 136 m 2
Preis: 434 900 € /// 3 198 €/m 2
Wohnungen in Phase 2 eines modernen Komplexes in der Nähe von „Simeonovsko Shose“
Malinova Dolina / Sofia / Sofia / Bulgarien Karte
Immobilienpreise: 69 346 - 192 316 €
Preise pro m²: 1 575 - 1 995 €/m 2
Wohnungen in Phase 1 eines modernen Komplexes in der Nähe von „Simeonovsko Shose“
Malinova Dolina / Sofia / Sofia / Bulgarien Karte
Immobilienpreise: 114 096 - 247 180 €
Preise pro m²: 1 828 - 2 296 €/m 2
Wählen Sie diese Option und wir benachrichtigen Sie per E-Mail, wenn sich der Angebotsstatus ändert, zum Beispiel:
• Preisänderung;
• Die Immobilie hat ein Sonderangebot abgegeben;
• Die Immobilie ist reserviert oder verkauft;
• Weitere Neuigkeiten im Zusammenhang mit der Immobilie.
• Die Immobilie wird aus dem Verkauf genommen;
Sie können Benachrichtigungen jederzeit problemlos abbestellen.• Änderungen der Angebotsbedingungen;
• Änderung der Investitionshöhe;
• Der Investitionsgegenstand wurde vollständig realisiert;
• Das Angebot ist abgelaufen.
Sie können sich ganz einfach abmelden, wenn Sie in Zukunft entscheiden, dass Sie dieses Angebot nicht mehr nutzen möchten.



...Als ausgewiesener Spezialist arbeitet Stonehard PREMIER an der Marktpositionierung und dem Vertrieb zahlreicher Neubauprojekte, deren Umsetzung uns führende Unternehmergesellschaften in Bulgarien und im Ausland anvertraut haben...