Двособан стан са погледом на Витошу у комплексу "Кошер"
Цена:
437 162 € (без ПДВ-а) / 3 100 €/м² (без ПДВ-а)
Референтни број: SOF-122064 / 3592
Локација: Manastirski Livadi - East / Sofia мапа
Тип зграде/комплекса: Стамбени
Стамбене области: 141.02 м²
Врсте некретнина у згради/комплексу: Dvosobni stanovi
Референтни број: SOF-122064
Локација: Manastirski Livadi - East / Sofia
Тип зграде/комплекса: Жилищен
Класа зграде/комплекса:
Стамбене области: 141.02 м²
Врсте некретнина у згради/комплексу: Dvosobni stanovi
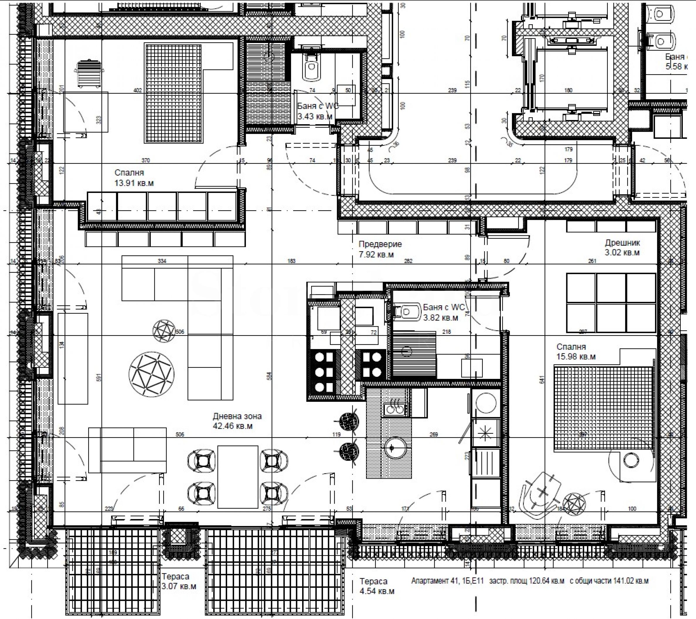
Налази се на 11. спрату од једанаест спратова у завршеној првој фази пројекта, која се састоји од пет зграда пуштених у рад.
Трособан стан има укупну површину од 141,02 квадратних метара и нето површину од 120,64 квадратних метара и има следећи распоред:
• улазни хол;
• дневна соба са трпезаријом и кухињом;
• две спаваће собе, једна са гардеробером;
• два купатила са тоалетом;
• две терасе.
Локација објекта чини га јединственим са погледом који се протеже на планине и град.
Стан се испоручује квалитетно завршен према бугарским стандардима. Инсталиран је систем подног грејања повезан са индивидуалним гасним бојлером. Постоји могућност уградње клима уређаја на одређеним местима у згради.
О комплексу
Материјали који се користе у изградњи зграда су:
• цигла - комбинација беж до црне и сиве до бакарне;
• камен - травертин, који доноси одрживост и осећај повезаности са природом;
• метал - прелива се од златне до бакарне и од црвене до сиве;
• стакло - трослојне стаклене јединице са УВ филтером за максималну звучну изолацију и енергетску ефикасност.
Близина планине и зелених површина у околини стварају везу са природом, што пружа нове могућности за разоноду, спорт и забаву.
Алеје ће пресецати зелене парковске површине, омогућавајући несметан приступ појединачним површинама у стамбеном комплексу. Биће изграђена стаза за трчање дужине 500 метара. Планирана су одвојена игралишта за децу, као и изградња вртића.
Предности:
• стамбени комплекс са чистијим и безбеднијим окружењем, са разноврсним могућностима за активан и друштвени живот;
• модерна и функционална архитектура, иновативни материјали и технологије;
• одлична локација близу планине и главних путних веза, као што су обилазница и Булевар Бугарске;
• богато уређен парковски простор са алејама за спорт и рекреацију;
• обезбеђена је безбедност и висок ниво одржавања комплекса.
Остале некретнине доступне у згради
На целом 11. /последњем/ спрату у згради 1, можемо понудити:
• три двособна стана;
• један трособан стан.
За више детаља, обратите се надлежном агенту за некретнину.
Локација на мапи
Налази се на 11. спрату од једанаест спратова у завршеној првој фази пројекта, која се састоји од пет зграда пуштених у рад.
Трособан стан има укупну површину од 141,02 квадратних метара и нето површину од 120,64 квадратних метара и има следећи распоред:
• улазни хол;
• дневна соба са трпезаријом и кухињом;
• две спаваће собе, једна са гардеробером;
• два купатила са тоалетом;
• две терасе.
Локација објекта чини га јединственим са погледом који се протеже на планине и град.
Стан се испоручује квалитетно завршен према бугарским стандардима. Инсталиран је систем подног грејања повезан са индивидуалним гасним бојлером. Постоји могућност уградње клима уређаја на одређеним местима у згради.
О комплексу
Материјали који се користе у изградњи зграда су:
• цигла - комбинација беж до црне и сиве до бакарне;
• камен - травертин, који доноси одрживост и осећај повезаности са природом;
• метал - прелива се од златне до бакарне и од црвене до сиве;
• стакло - трослојне стаклене јединице са УВ филтером за максималну звучну изолацију и енергетску ефикасност.
Близина планине и зелених површина у околини стварају везу са природом, што пружа нове могућности за разоноду, спорт и забаву.
Алеје ће пресецати зелене парковске површине, омогућавајући несметан приступ појединачним површинама у стамбеном комплексу. Биће изграђена стаза за трчање дужине 500 метара. Планирана су одвојена игралишта за децу, као и изградња вртића.
Предности:
• стамбени комплекс са чистијим и безбеднијим окружењем, са разноврсним могућностима за активан и друштвени живот;
• модерна и функционална архитектура, иновативни материјали и технологије;
• одлична локација близу планине и главних путних веза, као што су обилазница и Булевар Бугарске;
• богато уређен парковски простор са алејама за спорт и рекреацију;
• обезбеђена је безбедност и висок ниво одржавања комплекса.
Остале некретнине доступне у згради
На целом 11. /последњем/ спрату у згради 1, можемо понудити:
• три двособна стана;
• један трособан стан.
За више детаља, обратите се надлежном агенту за некретнину.
Налази се на 11. спрату од једанаест спратова у завршеној првој фази пројекта, која се састоји од пет зграда пуштених у рад.
Трособан стан има укупну површину од 141,02 квадратних метара и нето површину од 120,64 квадратних метара и има следећи распоред:
• улазни хол;
• дневна соба са трпезаријом и кухињом;
• две спаваће собе, једна са гардеробером;
• два купатила са тоалетом;
• две терасе.
Локација објекта чини га јединственим са погледом који се протеже на планине и град.
Стан се испоручује квалитетно завршен према бугарским стандардима. Инсталиран је систем подног грејања повезан са индивидуалним гасним бојлером. Постоји могућност уградње клима уређаја на одређеним местима у згради.
О комплексу
Материјали који се користе у изградњи зграда су:
• цигла - комбинација беж до црне и сиве до бакарне;
• камен - травертин, који доноси одрживост и осећај повезаности са природом;
• метал - прелива се од златне до бакарне и од црвене до сиве;
• стакло - трослојне стаклене јединице са УВ филтером за максималну звучну изолацију и енергетску ефикасност.
Близина планине и зелених површина у околини стварају везу са природом, што пружа нове могућности за разоноду, спорт и забаву.
Алеје ће пресецати зелене парковске површине, омогућавајући несметан приступ појединачним површинама у стамбеном комплексу. Биће изграђена стаза за трчање дужине 500 метара. Планирана су одвојена игралишта за децу, као и изградња вртића.
Предности:
• стамбени комплекс са чистијим и безбеднијим окружењем, са разноврсним могућностима за активан и друштвени живот;
• модерна и функционална архитектура, иновативни материјали и технологије;
• одлична локација близу планине и главних путних веза, као што су обилазница и Булевар Бугарске;
• богато уређен парковски простор са алејама за спорт и рекреацију;
• обезбеђена је безбедност и висок ниво одржавања комплекса.
Остале некретнине доступне у згради
На целом 11. /последњем/ спрату у згради 1, можемо понудити:
• три двособна стана;
• један трособан стан.
За више детаља, обратите се надлежном агенту за некретнину.
ПРАВА
РАСПРОДАЈА
ПРОЈЕКАТ
Просторан, дизајнерски стан са паркинг местом у луксузној згради са Актом 16
Malinova Dolina / Sofia / Sofia / Бугарска мапа
Класа зграде/комплекса: Висок стандард
Подручје: 136 м²
Цена: 434 900 € /// 3 198 €/м²
Станови у другој фази модерног комплекса у близини Симеоновског шосеа
Malinova Dolina / Sofia / Sofia / Бугарска мапа
Цене некретнина: 69 346 - 192 316 €
Цене по м²: 1 575 - 1 995 €/м²
Станови у Фази 1 модерног комплекса у близини Симеоновског шосеа
Malinova Dolina / Sofia / Sofia / Бугарска мапа
Цене некретнина: 114 096 - 247 180 €
Цене по м²: 1 828 - 2 296 €/м²
Изаберите ову опцију и обавестићемо вас имејлом ако дође до било каквих промена у статусу понуде, на пример:
• Промена цене;
• Некретнина је ушла у промотивну понуду;
• Некретнина је резервисана или продата;
• Остале вести везане за некретнину.
• Некретнина је уклоњена из продаје;
Можете се лако одјавити са обавештења кад год желите.• Измене услова понуде;
• Промена износа инвестиције;
• Предмет инвестиције је у потпуности реализован;
• Понуда је истекла.
Можете се лако одјавити ако у будућности одлучите да више не желите да пратите ову понуду.



...Као доказани стручњак, Стоунхард ПРЕМИЕР ради на тржишном позиционирању и продаји бројних нових грађевинских пројеката, чију су нам реализацију повериле водеће предузетничке компаније у Бугарској и иностранству...