Реф. Номер: SOF-122064 / 3592
Местоположение: Манастирски ливади - Изток / София карта
Тип на сграда/комплекс: Жилищен
Площи на жилищата: 141.02 м2
Типове имоти в сградата/комплекса: Тристайни апартаменти
Реф. Номер: SOF-122064
Местоположение: Манастирски ливади - Изток / София
Тип на сграда/комплекс: Жилищен
Клас на сградата/комплекса:
Площи на жилищата: 141.02 м2
Типове имоти в сградата/комплекса: Тристайни апартаменти
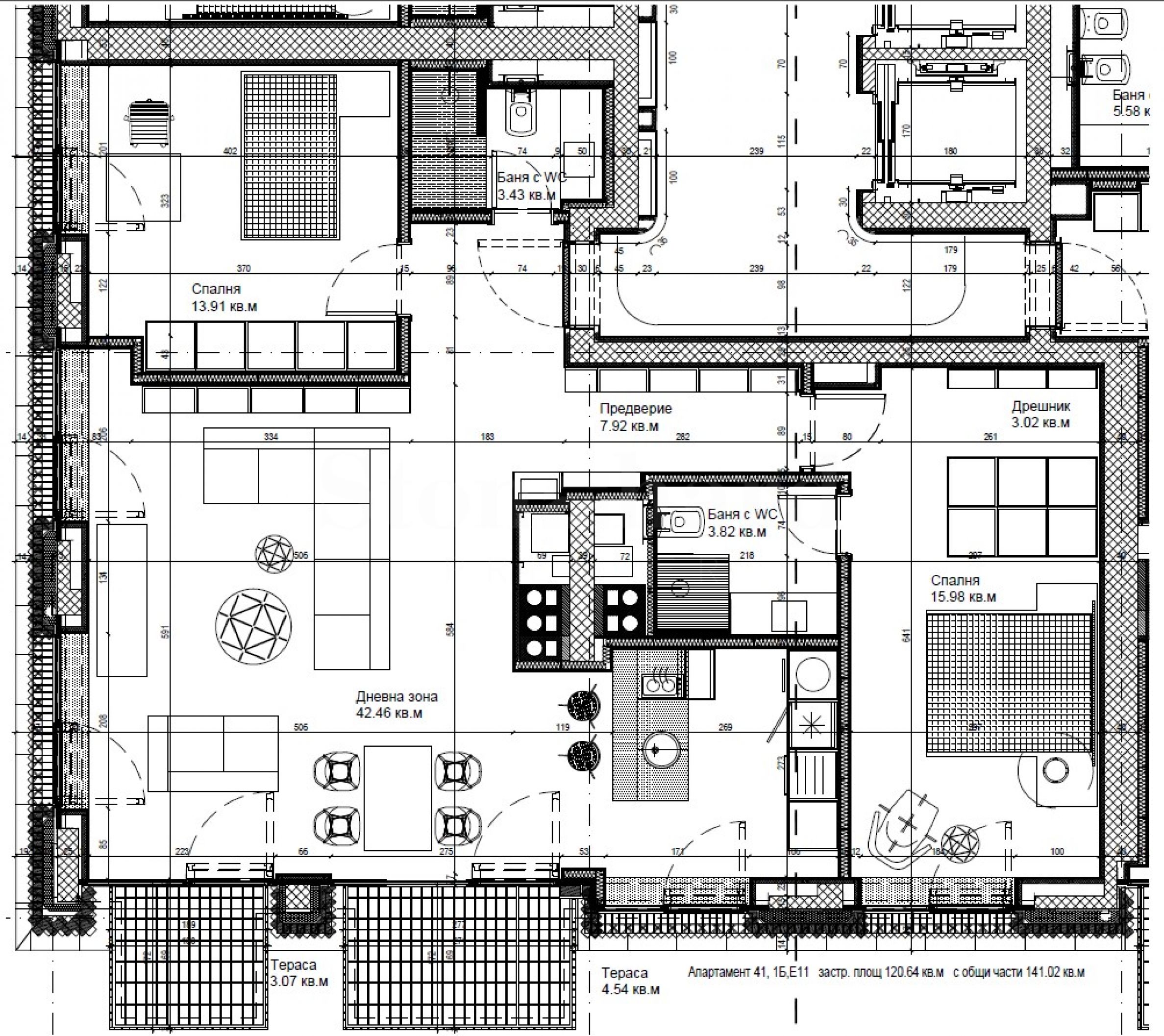
Намира се на 11-и етаж от единадесет етажа в завършения първи етап на проекта, който се състои от пет сгради, въведени в експлоатация.
Тристайният апартамент е с обща площ 141.02 кв.м и чиста площ 120.64 кв.м и е със следното разпределение :
• входно антре;
• дневна с трапезария и кухненски бокс;
• две спални, като едната е с дрешник;
• две бани с тоалетна;
• две тераси.
Разположението на имота го прави уникален с гледките, които се простират към планината и града.
Апартаментът се предава качествено завършен по БДС. Монтирана е инсталация за подово отопление свързана с индивидуално котле на газ. Има вариант за поставяне на климатици на обособени за това места в сградата.
За комплекса
Използваните материали в изграждането на сградите са:
• тухла - комбинация от бежово до черно и от сиво до медно;
• камък - травертин, който носи устойчивост и усещане за връзка с природата;
• метал - преливащи от златно до медно и от червено до сиво;
• стъкло - трислойни стъклопакети с UV филтър за максимална шумоизолация и енергийна ефективност.
Близостта до планината и зелените пространства в района, създават връзка с природата, която дава нови възможности за свободно време, спорт и забавление.
Алеи ще пресичат зелените паркови пространства, осигурявайки безпрепятствен достъп до отделните зони в жилищния комплекс. Ще бъде изградена алея за бягане с дължина от 500 м. За децата се предвиждат отделни зони за игри, както и изграждане на детска градина.
Предимства:
• жилищен комплекс с осигурена по-чиста и сигурна среда, с разнообразни възможности за активен и социален живот;
• модерна и функционална архитектура, иновативни материали и технологии;
• отлична локация близо до планината и до основни пътни връзки, като Околовръстен път и бул. "България";
• богато озеленено парково пространство с алеи за спорт и отдих;
• осигурена охрана и високо ниво на поддръжка на комплекса.
Други имоти, налични в сградата
На целия етаж 11-ти /последен/ в сграда 1, можем да предложим:
• три двустайни апартамента;
• един тристаен апартамент.
За повече подробности, моля свържете се с отговорния брокер по имота.
Местоположение на картата
Намира се на 11-и етаж от единадесет етажа в завършения първи етап на проекта, който се състои от пет сгради, въведени в експлоатация.
Тристайният апартамент е с обща площ 141.02 кв.м и чиста площ 120.64 кв.м и е със следното разпределение :
• входно антре;
• дневна с трапезария и кухненски бокс;
• две спални, като едната е с дрешник;
• две бани с тоалетна;
• две тераси.
Разположението на имота го прави уникален с гледките, които се простират към планината и града.
Апартаментът се предава качествено завършен по БДС. Монтирана е инсталация за подово отопление свързана с индивидуално котле на газ. Има вариант за поставяне на климатици на обособени за това места в сградата.
За комплекса
Използваните материали в изграждането на сградите са:
• тухла - комбинация от бежово до черно и от сиво до медно;
• камък - травертин, който носи устойчивост и усещане за връзка с природата;
• метал - преливащи от златно до медно и от червено до сиво;
• стъкло - трислойни стъклопакети с UV филтър за максимална шумоизолация и енергийна ефективност.
Близостта до планината и зелените пространства в района, създават връзка с природата, която дава нови възможности за свободно време, спорт и забавление.
Алеи ще пресичат зелените паркови пространства, осигурявайки безпрепятствен достъп до отделните зони в жилищния комплекс. Ще бъде изградена алея за бягане с дължина от 500 м. За децата се предвиждат отделни зони за игри, както и изграждане на детска градина.
Предимства:
• жилищен комплекс с осигурена по-чиста и сигурна среда, с разнообразни възможности за активен и социален живот;
• модерна и функционална архитектура, иновативни материали и технологии;
• отлична локация близо до планината и до основни пътни връзки, като Околовръстен път и бул. "България";
• богато озеленено парково пространство с алеи за спорт и отдих;
• осигурена охрана и високо ниво на поддръжка на комплекса.
Други имоти, налични в сградата
На целия етаж 11-ти /последен/ в сграда 1, можем да предложим:
• три двустайни апартамента;
• един тристаен апартамент.
За повече подробности, моля свържете се с отговорния брокер по имота.
Намира се на 11-и етаж от единадесет етажа в завършения първи етап на проекта, който се състои от пет сгради, въведени в експлоатация.
Тристайният апартамент е с обща площ 141.02 кв.м и чиста площ 120.64 кв.м и е със следното разпределение :
• входно антре;
• дневна с трапезария и кухненски бокс;
• две спални, като едната е с дрешник;
• две бани с тоалетна;
• две тераси.
Разположението на имота го прави уникален с гледките, които се простират към планината и града.
Апартаментът се предава качествено завършен по БДС. Монтирана е инсталация за подово отопление свързана с индивидуално котле на газ. Има вариант за поставяне на климатици на обособени за това места в сградата.
За комплекса
Използваните материали в изграждането на сградите са:
• тухла - комбинация от бежово до черно и от сиво до медно;
• камък - травертин, който носи устойчивост и усещане за връзка с природата;
• метал - преливащи от златно до медно и от червено до сиво;
• стъкло - трислойни стъклопакети с UV филтър за максимална шумоизолация и енергийна ефективност.
Близостта до планината и зелените пространства в района, създават връзка с природата, която дава нови възможности за свободно време, спорт и забавление.
Алеи ще пресичат зелените паркови пространства, осигурявайки безпрепятствен достъп до отделните зони в жилищния комплекс. Ще бъде изградена алея за бягане с дължина от 500 м. За децата се предвиждат отделни зони за игри, както и изграждане на детска градина.
Предимства:
• жилищен комплекс с осигурена по-чиста и сигурна среда, с разнообразни възможности за активен и социален живот;
• модерна и функционална архитектура, иновативни материали и технологии;
• отлична локация близо до планината и до основни пътни връзки, като Околовръстен път и бул. "България";
• богато озеленено парково пространство с алеи за спорт и отдих;
• осигурена охрана и високо ниво на поддръжка на комплекса.
Други имоти, налични в сградата
На целия етаж 11-ти /последен/ в сграда 1, можем да предложим:
• три двустайни апартамента;
• един тристаен апартамент.
За повече подробности, моля свържете се с отговорния брокер по имота.
ПРАВА
ПРОДАЖБА
ПРОЕКТ
Просторен, дизайнерски апартамент с паркомясто в луксозна сграда с Акт 16
Малинова долина / София / София / България карта
Клас на сградата/комплекса: Висок стандарт
Площ: 136 м2
Цена: 434 900 € /// 3 198 €/м2
Апартаменти в Етап 2 на модерен комплекс близо до "Симеоновско шосе"
Малинова долина / София / София / България карта
Завършване: Април, 2028 г.
Цени на имотите: 69 346 - 192 316 €
Цени на м²: 1 575 - 1 995 €/м2
Апартаменти в Етап 1 на модерен комплекс близо до "Симеоновско шосе"
Малинова долина / София / София / България карта
Завършване: Март, 2028 г.
Цени на имотите: 114 096 - 247 180 €
Цени на м²: 1 828 - 2 296 €/м2
Изберете тази опция и ще Ви уведомяваме по имейла при настъпили промени по статуса на офертата, например:
• Промяна на цената;
• Имотът влезе в промоционално предложение;
• Имотът бъде резервран или продаден;
• Други новости, свързани с имота.
• Имотът бъде свален от продажба;
Може да се отпишете от нотификациите лесно, когато пожелаете.• Промени по условията на офертата;
• Промяна в сумата на инвестицията;
• Предметът на инвестицията е изцяло реализиран;
• Валидността на офертата е изтекла.
Може лесно да се отпишете, ако в бъдеще решите, че повече не желаете да следите тази оферта.



...В качеството си на доказан спецалист Stonehard PREMIER работи по пазарното позициониране и продажбите на множество проекти ново строителство, чиято реализация ни е поверена от водещи предприемачески компании в България и чужбина...