Тристаен апартамент с две паркоместа и два склада за продажба в Театрална Резиденс
на картатаЦена:
762 306 € (без ДДС) (4 905 €/м2 (без ДДС))
*Указаните цени и наличности от свободни имоти в проекта са индикативни. За актуална ценова информация, моля свържете се с нас!
Реф. Номер: Kbs 132320 / 3899
Местоположение: Оборище / София карта
Тип на сграда/комплекс: Жилищен
Площи на жилищата: 155.42 м2
Типове имоти в сградата/комплекса: Тристайни апартаменти
Реф. Номер: Kbs 132320 / 3899
Местоположение: Оборище / София
Тип на сграда/комплекс: Жилищен
Клас на сградата/комплекса:
Площи на жилищата: 155.42 м2
Типове имоти в сградата/комплекса: Тристайни апартаменти
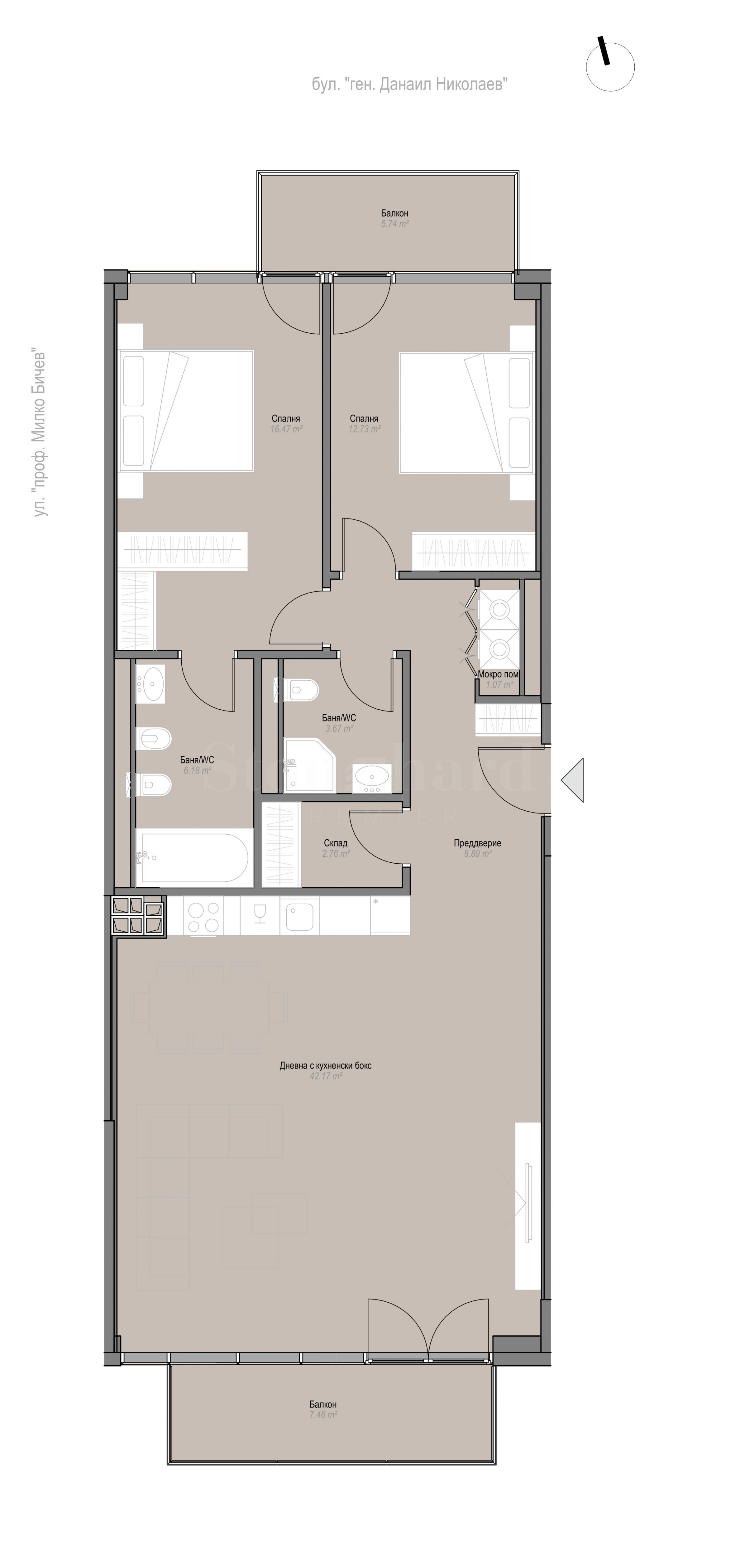
Имотът е ситуиран във вход "Д", намиращ се на етаж 10 с обща площ от 155.42 м2 и следното разпределение: дневна с трапезария и кухненски бокс с изцяло южно изложение и гледка към Витоша, 2 бани с WC, две спални, входно преддверие, тераса и складово помещение.
Паркоместа 3134 и 3135 са включени в цената.
Складове 3089 и 3090 са включени в цената.
Сградата е с взет Акт 16.
Сградата е с подземна квадратура от 25 833,30 м2, надземни нива – 44 065,59 м2 и общо РЗП – 69898,89 м2. Резиденцията разполага със собствен вътрешен парк, озеленени интериорни пространства и общи тераси за отдих и забавление. На партерно ниво са предвидени супермаркет Кауфланд, козметичен център, кафене, магазини и фитнес на две нива.
Локация: кв. Оборище е eдин от най- престижните райони в столицата, предлага на жителите си отлична инфраструктура, в непосредствена близост е до парка Заимов, шест столични театъра и едни от най-важните здравни и образователни заведения в столицата. На пешеходно разстояние са забележителности на София, сред които Площад и градина около храм-паметник „Свети Александър Невски“, храм „Св. София“ и Светия Синод, Градина „Докторски паметник“, Градина „Банска“ и Парк „Заимов“.
Оглед на имота
Можем да организираме оглед на имота в удобно за вас време. За целта, свържете се с отговорния за офертата брокер
Резервация на имота
Имотът може да бъде резервиран и свален от продажба със заплащане на депозит, след което се прекратява провеждането на огледи с други купувачи и започва подготовка на документите за сключване на предварителен и окончателен договор. Свържете се с отговорния брокер за този имот за подробна информация относно процедурата на покупка и начините за плащане.
Допълнителни услуги и следпродажбено обслужване
Ние сме уважавана компания и ще бъдем с вас не само по време на покупката, но и след това, осигурявайки ви допълнителни услуги по ваше изискване с цел пълноценно и безпроблемно ползване на новозакупения имот. Услугите, които можем да предложим, включват получаване на одобрение за ипотечен кредит, застраховка на движимо и недвижимо имущество, застраховка живот, медицинско и автомобилно застраховане, строителни и ремонтни дейности, обзавеждане, юридически и счетоводни услуги и др.
Местоположение на картата
ПРОДАЖБА
ПРОЕКТ
Тристаен апартамент в нов жилищен комплекс с Акт 16 и гледка към Витоша и района
Полигона / София / София / България карта
Площ: 150.94 м2
Цена: 465 225 € /// 3 082 €/м2
ПРОЕКТ
Тристаен апартамент в иновативна, енергийно ефективна жилищна сграда с фотоволтаична инсталация
Манастирски ливади - Изток / София / София / България карта
Площ: 111.55 м2
Цена: 262 149 € /// 2 350 €/м2
ПРАВА
Високотехнологична жилищна сграда с панорамни резиденции, фитнес, СПА, ресторант и консиерж на бул. „Цариградско шосе“
7-ми 11-ти километър / София / София / България карта
Клас на сградата: Премиум
Очаквано завършване: Декември, 2029 г.
Цени на имотите: 415 991 - 1 607 343 € (без ДДС)
Цени на м²: 2 100 - 4 125 €/м2 (без ДДС)
Изберете тази опция и ще Ви уведомяваме по имейла при настъпили промени по статуса на офертата, например:
• Промяна на цената;
• Имотът влезе в промоционално предложение;
• Имотът бъде резервран или продаден;
• Други новости, свързани с имота.
• Имотът бъде свален от продажба;
Може да се отпишете от нотификациите лесно, когато пожелаете.• Промени по условията на офертата;
• Промяна в сумата на инвестицията;
• Предметът на инвестицията е изцяло реализиран;
• Валидността на офертата е изтекла.
Може лесно да се отпишете, ако в бъдеще решите, че повече не желаете да следите тази оферта.
За да получите абсолютно коректна информация относно свободните имоти, налични за продажба в проекта и техните актуални цени, моля свържете се с нашия офис на посочената информация за контакт.
Ние полагаме усилия, за да поддържаме нашите ценови листи абсолютно актуални и коректни, но често това е невъзможно, предвид големия брой нови проекти в нашия каталог и силно динамичните продажби.
Благодарим Ви за проявеното разбиране!



...В качеството си на доказан спецалист Stonehard PREMIER работи по пазарното позициониране и продажбите на множество проекти ново строителство, чиято реализация ни е поверена от водещи предприемачески компании в България и чужбина...