Zwei-Zimmer-Wohnung mit zwei Parkplätzen und zwei Abstellräumen in der Teatralna Residence zu verkaufen
Preis:
762 306 € (ohne MwSt.) (4 905 €/m 2 (ohne MwSt.))
*Die angegebenen Preise und die Verfügbarkeit freier Immobilien im Projekt sind Richtwerte. Für aktuelle Preisinformationen kontaktieren Sie uns bitte!
Art.-Nr. Nummer: Kbs 132320 / 3899
Standort: Oborishte / Sofia Karte
Gebäude-/Komplextyp: Wohnen
Wohngebiete: 155.42 m 2
Arten von Immobilien im Gebäude/Komplex: 3-Raum-Apartments
Art.-Nr. Nummer: Kbs 132320 / 3899
Standort: Oborishte / Sofia
Gebäude-/Komplextyp: Wohnen
Gebäude-/Komplexklasse:
Wohngebiete: 155.42 m 2
Arten von Immobilien im Gebäude/Komplex: 3-Raum-Apartments
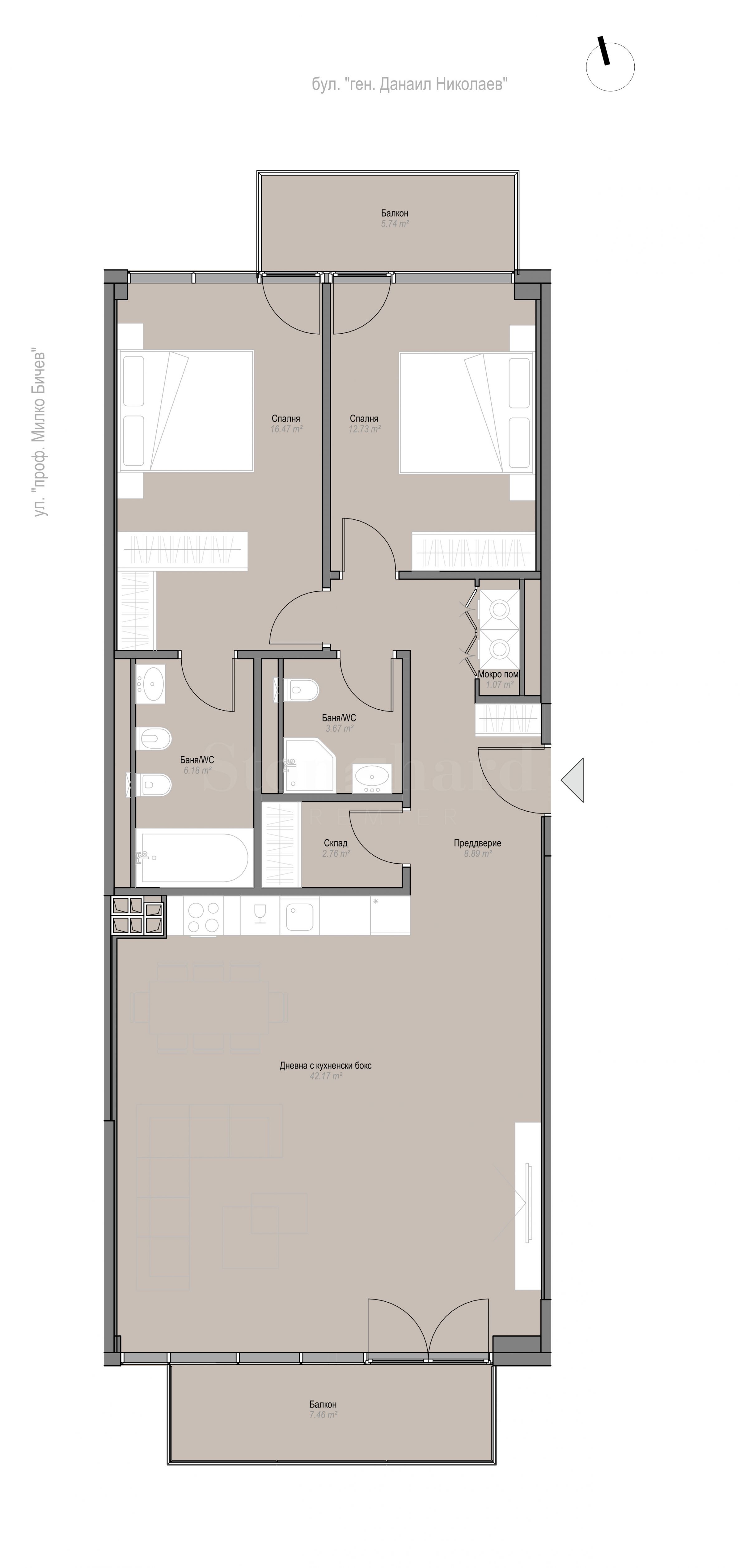
Die Wohnung befindet sich im Eingangsbereich "D" im 10. Stock und hat eine Gesamtfläche von 155,42 m² mit folgender Aufteilung: Wohnzimmer mit Essbereich und Kochnische mit voller Südausrichtung und Blick auf das Vitosha-Gebirge, 2 Badezimmer mit WC, zwei Schlafzimmer, Eingangshalle, Terrasse und Abstellraum.
Die Parkplätze 3134 und 3135 sind im Preis inbegriffen.
Die Lagerhallen 3089 und 3090 sind im Preis inbegriffen.
Für das Gebäude liegt eine Baugenehmigung Nr. 16 vor .
Das Gebäude verfügt über eine unterirdische Fläche von 25.833,30 m², oberirdische Flächen von 44.065,59 m² und eine Gesamtgeschossfläche von 69.898,89 m². Die Wohnanlage bietet einen eigenen Innenpark, begrünte Innenräume und Gemeinschaftsterrassen zum Entspannen und Verweilen. Im Erdgeschoss befinden sich ein Kaufland-Supermarkt, ein Kosmetikstudio, ein Café, Geschäfte und ein zweistöckiges Fitnessstudio.
Lage : Der Bezirk Oborishte zählt zu den begehrtesten Wohngegenden Sofias und bietet seinen Bewohnern eine hervorragende Infrastruktur. Er befindet sich in unmittelbarer Nähe zum Zaimov-Park, sechs großen Theatern und einigen der wichtigsten Gesundheits- und Bildungseinrichtungen der Stadt. Sehenswürdigkeiten Sofias wie der Platz und der Garten rund um die Alexander-Newski-Kirche, die Sophienkirche und die Heilige Synode, der Ärzte-Denkmalgarten, der Banska-Garten und der Zaimov-Park sind bequem zu Fuß erreichbar.
Besichtigungen
Wir können eine Besichtigung der Immobilie zu einer für Sie passenden Zeit vereinbaren. Bitte kontaktieren Sie den für dieses Angebot zuständigen Makler und teilen Sie ihm die von Ihnen gewünschte Uhrzeit mit.
Reservierung der Immobilie
Gegen eine nicht erstattete Anzahlung in Höhe von 2.000 Euro wird die Immobilie reserviert. Weitere Besichtigungen mit anderen Käufern finden nicht statt und Makler beginnt mit der Vorbereitung der Dokumente für den Abschluss des endgültigen Vertrags für Eigentumsübertragung. Bitte kontaktieren Sie den zuständigen Makler für mehr Information über den Kauf einer Immobilie und Zahlungsarten.
Zusatzleistungen und Kundendienst
Wir sind ein seriöses Unternehmen und werden nicht nur während des Kaufs, sondern auch danach bei Ihnen sein und Ihnen auf Ihren Wunsch zusätzliche Dienstleistungen anbieten, um die neu gekaufte Immobilie vollständig und nahtlos zu nutzen. Die Dienstleistungen, die wir anbieten können, umfassen die Erlangung einer Hypothekengenehmigung, eine Versicherung für bewegliche und unbewegliche Sachen, eine Lebensversicherung, eine Kranken- und Autoversicherung, Bau- und Reparaturaktivitäten, Möbel, Rechts- und Buchhaltungsdienstleistungen usw.
Bei uns können Sie nicht nur eine Immobilie mieten, sondern auch eine Reihe von Zusatzleistungen in Anspruch nehmen. Wir können Versicherungen für bewegliches und unbewegliches Vermögen, Lebensversicherungen, Kranken- und Kfz-Versicherungen, Bau- und Reparaturarbeiten, Möbel, Rechts- und Buchhaltungsdienstleistungen usw. anbieten.
Standort auf der Karte
VERKAUF
PROJEKT
Zwei-Zimmer-Wohnung mit zwei Terrassen und einem Tiefgaragenstellplatz in der koscheren Anlage
Manastirski Livadi - East / Sofia / Sofia / Bulgarien Karte
Bereich: 129 m 2
Preis: 550 000 € /// 4 264 €/m 2
Wohngebäude mit zwei Eingängen, nur wenige Meter von der U-Bahn-Station und der Brücke „Chavdar“ entfernt.
Hadzhi Dimitar / Sofia / Sofia / Bulgarien Karte
Geplante Fertigstellung: November, 2026
Immobilienpreise: 199 000 - 410 000 €
Preise pro m²: 2 611 - 2 640 €/m 2
VERKAUF
PROJEKT
Zwei-Zimmer-Wohnung mit Panoramablick auf das Vitosha-Gebirge in „Krastova Vada“
Krustova Vada / Sofia / Sofia / Bulgarien Karte
Bereich: 124 m 2
Preis: 307 966 € /// 2 484 €/m 2
Wählen Sie diese Option und wir benachrichtigen Sie per E-Mail, wenn sich der Angebotsstatus ändert, zum Beispiel:
• Preisänderung;
• Die Immobilie hat ein Sonderangebot abgegeben;
• Die Immobilie ist reserviert oder verkauft;
• Weitere Neuigkeiten im Zusammenhang mit der Immobilie.
• Die Immobilie wird aus dem Verkauf genommen;
Sie können Benachrichtigungen jederzeit problemlos abbestellen.• Änderungen der Angebotsbedingungen;
• Änderung der Investitionshöhe;
• Der Investitionsgegenstand wurde vollständig realisiert;
• Das Angebot ist abgelaufen.
Sie können sich ganz einfach abmelden, wenn Sie in Zukunft entscheiden, dass Sie dieses Angebot nicht mehr nutzen möchten.
Um absolut korrekte Informationen über die im Projekt verfügbaren, leerstehenden Immobilien und deren aktuelle Preise zu erhalten, kontaktieren Sie bitte unser Büro unter den angegebenen Kontaktdaten.
Wir bemühen uns nach Kräften, unsere Preislisten stets aktuell und korrekt zu halten, doch angesichts der Vielzahl neuer Projekte in unserem Katalog und der stark schwankenden Verkaufszahlen ist dies oft unmöglich.
Vielen Dank für Ihr Verständnis!



...Als ausgewiesener Spezialist arbeitet Stonehard PREMIER an der Marktpositionierung und dem Vertrieb zahlreicher Neubauprojekte, deren Umsetzung uns führende Unternehmergesellschaften in Bulgarien und im Ausland anvertraut haben...