Trosoban apartman sa dva parking mesta i dva skladišta za prodaju u Teatralna Residence
Cena:
762 306 € (bez PDV-a) (4 905 €/m2 (bez PDV-a))
*Ukazane cene i dostupnosti od slobodnih nekretnina u projektu su indikativne. Za aktuelne cenovne informacije, molimo vas da nas kontaktirate!
Ref. Broj: Kbs 132320 / 3899
Lokacija: Oborishte / Sofia karta
Tip na zgrada/kompleks: Stambeni
Površine stanova: 155.42 m2
Tipovi nekretnina u zgradi/kompleksu: Dvosobni stanovi
Ref. Broj: Kbs 132320 / 3899
Lokacija: Oborishte / Sofia
Tip na zgrada/kompleks: Stambeni
Klas na zgradi/kompleksu:
Površine stanova: 155.42 m2
Tipovi nekretnina u zgradi/kompleksu: Dvosobni stanovi
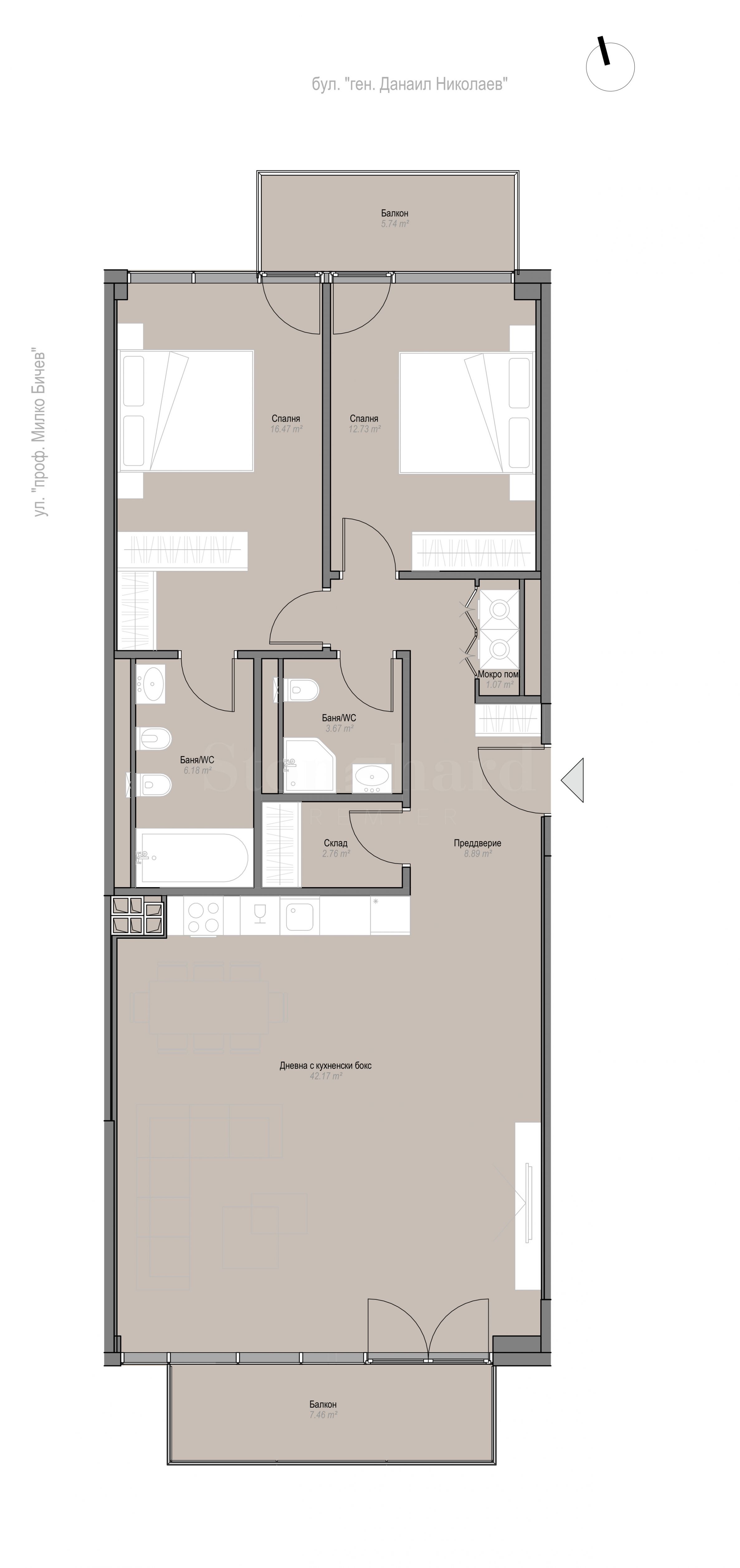
Nekretnina je smeštena u ulazu "D", koji se nalazi na 10. spratu sa ukupnom površinom od 155.42 m2 i sledećim rasporedom: dnevni boravak sa trpezarijom i kuhinjskim blokom sa potpuno južnom orijentacijom i pogledom na Vitosha, 2 kupatila sa WC-om, dve spavaće sobe, ulazni hodnik, terasa i skladišni prostor.
Parking mesta 3134 i 3135 su uključena u cenu.
Skladišta 3089 i 3090 su uključena u cenu.
Zgrada ima dobijen Akt 16.
Zgrada ima podzemnu kvadraturu od 25 833,30 m2, nadzemne nivoe – 44 065,59 m2 i ukupnu bruto razvijenu površinu – 69898,89 m2. Rezidencija raspolaže sopstvenim unutrašnjim parkom, ozelenjenim unutrašnjim prostorima i zajedničkim terasama za odmor i zabavu. Na prizemnom nivou su predviđeni supermarket Kaufland, kozmetički centar, kafić, prodavnice i fitnes na dva nivoa.
Lokacija: kv. Oborishte je jedan od najprestižnijih delova u prestonici, nudi stanovnicima odličnu infrastrukturu, u neposrednoj blizini je parka Zaimov, šest beogradskih pozorišta i jednih od najvažnijih zdravstvenih i obrazovnih ustanova u prestonici. Na pešačkoj udaljenosti su znamenitosti Sofije, među kojima Trg i bašta oko hrama-pomenika „Sveti Aleksandar Nevski“, hram „Sv. Sofija“ i Sveti Sinod, Bašta „Doktorski pomenik“, Bašta „Banska“ i Park „Zaimov“.
Obilazak nekretnine
Možemo organizovati obilazak nekretnine u vreme koje Vam odgovara. Za to, kontaktirajte odgovornog za ponudu brokera
Rezervacija nekretnine
Nekretnina može biti rezervisana i skinuta sa prodaje uplatom depozita, nakon čega se prekida održavanje obilazaka sa drugim kupcima i počinje priprema dokumenata za sklapanje preliminarnog i konačnog ugovora. Kontaktirajte odgovornog brokera za ovu nekretninu za detaljne informacije o proceduri kupovine i načinima plaćanja.
Dodatne usluge i postprodajna podrška
Mi smo ugledna kompanija i bićemo sa Vama ne samo tokom kupovine, već i nakon toga, obezbeđujući Vam dodatne usluge po Vašem zahtevu sa ciljem potpunog i bezproblematnog korišćenja novokupljene nekretnine. Usluge koje možemo ponuditi uključuju dobijanje odobrenja za hipotekarni kredit, osiguranje pokretnosti i nepokretnosti, životno osiguranje, medicinsko i auto osiguranje, građevinske i renovacione radove, opremanje, pravne i računovodstvene usluge i dr.
Mesto na karti
Stambena zgrada sa dva ulaza u rejonu sa metroom i ključnim transportnim vezama
Hadji Dimitar / Sofia / Sofia / Бугарска karta
Cene na imovinu: 175 000 - 410 000 €
Cene po m²: 2 547 - 2 640 €/m2
PRODAŽBA
PROJEKAT
Krustova Vada / Sofia / Sofia / Бугарска karta
Plošča: 124 m2
Cena: 307 966 € /// 2 484 €/m2
PRODAŽBA
PROJEKAT
Двособан стан поред Парк-хотела „Москва“ и Борисове баште у округу „Изток“
Iztok / Sofia / Sofia / Бугарска karta
Klas na zgradi/kompleksu: Visok standard
Plošča: 149.84 m2
Cena: 675 000 € /// 4 505 €/m2
Izaberite ovu opciju i obaveštavaćemo Vas putem imejla o promenama statusa ponude, na primer:
• Promena cene;
• Nekretnina je ušla u promotivnu ponudu;
• Nekretnina je rezervisana ili prodata;
• Druge novosti vezane za nekretninu.
• Nekretnina je skinuta sa prodaje;
Možete se lako odjaviti sa notifikacija kad god poželite.• Promene uslova ponude;
• Promena iznosa investicije;
• Predmet investicije je u potpunosti realizovan;
• Važenje ponude je isteklo.
Možete se lako odjaviti ako u budućnosti odlučite da više ne želite da pratite ovu ponudu.
Da biste dobili apsolutno tačne informacije o slobodnim nekretninama dostupnim za prodaju u projektu i njihovim aktuelnim cenama, molimo vas da kontaktirate našu kancelariju na navedene kontakt informacije.
Trudimo se da naše cenovnike održavamo apsolutno aktuelnim i tačnim, ali često to nije moguće zbog velikog broja novih projekata u našem katalogu i snažne dinamike prodaje.
Hvala vam na razumevanju!



...Kao dokazani stručnjak Stonehard PREMIER radi na tržišnom pozicioniranju i prodaji brojnih projekata novogradnje, čija je realizacija poverena od strane vodećih preduzetničkih kompanija u Bugarskoj i inostranstvu...