Ein-Zimmer-Wohnung, neben einer zukünftigen U-Bahn-Station und einem neuen öffentlichen Park
auf der KartePreis:
126 773 € (ohne MwSt.) (2 119 €/m 2 (ohne MwSt.))
*Die angegebenen Preise und die Verfügbarkeit freier Immobilien im Projekt sind Richtwerte. Für aktuelle Preisinformationen kontaktieren Sie uns bitte!
Art.-Nr. Nummer: SOF-136675 / 4930
Standort: Vitosha / Sofia Karte
Gebäude-/Komplextyp: Wohnen
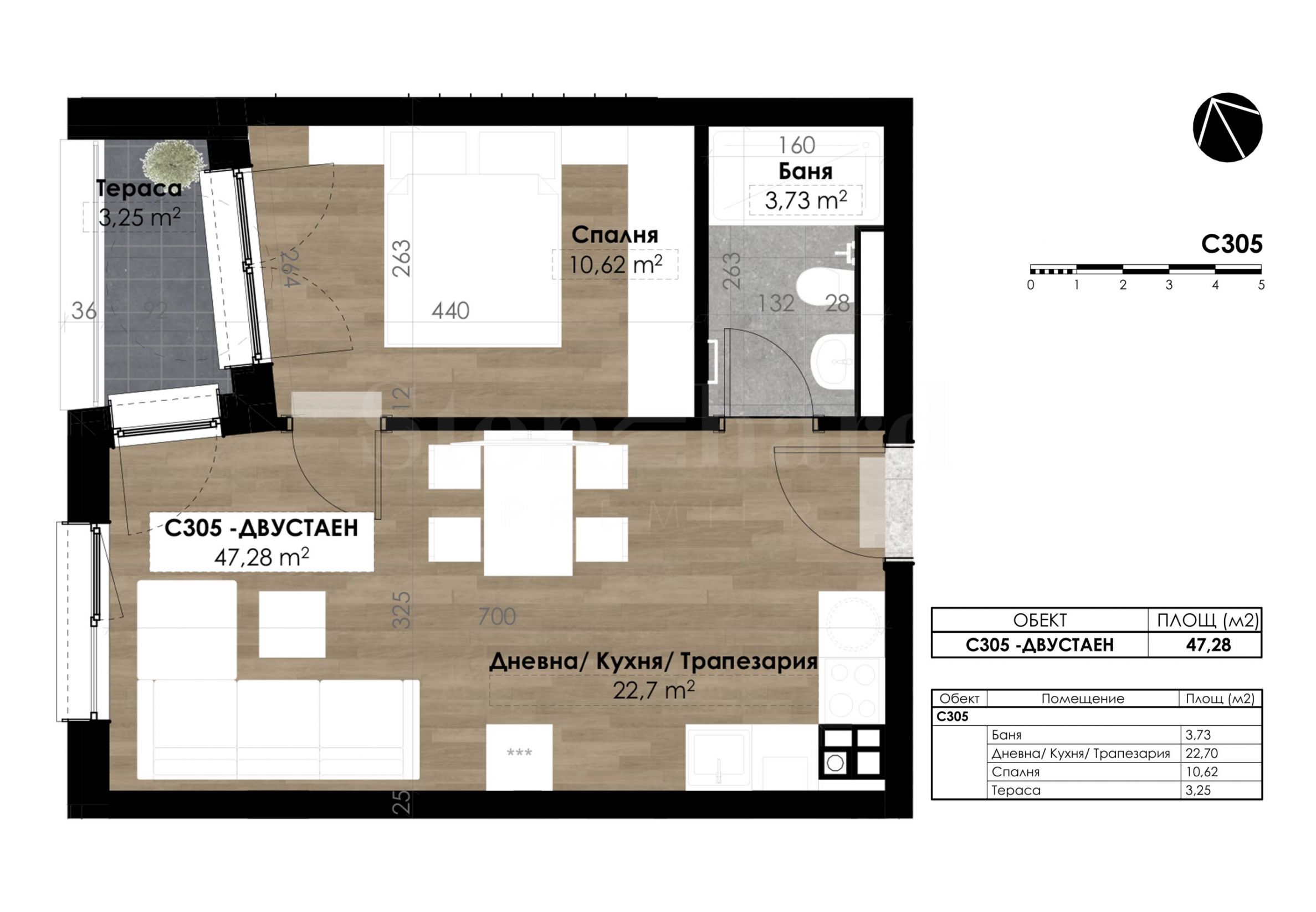
Wohngebiete: 59.83 m 2
Arten von Immobilien im Gebäude/Komplex: 2-Raum-Apartments
Art.-Nr. Nummer: SOF-136675 / 4930
Standort: Vitosha / Sofia
Gebäude-/Komplextyp: Wohnen
Gebäude-/Komplexklasse:
Wohngebiete: 59.83 m 2
Arten von Immobilien im Gebäude/Komplex: 2-Raum-Apartments
Geplanter Baubeginn: Januar 2026. Fertigstellung: 2028.
Das Projekt vereint moderne urbane Infrastruktur mit naturnaher Umgebung. Zukünftige Eigentümer genießen einen Panoramablick auf die Berge und das Grün eines geplanten öffentlichen Parks. Die niedrige Bebauung in der Umgebung trägt zu einem Gefühl von Weite, Ruhe und Gemütlichkeit bei – ein ideales Umfeld für ein modernes und friedliches Zuhause.
Standort
Das Gebäude befindet sich in bester Lage – nur 150 Meter von einer zukünftigen U-Bahn-Station entfernt, die eine schnelle Anbindung an alle wichtigen Punkte der Stadt ermöglicht. In unmittelbarer Nähe befinden sich ein zukünftiger öffentlicher Park (100 m), Geschäfte, Schulen, Kindergärten und Sportzentren. Die Hauptverkehrsader, der Simeonovsko-Schoss-Boulevard, ist nur 900 Meter entfernt und gewährleistet eine optimale Anbindung an das Zentrum von Sofia und den Autobahnring.
Die Immobilie befindet sich im 3. Stock und hat eine Gesamtfläche von 59,83 m². Sie wird im fertiggestellten Zustand gemäß bulgarischem Zivilgesetzbuch verkauft.
Verteilung:
• Eingangshalle, Terrasse;
• Badezimmer/Toilette;
• geräumiges Wohnzimmer mit Küche und Esszimmer;
• Schlafzimmer.
Der Preis richtet sich nach dem Standardzahlungsmodell und beinhaltet keine Mehrwertsteuer.
Für den Komfort der Käufer werden zwei weitere attraktive Zahlungsoptionen angeboten:
• Schema 90/10 "mit – 5%";
• Schema 20/80 "mit + 10%".
Es besteht die Möglichkeit, einen Außenstellplatz, eine Tiefgarage und einen Abstellraum zu erwerben.
Technische Merkmale:
• Erdbebensichere monolithische Stahlbetonkonstruktion;
• Außen- und Innenwände aus Keramikziegeln;
• Fassadenwärmedämmung – mindestens 10 cm EPS oder Steinwolle;
• Wärme-, wasser- und dampfisoliertes Dach;
• Landschaftlich gestalteter Innenhof und vertikale Raumaufteilung;
• Eingangstür mit Zugangskontrolle;
• Luxuriös ausgestattete Gemeinschaftsbereiche mit Granitfliesen;
• Aufzug für bis zu 8 Personen;
• PVC-Fenster – 7-Kammer mit Dreifachverglasung;
• Gepanzerte Eingangstüren zu den Wohnungen;
• Wände und Decken – Spachtelmasse und Gips, Estrichböden;
• Terrassen mit außenliegenden Granitfliesen;
• Tiefgarage mit Betonboden und Beleuchtung;
• Feuerlöschanlage und Brandmeldeanlage;
• Elektro-, Sanitär- und Internetinstallationen wurden durchgeführt;
• Vorbereitung für Klimaanlage und Gasheizung.
Wir freuen uns auf Ihre Anfrage.
Wenn Sie eine Immobilie besichtigen möchten, die Sie interessiert, oder eines unserer Büros besuchen möchten, kontaktieren Sie uns bitte. Um einen Termin für eine Besichtigung oder ein Treffen zu vereinbaren, rufen Sie uns bitte unter der in der Anzeige angegebenen Telefonnummer an oder senden Sie uns eine Anfrage per E-Mail. Unser Berater unterstützt Sie gerne mit allen notwendigen Informationen und findet einen passenden Termin für Sie.
Sind Sie auf der Suche nach der passenden Immobilie für sich?
Zögern Sie nicht, uns zu kontaktieren und uns Ihre Wünsche und Vorlieben mitzuteilen. Unser Team führt eine gründliche Marktanalyse durch, um Ihnen Immobilien anzubieten, die genau Ihren Kriterien entsprechen. Wir verfügen über ein außergewöhnliches Portfolio an hochwertigen und exklusiven Häusern, die nur unseren Kunden zur Verfügung stehen. Um als Erster Informationen darüber zu erhalten, kontaktieren Sie uns.
Zusätzliche Dienstleistungen
Als geschätzter Kunde unseres Unternehmens genießen Sie den Vorteil, die Dienste unseres erfahrenen Rechtsteams kostenfrei in Anspruch zu nehmen. Darüber hinaus bieten wir Ihnen umfassende Lösungen, darunter Gebäudeversicherungen, kostenlose Finanzberatung sowie attraktive Finanzierungskonditionen. Unser Leistungsspektrum umfasst auch die Bereiche Wiederverkauf, Vermietung und Immobilienverwaltung. Hochwertige Renovierungen und Einrichtungsarbeiten vermitteln wir Ihnen über spezialisierte Unternehmen unserer Unternehmensgruppe, mit denen wir seit Langem zusammenarbeiten.
Besichtigungen
Wir können eine Besichtigung der Immobilie zu einer für Sie passenden Zeit vereinbaren. Bitte kontaktieren Sie den für dieses Angebot zuständigen Makler und teilen Sie ihm die von Ihnen gewünschte Uhrzeit mit.
Reservierung der Immobilie
Gegen eine nicht erstattete Anzahlung in Höhe von 2.000 Euro wird die Immobilie reserviert. Weitere Besichtigungen mit anderen Käufern finden nicht statt und Makler beginnt mit der Vorbereitung der Dokumente für den Abschluss des endgültigen Vertrags für Eigentumsübertragung. Bitte kontaktieren Sie den zuständigen Makler für mehr Information über den Kauf einer Immobilie und Zahlungsarten.
Zusatzleistungen und Kundendienst
Wir sind ein seriöses Unternehmen und werden nicht nur während des Kaufs, sondern auch danach bei Ihnen sein und Ihnen auf Ihren Wunsch zusätzliche Dienstleistungen anbieten, um die neu gekaufte Immobilie vollständig und nahtlos zu nutzen. Die Dienstleistungen, die wir anbieten können, umfassen die Erlangung einer Hypothekengenehmigung, eine Versicherung für bewegliche und unbewegliche Sachen, eine Lebensversicherung, eine Kranken- und Autoversicherung, Bau- und Reparaturaktivitäten, Möbel, Rechts- und Buchhaltungsdienstleistungen usw.
Bei uns können Sie nicht nur eine Immobilie mieten, sondern auch eine Reihe von Zusatzleistungen in Anspruch nehmen. Wir können Versicherungen für bewegliches und unbewegliches Vermögen, Lebensversicherungen, Kranken- und Kfz-Versicherungen, Bau- und Reparaturarbeiten, Möbel, Rechts- und Buchhaltungsdienstleistungen usw. anbieten.
Standort auf der Karte
RECHTE
VERKAUF
PROJEKT
Südlich ausgerichtete Einzimmerwohnung mit Parkplatz und Blick auf das Vitosha-Gebirge
v.z.Malinova dolina / Sofia / Sofia / Bulgarien Karte
Bereich: 64 m 2
Preis: 125 000 € /// 1 953 €/m 2
VERKAUF
PROJEKT
Ein-Zimmer-Wohnung mit Garten in einem neuen Wohnhaus im Stadtteil. "Freundschaft"
Druzhba 1 / Sofia / Sofia / Bulgarien Karte
Bereich: 55.60 m 2
Preis: 123 000 € /// 2 212 €/m 2
VERKAUF
PROJEKT
Ein-Zimmer-Wohnung mit Parkplatz in einer Wohnanlage mit Tor im Bezirk Simeonovo
Simeonovo / Sofia / Sofia / Bulgarien Karte
Bereich: 65 m 2
Preis: 220 000 € /// 3 385 €/m 2
Wählen Sie diese Option und wir benachrichtigen Sie per E-Mail, wenn sich der Angebotsstatus ändert, zum Beispiel:
• Preisänderung;
• Die Immobilie hat ein Sonderangebot abgegeben;
• Die Immobilie ist reserviert oder verkauft;
• Weitere Neuigkeiten im Zusammenhang mit der Immobilie.
• Die Immobilie wird aus dem Verkauf genommen;
Sie können Benachrichtigungen jederzeit problemlos abbestellen.• Änderungen der Angebotsbedingungen;
• Änderung der Investitionshöhe;
• Der Investitionsgegenstand wurde vollständig realisiert;
• Das Angebot ist abgelaufen.
Sie können sich ganz einfach abmelden, wenn Sie in Zukunft entscheiden, dass Sie dieses Angebot nicht mehr nutzen möchten.
Um absolut korrekte Informationen über die im Projekt verfügbaren, leerstehenden Immobilien und deren aktuelle Preise zu erhalten, kontaktieren Sie bitte unser Büro unter den angegebenen Kontaktdaten.
Wir bemühen uns nach Kräften, unsere Preislisten stets aktuell und korrekt zu halten, doch angesichts der Vielzahl neuer Projekte in unserem Katalog und der stark schwankenden Verkaufszahlen ist dies oft unmöglich.
Vielen Dank für Ihr Verständnis!



...Als ausgewiesener Spezialist arbeitet Stonehard PREMIER an der Marktpositionierung und dem Vertrieb zahlreicher Neubauprojekte, deren Umsetzung uns führende Unternehmergesellschaften in Bulgarien und im Ausland anvertraut haben...