Neu erbaute Dreizimmerwohnung in einem Boutique-Gebäude
auf der KartePreis:
210 500 € (ohne MwSt.) (2 537 €/m 2 (ohne MwSt.))
*Die angegebenen Preise und die Verfügbarkeit freier Immobilien im Projekt sind Richtwerte. Für aktuelle Preisinformationen kontaktieren Sie uns bitte!
Art.-Nr. Nummer: AP 135528 / 4647
Standort: Krustova Vada / Sofia Karte
Gebäude-/Komplextyp: Wohnen
Gebäude-/Komplexklasse: Hoher Standard
Wohngebiete: 82.98 m 2
Arten von Immobilien im Gebäude/Komplex: 3-Raum-Apartments
Art.-Nr. Nummer: AP 135528 / 4647
Standort: Krustova Vada / Sofia
Gebäude-/Komplextyp: Wohnen
Gebäude-/Komplexklasse: Hoher Standard
Wohngebiete: 82.98 m 2
Arten von Immobilien im Gebäude/Komplex: 3-Raum-Apartments
Das Gebäude befindet sich in der prestigeträchtigen südlichen Gegend der Hauptstadt – in unmittelbarer Nähe des Zoos, nur 950 m vom Paradise Center und der Metrostation Vitosha entfernt. Gelegen in einer ruhigen Seitenstraße, bietet es Privatsphäre und Sicherheit sowie eine schnelle Anbindung über den neuen Philip-Kutev-Boulevard an den Cherni-Vrah-Boulevard und die Simeonovsko-Chaussee. Die Gegend vereint Ruhe, hervorragende Infrastruktur und die schnelle Erreichbarkeit wichtiger Orte der Stadt.
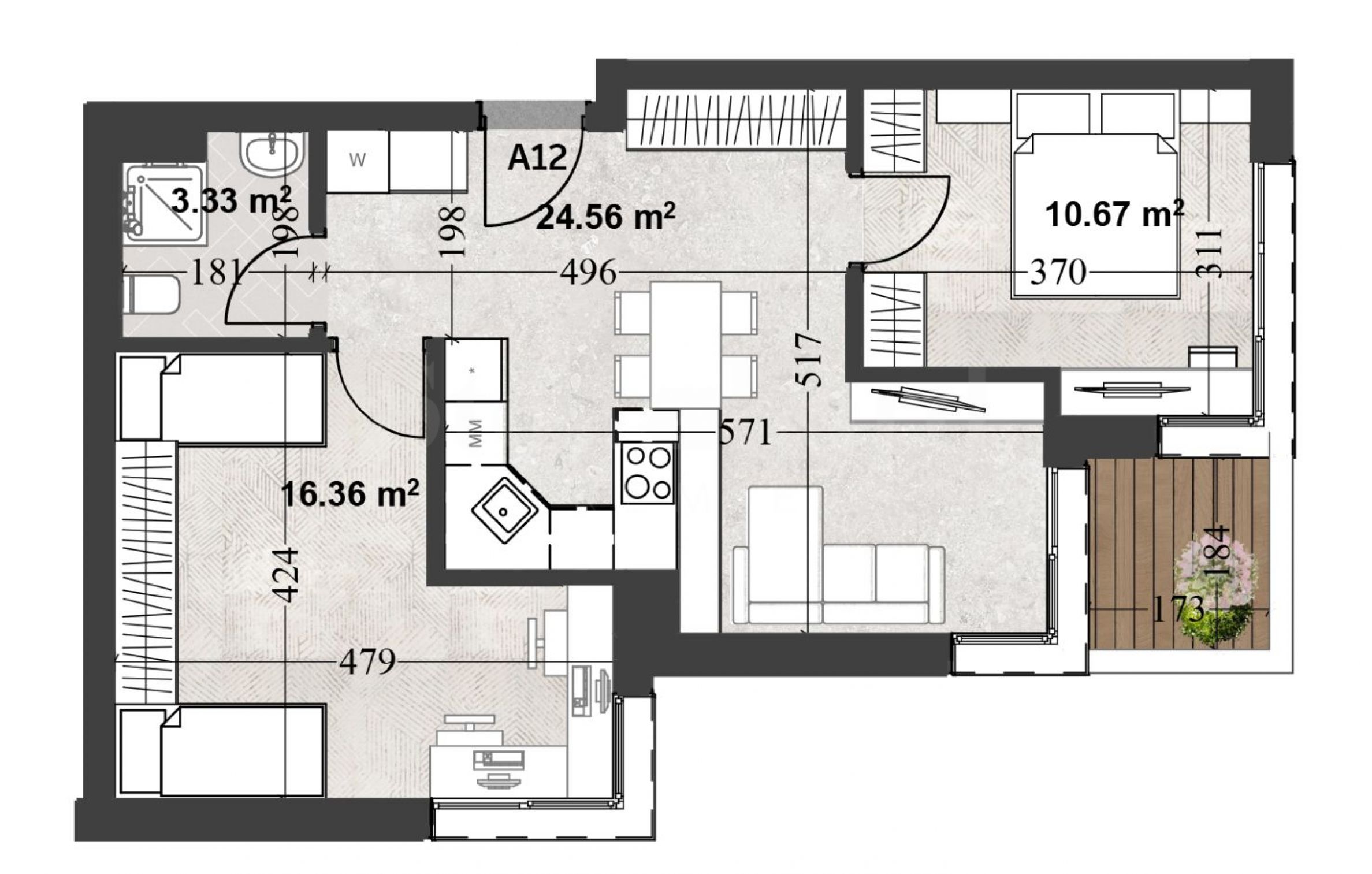
Die Wohnung befindet sich im dritten Stock, hat eine Gesamtfläche von 82,98 m² und folgende Aufteilung:
• Korridor;
• Wohnzimmer mit Küche und Essbereich,
• 2 Schlafzimmer;
• Badezimmer mit Toilette;
• Loggia.
Das Gebäude verfügt über fünf oberirdische und ein unterirdisches Geschoss. Im Untergeschoss befinden sich Garagen, Parkplätze und Kellerräume. Die fünf übrigen Wohnetagen beherbergen 14 Wohnungen mit zwei, drei und vier Schlafzimmern.
Die Immobilien vereinen helle Räume, klare Linien und ein Gefühl der Ruhe – alles ist mit viel Liebe zum Detail und für Menschen gestaltet, die Wert auf Qualität und einen modernen Lebensstil legen. Ein innovatives Konzept, das moderne Architektur, Naturverbundenheit und neue Technologien verbindet.
Moderne und hochwertige Bauweise, sehr hoher Qualitätsstandard der verwendeten Materialien.
Technische Merkmale:
• Energieklasse A – Das Gebäude ist auf hohe Energieeffizienz ausgelegt, was einen niedrigen Energieverbrauch und optimale Heiz- und Kühlkosten gewährleistet – für einen nachhaltigeren und komfortableren Lebensstil.
• Photovoltaikanlage – Ein eingebautes System zur Stromversorgung der Gemeinschaftsbereiche, das zu niedrigeren Energiekosten und einem nachhaltigeren Betrieb des Gebäudes beiträgt.
• Premium-Fassade – Keramikfassade mit modernem Design und hervorragender Langlebigkeit.
• Französische Fenster - Maximale Verglasung für mehr Licht, Raum und eine natürliche Verbindung mit dem umgebenden Raum.
• Hochwertige Aluminiumverbindungen – mit hervorragender Wärme- und Schalldämmung, modernem Aussehen und langer Lebensdauer.
• Dezente Fassaden- und Gartenbeleuchtung, die die Architektur betont und nachts für Komfort und Sicherheit sorgt.
• Hochwirksame Schalldämmung – Garantiert Ruhe, Privatsphäre und akustischen Komfort in jedem Zuhause.
• Vorgefertigte Installation für Wärmepumpensysteme – eine energieeffiziente Lösung für Heizung, Kühlung und Warmwasser.
• Luxuriöse Gemeinschaftsbereiche - Individuell gestaltet nach einem exklusiven Interieurdesign mit hochwertigen Materialien und Liebe zum Detail.
• In allen Wohnungen ist eine Fußbodenheizung eingebaut, die ganzjährigen Komfort gewährleistet.
• Ein üppig gestalteter, umzäunter Garten – eine ruhige, grüne und ästhetische Umgebung zur Erholung und Entspannung.
• Tiefgarage – Großzügig und gut organisiert mit direktem Zugang zum Gebäude, ausgelegt für bequemes Parken auch für größere Fahrzeuge.
• Beschränkter Zugang – Automatisiertes Videokontrollsystem für den Zugang zum Gebäude und zum Innenhof – für mehr Sicherheit und ein beruhigendes Gefühl.
Drei Zahlungsmodelle:
Schema 1:
•30 % bei vorläufiger Vereinbarung
•30 % für Gesetz 14
•30 % für Gesetz 15
•10 % für Act 16
Schema 2:
•60 % bei Vertragsabschluss
•30 % für Gesetz 15
•10 % für Act 16
Schema 3:
•90 % mit einem Vorvertrag
•10 % für Act 16
Reservierung gegen Anzahlung möglich.
Es besteht die Möglichkeit, Außenstellplätze ab 35.000 € (68.454 Lewa), Tiefgaragenstellplätze ab 39.000 € (76.277 Lewa) und Tiefgaragenplätze ab 45.000 € (88.012 Lewa) zu erwerben. Die Preise verstehen sich zuzüglich Mehrwertsteuer.
Baubeginn: November 2025, voraussichtliche Inbetriebnahme: 16. Dezember 2027.
Wir freuen uns auf Ihre Anfrage.
Wenn Sie eine Immobilie besichtigen möchten, die Sie interessiert, oder eines unserer Büros besuchen möchten, kontaktieren Sie uns bitte. Um einen Termin für eine Besichtigung oder ein Treffen zu vereinbaren, rufen Sie uns bitte unter der in der Anzeige angegebenen Telefonnummer an oder senden Sie uns eine Anfrage per E-Mail. Unser Berater unterstützt Sie gerne mit allen notwendigen Informationen und findet einen passenden Termin für Sie.
Sind Sie auf der Suche nach der passenden Immobilie für Sie?
Zögern Sie nicht, uns zu kontaktieren und uns Ihre Wünsche und Vorlieben mitzuteilen. Unser Team führt eine gründliche Marktanalyse durch, um Ihnen Immobilien anzubieten, die genau Ihren Kriterien entsprechen. Wir verfügen über ein außergewöhnliches Portfolio an hochwertigen und exklusiven Häusern, die nur unseren Kunden zur Verfügung stehen. Um als Erster Informationen darüber zu erhalten, kontaktieren Sie uns.
Zusätzliche Dienstleistungen
Als geschätzter Kunde unseres Unternehmens genießen Sie den Vorteil, die Dienste unseres erfahrenen Rechtsteams kostenfrei in Anspruch zu nehmen. Darüber hinaus bieten wir Ihnen umfassende Lösungen, darunter Gebäudeversicherungen, kostenlose Finanzberatung sowie attraktive Finanzierungskonditionen. Unser Leistungsspektrum umfasst auch die Bereiche Wiederverkauf, Vermietung und Immobilienverwaltung. Hochwertige Renovierungen und Einrichtungsarbeiten vermitteln wir Ihnen über spezialisierte Unternehmen unserer Unternehmensgruppe, mit denen wir seit Langem zusammenarbeiten.
Besichtigungen
Wir können eine Besichtigung der Immobilie zu einer für Sie passenden Zeit vereinbaren. Bitte kontaktieren Sie den für dieses Angebot zuständigen Makler und teilen Sie ihm die von Ihnen gewünschte Uhrzeit mit.
Reservierung der Immobilie
Gegen eine nicht erstattete Anzahlung in Höhe von 2.000 Euro wird die Immobilie reserviert. Weitere Besichtigungen mit anderen Käufern finden nicht statt und Makler beginnt mit der Vorbereitung der Dokumente für den Abschluss des endgültigen Vertrags für Eigentumsübertragung. Bitte kontaktieren Sie den zuständigen Makler für mehr Information über den Kauf einer Immobilie und Zahlungsarten.
Zusatzleistungen und Kundendienst
Wir sind ein seriöses Unternehmen und werden nicht nur während des Kaufs, sondern auch danach bei Ihnen sein und Ihnen auf Ihren Wunsch zusätzliche Dienstleistungen anbieten, um die neu gekaufte Immobilie vollständig und nahtlos zu nutzen. Die Dienstleistungen, die wir anbieten können, umfassen die Erlangung einer Hypothekengenehmigung, eine Versicherung für bewegliche und unbewegliche Sachen, eine Lebensversicherung, eine Kranken- und Autoversicherung, Bau- und Reparaturaktivitäten, Möbel, Rechts- und Buchhaltungsdienstleistungen usw.
Bei uns können Sie nicht nur eine Immobilie mieten, sondern auch eine Reihe von Zusatzleistungen in Anspruch nehmen. Wir können Versicherungen für bewegliches und unbewegliches Vermögen, Lebensversicherungen, Kranken- und Kfz-Versicherungen, Bau- und Reparaturarbeiten, Möbel, Rechts- und Buchhaltungsdienstleistungen usw. anbieten.
Standort auf der Karte
VERKAUF
PROJEKT
Designer-Apartment mit zwei Schlafzimmern in einem prestigeträchtigen Gebäude A3
Manastirski Livadi - East / Sofia / Sofia / Bulgarien Karte
Bereich: 165 m 2
Preis: 630 000 € /// 3 818 €/m 2
Ein neues Wohnprojekt mit acht Gebäuden und unterschiedlichen Wohnungstypen im Stadtteil „Malinova Dolina“
Malinova Dolina / Sofia / Sofia / Bulgarien Karte
Immobilienpreise: 73 000 - 212 000 €
Preise pro m²: 1 738 - 1 933 €/m 2
Neuer Komplex mit verschiedenen Wohnungstypen im Stadtteil „Manastirski Livadi - Iztok“.
Manastirski Livadi - East / Sofia / Sofia / Bulgarien Karte
Immobilienpreise: 183 906 - 449 314 € (ohne MwSt.)
Preise pro m²: 2 600 - 2 600 €/m 2 (ohne MwSt.)
Wählen Sie diese Option und wir benachrichtigen Sie per E-Mail, wenn sich der Angebotsstatus ändert, zum Beispiel:
• Preisänderung;
• Die Immobilie hat ein Sonderangebot abgegeben;
• Die Immobilie ist reserviert oder verkauft;
• Weitere Neuigkeiten im Zusammenhang mit der Immobilie.
• Die Immobilie wird aus dem Verkauf genommen;
Sie können Benachrichtigungen jederzeit problemlos abbestellen.• Änderungen der Angebotsbedingungen;
• Änderung der Investitionshöhe;
• Der Investitionsgegenstand wurde vollständig realisiert;
• Das Angebot ist abgelaufen.
Sie können sich ganz einfach abmelden, wenn Sie in Zukunft entscheiden, dass Sie dieses Angebot nicht mehr nutzen möchten.
Um absolut korrekte Informationen über die im Projekt verfügbaren, leerstehenden Immobilien und deren aktuelle Preise zu erhalten, kontaktieren Sie bitte unser Büro unter den angegebenen Kontaktdaten.
Wir bemühen uns nach Kräften, unsere Preislisten stets aktuell und korrekt zu halten, doch angesichts der Vielzahl neuer Projekte in unserem Katalog und der stark schwankenden Verkaufszahlen ist dies oft unmöglich.
Vielen Dank für Ihr Verständnis!



...Als ausgewiesener Spezialist arbeitet Stonehard PREMIER an der Marktpositionierung und dem Vertrieb zahlreicher Neubauprojekte, deren Umsetzung uns führende Unternehmergesellschaften in Bulgarien und im Ausland anvertraut haben...