Art.-Nr. Nummer: PLV-135161 / 4790
Standort: Hristo Smirnenski / Plovdiv Karte
Gebäude-/Komplextyp: Wohnen
Wohngebiete: 162.56 m 2
Arten von Immobilien im Gebäude/Komplex: Mehr-Zimmer-Apartments
Art.-Nr. Nummer: PLV-135161
Standort: Hristo Smirnenski / Plovdiv
Gebäude-/Komplextyp: Жилищен
Gebäude-/Komplexklasse:
Wohngebiete: 162.56 m 2
Arten von Immobilien im Gebäude/Komplex: Mehr-Zimmer-Apartments
Wir präsentieren eine Vierzimmerwohnung in einem neuen Boutique-Komplex im Stadtteil „Hristo Smirnenski“. In der Nähe des Lexi-Supermarkts, des Pulmed-Krankenhauses, des St.-Georgs-Krankenhauses, des Mathematikgymnasiums und der Sofia-Universität „St. St. Cyril und Methodius“.
Im Aufbau ist das Gesetz 14 voraussichtlich am 30.06.2026, das Gesetz 15 bis zum 30.06.2027 und das Gesetz 16 ist für den 30.12.2027 vorgesehen.
KEINE PROVISION!
Das Projekt wurde mit der Idee konzipiert, nicht wie alles andere in der Nachbarschaft auszusehen. Die Fassade ist belüftet und verfügt über architektonische Details, die auch in zehn Jahren noch relevant aussehen werden.
Das Innere der Gemeinschaftsbereiche wird mit hochwertigen Materialien, natürlichen Texturen und Licht ausgestattet sein, das das Raumgefühl verändert.
Das Gebäude hat einen Eingang und bietet nur 27 Wohnungen – Zwei-, Drei- und Vierzimmerwohnungen.
Eigenschaftsparameter
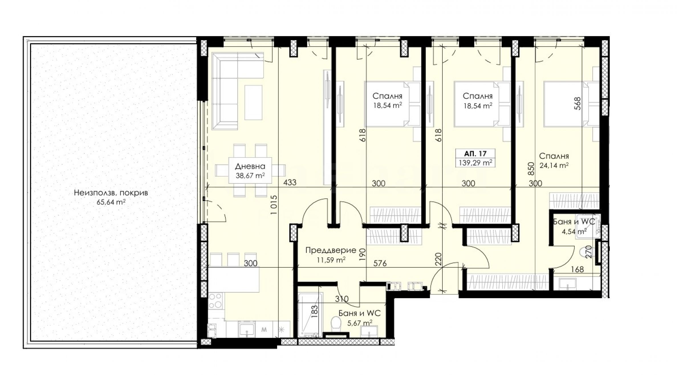
Die Wohnung mit einer Gesamtfläche von 162,56 qm befindet sich im 5. Stock des 8.
Die Wohnungen werden in folgendem Ausbaugrad nach bulgarischen Baunormen , mit Putz und Estrich, vermietet:
• Wände und Decken – Turbosolputz;
• Boden – auf Zementestrich;
• eingebaute Eingangstür – gepanzert;
• Elektroinstallation – bis hin zu Schaltern und Steckdosen;
• Wasserversorgung und Abwasser bis zur Steckdose.
Technische Eigenschaften:
• hinterlüftete Fassade;
• Ziegel – Wienerberger Porotherm 25 Profi – für Außenwände, Wienerberger Porotherm 12 Profi – für Trennwände;
• Abdichtung – 1 cm – Abdichtung aus zwei Schichten Bitumenplane 5 cm, Ausgleichszementmörtel, 1 cm – Dampfsperre aus Polyethylenfolie;
• Wärmedämmung – 10 cm – Wärmedämmung des Daches mit XPS-Platten;
• Schalldämmung im Boden und in der Decke sowie zwischen den einzelnen Wohnungen;
• lichte Höhe des Geländes – 2,63 m;
• große Fenster, Dreifachverglasung und Reynaers MasterLine 8 HI-Aluminiumtischlerei – ein erstklassiges System, das Wärme-, Lärm- und • Windbeständigkeit auf dem Niveau eines Geschäftsgebäudes bietet;
• Schalter und Steckdosen;
• Gemeinschaftsbereiche – luxuriös mit großflächigen Granitfliesen.
Die Parkmöglichkeiten sind zu über 100 % durch Stellplätze und Garagen abgedeckt.
Dies ist nicht „nur ein weiteres Gebäude in Smirnensky“. Dies ist ein Projekt für Menschen, die wissen, was sie wollen – hochwertige Bauweise, diskreten Luxus und einen Ort, an dem man sich richtig fühlt.
Für weitere Informationen und zur Vereinbarung eines Besichtigungstermins wenden Sie sich bitte an den für das Angebot zuständigen Makler.
Besichtigungen
Wir können eine Besichtigung der Immobilie zu einer für Sie passenden Zeit vereinbaren. Bitte kontaktieren Sie den für dieses Angebot zuständigen Makler und teilen Sie ihm die von Ihnen gewünschte Uhrzeit mit.
Reservierung der Immobilie
Gegen eine nicht erstattete Anzahlung in Höhe von 2.000 Euro wird die Immobilie reserviert. Weitere Besichtigungen mit anderen Käufern finden nicht statt und Makler beginnt mit der Vorbereitung der Dokumente für den Abschluss des endgültigen Vertrags für Eigentumsübertragung. Bitte kontaktieren Sie den zuständigen Makler für mehr Information über den Kauf einer Immobilie und Zahlungsarten.
Zusatzleistungen und Kundendienst
Wir sind ein seriöses Unternehmen und werden nicht nur während des Kaufs, sondern auch danach bei Ihnen sein und Ihnen auf Ihren Wunsch zusätzliche Dienstleistungen anbieten, um die neu gekaufte Immobilie vollständig und nahtlos zu nutzen. Die Dienstleistungen, die wir anbieten können, umfassen die Erlangung einer Hypothekengenehmigung, eine Versicherung für bewegliche und unbewegliche Sachen, eine Lebensversicherung, eine Kranken- und Autoversicherung, Bau- und Reparaturaktivitäten, Möbel, Rechts- und Buchhaltungsdienstleistungen usw.
Bei uns können Sie nicht nur eine Immobilie mieten, sondern auch eine Reihe von Zusatzleistungen in Anspruch nehmen. Wir können Versicherungen für bewegliches und unbewegliches Vermögen, Lebensversicherungen, Kranken- und Kfz-Versicherungen, Bau- und Reparaturarbeiten, Möbel, Rechts- und Buchhaltungsdienstleistungen usw. anbieten.
Standort auf der Karte
Wir präsentieren eine Vierzimmerwohnung in einem neuen Boutique-Komplex im Stadtteil „Hristo Smirnenski“. In der Nähe des Lexi-Supermarkts, des Pulmed-Krankenhauses, des St.-Georgs-Krankenhauses, des Mathematikgymnasiums und der Sofia-Universität „St. St. Cyril und Methodius“.
Im Aufbau ist das Gesetz 14 voraussichtlich am 30.06.2026, das Gesetz 15 bis zum 30.06.2027 und das Gesetz 16 ist für den 30.12.2027 vorgesehen.
KEINE PROVISION!
Das Projekt wurde mit der Idee konzipiert, nicht wie alles andere in der Nachbarschaft auszusehen. Die Fassade ist belüftet und verfügt über architektonische Details, die auch in zehn Jahren noch relevant aussehen werden.
Das Innere der Gemeinschaftsbereiche wird mit hochwertigen Materialien, natürlichen Texturen und Licht ausgestattet sein, das das Raumgefühl verändert.
Das Gebäude hat einen Eingang und bietet nur 27 Wohnungen – Zwei-, Drei- und Vierzimmerwohnungen.
Eigenschaftsparameter
Die Wohnung mit einer Gesamtfläche von 162,56 qm befindet sich im 5. Stock des 8.
Die Wohnungen werden in folgendem Ausbaugrad nach bulgarischen Baunormen , mit Putz und Estrich, vermietet:
• Wände und Decken – Turbosolputz;
• Boden – auf Zementestrich;
• eingebaute Eingangstür – gepanzert;
• Elektroinstallation – bis hin zu Schaltern und Steckdosen;
• Wasserversorgung und Abwasser bis zur Steckdose.
Technische Eigenschaften:
• hinterlüftete Fassade;
• Ziegel – Wienerberger Porotherm 25 Profi – für Außenwände, Wienerberger Porotherm 12 Profi – für Trennwände;
• Abdichtung – 1 cm – Abdichtung aus zwei Schichten Bitumenplane 5 cm, Ausgleichszementmörtel, 1 cm – Dampfsperre aus Polyethylenfolie;
• Wärmedämmung – 10 cm – Wärmedämmung des Daches mit XPS-Platten;
• Schalldämmung im Boden und in der Decke sowie zwischen den einzelnen Wohnungen;
• lichte Höhe des Geländes – 2,63 m;
• große Fenster, Dreifachverglasung und Reynaers MasterLine 8 HI-Aluminiumtischlerei – ein erstklassiges System, das Wärme-, Lärm- und • Windbeständigkeit auf dem Niveau eines Geschäftsgebäudes bietet;
• Schalter und Steckdosen;
• Gemeinschaftsbereiche – luxuriös mit großflächigen Granitfliesen.
Die Parkmöglichkeiten sind zu über 100 % durch Stellplätze und Garagen abgedeckt.
Dies ist nicht „nur ein weiteres Gebäude in Smirnensky“. Dies ist ein Projekt für Menschen, die wissen, was sie wollen – hochwertige Bauweise, diskreten Luxus und einen Ort, an dem man sich richtig fühlt.
Für weitere Informationen und zur Vereinbarung eines Besichtigungstermins wenden Sie sich bitte an den für das Angebot zuständigen Makler.
Besichtigungen
Wir können eine Besichtigung der Immobilie zu einer für Sie passenden Zeit vereinbaren. Bitte kontaktieren Sie den für dieses Angebot zuständigen Makler und teilen Sie ihm die von Ihnen gewünschte Uhrzeit mit.
Reservierung der Immobilie
Gegen eine nicht erstattete Anzahlung in Höhe von 2.000 Euro wird die Immobilie reserviert. Weitere Besichtigungen mit anderen Käufern finden nicht statt und Makler beginnt mit der Vorbereitung der Dokumente für den Abschluss des endgültigen Vertrags für Eigentumsübertragung. Bitte kontaktieren Sie den zuständigen Makler für mehr Information über den Kauf einer Immobilie und Zahlungsarten.
Zusatzleistungen und Kundendienst
Wir sind ein seriöses Unternehmen und werden nicht nur während des Kaufs, sondern auch danach bei Ihnen sein und Ihnen auf Ihren Wunsch zusätzliche Dienstleistungen anbieten, um die neu gekaufte Immobilie vollständig und nahtlos zu nutzen. Die Dienstleistungen, die wir anbieten können, umfassen die Erlangung einer Hypothekengenehmigung, eine Versicherung für bewegliche und unbewegliche Sachen, eine Lebensversicherung, eine Kranken- und Autoversicherung, Bau- und Reparaturaktivitäten, Möbel, Rechts- und Buchhaltungsdienstleistungen usw.
Bei uns können Sie nicht nur eine Immobilie mieten, sondern auch eine Reihe von Zusatzleistungen in Anspruch nehmen. Wir können Versicherungen für bewegliches und unbewegliches Vermögen, Lebensversicherungen, Kranken- und Kfz-Versicherungen, Bau- und Reparaturarbeiten, Möbel, Rechts- und Buchhaltungsdienstleistungen usw. anbieten.
Wir präsentieren eine Vierzimmerwohnung in einem neuen Boutique-Komplex im Stadtteil „Hristo Smirnenski“. In der Nähe des Lexi-Supermarkts, des Pulmed-Krankenhauses, des St.-Georgs-Krankenhauses, des Mathematikgymnasiums und der Sofia-Universität „St. St. Cyril und Methodius“.
Im Aufbau ist das Gesetz 14 voraussichtlich am 30.06.2026, das Gesetz 15 bis zum 30.06.2027 und das Gesetz 16 ist für den 30.12.2027 vorgesehen.
KEINE PROVISION!
Das Projekt wurde mit der Idee konzipiert, nicht wie alles andere in der Nachbarschaft auszusehen. Die Fassade ist belüftet und verfügt über architektonische Details, die auch in zehn Jahren noch relevant aussehen werden.
Das Innere der Gemeinschaftsbereiche wird mit hochwertigen Materialien, natürlichen Texturen und Licht ausgestattet sein, das das Raumgefühl verändert.
Das Gebäude hat einen Eingang und bietet nur 27 Wohnungen – Zwei-, Drei- und Vierzimmerwohnungen.
Eigenschaftsparameter
Die Wohnung mit einer Gesamtfläche von 162,56 qm befindet sich im 5. Stock des 8.
Die Wohnungen werden in folgendem Ausbaugrad nach bulgarischen Baunormen , mit Putz und Estrich, vermietet:
• Wände und Decken – Turbosolputz;
• Boden – auf Zementestrich;
• eingebaute Eingangstür – gepanzert;
• Elektroinstallation – bis hin zu Schaltern und Steckdosen;
• Wasserversorgung und Abwasser bis zur Steckdose.
Technische Eigenschaften:
• hinterlüftete Fassade;
• Ziegel – Wienerberger Porotherm 25 Profi – für Außenwände, Wienerberger Porotherm 12 Profi – für Trennwände;
• Abdichtung – 1 cm – Abdichtung aus zwei Schichten Bitumenplane 5 cm, Ausgleichszementmörtel, 1 cm – Dampfsperre aus Polyethylenfolie;
• Wärmedämmung – 10 cm – Wärmedämmung des Daches mit XPS-Platten;
• Schalldämmung im Boden und in der Decke sowie zwischen den einzelnen Wohnungen;
• lichte Höhe des Geländes – 2,63 m;
• große Fenster, Dreifachverglasung und Reynaers MasterLine 8 HI-Aluminiumtischlerei – ein erstklassiges System, das Wärme-, Lärm- und • Windbeständigkeit auf dem Niveau eines Geschäftsgebäudes bietet;
• Schalter und Steckdosen;
• Gemeinschaftsbereiche – luxuriös mit großflächigen Granitfliesen.
Die Parkmöglichkeiten sind zu über 100 % durch Stellplätze und Garagen abgedeckt.
Dies ist nicht „nur ein weiteres Gebäude in Smirnensky“. Dies ist ein Projekt für Menschen, die wissen, was sie wollen – hochwertige Bauweise, diskreten Luxus und einen Ort, an dem man sich richtig fühlt.
Für weitere Informationen und zur Vereinbarung eines Besichtigungstermins wenden Sie sich bitte an den für das Angebot zuständigen Makler.
Besichtigungen
Wir können eine Besichtigung der Immobilie zu einer für Sie passenden Zeit vereinbaren. Bitte kontaktieren Sie den für dieses Angebot zuständigen Makler und teilen Sie ihm die von Ihnen gewünschte Uhrzeit mit.
Reservierung der Immobilie
Gegen eine nicht erstattete Anzahlung in Höhe von 2.000 Euro wird die Immobilie reserviert. Weitere Besichtigungen mit anderen Käufern finden nicht statt und Makler beginnt mit der Vorbereitung der Dokumente für den Abschluss des endgültigen Vertrags für Eigentumsübertragung. Bitte kontaktieren Sie den zuständigen Makler für mehr Information über den Kauf einer Immobilie und Zahlungsarten.
Zusatzleistungen und Kundendienst
Wir sind ein seriöses Unternehmen und werden nicht nur während des Kaufs, sondern auch danach bei Ihnen sein und Ihnen auf Ihren Wunsch zusätzliche Dienstleistungen anbieten, um die neu gekaufte Immobilie vollständig und nahtlos zu nutzen. Die Dienstleistungen, die wir anbieten können, umfassen die Erlangung einer Hypothekengenehmigung, eine Versicherung für bewegliche und unbewegliche Sachen, eine Lebensversicherung, eine Kranken- und Autoversicherung, Bau- und Reparaturaktivitäten, Möbel, Rechts- und Buchhaltungsdienstleistungen usw.
Bei uns können Sie nicht nur eine Immobilie mieten, sondern auch eine Reihe von Zusatzleistungen in Anspruch nehmen. Wir können Versicherungen für bewegliches und unbewegliches Vermögen, Lebensversicherungen, Kranken- und Kfz-Versicherungen, Bau- und Reparaturarbeiten, Möbel, Rechts- und Buchhaltungsdienstleistungen usw. anbieten.
Apartments in einem neuen Boutique-Komplex neben der Ruderbasis
Hristo Smirnenski / Plovdiv / Plovdiv / Bulgarien Karte
Immobilienpreise: 120 912 - 268 224 €
Preise pro m²: 1 650 - 1 750 €/m 2
VERKAUF
PROJEKT
Vier-Zimmer-Wohnung in einem neuen Luxuskomplex neben der Ruderbasis
Hristo Smirnenski / Plovdiv / Plovdiv / Bulgarien Karte
Gebäude-/Komplexklasse: Standard
Bereich: 182.51 m 2
Preis: Preis auf Anfrage ///
Wohnungen in einem neuen Komplex neben dem Ruderzentrum in Plovdiv
Hristo Smirnenski / Plovdiv / Plovdiv / Bulgarien Karte
Immobilienpreise: 95 511 - 182 813 €
Preise pro m²: 1 250 - 1 400 €/m 2
Wählen Sie diese Option und wir benachrichtigen Sie per E-Mail, wenn sich der Angebotsstatus ändert, zum Beispiel:
• Preisänderung;
• Die Immobilie hat ein Sonderangebot abgegeben;
• Die Immobilie ist reserviert oder verkauft;
• Weitere Neuigkeiten im Zusammenhang mit der Immobilie.
• Die Immobilie wird aus dem Verkauf genommen;
Sie können Benachrichtigungen jederzeit problemlos abbestellen.• Änderungen der Angebotsbedingungen;
• Änderung der Investitionshöhe;
• Der Investitionsgegenstand wurde vollständig realisiert;
• Das Angebot ist abgelaufen.
Sie können sich ganz einfach abmelden, wenn Sie in Zukunft entscheiden, dass Sie dieses Angebot nicht mehr nutzen möchten.



...Als ausgewiesener Spezialist arbeitet Stonehard PREMIER an der Marktpositionierung und dem Vertrieb zahlreicher Neubauprojekte, deren Umsetzung uns führende Unternehmergesellschaften in Bulgarien und im Ausland anvertraut haben...