Art.-Nr. Nummer: PLV-133966 / 3474
Standort: Kurshiyaka / Plovdiv Karte
Gebäude-/Komplextyp: Wohnen
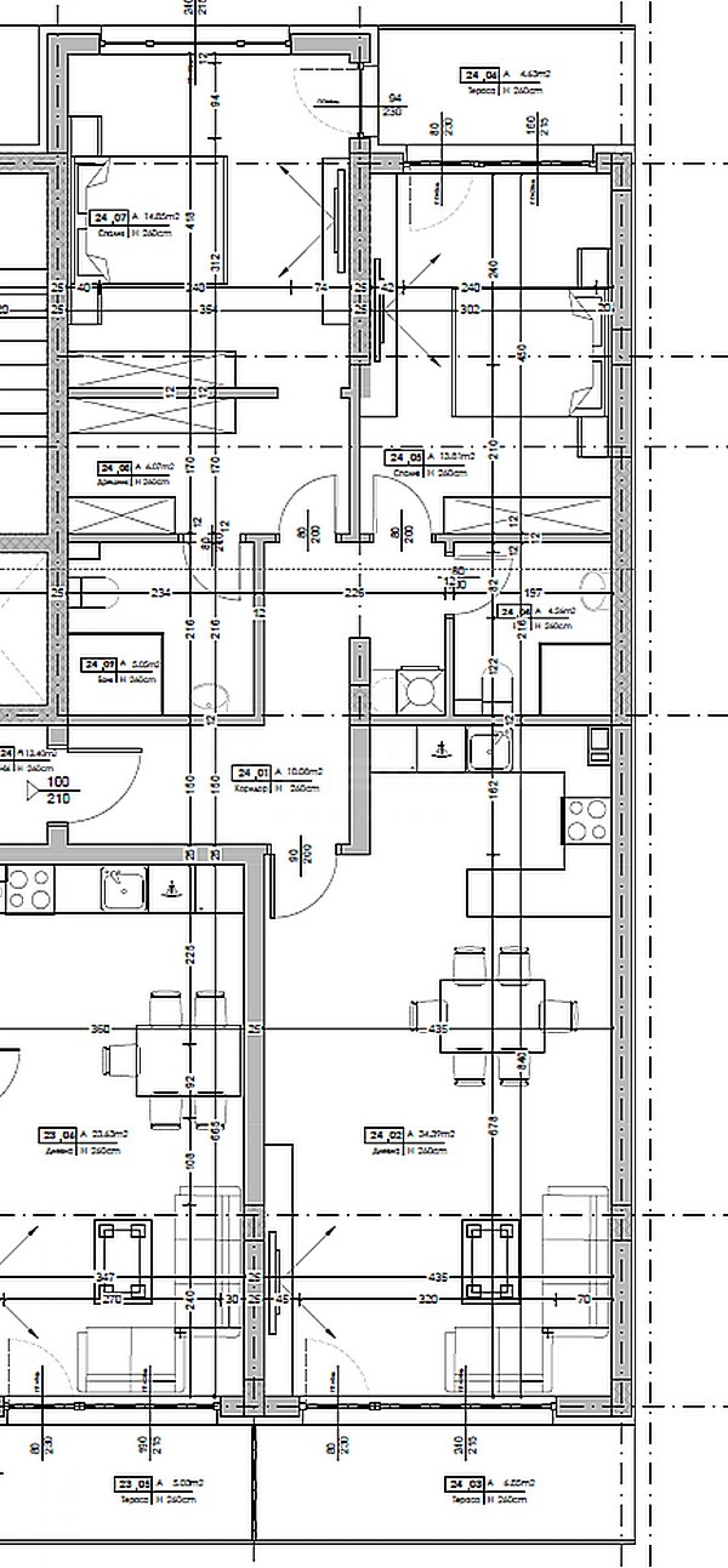
Wohngebiete: 131 m 2
Arten von Immobilien im Gebäude/Komplex: 3-Raum-Apartments
Art.-Nr. Nummer: PLV-133966
Standort: Kurshiyaka / Plovdiv
Gebäude-/Komplextyp: Жилищен
Gebäude-/Komplexklasse:
Wohngebiete: 131 m 2
Arten von Immobilien im Gebäude/Komplex: 3-Raum-Apartments
Wir präsentieren eine Dreizimmerwohnung in einem neuen Komplex im Stadtteil „Karshiyaka“. Das Gebäude hat den Status 14 und verfügt über einen abgeschlossenen Rohbau sowie Elektro- und Sanitärinstallationen.
Ausgezeichnete Lage in der Nähe des Flusses Maritsa, des Ruderkanals, des Universitätskrankenhauses Plovdiv – Allgemeines Universitätskrankenhaus, der Universität Plovdiv, von Sprachgymnasien, des Alati-Ladens und des Maritsa-Gartenkomplexes.
Eigenschaftsparameter
Die Wohnungen werden in einem Fertigstellungsgrad gemäß bulgarischem Zivilgesetzbuch übergeben:
hochwertige Fünfkammer-Tischlerei mit Dreifachverglasung;
Vorbereitung auf Smart-Home-Lösungen im Eigenheim;
Schalldämmung der Böden. Zusätzliche Annehmlichkeiten, die durch die Projekte bereitgestellt werden:
Photovoltaikanlage auf den Dächern – zur Sicherstellung des allgemeinen Verbrauchs – Gemeinschaftsbereiche, Parkbeleuchtung usw.;
24-Stunden-Videoüberwachung;
Ladestationen für Elektrofahrzeuge – 22 kW;
zentrale Anlage zur Filterung und Entkalkung von Trinkwasser;
Anlage zur Nutzung von Regenwasser für Bewässerungszwecke mit einem Tank. Optional kann eine Tiefgarage gegen einen Aufpreis von 35.000 Euro erworben werden.
Für weitere Informationen wenden Sie sich bitte an den für das Angebot zuständigen Makler.
Standort auf der Karte
Wir präsentieren eine Dreizimmerwohnung in einem neuen Komplex im Stadtteil „Karshiyaka“. Das Gebäude hat den Status 14 und verfügt über einen abgeschlossenen Rohbau sowie Elektro- und Sanitärinstallationen.
Ausgezeichnete Lage in der Nähe des Flusses Maritsa, des Ruderkanals, des Universitätskrankenhauses Plovdiv – Allgemeines Universitätskrankenhaus, der Universität Plovdiv, von Sprachgymnasien, des Alati-Ladens und des Maritsa-Gartenkomplexes.
Eigenschaftsparameter
Die Wohnungen werden in einem Fertigstellungsgrad gemäß bulgarischem Zivilgesetzbuch übergeben:
hochwertige Fünfkammer-Tischlerei mit Dreifachverglasung;
Vorbereitung auf Smart-Home-Lösungen im Eigenheim;
Schalldämmung der Böden. Zusätzliche Annehmlichkeiten, die durch die Projekte bereitgestellt werden:
Photovoltaikanlage auf den Dächern – zur Sicherstellung des allgemeinen Verbrauchs – Gemeinschaftsbereiche, Parkbeleuchtung usw.;
24-Stunden-Videoüberwachung;
Ladestationen für Elektrofahrzeuge – 22 kW;
zentrale Anlage zur Filterung und Entkalkung von Trinkwasser;
Anlage zur Nutzung von Regenwasser für Bewässerungszwecke mit einem Tank. Optional kann eine Tiefgarage gegen einen Aufpreis von 35.000 Euro erworben werden.
Für weitere Informationen wenden Sie sich bitte an den für das Angebot zuständigen Makler.
Wir präsentieren eine Dreizimmerwohnung in einem neuen Komplex im Stadtteil „Karshiyaka“. Das Gebäude hat den Status 14 und verfügt über einen abgeschlossenen Rohbau sowie Elektro- und Sanitärinstallationen.
Ausgezeichnete Lage in der Nähe des Flusses Maritsa, des Ruderkanals, des Universitätskrankenhauses Plovdiv – Allgemeines Universitätskrankenhaus, der Universität Plovdiv, von Sprachgymnasien, des Alati-Ladens und des Maritsa-Gartenkomplexes.
Eigenschaftsparameter
Die Wohnungen werden in einem Fertigstellungsgrad gemäß bulgarischem Zivilgesetzbuch übergeben:
hochwertige Fünfkammer-Tischlerei mit Dreifachverglasung;
Vorbereitung auf Smart-Home-Lösungen im Eigenheim;
Schalldämmung der Böden. Zusätzliche Annehmlichkeiten, die durch die Projekte bereitgestellt werden:
Photovoltaikanlage auf den Dächern – zur Sicherstellung des allgemeinen Verbrauchs – Gemeinschaftsbereiche, Parkbeleuchtung usw.;
24-Stunden-Videoüberwachung;
Ladestationen für Elektrofahrzeuge – 22 kW;
zentrale Anlage zur Filterung und Entkalkung von Trinkwasser;
Anlage zur Nutzung von Regenwasser für Bewässerungszwecke mit einem Tank. Optional kann eine Tiefgarage gegen einen Aufpreis von 35.000 Euro erworben werden.
Für weitere Informationen wenden Sie sich bitte an den für das Angebot zuständigen Makler.
Apartments in einem neuen Boutique-Komplex neben der Ruderbasis
Hristo Smirnenski / Plovdiv / Plovdiv / Bulgarien Karte
Immobilienpreise: 120 912 - 268 224 €
Preise pro m²: 1 650 - 1 750 €/m 2
Wohnungen in einem neuen Komplex neben dem Ruderzentrum in Plovdiv
Hristo Smirnenski / Plovdiv / Plovdiv / Bulgarien Karte
Immobilienpreise: 95 511 - 182 813 €
Preise pro m²: 1 250 - 1 400 €/m 2
Wohnungen in einem neuen innovativen Komplex im Stadtteil „Christ of Smyrna“
Hristo Smirnenski / Plovdiv / Plovdiv / Bulgarien Karte
Immobilienpreise: 102 196 - 419 712 €
Preise pro m²: 1 350 - 1 600 €/m 2
Wählen Sie diese Option und wir benachrichtigen Sie per E-Mail, wenn sich der Angebotsstatus ändert, zum Beispiel:
• Preisänderung;
• Die Immobilie hat ein Sonderangebot abgegeben;
• Die Immobilie ist reserviert oder verkauft;
• Weitere Neuigkeiten im Zusammenhang mit der Immobilie.
• Die Immobilie wird aus dem Verkauf genommen;
Sie können Benachrichtigungen jederzeit problemlos abbestellen.• Änderungen der Angebotsbedingungen;
• Änderung der Investitionshöhe;
• Der Investitionsgegenstand wurde vollständig realisiert;
• Das Angebot ist abgelaufen.
Sie können sich ganz einfach abmelden, wenn Sie in Zukunft entscheiden, dass Sie dieses Angebot nicht mehr nutzen möchten.



...Als ausgewiesener Spezialist arbeitet Stonehard PREMIER an der Marktpositionierung und dem Vertrieb zahlreicher Neubauprojekte, deren Umsetzung uns führende Unternehmergesellschaften in Bulgarien und im Ausland anvertraut haben...