Art.-Nr. Nummer: SOF-129168
Standort: Boyana / Sofia Karte
Gebäude-/Komplextyp: Wohnen
Gebäude-/Komplexklasse: Hoher Standard
Wohngebiete: 76 m 2
Arten von Immobilien im Gebäude/Komplex: 2-Raum-Apartments
Art.-Nr. Nummer: SOF-129168
Standort: Boyana / Sofia
Gebäude-/Komplextyp: Жилищен
Gebäude-/Komplexklasse: Hoher Standard
Wohngebiete: 76 m 2
Arten von Immobilien im Gebäude/Komplex: 2-Raum-Apartments
Dieser Komplex in einem prestigeträchtigen Viertel vereint eine hervorragende Lage, hochwertige Materialien und moderne Technologien und ist somit die ideale Wahl für Menschen, die ein komfortables Leben in einer gut organisierten städtischen Umgebung mit unmittelbarer Nähe zur Natur suchen. Dank der günstigen Anbindung an den Bulgaria Boulevard und die Ringstraße erreichen Sie das Stadtzentrum schnell, während die Nähe zum Vitosha-Park für frische Luft und eine schöne Aussicht sorgt.
Eigenschaftsparameter
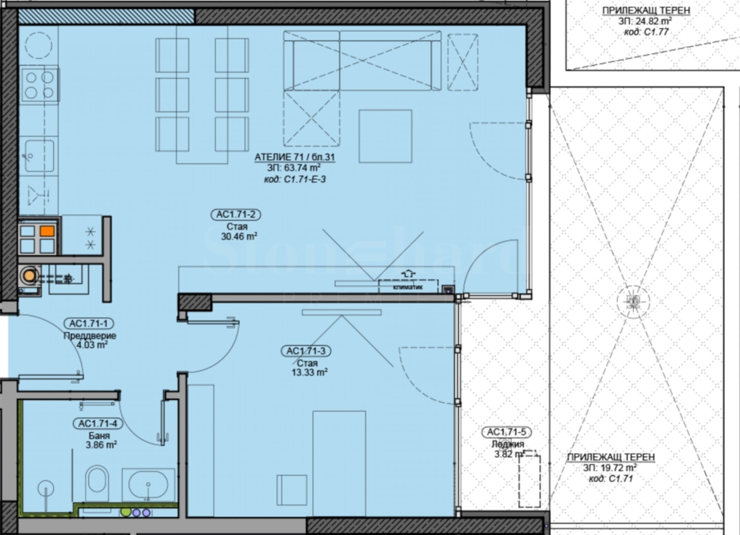
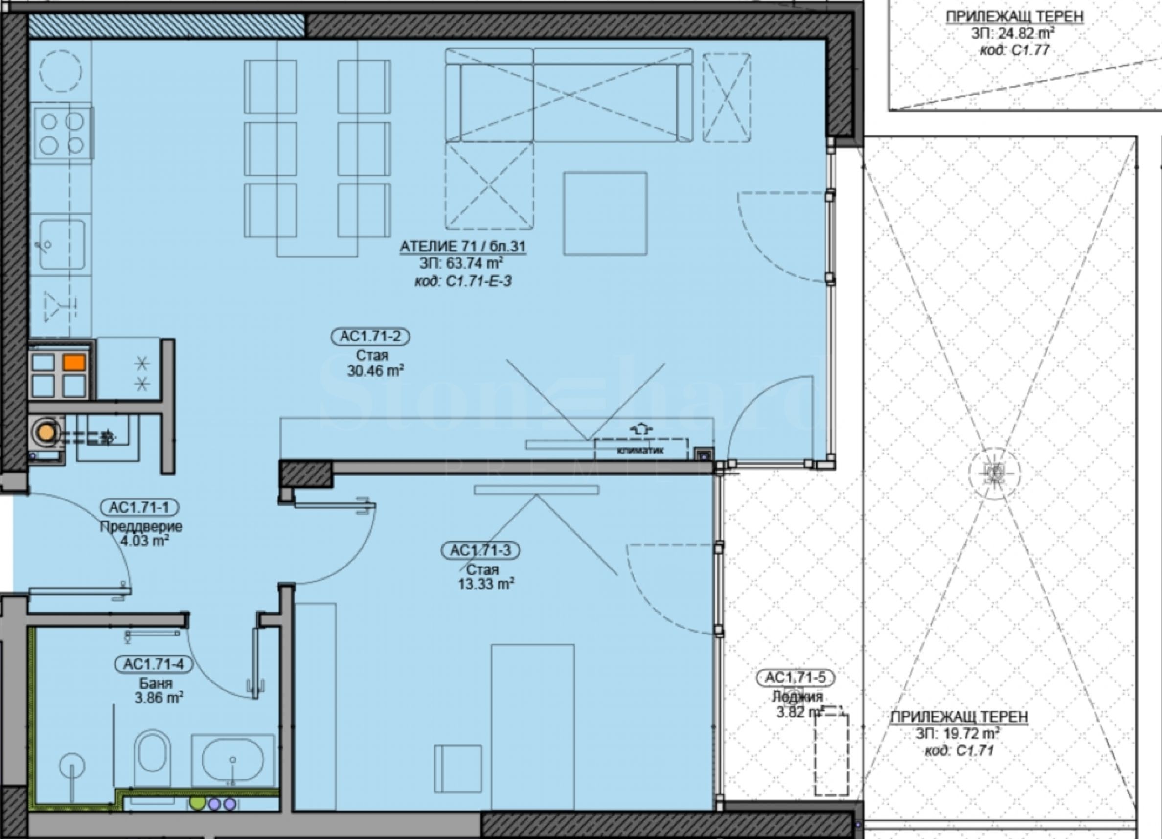
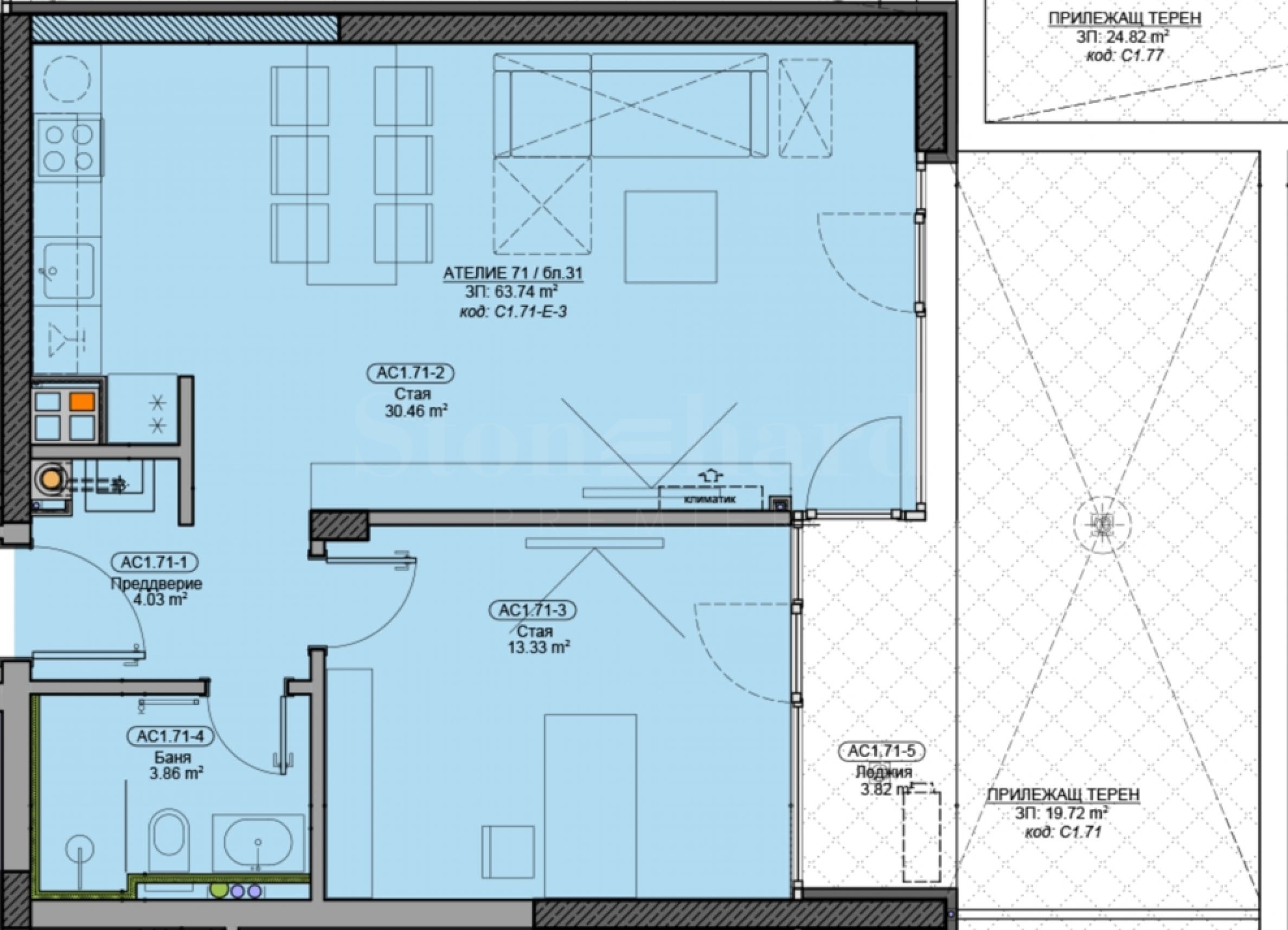
Die Wohnung befindet sich im Erdgeschoss und hat eine Gesamtfläche von 76,34 m². Sie besteht aus einem Eingangsbereich, einem Badezimmer mit Toilette, einem Schlafzimmer, einem Wohnzimmer mit Küche, einer Terrasse im Loggia-Stil mit Zugang vom Wohnzimmer und Schlafzimmer, einem Hof – 19,72 m².
Es wird in folgendem Fertigstellungsgrad nach BDS angeboten:
Böden mit Schalldämmung Copersound P-TEX;
Schalter und Steckdosen Legrand Valena Life;
PVC-Fenster mit Kömmerling-Dreifachverglasung;
Gasheizung mit Bosch-Kessel und Verkabelung für Klimaanlagen;
Massive Eingangstür, Modell iDoor 20-23;
Terrasse mit frostbeständigen Granitfliesen. *Jede Wohnung im Komplex verfügt über ein Smart Home-fähiges System, das die Steuerung von Beleuchtung, Heizung, Klimaanlage und Sicherheit über ein mobiles Gerät ermöglicht.
Zusätzlich kann ein Tiefgaragenstellplatz zum Preis von 68.454 BGN (35.000 EUR) ohne Mehrwertsteuer mit der Immobilie erworben werden.
Über den Komplex
Der Komplex, bestehend aus 8 Gebäuden mit insgesamt 204 Wohnungen und Studios, ist funktional gestaltet und bietet einen Panoramablick auf die Stadt und die Berge. Die Grünflächen zwischen den Gebäuden sind mit Gärten, Spazierwegen, Erholungsbereichen und Spielplätzen gestaltet. Für zusätzlichen Komfort sorgen ein Fitnesscenter, ein Restaurant, kontrollierter Zugang und Live-Sicherheit. Die Tiefgarage bietet bequeme Parkplätze und Garagen.
Die Architektur des Komplexes harmoniert mit der Umgebung und die Fassaden sind mit natürlichen Materialien wie Holz und Stein ausgestattet, was für ein modernes Aussehen, hervorragende Isolierung und Langlebigkeit sorgt.
Qualität und Nachhaltigkeit am Bau:
monolithische Stahlbetonkonstruktion;
Trennwände aus Wienerberger Keramikziegeln;
10 cm EPS-Wärmedämmung und Fassade mit Naturstein und Klinker;
XPS-Wärmedämmung auf dem Dach;
luxuriöse Gemeinschaftsbereiche mit Granit und Kone-Aufzügen für 8 Personen;
Landschaftsgestaltung mit einem automatischen Bewässerungssystem;
automatisches Garagentor mit Fernbedienung. Wir freuen uns auf Ihre Anfrage.
Wenn Sie eine Besichtigung einer Immobilie Ihrer Wahl oder einen Besuch in einem unserer Büros vereinbaren möchten, kontaktieren Sie uns bitte. Um einen Termin für ein Treffen oder eine Besichtigung zu vereinbaren, rufen Sie die in der Anzeige angegebene Telefonnummer an oder senden Sie eine Anfrage per E-Mail. Unser Berater berät Sie gerne bei allen notwendigen Details und vereinbart einen passenden Termin für Sie.
Sie suchen die passende Immobilie für sich?
Zögern Sie nicht, uns zu kontaktieren und uns Ihre Wünsche und Bedürfnisse mitzuteilen. Unser Team führt eine gründliche Marktforschung durch, um Ihnen Immobilien anzubieten, die genau Ihren Kriterien entsprechen. Wir verfügen über ein außergewöhnliches Portfolio an hochwertigen und exklusiven Immobilien, die nur unseren Kunden zur Verfügung stehen. Um als Erster Informationen darüber zu erhalten, kontaktieren Sie uns.
Zusätzliche Dienstleistungen
Als geschätzter Kunde unseres Unternehmens genießen Sie die Vorteile unseres erfahrenen Rechtsanwaltsteams völlig kostenlos. Darüber hinaus bieten wir umfassende Lösungen, darunter Gebäudeversicherungen, kostenlose Finanzberatung sowie günstige Finanzierungskonditionen. Unsere Dienstleistungen umfassen auch den Wiederverkauf, die Vermietung und die Hausverwaltung. Hochwertige Renovierungen und Möblierungen führen wir durch spezialisierte Unternehmen unserer Unternehmensgruppe durch, die unsere langjährigen professionellen Partner sind.
Besichtigungen
Wir können eine Besichtigung der Immobilie zu einer für Sie passenden Zeit vereinbaren. Bitte kontaktieren Sie den für dieses Angebot zuständigen Makler und teilen Sie ihm die von Ihnen gewünschte Uhrzeit mit.
Reservierung der Immobilie
Gegen eine nicht erstattete Anzahlung in Höhe von 2.000 Euro wird die Immobilie reserviert. Weitere Besichtigungen mit anderen Käufern finden nicht statt und Makler beginnt mit der Vorbereitung der Dokumente für den Abschluss des endgültigen Vertrags für Eigentumsübertragung. Bitte kontaktieren Sie den zuständigen Makler für mehr Information über den Kauf einer Immobilie und Zahlungsarten.
Zusatzleistungen und Kundendienst
Wir sind ein seriöses Unternehmen und werden nicht nur während des Kaufs, sondern auch danach bei Ihnen sein und Ihnen auf Ihren Wunsch zusätzliche Dienstleistungen anbieten, um die neu gekaufte Immobilie vollständig und nahtlos zu nutzen. Die Dienstleistungen, die wir anbieten können, umfassen die Erlangung einer Hypothekengenehmigung, eine Versicherung für bewegliche und unbewegliche Sachen, eine Lebensversicherung, eine Kranken- und Autoversicherung, Bau- und Reparaturaktivitäten, Möbel, Rechts- und Buchhaltungsdienstleistungen usw.
Bei uns können Sie nicht nur eine Immobilie mieten, sondern auch eine Reihe von Zusatzleistungen in Anspruch nehmen. Wir können Versicherungen für bewegliches und unbewegliches Vermögen, Lebensversicherungen, Kranken- und Kfz-Versicherungen, Bau- und Reparaturarbeiten, Möbel, Rechts- und Buchhaltungsdienstleistungen usw. anbieten.
Standort auf der Karte
Dieser Komplex in einem prestigeträchtigen Viertel vereint eine hervorragende Lage, hochwertige Materialien und moderne Technologien und ist somit die ideale Wahl für Menschen, die ein komfortables Leben in einer gut organisierten städtischen Umgebung mit unmittelbarer Nähe zur Natur suchen. Dank der günstigen Anbindung an den Bulgaria Boulevard und die Ringstraße erreichen Sie das Stadtzentrum schnell, während die Nähe zum Vitosha-Park für frische Luft und eine schöne Aussicht sorgt.
Eigenschaftsparameter
Die Wohnung befindet sich im Erdgeschoss und hat eine Gesamtfläche von 76,34 m². Sie besteht aus einem Eingangsbereich, einem Badezimmer mit Toilette, einem Schlafzimmer, einem Wohnzimmer mit Küche, einer Terrasse im Loggia-Stil mit Zugang vom Wohnzimmer und Schlafzimmer, einem Hof – 19,72 m².
Es wird in folgendem Fertigstellungsgrad nach BDS angeboten:
Böden mit Schalldämmung Copersound P-TEX;
Schalter und Steckdosen Legrand Valena Life;
PVC-Fenster mit Kömmerling-Dreifachverglasung;
Gasheizung mit Bosch-Kessel und Verkabelung für Klimaanlagen;
Massive Eingangstür, Modell iDoor 20-23;
Terrasse mit frostbeständigen Granitfliesen. *Jede Wohnung im Komplex verfügt über ein Smart Home-fähiges System, das die Steuerung von Beleuchtung, Heizung, Klimaanlage und Sicherheit über ein mobiles Gerät ermöglicht.
Zusätzlich kann ein Tiefgaragenstellplatz zum Preis von 68.454 BGN (35.000 EUR) ohne Mehrwertsteuer mit der Immobilie erworben werden.
Über den Komplex
Der Komplex, bestehend aus 8 Gebäuden mit insgesamt 204 Wohnungen und Studios, ist funktional gestaltet und bietet einen Panoramablick auf die Stadt und die Berge. Die Grünflächen zwischen den Gebäuden sind mit Gärten, Spazierwegen, Erholungsbereichen und Spielplätzen gestaltet. Für zusätzlichen Komfort sorgen ein Fitnesscenter, ein Restaurant, kontrollierter Zugang und Live-Sicherheit. Die Tiefgarage bietet bequeme Parkplätze und Garagen.
Die Architektur des Komplexes harmoniert mit der Umgebung und die Fassaden sind mit natürlichen Materialien wie Holz und Stein ausgestattet, was für ein modernes Aussehen, hervorragende Isolierung und Langlebigkeit sorgt.
Qualität und Nachhaltigkeit am Bau:
monolithische Stahlbetonkonstruktion;
Trennwände aus Wienerberger Keramikziegeln;
10 cm EPS-Wärmedämmung und Fassade mit Naturstein und Klinker;
XPS-Wärmedämmung auf dem Dach;
luxuriöse Gemeinschaftsbereiche mit Granit und Kone-Aufzügen für 8 Personen;
Landschaftsgestaltung mit einem automatischen Bewässerungssystem;
automatisches Garagentor mit Fernbedienung. Wir freuen uns auf Ihre Anfrage.
Wenn Sie eine Besichtigung einer Immobilie Ihrer Wahl oder einen Besuch in einem unserer Büros vereinbaren möchten, kontaktieren Sie uns bitte. Um einen Termin für ein Treffen oder eine Besichtigung zu vereinbaren, rufen Sie die in der Anzeige angegebene Telefonnummer an oder senden Sie eine Anfrage per E-Mail. Unser Berater berät Sie gerne bei allen notwendigen Details und vereinbart einen passenden Termin für Sie.
Sie suchen die passende Immobilie für sich?
Zögern Sie nicht, uns zu kontaktieren und uns Ihre Wünsche und Bedürfnisse mitzuteilen. Unser Team führt eine gründliche Marktforschung durch, um Ihnen Immobilien anzubieten, die genau Ihren Kriterien entsprechen. Wir verfügen über ein außergewöhnliches Portfolio an hochwertigen und exklusiven Immobilien, die nur unseren Kunden zur Verfügung stehen. Um als Erster Informationen darüber zu erhalten, kontaktieren Sie uns.
Zusätzliche Dienstleistungen
Als geschätzter Kunde unseres Unternehmens genießen Sie die Vorteile unseres erfahrenen Rechtsanwaltsteams völlig kostenlos. Darüber hinaus bieten wir umfassende Lösungen, darunter Gebäudeversicherungen, kostenlose Finanzberatung sowie günstige Finanzierungskonditionen. Unsere Dienstleistungen umfassen auch den Wiederverkauf, die Vermietung und die Hausverwaltung. Hochwertige Renovierungen und Möblierungen führen wir durch spezialisierte Unternehmen unserer Unternehmensgruppe durch, die unsere langjährigen professionellen Partner sind.
Besichtigungen
Wir können eine Besichtigung der Immobilie zu einer für Sie passenden Zeit vereinbaren. Bitte kontaktieren Sie den für dieses Angebot zuständigen Makler und teilen Sie ihm die von Ihnen gewünschte Uhrzeit mit.
Reservierung der Immobilie
Gegen eine nicht erstattete Anzahlung in Höhe von 2.000 Euro wird die Immobilie reserviert. Weitere Besichtigungen mit anderen Käufern finden nicht statt und Makler beginnt mit der Vorbereitung der Dokumente für den Abschluss des endgültigen Vertrags für Eigentumsübertragung. Bitte kontaktieren Sie den zuständigen Makler für mehr Information über den Kauf einer Immobilie und Zahlungsarten.
Zusatzleistungen und Kundendienst
Wir sind ein seriöses Unternehmen und werden nicht nur während des Kaufs, sondern auch danach bei Ihnen sein und Ihnen auf Ihren Wunsch zusätzliche Dienstleistungen anbieten, um die neu gekaufte Immobilie vollständig und nahtlos zu nutzen. Die Dienstleistungen, die wir anbieten können, umfassen die Erlangung einer Hypothekengenehmigung, eine Versicherung für bewegliche und unbewegliche Sachen, eine Lebensversicherung, eine Kranken- und Autoversicherung, Bau- und Reparaturaktivitäten, Möbel, Rechts- und Buchhaltungsdienstleistungen usw.
Bei uns können Sie nicht nur eine Immobilie mieten, sondern auch eine Reihe von Zusatzleistungen in Anspruch nehmen. Wir können Versicherungen für bewegliches und unbewegliches Vermögen, Lebensversicherungen, Kranken- und Kfz-Versicherungen, Bau- und Reparaturarbeiten, Möbel, Rechts- und Buchhaltungsdienstleistungen usw. anbieten.
Dieser Komplex in einem prestigeträchtigen Viertel vereint eine hervorragende Lage, hochwertige Materialien und moderne Technologien und ist somit die ideale Wahl für Menschen, die ein komfortables Leben in einer gut organisierten städtischen Umgebung mit unmittelbarer Nähe zur Natur suchen. Dank der günstigen Anbindung an den Bulgaria Boulevard und die Ringstraße erreichen Sie das Stadtzentrum schnell, während die Nähe zum Vitosha-Park für frische Luft und eine schöne Aussicht sorgt.
Eigenschaftsparameter
Die Wohnung befindet sich im Erdgeschoss und hat eine Gesamtfläche von 76,34 m². Sie besteht aus einem Eingangsbereich, einem Badezimmer mit Toilette, einem Schlafzimmer, einem Wohnzimmer mit Küche, einer Terrasse im Loggia-Stil mit Zugang vom Wohnzimmer und Schlafzimmer, einem Hof – 19,72 m².
Es wird in folgendem Fertigstellungsgrad nach BDS angeboten:
Böden mit Schalldämmung Copersound P-TEX;
Schalter und Steckdosen Legrand Valena Life;
PVC-Fenster mit Kömmerling-Dreifachverglasung;
Gasheizung mit Bosch-Kessel und Verkabelung für Klimaanlagen;
Massive Eingangstür, Modell iDoor 20-23;
Terrasse mit frostbeständigen Granitfliesen. *Jede Wohnung im Komplex verfügt über ein Smart Home-fähiges System, das die Steuerung von Beleuchtung, Heizung, Klimaanlage und Sicherheit über ein mobiles Gerät ermöglicht.
Zusätzlich kann ein Tiefgaragenstellplatz zum Preis von 68.454 BGN (35.000 EUR) ohne Mehrwertsteuer mit der Immobilie erworben werden.
Über den Komplex
Der Komplex, bestehend aus 8 Gebäuden mit insgesamt 204 Wohnungen und Studios, ist funktional gestaltet und bietet einen Panoramablick auf die Stadt und die Berge. Die Grünflächen zwischen den Gebäuden sind mit Gärten, Spazierwegen, Erholungsbereichen und Spielplätzen gestaltet. Für zusätzlichen Komfort sorgen ein Fitnesscenter, ein Restaurant, kontrollierter Zugang und Live-Sicherheit. Die Tiefgarage bietet bequeme Parkplätze und Garagen.
Die Architektur des Komplexes harmoniert mit der Umgebung und die Fassaden sind mit natürlichen Materialien wie Holz und Stein ausgestattet, was für ein modernes Aussehen, hervorragende Isolierung und Langlebigkeit sorgt.
Qualität und Nachhaltigkeit am Bau:
monolithische Stahlbetonkonstruktion;
Trennwände aus Wienerberger Keramikziegeln;
10 cm EPS-Wärmedämmung und Fassade mit Naturstein und Klinker;
XPS-Wärmedämmung auf dem Dach;
luxuriöse Gemeinschaftsbereiche mit Granit und Kone-Aufzügen für 8 Personen;
Landschaftsgestaltung mit einem automatischen Bewässerungssystem;
automatisches Garagentor mit Fernbedienung. Wir freuen uns auf Ihre Anfrage.
Wenn Sie eine Besichtigung einer Immobilie Ihrer Wahl oder einen Besuch in einem unserer Büros vereinbaren möchten, kontaktieren Sie uns bitte. Um einen Termin für ein Treffen oder eine Besichtigung zu vereinbaren, rufen Sie die in der Anzeige angegebene Telefonnummer an oder senden Sie eine Anfrage per E-Mail. Unser Berater berät Sie gerne bei allen notwendigen Details und vereinbart einen passenden Termin für Sie.
Sie suchen die passende Immobilie für sich?
Zögern Sie nicht, uns zu kontaktieren und uns Ihre Wünsche und Bedürfnisse mitzuteilen. Unser Team führt eine gründliche Marktforschung durch, um Ihnen Immobilien anzubieten, die genau Ihren Kriterien entsprechen. Wir verfügen über ein außergewöhnliches Portfolio an hochwertigen und exklusiven Immobilien, die nur unseren Kunden zur Verfügung stehen. Um als Erster Informationen darüber zu erhalten, kontaktieren Sie uns.
Zusätzliche Dienstleistungen
Als geschätzter Kunde unseres Unternehmens genießen Sie die Vorteile unseres erfahrenen Rechtsanwaltsteams völlig kostenlos. Darüber hinaus bieten wir umfassende Lösungen, darunter Gebäudeversicherungen, kostenlose Finanzberatung sowie günstige Finanzierungskonditionen. Unsere Dienstleistungen umfassen auch den Wiederverkauf, die Vermietung und die Hausverwaltung. Hochwertige Renovierungen und Möblierungen führen wir durch spezialisierte Unternehmen unserer Unternehmensgruppe durch, die unsere langjährigen professionellen Partner sind.
Besichtigungen
Wir können eine Besichtigung der Immobilie zu einer für Sie passenden Zeit vereinbaren. Bitte kontaktieren Sie den für dieses Angebot zuständigen Makler und teilen Sie ihm die von Ihnen gewünschte Uhrzeit mit.
Reservierung der Immobilie
Gegen eine nicht erstattete Anzahlung in Höhe von 2.000 Euro wird die Immobilie reserviert. Weitere Besichtigungen mit anderen Käufern finden nicht statt und Makler beginnt mit der Vorbereitung der Dokumente für den Abschluss des endgültigen Vertrags für Eigentumsübertragung. Bitte kontaktieren Sie den zuständigen Makler für mehr Information über den Kauf einer Immobilie und Zahlungsarten.
Zusatzleistungen und Kundendienst
Wir sind ein seriöses Unternehmen und werden nicht nur während des Kaufs, sondern auch danach bei Ihnen sein und Ihnen auf Ihren Wunsch zusätzliche Dienstleistungen anbieten, um die neu gekaufte Immobilie vollständig und nahtlos zu nutzen. Die Dienstleistungen, die wir anbieten können, umfassen die Erlangung einer Hypothekengenehmigung, eine Versicherung für bewegliche und unbewegliche Sachen, eine Lebensversicherung, eine Kranken- und Autoversicherung, Bau- und Reparaturaktivitäten, Möbel, Rechts- und Buchhaltungsdienstleistungen usw.
Bei uns können Sie nicht nur eine Immobilie mieten, sondern auch eine Reihe von Zusatzleistungen in Anspruch nehmen. Wir können Versicherungen für bewegliches und unbewegliches Vermögen, Lebensversicherungen, Kranken- und Kfz-Versicherungen, Bau- und Reparaturarbeiten, Möbel, Rechts- und Buchhaltungsdienstleistungen usw. anbieten.
Wohnungen in Phase 1 eines modernen Komplexes in der Nähe von „Simeonovsko Shose“
Malinova Dolina / Sofia / Sofia / Bulgarien Karte
Immobilienpreise: 114 096 - 247 180 €
Preise pro m²: 1 828 - 2 296 €/m 2
VERKAUF
PROJEKT
Ein-Zimmer-Apartment im 18. Stock mit Berg- und Stadtblick im Smart Tower
Krustova Vada / Sofia / Sofia / Bulgarien Karte
Bereich: 88.62 m 2
Preis: 350 000 € /// 3 949 €/m 2
Wohnungen neben der Straße „Prof. Krikor Azaryan“ im Viertel „Malinova Dolina“
Malinova Dolina / Sofia / Sofia / Bulgarien Karte
Immobilienpreise: 187 575 - 396 363 €
Preise pro m²: 2 330 - 3 881 €/m 2
Wählen Sie diese Option und wir benachrichtigen Sie per E-Mail, wenn sich der Angebotsstatus ändert, zum Beispiel:
• Preisänderung;
• Die Immobilie hat ein Sonderangebot abgegeben;
• Die Immobilie ist reserviert oder verkauft;
• Weitere Neuigkeiten im Zusammenhang mit der Immobilie.
• Die Immobilie wird aus dem Verkauf genommen;
Sie können Benachrichtigungen jederzeit problemlos abbestellen.• Änderungen der Angebotsbedingungen;
• Änderung der Investitionshöhe;
• Der Investitionsgegenstand wurde vollständig realisiert;
• Das Angebot ist abgelaufen.
Sie können sich ganz einfach abmelden, wenn Sie in Zukunft entscheiden, dass Sie dieses Angebot nicht mehr nutzen möchten.



...Als ausgewiesener Spezialist arbeitet Stonehard PREMIER an der Marktpositionierung und dem Vertrieb zahlreicher Neubauprojekte, deren Umsetzung uns führende Unternehmergesellschaften in Bulgarien und im Ausland anvertraut haben...