Dreizimmerwohnung in einem Neubau in der Nähe des Blvd. „Wladimir Wasow“
Preis:
188 429 € (2 133 €/m 2)
*Die angegebenen Preise und die Verfügbarkeit freier Immobilien im Projekt sind Richtwerte. Für aktuelle Preisinformationen kontaktieren Sie uns bitte!
Art.-Nr. Nummer: SOF-127890 / 4015
Standort: Levski G / Sofia Karte
Gebäude-/Komplextyp: Wohnen
Wohngebiete: 88.34 m 2
Arten von Immobilien im Gebäude/Komplex: 3-Raum-Apartments
Art.-Nr. Nummer: SOF-127890 / 4015
Standort: Levski G / Sofia
Gebäude-/Komplextyp: Wohnen
Gebäude-/Komplexklasse:
Wohngebiete: 88.34 m 2
Arten von Immobilien im Gebäude/Komplex: 3-Raum-Apartments
Im Bau. Geplante Fertigstellung – 11.2027
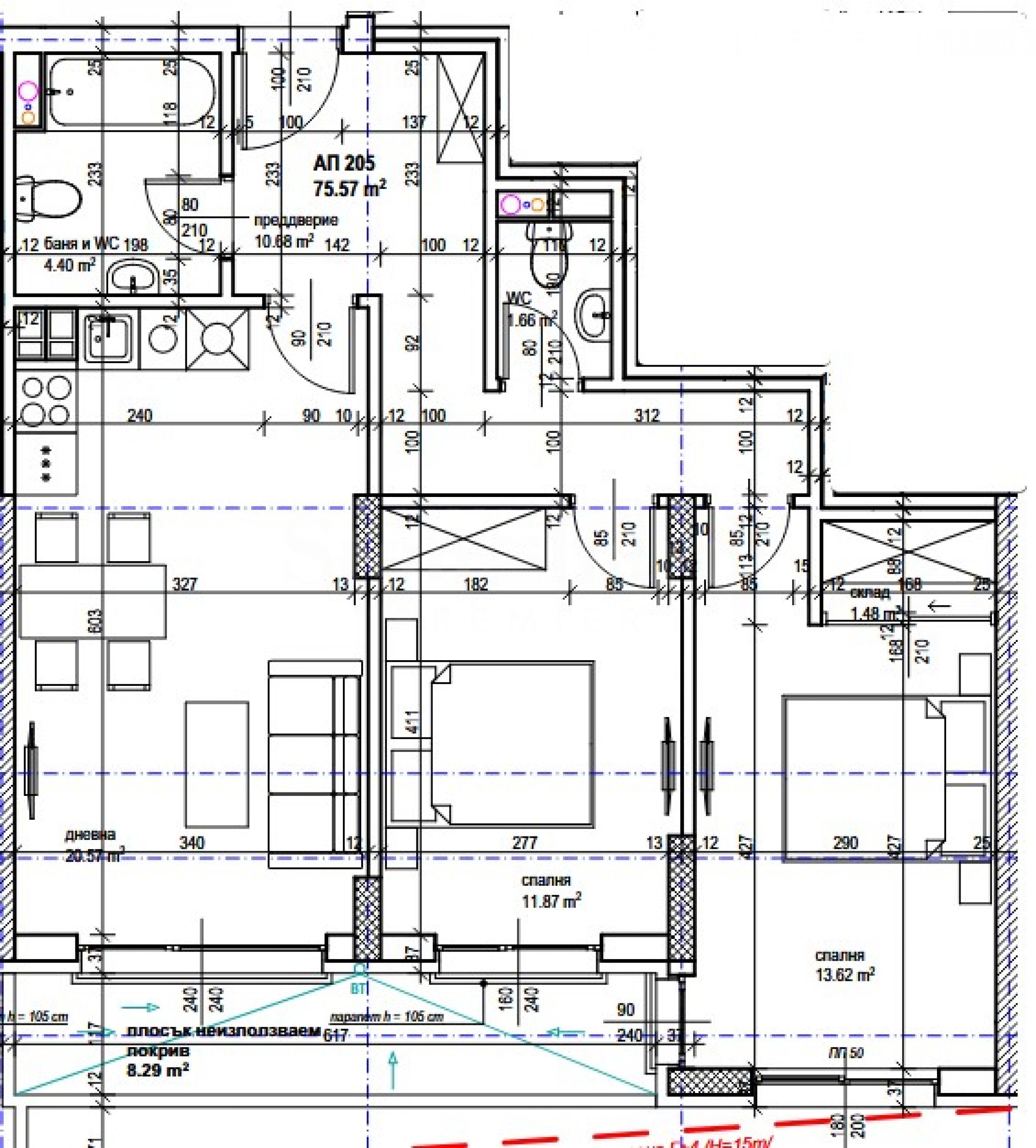
Das Anwesen hat eine Gesamtfläche von 88,34 m² und liegt im 2. Stock mit Südwestausrichtung.
Die Ausstellung erfolgt im Abschlussgrad nach BDS:
PVC-Fenster mit sechs Kammern, deutsches Profil mit Dreifachverglasung, mit einem emissionsarmen Glas;
Eingangstür - gepanzert, mit hochwertigem Geheimschloss;
Heizung mittels elektrischer Energie mit kompletten Anschlüssen für Klimaanlagen;
fertige Wände und Decken bis hin zum Gipsputz mit an den Rändern verlegten Aluminiumecken;
Decken unbeheizter Räume, die an beheizte Räume grenzen, mit verlegter Wärmedämmung aus XPS-extrudiertem Polystyrolschaum;
Sanitär- und Nassräume werden mit Kalk-Zement-Putz verfüllt;
Zementestrich auf dem Boden;
Terrassen mit Granitboden;
montiertes Armaturenbrett in der Nähe der Vordertür;
Schwachstrominstallationen – je nach Projekt mit einer an der Eingangstür installierten Schwachstromdose;
Verkabelung für SOT;
Installation einer Video-Gegensprechanlage – komplette Verkabelung, Video-Gegensprechanlage;
installierte Stromzähler. Das Gebäude wird in der Nähe des Blvd. gebaut. „Vladimir Vazov“, der Hauptboulevard und die Hauptstraße der Hauptstadt, mit einer Länge von 5 km, mit bequemen öffentlichen Verkehrsmitteln in der Nähe (Buslinien 120, 78), 3 km von der U-Bahn-Station Teatralna entfernt. Derzeit wird an der Verlängerung der U-Bahn-Linie M3 von der U-Bahn-Station „Hadji Dimitar“ zum Bahnhof gebaut. „Lewski G“.
Entlang der Fortsetzung des Blvd. „Vladimir Vazov“ soll 3 Stationen haben:
U-Bahn „Vladimir Vazov“ – nur 450 Meter vom Gebäude entfernt;
U-Bahn „Trakia“ – 500 Meter entfernt;
U-Bahn „Georgi-Asparuchow-Stadion“ – 1,5 km vom Gebäude entfernt. Entfernungen zu wichtigen Objekten wie:
Stadion „Vivacom Arena – Georgi Asparuhov“ – 1 km;
Decathlon – 480 m, Schwimm- und Unterhaltungskomplex „Varadero“ – 500 m;
St. „Oborishte“ und Serdika Center, Blvd. „Madrid“ – 3,5 km;
Gerena-Park – 1 km, Zaimov-Park – 5 km;
Zentrum von Sofia, Blvd. Witoscha – 7 km;
Flughafen Sofia – 5 km. Bildungseinrichtungen und Kindergärten in der Umgebung: OU 199 „Saint John the Apostle“ – 400 m, SU 130 „Stefan Karadzha“ – 900 m, SU 44 „Neofite Bozveli“ – 2 km, OU 49 „Benito Juarez“ – 1, 9 km; DG 92 „Dream“, ODZ 91 „Sunny Corner“ – Filiale, DG 20 „Jasminov Park“.
Über das Gebäude
Das Gebäude besteht aus 2 Abschnitten mit Wohnungen auf 9 Wohngeschossen. Bei den Objekten handelt es sich um Zwei-, Drei- und Vierzimmerwohnungen. Es besteht die Möglichkeit Garagen zu Preisen ab 26.500 Euro zu erwerben, ebenso Lagerräume.
Technische Eigenschaften des Gebäudes:
monolithische, balkenlose Stahlbetonkonstruktion einer Fundamentplatte;
mit Abdichtung der Fundamente des Gebäudes - System Kryton International Inc. Krystol Waterstop-System;
Mauerwerk mit Keramikziegeln von WIENERBERGER;
äußere Umfassungswände – Porotherm 25 cm Keramikziegel und Wärmedämmsystem /EPS-Schaum/;
für interne Ziegelwände - Porotherm 12 cm Keramikziegel, mit Schalldämmung zwischen den Wohnungen;
Flachdach mit verlegten Schichten nach Detail - Dampfsperre, Wärmedämmung aus extrudiertem Polystyrolschaum - XPS, armierter Estrich mit Gefälle, zwei Lagen Rollbitumenabdichtung; ohne Wärmebrücken an den Bauteilen;
gemeinsame Teile - Granit oder Naturstein;
Aufzüge mit Luxuskabinen mit automatischen Türen. Wir erwarten Ihre Anfrage
Wenn Sie eine Besichtigung einer Immobilie, an der Sie interessiert sind, vereinbaren oder eines unserer Büros besuchen möchten, kontaktieren Sie uns bitte. Um einen Termin für ein Treffen oder eine Inspektion zu vereinbaren, können Sie die in der Anzeige angegebene Telefonnummer anrufen oder eine Anfrage per E-Mail senden. Unser Berater berät Sie gerne bei allen notwendigen Details und vereinbart einen für Sie passenden Termin.
Sie sind auf der Suche nach der passenden Immobilie für sich?
Zögern Sie nicht, uns zu kontaktieren und uns Ihre Bedürfnisse und Vorlieben mitzuteilen. Unser Team führt eine gründliche Marktrecherche durch, um Ihnen Immobilien anzubieten, die genau Ihren Kriterien entsprechen. Wir verfügen über ein außergewöhnliches Portfolio an hochwertigen und exklusiven Häusern, die nur unseren Kunden zur Verfügung stehen. Um als Erster Informationen darüber zu erhalten, kontaktieren Sie uns.
Zusätzliche Dienstleistungen
Als geschätzter Mandant unseres Unternehmens haben Sie das Privileg, die Dienste unseres erfahrenen Rechtsteams völlig kostenlos in Anspruch zu nehmen. Darüber hinaus bieten wir komplexe Lösungen inklusive Sachversicherung, kostenloser Finanzberatung sowie günstigen Finanzierungskonditionen. Unsere Dienstleistungen erstrecken sich auch auf den Weiterverkauf, die Vermietung und die Immobilienverwaltung. Wir erbringen hochwertige Reparatur- und Einrichtungsarbeiten durch spezialisierte Unternehmen, die Teil unserer Unternehmensgruppe sind und unsere langjährigen professionellen Partner sind.
Besichtigungen
Wir können eine Besichtigung der Immobilie zu einer für Sie passenden Zeit vereinbaren. Bitte kontaktieren Sie den für dieses Angebot zuständigen Makler und teilen Sie ihm die von Ihnen gewünschte Uhrzeit mit.
Reservierung der Immobilie
Gegen eine nicht erstattete Anzahlung in Höhe von 2.000 Euro wird die Immobilie reserviert. Weitere Besichtigungen mit anderen Käufern finden nicht statt und Makler beginnt mit der Vorbereitung der Dokumente für den Abschluss des endgültigen Vertrags für Eigentumsübertragung. Bitte kontaktieren Sie den zuständigen Makler für mehr Information über den Kauf einer Immobilie und Zahlungsarten.
Zusatzleistungen und Kundendienst
Wir sind ein seriöses Unternehmen und werden nicht nur während des Kaufs, sondern auch danach bei Ihnen sein und Ihnen auf Ihren Wunsch zusätzliche Dienstleistungen anbieten, um die neu gekaufte Immobilie vollständig und nahtlos zu nutzen. Die Dienstleistungen, die wir anbieten können, umfassen die Erlangung einer Hypothekengenehmigung, eine Versicherung für bewegliche und unbewegliche Sachen, eine Lebensversicherung, eine Kranken- und Autoversicherung, Bau- und Reparaturaktivitäten, Möbel, Rechts- und Buchhaltungsdienstleistungen usw.
Bei uns können Sie nicht nur eine Immobilie mieten, sondern auch eine Reihe von Zusatzleistungen in Anspruch nehmen. Wir können Versicherungen für bewegliches und unbewegliches Vermögen, Lebensversicherungen, Kranken- und Kfz-Versicherungen, Bau- und Reparaturarbeiten, Möbel, Rechts- und Buchhaltungsdienstleistungen usw. anbieten.
Standort auf der Karte
Boutique building at the foot of Vitosha mountain - Boyana quarter
Boyana / Sofia / Sofia / Bulgarien Karte
Immobilienpreise: 170 181 - 712 380 € (ohne MwSt.)
Preise pro m²: 2 600 - 2 900 €/m 2 (ohne MwSt.)
RECHTE
VERKAUF
PROJEKT
Dreizimmerwohnung Nr. 73 mit Blick auf Vitosha in der OKINAWA Boutique
Malinova Dolina / Sofia / Sofia / Bulgarien Karte
Gebäude-/Komplexklasse: Hoher Standard
Bereich: 116.34 m 2
Preis: 291 000 € /// 2 501 €/m 2
RECHTE
VERKAUF
PROJEKT
Dreizimmerwohnung in OKINAWA Boutique Residence im Bezirk „Himbeertal“
Malinova Dolina / Sofia / Sofia / Bulgarien Karte
Gebäude-/Komplexklasse: Hoher Standard
Bereich: 136 m 2
Preis: 338 000 € /// 2 485 €/m 2
Wählen Sie diese Option und wir benachrichtigen Sie per E-Mail, wenn sich der Angebotsstatus ändert, zum Beispiel:
• Preisänderung;
• Die Immobilie hat ein Sonderangebot abgegeben;
• Die Immobilie ist reserviert oder verkauft;
• Weitere Neuigkeiten im Zusammenhang mit der Immobilie.
• Die Immobilie wird aus dem Verkauf genommen;
Sie können Benachrichtigungen jederzeit problemlos abbestellen.• Änderungen der Angebotsbedingungen;
• Änderung der Investitionshöhe;
• Der Investitionsgegenstand wurde vollständig realisiert;
• Das Angebot ist abgelaufen.
Sie können sich ganz einfach abmelden, wenn Sie in Zukunft entscheiden, dass Sie dieses Angebot nicht mehr nutzen möchten.
Um absolut korrekte Informationen über die im Projekt verfügbaren, leerstehenden Immobilien und deren aktuelle Preise zu erhalten, kontaktieren Sie bitte unser Büro unter den angegebenen Kontaktdaten.
Wir bemühen uns nach Kräften, unsere Preislisten stets aktuell und korrekt zu halten, doch angesichts der Vielzahl neuer Projekte in unserem Katalog und der stark schwankenden Verkaufszahlen ist dies oft unmöglich.
Vielen Dank für Ihr Verständnis!



...Als ausgewiesener Spezialist arbeitet Stonehard PREMIER an der Marktpositionierung und dem Vertrieb zahlreicher Neubauprojekte, deren Umsetzung uns führende Unternehmergesellschaften in Bulgarien und im Ausland anvertraut haben...