Ein beeindruckendes Penthouse mit vier Schlafzimmern und Blick auf Vitosha
auf der Karte
Preis:
962 000 € (ohne MwSt.) (3 205 €/m 2 (ohne MwSt.))
*Die angegebenen Preise und die Verfügbarkeit freier Immobilien im Projekt sind Richtwerte. Für aktuelle Preisinformationen kontaktieren Sie uns bitte!
Art.-Nr. Nummer: SOF-127486 / 3982
Standort: Vitosha / Sofia Karte
Gebäude-/Komplextyp: Wohnen
Wohngebiete: 300.14 m 2
Arten von Immobilien im Gebäude/Komplex: 5-Raum Apartments, Penthouses
Art.-Nr. Nummer: SOF-127486 / 3982
Standort: Vitosha / Sofia
Gebäude-/Komplextyp: Wohnen
Gebäude-/Komplexklasse:
Wohngebiete: 300.14 m 2
Arten von Immobilien im Gebäude/Komplex: 5-Raum Apartments, Penthouses
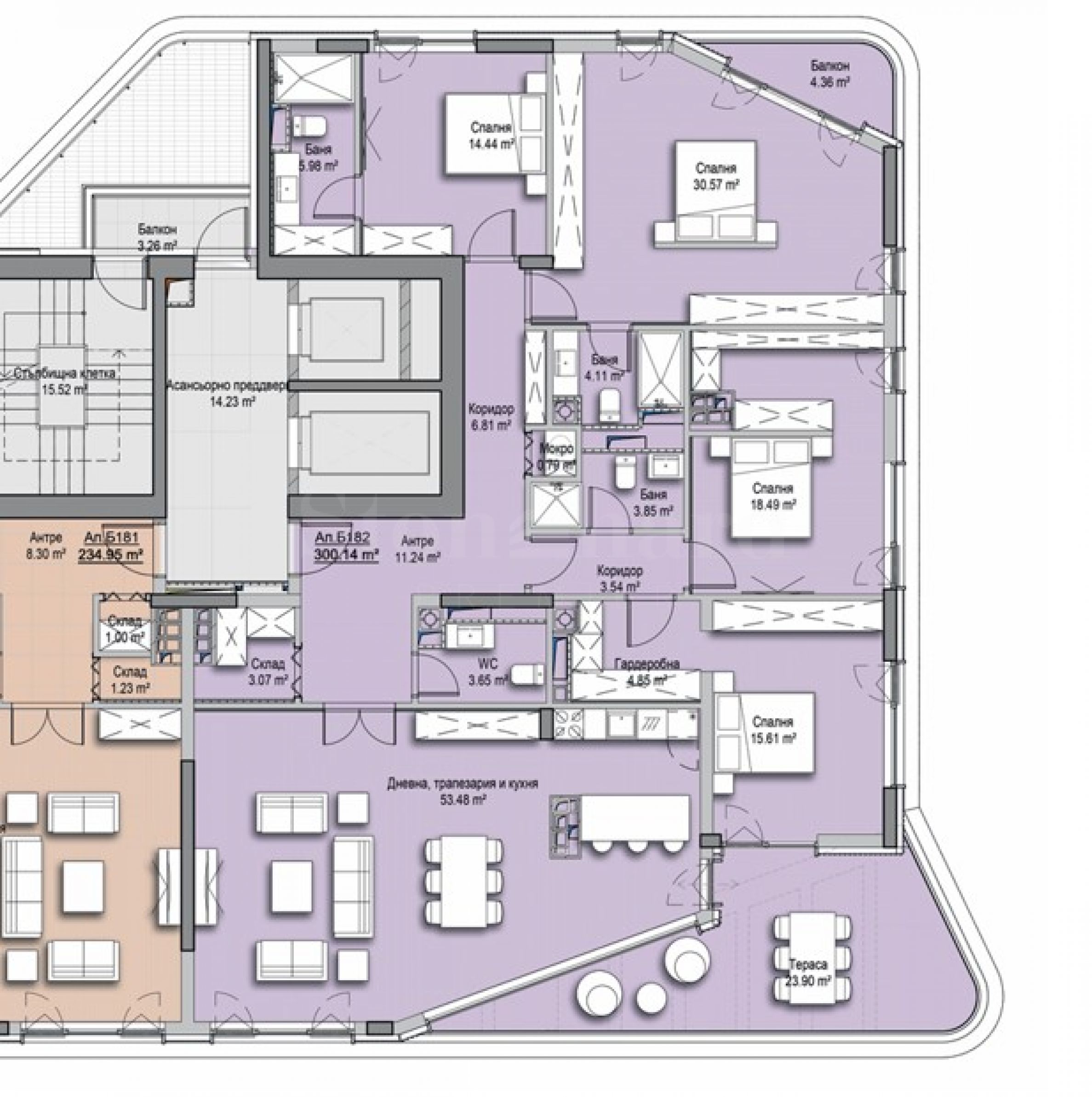
Wir präsentieren ein supergeräumiges Penthouse von 300,14 m² zum Verkauf, in einem neuen, modernen und innovativen Komplex in Top-Lage in einer der beliebtesten und sich dynamisch entwickelnden Gegenden von Sofia – m². „Witoscha“.
Der Komplex ist strategisch günstig gelegen und bietet einfachen Zugang zum Stadtzentrum. Dank der Nähe zum Jagdpark, zum Zoo und zum Vitosha-Berg bietet er gleichzeitig Privatsphäre und Komfort. Es liegt zwischen den Boulevards „Simeonovsko shosse“ und „Filip Kutev“ und bietet schnellen Zugang zu den Hauptverkehrsadern der Hauptstadt. Die Gegend bietet eine hervorragende Infrastruktur mit guten Busverbindungen, Kindergärten und Schulen.
Das Anwesen befindet sich im 18., letzten Stockwerk des Gebäudes „B“ und verfügt über eine Südwest-Nord-Ausrichtung, mit einem beeindruckenden Panorama auf die Stadt und den Vitosha-Berg. Es wird im Abschlussgrad nach BDS angeboten.
Verteilung:
Eingangshalle, Abstellraum, WC, Hauswirtschaftsraum, Bad/WC, Flur;
Wohnzimmer mit Küche und Esszimmer, mit einer Terrasse von 23,90 qm;
Schlafzimmer 1 von 15,61 m², mit Kleiderschrank - 4,85 m²;
Schlafzimmer-2 - 18,49 qm;
Schlafzimmer 3 – 30,57 m², mit Terrasse – 4,36 m²;
Schlafzimmer 4 – 14,44 m², mit eigenem Bad – 5,98 m² PROMO-ZAHLUNGSSYSTEM:
20 % auf vorläufige Vereinbarung;
80 % von Gesetz 16. Preis ohne Mehrwertsteuer. Keine Provision vom Käufer!
Der Komplex verfügt über 153 Parkplätze und 12 Garagen für Autos in den Untergeschossen. Geplant sind auch Bereiche mit Stellplätzen für Fahrräder.
Es besteht die Möglichkeit, Parkplätze und Garagen zu Preisen ab 34.000 € ohne Mehrwertsteuer zu erwerben.
Konzept und Ausstattung
Der Komplex besteht aus zwei harmonisch komplementären Gebäuden – „A“ (8 Stockwerke) und „B“ (18 Stockwerke), die durch eine weitläufige Grünfläche verbunden sind und in Symbiose mit der attraktiven Lage neben dem Park seinen Bewohnern ein eigenes Grundstück bieten Hof mit sorgfältig ausgewählter Landschaft . Dazu gehören Nadel- und Laubbäume, blühende Sträucher mit langer Blütezeit und Ziergräser, die für eine gemütliche Atmosphäre sorgen.
Die Gebäude bestechen durch ein markantes Äußeres und Fassaden mit viel Tageslicht durch den hohen Verglasungsgrad.
Für die Sicherheit sorgen Videoüberwachung und Rund-um-die-Uhr-Sicherheit am Eingang des Komplexes mit Zugangskontrolle zu den Untergeschossen.
Im Erdgeschoss befinden sich vier Geschäfte , die auf die Bequemlichkeit der Bewohner ausgerichtet sind und Zugang zu allem bieten, was sie im täglichen Leben benötigen.
Das Dach des Gebäudes ist mit Photovoltaik-Kraftwerken ausgestattet, die über 110.000 kWh saubere Energie pro Jahr erzeugen. Dieser Betrag deckt den Bedarf aller Energieverbraucher in den Gemeinschaftsbereichen des Komplexes vollständig ab und bietet so eine nachhaltige und ökologische Lösung für die Zukunft.
El. Die Installation wurde im Hinblick auf eine einfachere Bedienung für jedes Gebäude separat entwickelt. Der Anschluss des Gebäudes an das Stromnetz erfolgte durch ein neu errichtetes Umspannwerk.
Das Gebäude verfügt über hochmoderne, komfortable und leise elektrische Personenaufzüge, die ohne Maschinenraum ausgestattet sind. Sie sind mit einem getriebelosen Antrieb mit einem Wirkungsgrad von 90 % sowie einem Permanentmagnet-Synchronmotor mit VF-Regelung im geschlossenen Regelkreis ausgestattet, was Zuverlässigkeit, Energieeffizienz und Laufruhe garantiert.
Die Beheizung der Wohnungen erfolgt durch Installationen mit Gas-Wandkesseln und Fußbodenheizungen mit Rohrschlangen und Lire-Heizelementen für die Sanitärräume. Die Kühlung in den Sommermonaten erfolgt mittels Inverter-Klimageräten zur Direktverdunstung. In den oberen Etagen des Gebäudes B erfolgt die Heizung und Kühlung über eine Installation bestehend aus einer Wärmepumpeneinheit, einer Fußbodenheizung und wandmontierten Gebläsekonvektoren.
Wir erwarten Ihre Anfrage
Wenn Sie eine Besichtigung einer Immobilie, an der Sie interessiert sind, vereinbaren oder eines unserer Büros besuchen möchten, kontaktieren Sie uns bitte. Um einen Termin für ein Treffen oder eine Inspektion zu vereinbaren, können Sie die in der Anzeige angegebene Telefonnummer anrufen oder eine Anfrage per E-Mail senden. Unser Berater berät Sie gerne bei allen notwendigen Details und vereinbart einen für Sie passenden Termin.
Sie sind auf der Suche nach der passenden Immobilie für Sie?
Zögern Sie nicht, uns zu kontaktieren und uns Ihre Bedürfnisse und Vorlieben mitzuteilen. Unser Team führt eine gründliche Marktrecherche durch, um Ihnen Immobilien anzubieten, die genau Ihren Kriterien entsprechen. Wir verfügen über ein außergewöhnliches Portfolio an hochwertigen und exklusiven Häusern, die nur unseren Kunden zur Verfügung stehen. Um als Erster Informationen darüber zu erhalten, kontaktieren Sie uns.
Zusätzliche Dienstleistungen
Als geschätzter Mandant unseres Unternehmens haben Sie das Privileg, die Dienste unseres erfahrenen Rechtsteams völlig kostenlos in Anspruch zu nehmen. Darüber hinaus bieten wir komplexe Lösungen inklusive Sachversicherung, kostenloser Finanzberatung sowie günstigen Finanzierungskonditionen. Unsere Dienstleistungen erstrecken sich auch auf den Weiterverkauf, die Vermietung und die Immobilienverwaltung. Wir erbringen hochwertige Reparatur- und Einrichtungsarbeiten durch spezialisierte Unternehmen, die zu unserer Unternehmensgruppe gehören und unsere langjährigen professionellen Partner sind.
Besichtigungen
Wir können eine Besichtigung der Immobilie zu einer für Sie passenden Zeit vereinbaren. Bitte kontaktieren Sie den für dieses Angebot zuständigen Makler und teilen Sie ihm die von Ihnen gewünschte Uhrzeit mit.
Reservierung der Immobilie
Gegen eine nicht erstattete Anzahlung in Höhe von 2.000 Euro wird die Immobilie reserviert. Weitere Besichtigungen mit anderen Käufern finden nicht statt und Makler beginnt mit der Vorbereitung der Dokumente für den Abschluss des endgültigen Vertrags für Eigentumsübertragung. Bitte kontaktieren Sie den zuständigen Makler für mehr Information über den Kauf einer Immobilie und Zahlungsarten.
Zusatzleistungen und Kundendienst
Wir sind ein seriöses Unternehmen und werden nicht nur während des Kaufs, sondern auch danach bei Ihnen sein und Ihnen auf Ihren Wunsch zusätzliche Dienstleistungen anbieten, um die neu gekaufte Immobilie vollständig und nahtlos zu nutzen. Die Dienstleistungen, die wir anbieten können, umfassen die Erlangung einer Hypothekengenehmigung, eine Versicherung für bewegliche und unbewegliche Sachen, eine Lebensversicherung, eine Kranken- und Autoversicherung, Bau- und Reparaturaktivitäten, Möbel, Rechts- und Buchhaltungsdienstleistungen usw.
Bei uns können Sie nicht nur eine Immobilie mieten, sondern auch eine Reihe von Zusatzleistungen in Anspruch nehmen. Wir können Versicherungen für bewegliches und unbewegliches Vermögen, Lebensversicherungen, Kranken- und Kfz-Versicherungen, Bau- und Reparaturarbeiten, Möbel, Rechts- und Buchhaltungsdienstleistungen usw. anbieten.
Standort auf der Karte
VERKAUF
PROJEKT
Vier-Zimmer-Wohnung mit drei Terrassen in einem exklusiven Komplex mit Act 16 im Bezirk Boyana
Boyana / Sofia / Sofia / Bulgarien Karte
Gebäude-/Komplexklasse: Hoher Standard
Bereich: 212.60 m 2
Preis: 434 767 € /// 2 045 €/m 2
VERKAUF
PROJEKT
Luxuriöses Apartment mit vier Schlafzimmern neben dem Paradise Center im „Weißen Viertel“
Hladilnika / Sofia / Sofia / Bulgarien Karte
Bereich: 150.37 m 2
Preis: 600 000 € /// 3 990 €/m 2
VERKAUF
PROJEKT
Vierzimmerwohnung in einem neuen Gebäude im Stadtteil „Manastirski livadi“.
Manastirski Livadi - East / Sofia / Sofia / Bulgarien Karte
Bereich: 170.10 m 2
Preis: 391 230 € /// 2 300 €/m 2
Wählen Sie diese Option und wir benachrichtigen Sie per E-Mail, wenn sich der Angebotsstatus ändert, zum Beispiel:
• Preisänderung;
• Die Immobilie hat ein Sonderangebot abgegeben;
• Die Immobilie ist reserviert oder verkauft;
• Weitere Neuigkeiten im Zusammenhang mit der Immobilie.
• Die Immobilie wird aus dem Verkauf genommen;
Sie können Benachrichtigungen jederzeit problemlos abbestellen.• Änderungen der Angebotsbedingungen;
• Änderung der Investitionshöhe;
• Der Investitionsgegenstand wurde vollständig realisiert;
• Das Angebot ist abgelaufen.
Sie können sich ganz einfach abmelden, wenn Sie in Zukunft entscheiden, dass Sie dieses Angebot nicht mehr nutzen möchten.
Um absolut korrekte Informationen über die im Projekt verfügbaren, leerstehenden Immobilien und deren aktuelle Preise zu erhalten, kontaktieren Sie bitte unser Büro unter den angegebenen Kontaktdaten.
Wir bemühen uns nach Kräften, unsere Preislisten stets aktuell und korrekt zu halten, doch angesichts der Vielzahl neuer Projekte in unserem Katalog und der stark schwankenden Verkaufszahlen ist dies oft unmöglich.
Vielen Dank für Ihr Verständnis!



...Als ausgewiesener Spezialist arbeitet Stonehard PREMIER an der Marktpositionierung und dem Vertrieb zahlreicher Neubauprojekte, deren Umsetzung uns führende Unternehmergesellschaften in Bulgarien und im Ausland anvertraut haben...