Dreizimmerwohnung zum Verkauf in einem neu errichteten Gebäude neben dem Platz. \"Tankstelle\"
auf der Karte
Preis:
288 875 € (ohne MwSt.) (2 500 €/m 2 (ohne MwSt.))
*Die angegebenen Preise und die Verfügbarkeit freier Immobilien im Projekt sind Richtwerte. Für aktuelle Preisinformationen kontaktieren Sie uns bitte!
Art.-Nr. Nummer: Kbs 127172 / 3960
Standort: Center / Sofia Karte
Gebäude-/Komplextyp: Wohnen
Wohngebiete: 115.55 m 2
Arten von Immobilien im Gebäude/Komplex: 3-Raum-Apartments
Art.-Nr. Nummer: Kbs 127172 / 3960
Standort: Center / Sofia
Gebäude-/Komplextyp: Wohnen
Gebäude-/Komplexklasse:
Wohngebiete: 115.55 m 2
Arten von Immobilien im Gebäude/Komplex: 3-Raum-Apartments
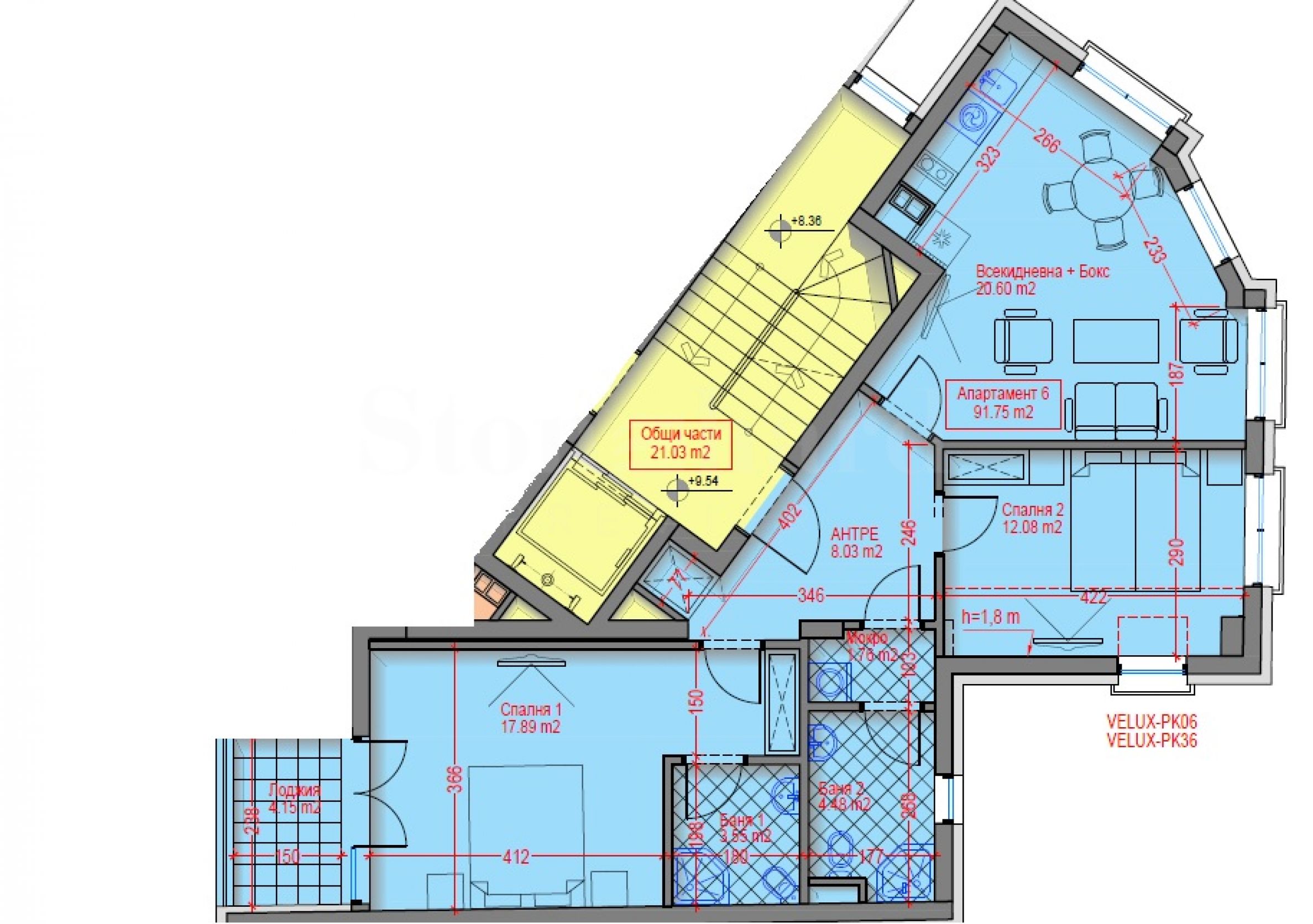
Das konkrete Angebot betrifft eine Dreizimmerwohnung Nr. 6, gelegen im vierten Stock mit einer Fläche von 110,71 m2 – Keller 4,84 m2 und folgender Aufteilung – Eingangshalle, Wohnzimmer mit Kochnische, Schlafzimmer, zweites Schlafzimmer mit eigenem Bad und Zugang zum Balkon, Hauswirtschaftsraum und zweites Bad mit WC.
Haupteigenschaften:
Anzahl der Stockwerke: 6 Stockwerke;
Gesamtzahl der Wohnungen: 9;
Verfügbare Wohnungen: 4;
Beheizung von Wärmekraftwerken;
Fläche der kleinsten verfügbaren Wohnung: 95,02 qm;
Fläche der größten verfügbaren Wohnung: 171,36 qm;
Niedrigster Preis: 228.048 € (ohne MwSt.);
Höchstpreis: 411.264 € (ohne MwSt.);
Gesamte bebaute Fläche (BGF): 1030 m²;
Voraussichtlicher Akt 16: Oktober 2026
Zahlungsplan:
30 % bei Unterzeichnung eines Vorvertrags;
30 % für Gesetz 14;
30 % für Gesetz 15;
10 % für Akt 16.
Hauptvorteile des Standorts:
Zentrale Lage: In unmittelbarer Nähe zum idealen Zentrum von Sofia gelegen, mit einfachem Zugang zu Verwaltungsgebäuden, Banken, Geschäften und Restaurants.
Verkehrsanbindung: Nur wenige Gehminuten von Haltestellen des öffentlichen Nahverkehrs (Straßenbahn, Bus) und bequemer Zugang zu U-Bahn-Stationen.
Entfernungen:
1,5 km vom idealen Stadtzentrum (Alexander-Battenberg-Platz) entfernt.
Etwa 10 km vom Flughafen Sofia entfernt, mit dem Auto in etwa 20 Minuten erreichbar.
Infrastruktur: Nähe zu den wichtigsten Boulevards wie dem Dondukov Blvd. und dem Vasil Levski Blvd., die eine gute Anbindung an den Rest der Stadt bieten.
Kulturelles Umfeld: Das Gebiet ist von historischen Sehenswürdigkeiten wie der Alexander-Newski-Kathedrale, der Nationalversammlung und der Universität Sofia umgeben, die sich alle in unmittelbarer Nähe befinden.
Dies ist ein Projekt mit strategischer Lage und einer begrenzten Anzahl von Wohnungen, die die Möglichkeit für komfortables und modernes Wohnen im Stadtzentrum bieten. Kontaktieren Sie uns für weitere Informationen oder Besichtigungen.
Wir freuen uns auf Ihre Anfrage.
Wenn Sie eine Besichtigung einer Immobilie Ihrer Wahl oder einen Besuch in einem unserer Büros vereinbaren möchten, kontaktieren Sie uns bitte. Um einen Termin für ein Treffen oder eine Besichtigung zu vereinbaren, rufen Sie die in der Anzeige angegebene Telefonnummer an oder senden Sie eine Anfrage per E-Mail. Unser Berater berät Sie gerne bei allen notwendigen Details und vereinbart einen passenden Termin für Sie.
Sie suchen die passende Immobilie für sich?
Zögern Sie nicht, uns zu kontaktieren und uns Ihre Wünsche und Bedürfnisse mitzuteilen. Unser Team führt eine gründliche Marktforschung durch, um Ihnen Immobilien anzubieten, die genau Ihren Kriterien entsprechen. Wir verfügen über ein außergewöhnliches Portfolio an hochwertigen und exklusiven Immobilien, die nur unseren Kunden zur Verfügung stehen. Um als Erster Informationen darüber zu erhalten, kontaktieren Sie uns.
Zusätzliche Dienstleistungen
Als geschätzter Kunde unseres Unternehmens genießen Sie die Vorteile unseres erfahrenen Rechtsanwaltsteams völlig kostenlos. Darüber hinaus bieten wir umfassende Lösungen, darunter Gebäudeversicherungen, kostenlose Finanzberatung sowie günstige Finanzierungskonditionen. Unsere Dienstleistungen umfassen auch den Wiederverkauf, die Vermietung und die Hausverwaltung. Hochwertige Renovierungen und Möblierungen führen wir durch spezialisierte Unternehmen unserer Unternehmensgruppe durch, die unsere langjährigen professionellen Partner sind.
Besichtigungen
Wir können eine Besichtigung der Immobilie zu einer für Sie passenden Zeit vereinbaren. Bitte kontaktieren Sie den für dieses Angebot zuständigen Makler und teilen Sie ihm die von Ihnen gewünschte Uhrzeit mit.
Reservierung der Immobilie
Gegen eine nicht erstattete Anzahlung in Höhe von 2.000 Euro wird die Immobilie reserviert. Weitere Besichtigungen mit anderen Käufern finden nicht statt und Makler beginnt mit der Vorbereitung der Dokumente für den Abschluss des endgültigen Vertrags für Eigentumsübertragung. Bitte kontaktieren Sie den zuständigen Makler für mehr Information über den Kauf einer Immobilie und Zahlungsarten.
Zusatzleistungen und Kundendienst
Wir sind ein seriöses Unternehmen und werden nicht nur während des Kaufs, sondern auch danach bei Ihnen sein und Ihnen auf Ihren Wunsch zusätzliche Dienstleistungen anbieten, um die neu gekaufte Immobilie vollständig und nahtlos zu nutzen. Die Dienstleistungen, die wir anbieten können, umfassen die Erlangung einer Hypothekengenehmigung, eine Versicherung für bewegliche und unbewegliche Sachen, eine Lebensversicherung, eine Kranken- und Autoversicherung, Bau- und Reparaturaktivitäten, Möbel, Rechts- und Buchhaltungsdienstleistungen usw.
Bei uns können Sie nicht nur eine Immobilie mieten, sondern auch eine Reihe von Zusatzleistungen in Anspruch nehmen. Wir können Versicherungen für bewegliches und unbewegliches Vermögen, Lebensversicherungen, Kranken- und Kfz-Versicherungen, Bau- und Reparaturarbeiten, Möbel, Rechts- und Buchhaltungsdienstleistungen usw. anbieten.
Standort auf der Karte
VERKAUF
PROJEKT
Luxuriöse 3-Zimmer-Wohnung in einem emblematischen Gebäude in „Dianabad“
Dianabad / Sofia / Sofia / Bulgarien Karte
Bereich: 127 m 2
Preis: 540 000 € /// 4 252 €/m 2
Ein neues Wohnprojekt aus drei Gebäuden mit unterschiedlichen Wohnungstypen im Stadtteil „Dianabad“
Dianabad / Sofia / Sofia / Bulgarien Karte
Immobilienpreise: 176 199 - 450 565 €
Preise pro m²: 2 913 - 3 339 €/m 2
VERKAUF
PROJEKT
Zwei-Zimmer-Wohnung mit Tiefgarage in einem exklusiven Gebäude „Koscher“
Manastirski Livadi - East / Sofia / Sofia / Bulgarien Karte
Bereich: 130 m 2
Preis: 799 000 € /// 6 146 €/m 2
Wählen Sie diese Option und wir benachrichtigen Sie per E-Mail, wenn sich der Angebotsstatus ändert, zum Beispiel:
• Preisänderung;
• Die Immobilie hat ein Sonderangebot abgegeben;
• Die Immobilie ist reserviert oder verkauft;
• Weitere Neuigkeiten im Zusammenhang mit der Immobilie.
• Die Immobilie wird aus dem Verkauf genommen;
Sie können Benachrichtigungen jederzeit problemlos abbestellen.• Änderungen der Angebotsbedingungen;
• Änderung der Investitionshöhe;
• Der Investitionsgegenstand wurde vollständig realisiert;
• Das Angebot ist abgelaufen.
Sie können sich ganz einfach abmelden, wenn Sie in Zukunft entscheiden, dass Sie dieses Angebot nicht mehr nutzen möchten.
Um absolut korrekte Informationen über die im Projekt verfügbaren, leerstehenden Immobilien und deren aktuelle Preise zu erhalten, kontaktieren Sie bitte unser Büro unter den angegebenen Kontaktdaten.
Wir bemühen uns nach Kräften, unsere Preislisten stets aktuell und korrekt zu halten, doch angesichts der Vielzahl neuer Projekte in unserem Katalog und der stark schwankenden Verkaufszahlen ist dies oft unmöglich.
Vielen Dank für Ihr Verständnis!



...Als ausgewiesener Spezialist arbeitet Stonehard PREMIER an der Marktpositionierung und dem Vertrieb zahlreicher Neubauprojekte, deren Umsetzung uns führende Unternehmergesellschaften in Bulgarien und im Ausland anvertraut haben...