Studio nur wenige Minuten vom Zentrum entfernt im neuen Wohnkomplex Velingrad
Preis:
42 635 € (1 100 €/m 2)
*Die angegebenen Preise und die Verfügbarkeit freier Immobilien im Projekt sind Richtwerte. Für aktuelle Preisinformationen kontaktieren Sie uns bitte!
Art.-Nr. Nummer: PLV-126176 / 3910
Standort: Velingrad Karte
Gebäude-/Komplextyp: Wohnen
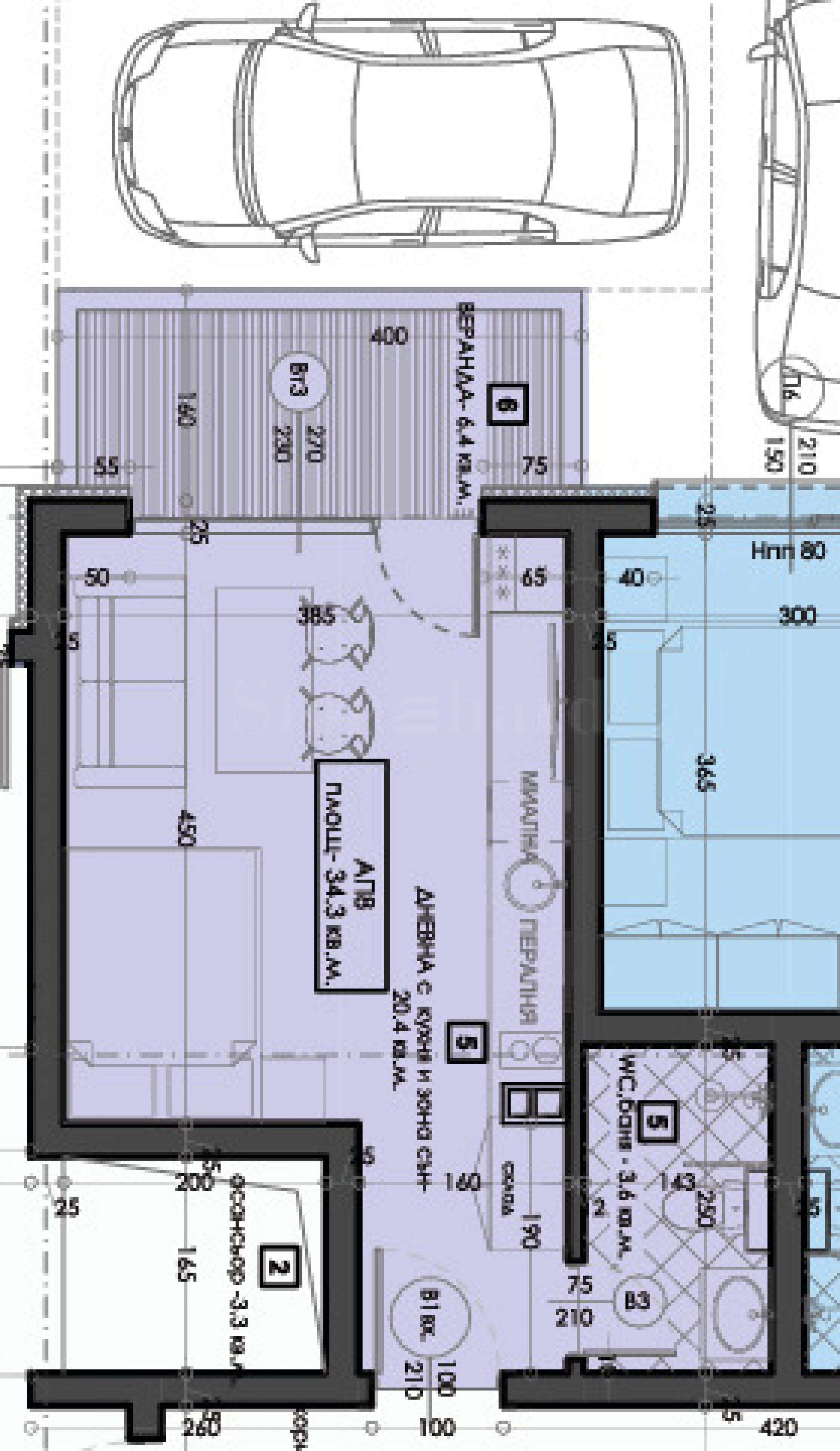
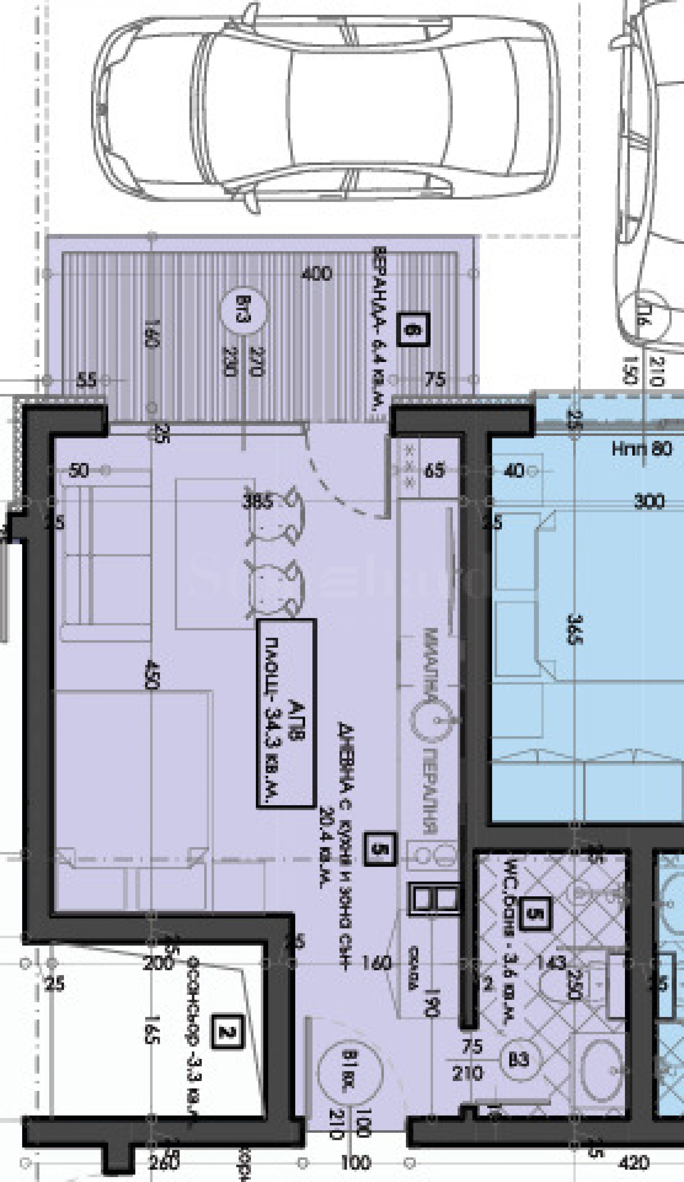
Wohngebiete: 38.76 m 2
Arten von Immobilien im Gebäude/Komplex: 1-Raum-Apartments
Art.-Nr. Nummer: PLV-126176 / 3910
Standort: Velingrad
Gebäude-/Komplextyp: Wohnen
Gebäude-/Komplexklasse:
Wohngebiete: 38.76 m 2
Arten von Immobilien im Gebäude/Komplex: 1-Raum-Apartments
Das Gebäude befindet sich im Bau und Gesetz 16 ist für Dezember 2026 geplant.
KEINE PROVISION!
Die schöne Fassade und die luxuriösen Gemeinschaftsräume sind ein Sinnbild für die Gebäude des Erbauers. Und die Vielfalt der Wohnmöglichkeiten kann den Anforderungen jedes Kunden gerecht werden. Der Kauf eines Hauses in dieser Gegend wäre keine einfache Lösung für Romantiker, die von der Hektik der Großstadt gelangweilt sind. Dies ist eine pragmatische Sichtweise des modernen Menschen mit einer modernen Einstellung zur Natur und ihrem Verhältnis zu ihr, zu gesunder Einfachheit und Harmonie im Leben.
Der Komplex bietet Ein-, Zwei- und Dreizimmerwohnungen mit guter Aufteilung, einige davon mit Veranda, der Rest mit Terrasse.
Die Immobilie mit einer Gesamtfläche von 38,76 qm befindet sich im 2. Stock von 6.
Hohe Ausführungsqualität und individuelle Herangehensweise sind beim Bau unerlässlich. Die Objekte werden laut BSS im Fertigstellungszustand übergeben, es besteht jedoch die Möglichkeit einer „schlüsselfertigen“ Fertigstellung durch den Bauherrn oder mit Materialien des Auftraggebers.
Technische Eigenschaften:
Ziegel vier KEBE - Griechenland;
gepanzerte Eingangstüren;
Gipsputz für Wände und Decken;
unter Zementestrich;
Elektroinstallation ohne Schlüssel und Steckdosen;
Sanitär-Rohrverschraubungen am Stecker;
6-Kammer-Fensterrahmen aus farbigem PVC Hammer, 32 mm Verglasung;
komplett fertiggestellte Terrassen;
Aufzug;
luxuriöse Gemeinschaftsteile – Granitfliesen, Stein, Holz, Aluminiumglas;
kontrollierter Zugang. Das Gebäude verfügt über einen offenen Parkplatz, der 100 % Stellplätze bietet, es besteht jedoch auch die Möglichkeit, auf der Straße zu parken.
Zahlungsschema:
Stop-Einzahlung – 2000 Euro;
Stiftung - 30 %;
Gesetz 14 – 40 %;
Gesetz 16 - 30 %. Das Projekt ist das Werk eines Investors, der seit 2013 mit 15 erfolgreich fertiggestellten Objekten, davon 3 im Bau, am Markt ist.
Welingrad ist eine der beliebtesten Städte Bulgariens. Zusammen mit der Schönheit der Natur und den geothermischen Quellen wird das Leben hier zum Wohlfühlen. Was gibt es Schöneres, als diese Unbezahlbarkeit in den eigenen vier Wänden zu erleben.
Für weitere Informationen wenden Sie sich bitte an den für das Angebot zuständigen Makler.
Besichtigungen
Wir können eine Besichtigung der Immobilie zu einer für Sie passenden Zeit vereinbaren. Bitte kontaktieren Sie den für dieses Angebot zuständigen Makler und teilen Sie ihm die von Ihnen gewünschte Uhrzeit mit.
Reservierung der Immobilie
Gegen eine nicht erstattete Anzahlung in Höhe von 2.000 Euro wird die Immobilie reserviert. Weitere Besichtigungen mit anderen Käufern finden nicht statt und Makler beginnt mit der Vorbereitung der Dokumente für den Abschluss des endgültigen Vertrags für Eigentumsübertragung. Bitte kontaktieren Sie den zuständigen Makler für mehr Information über den Kauf einer Immobilie und Zahlungsarten.
Zusatzleistungen und Kundendienst
Wir sind ein seriöses Unternehmen und werden nicht nur während des Kaufs, sondern auch danach bei Ihnen sein und Ihnen auf Ihren Wunsch zusätzliche Dienstleistungen anbieten, um die neu gekaufte Immobilie vollständig und nahtlos zu nutzen. Die Dienstleistungen, die wir anbieten können, umfassen die Erlangung einer Hypothekengenehmigung, eine Versicherung für bewegliche und unbewegliche Sachen, eine Lebensversicherung, eine Kranken- und Autoversicherung, Bau- und Reparaturaktivitäten, Möbel, Rechts- und Buchhaltungsdienstleistungen usw.
Bei uns können Sie nicht nur eine Immobilie mieten, sondern auch eine Reihe von Zusatzleistungen in Anspruch nehmen. Wir können Versicherungen für bewegliches und unbewegliches Vermögen, Lebensversicherungen, Kranken- und Kfz-Versicherungen, Bau- und Reparaturarbeiten, Möbel, Rechts- und Buchhaltungsdienstleistungen usw. anbieten.
Standort auf der Karte
Apartments nur wenige Minuten vom Zentrum entfernt im neuen Wohnkomplex Velingrad
Velingrad / Pazardjik / Bulgarien Karte
Geplante Fertigstellung: Dezember, 2026
Immobilienpreise: 42 013 - 121 814 €
Preise pro m²: 1 100 - 1 100 €/m 2
Wählen Sie diese Option und wir benachrichtigen Sie per E-Mail, wenn sich der Angebotsstatus ändert, zum Beispiel:
• Preisänderung;
• Die Immobilie hat ein Sonderangebot abgegeben;
• Die Immobilie ist reserviert oder verkauft;
• Weitere Neuigkeiten im Zusammenhang mit der Immobilie.
• Die Immobilie wird aus dem Verkauf genommen;
Sie können Benachrichtigungen jederzeit problemlos abbestellen.• Änderungen der Angebotsbedingungen;
• Änderung der Investitionshöhe;
• Der Investitionsgegenstand wurde vollständig realisiert;
• Das Angebot ist abgelaufen.
Sie können sich ganz einfach abmelden, wenn Sie in Zukunft entscheiden, dass Sie dieses Angebot nicht mehr nutzen möchten.
Um absolut korrekte Informationen über die im Projekt verfügbaren, leerstehenden Immobilien und deren aktuelle Preise zu erhalten, kontaktieren Sie bitte unser Büro unter den angegebenen Kontaktdaten.
Wir bemühen uns nach Kräften, unsere Preislisten stets aktuell und korrekt zu halten, doch angesichts der Vielzahl neuer Projekte in unserem Katalog und der stark schwankenden Verkaufszahlen ist dies oft unmöglich.
Vielen Dank für Ihr Verständnis!



...Als ausgewiesener Spezialist arbeitet Stonehard PREMIER an der Marktpositionierung und dem Vertrieb zahlreicher Neubauprojekte, deren Umsetzung uns führende Unternehmergesellschaften in Bulgarien und im Ausland anvertraut haben...