Apartments neben der U-Bahn-Station „Slivnitsa“ im Bezirk „Ljulin 8“
REF#SOF-128017
/
Apartments (verschiedene Typen)
/
Aktuelle Projekte
/
Sofia
/
Lyulin 8
/
Sofia
/
Bulgarien
auf der Karte
Preise der Immobilien im Projekt:
155 000 - 222 000 € (1 850 - 1 900 €/m 2)
*Die angegebenen Preise und die Verfügbarkeit freier Immobilien im Projekt sind Richtwerte. Für aktuelle Preisinformationen kontaktieren Sie uns bitte!
Art.-Nr. Nummer: SOF-128017 / 4038
Standort: Lyulin 8 / Sofia Karte
Gebäude-/Komplextyp: Wohnen
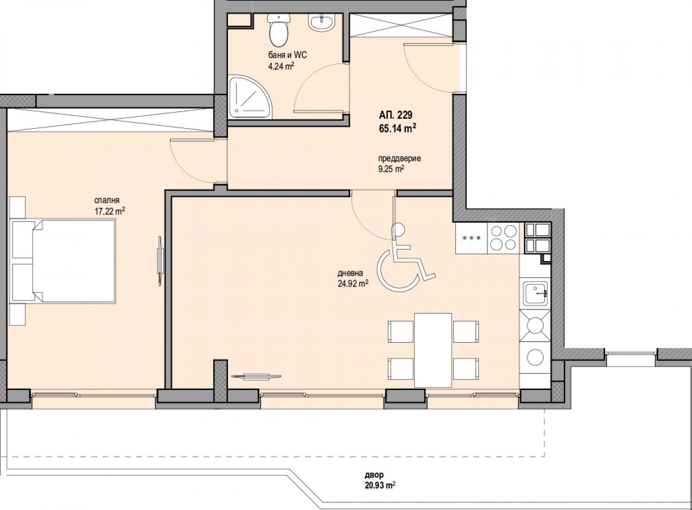
Wohngebiete: 78 m 2 - 110 m 2
Anzahl der Objekte im Gebäude/Komplex: 61
Zum Verkauf verfügbar: 6 (9%)
Arten von Immobilien im Gebäude/Komplex: 2-Raum-Apartments, 3-Raum-Apartments, Stellplätze
Art.-Nr. Nummer: SOF-128017 / 4038
Standort: Lyulin 8 / Sofia
Gebäude-/Komplextyp: Wohnen
Gebäude-/Komplexklasse:
Wohngebiete: 78 m 2 - 110 m 2
Anzahl der Objekte im Gebäude/Komplex: 61
Zum Verkauf verfügbar: 6 (9%)
Arten von Immobilien im Gebäude/Komplex: 2-Raum-Apartments, 3-Raum-Apartments, Stellplätze
Standort
Das Gebäude befindet sich in unmittelbarer Nähe der Hauptverkehrsstraßen der Hauptstadt – dem Blvd. „Slivnitsa“, Blvd. „Pencho Vladigerov“, str. „Filipovsko Shose“ und Ringstraße. Die Lemberger Brücke und den Hauptbahnhof erreichen Sie nach 5 km. Das Viertel verfügt über eine gut ausgebaute Verkehrsinfrastruktur und wird von allen Arten öffentlicher Verkehrsmittel bedient: U-Bahn-Station „Slivnitsa“, Busse 82, 108, 309, 83, 49, 54, 47, 48, 42 und Trolleybus 6.
Es liegt in der Nähe von Kindergärten - ODZ Nr. 139 Panorama, DG Nr. 73 Margarita, ODZ Nr. 31 Lyulin und Bildungseinrichtungen - 56 SU „Prof. Konstantin Irechek“, 137 SU Angel Kanchev. In der Umgebung gibt es verschiedene Supermarktketten – HIT Max, Metro, Fantastico, Billa, Technopolis, Praktiker und für Spaziergänger – West Park, North Park, mit schnellem Zugang zum Öko-Pfad „Pfad der Gesundheit“ – Bankya und Pferdebasis „Gen. Krum Lekarski“ – Bozhurishte.
Über das Gebäude
Das Gebäude wird durch eine attraktive Fassade mit Klinkerfliesen hervorstechen. Geplante Fertigstellung – 12.2026
Es besteht aus 2 Eingängen und 6 oberirdischen Etagen, die wie folgt verteilt sind:
Die Lagerräume befinden sich im Untergeschoss, wo auch die Parkmöglichkeiten mit abgegrenzten Einzelstellplätzen, Doppelgaragenzellen sowie mit Außenstellplätzen festgelegt sind;
Erdgeschoss – 2 Geschäftsräume, zwei Wohnungen und Garagen;
vom zweiten bis zum sechsten Wohngeschoss - Zwei- und Dreizimmerwohnungen mit funktionaler Aufteilung. Die Wohnungen werden im Fertigstellungsgrad laut BDS vermietet:
PVC-Fenster mit sechs Kammern, deutsches Profil mit Dreifachverglasung, mit einem emissionsarmen Glas;
Eingangstür der Wohnung – gepanzert, mit hochwertigem Geheimschloss;
Heizung mittels Elektroenergie mit kompletten Anschlüssen für Klimaanlagen;
fertige Wände und Decken bis hin zum Gipsputz mit an den Rändern verlegten Aluminiumecken; Decken unbeheizter Räume, die an beheizte Räume grenzen, mit verlegter Wärmedämmung aus XPS-extrudiertem Polystyrolschaum; in Badezimmern, Toiletten und Nassräumen mit gefülltem Kalk-Zement-Putz;
Zementestrich auf dem Boden; Terrassen mit Granitboden;
installiertes Wohnungspanel, das sich in der Nähe der Eingangstür der Wohnung befindet;
Schwachstrominstallationen – gemäß Projekt ausgeführt mit einer an der Eingangstür installierten Schwachstromdose;
Verkabelung für SOT in jeder Wohnung;
Installation der Video-Gegensprechanlage – Verkabelung abgeschlossen, Video-Gegensprechanlagen in den Wohnungen installiert und Video-Gegensprechanlage neben der Eingangstür installiert;
installierte Stromzähler. Technische Eigenschaften des Gebäudes:
monolithische, balkenlose Stahlbetonkonstruktion einer Fundamentplatte;
mit Abdichtung der Fundamente des Gebäudes - System Kryton International Inc. Krystol Waterstop-System;
WIENERBERGER Keramikziegelmauerwerk;
äußere Umfassungswände – Porotherm 25 cm Keramikziegel und Wärmedämmsystem /EPS-Schaum/;
für interne Ziegelwände - Porotherm 12 cm Keramikziegel, mit Schalldämmung zwischen den Wohnungen;
Flachdach mit verlegten Schichten nach Detail - Dampfsperre, Wärmedämmung aus extrudiertem Polystyrolschaum - XPS, armierter Estrich mit Gefälle, zwei Lagen Rollbitumenabdichtung; ohne Wärmebrücken an den Bauteilen;
gemeinsame Teile - Granit oder Naturstein;
Aufzüge mit Luxuskabinen mit automatischen Türen. Wir erwarten Ihre Anfrage
Wenn Sie eine Besichtigung einer Immobilie, an der Sie interessiert sind, vereinbaren oder eines unserer Büros besuchen möchten, kontaktieren Sie uns bitte. Um einen Termin für ein Treffen oder eine Inspektion zu vereinbaren, können Sie die in der Anzeige angegebene Telefonnummer anrufen oder eine Anfrage per E-Mail senden. Unser Berater berät Sie gerne bei allen notwendigen Details und vereinbart einen für Sie passenden Termin.
Sie sind auf der Suche nach der passenden Immobilie für sich?
Zögern Sie nicht, uns zu kontaktieren und uns Ihre Bedürfnisse und Vorlieben mitzuteilen. Unser Team führt eine gründliche Marktrecherche durch, um Ihnen Immobilien anzubieten, die genau Ihren Kriterien entsprechen. Wir verfügen über ein außergewöhnliches Portfolio an hochwertigen und exklusiven Häusern, die nur unseren Kunden zur Verfügung stehen. Um als Erster Informationen darüber zu erhalten, kontaktieren Sie uns.
Zusätzliche Dienstleistungen
Als geschätzter Mandant unseres Unternehmens haben Sie das Privileg, die Dienste unseres erfahrenen Rechtsteams völlig kostenlos in Anspruch zu nehmen. Darüber hinaus bieten wir komplexe Lösungen inklusive Sachversicherung, kostenloser Finanzberatung sowie günstigen Finanzierungskonditionen. Unsere Dienstleistungen erstrecken sich auch auf den Weiterverkauf, die Vermietung und die Immobilienverwaltung. Wir erbringen hochwertige Reparatur- und Einrichtungsarbeiten durch spezialisierte Unternehmen, die zu unserer Unternehmensgruppe gehören und unsere langjährigen professionellen Partner sind.
Besichtigungen
Wir können eine Besichtigung der Immobilie zu einer für Sie passenden Zeit vereinbaren. Bitte kontaktieren Sie den für dieses Angebot zuständigen Makler und teilen Sie ihm die von Ihnen gewünschte Uhrzeit mit.
Reservierung der Immobilie
Gegen eine nicht erstattete Anzahlung in Höhe von 2.000 Euro wird die Immobilie reserviert. Weitere Besichtigungen mit anderen Käufern finden nicht statt und Makler beginnt mit der Vorbereitung der Dokumente für den Abschluss des endgültigen Vertrags für Eigentumsübertragung. Bitte kontaktieren Sie den zuständigen Makler für mehr Information über den Kauf einer Immobilie und Zahlungsarten.
Zusatzleistungen und Kundendienst
Wir sind ein seriöses Unternehmen und werden nicht nur während des Kaufs, sondern auch danach bei Ihnen sein und Ihnen auf Ihren Wunsch zusätzliche Dienstleistungen anbieten, um die neu gekaufte Immobilie vollständig und nahtlos zu nutzen. Die Dienstleistungen, die wir anbieten können, umfassen die Erlangung einer Hypothekengenehmigung, eine Versicherung für bewegliche und unbewegliche Sachen, eine Lebensversicherung, eine Kranken- und Autoversicherung, Bau- und Reparaturaktivitäten, Möbel, Rechts- und Buchhaltungsdienstleistungen usw.
Bei uns können Sie nicht nur eine Immobilie mieten, sondern auch eine Reihe von Zusatzleistungen in Anspruch nehmen. Wir können Versicherungen für bewegliches und unbewegliches Vermögen, Lebensversicherungen, Kranken- und Kfz-Versicherungen, Bau- und Reparaturarbeiten, Möbel, Rechts- und Buchhaltungsdienstleistungen usw. anbieten.
Standort auf der Karte
Wohnungen in einem luxuriösen Neubau neben dem Zaimov-Park im Bezirk Oborishte
Oborishte / Sofia / Sofia / Bulgarien Karte
Immobilienpreise: 165 010 - 598 126 €
Preise pro m²: 3 928 - 4 771 €/m 2
Wohnungen in einem Neubau in der Nähe des Todor-Kableshkov-Boulevards und des Paradise Centers
Manastirski Livadi - East / Sofia / Sofia / Bulgarien Karte
Gebäudeklasse: Hoher Standard
Immobilienpreise: 199 333 - 824 268 € (ohne MwSt.)
Preise pro m²: 2 781 - 3 486 €/m 2 (ohne MwSt.)
RECHTE
Mountain View Obelya – exklusive Apartments in einem modernen Komplex direkt neben der U-Bahn-Station
Obelya 2 / Sofia / Sofia / Bulgarien Karte
Gebäudeklasse: Standard
Immobilienpreise: 101 629 - 271 405 €
Preise pro m²: 1 400 - 1 800 €/m 2
Wählen Sie diese Option und wir benachrichtigen Sie per E-Mail, wenn sich der Angebotsstatus ändert, zum Beispiel:
• Preisänderung;
• Die Immobilie hat ein Sonderangebot abgegeben;
• Die Immobilie ist reserviert oder verkauft;
• Weitere Neuigkeiten im Zusammenhang mit der Immobilie.
• Die Immobilie wird aus dem Verkauf genommen;
Sie können Benachrichtigungen jederzeit problemlos abbestellen.• Änderungen der Angebotsbedingungen;
• Änderung der Investitionshöhe;
• Der Investitionsgegenstand wurde vollständig realisiert;
• Das Angebot ist abgelaufen.
Sie können sich ganz einfach abmelden, wenn Sie in Zukunft entscheiden, dass Sie dieses Angebot nicht mehr nutzen möchten.
Um absolut korrekte Informationen über die im Projekt verfügbaren, leerstehenden Immobilien und deren aktuelle Preise zu erhalten, kontaktieren Sie bitte unser Büro unter den angegebenen Kontaktdaten.
Wir bemühen uns nach Kräften, unsere Preislisten stets aktuell und korrekt zu halten, doch angesichts der Vielzahl neuer Projekte in unserem Katalog und der stark schwankenden Verkaufszahlen ist dies oft unmöglich.
Vielen Dank für Ihr Verständnis!



...Als ausgewiesener Spezialist arbeitet Stonehard PREMIER an der Marktpositionierung und dem Vertrieb zahlreicher Neubauprojekte, deren Umsetzung uns führende Unternehmergesellschaften in Bulgarien und im Ausland anvertraut haben...