Станови у близини метро станице „Сливница“ у округу „Љулин 8“
na karti
Cene nekretnina u projektu:
155 000 - 222 000 € (1 850 - 1 900 €/m2)
*Ukazane cene i dostupnosti od slobodnih nekretnina u projektu su indikativne. Za aktuelne cenovne informacije, molimo vas da nas kontaktirate!
Ref. Broj: SOF-128017 / 4038
Lokacija: Sofia karta
Tip na zgrada/kompleks: Stambeni
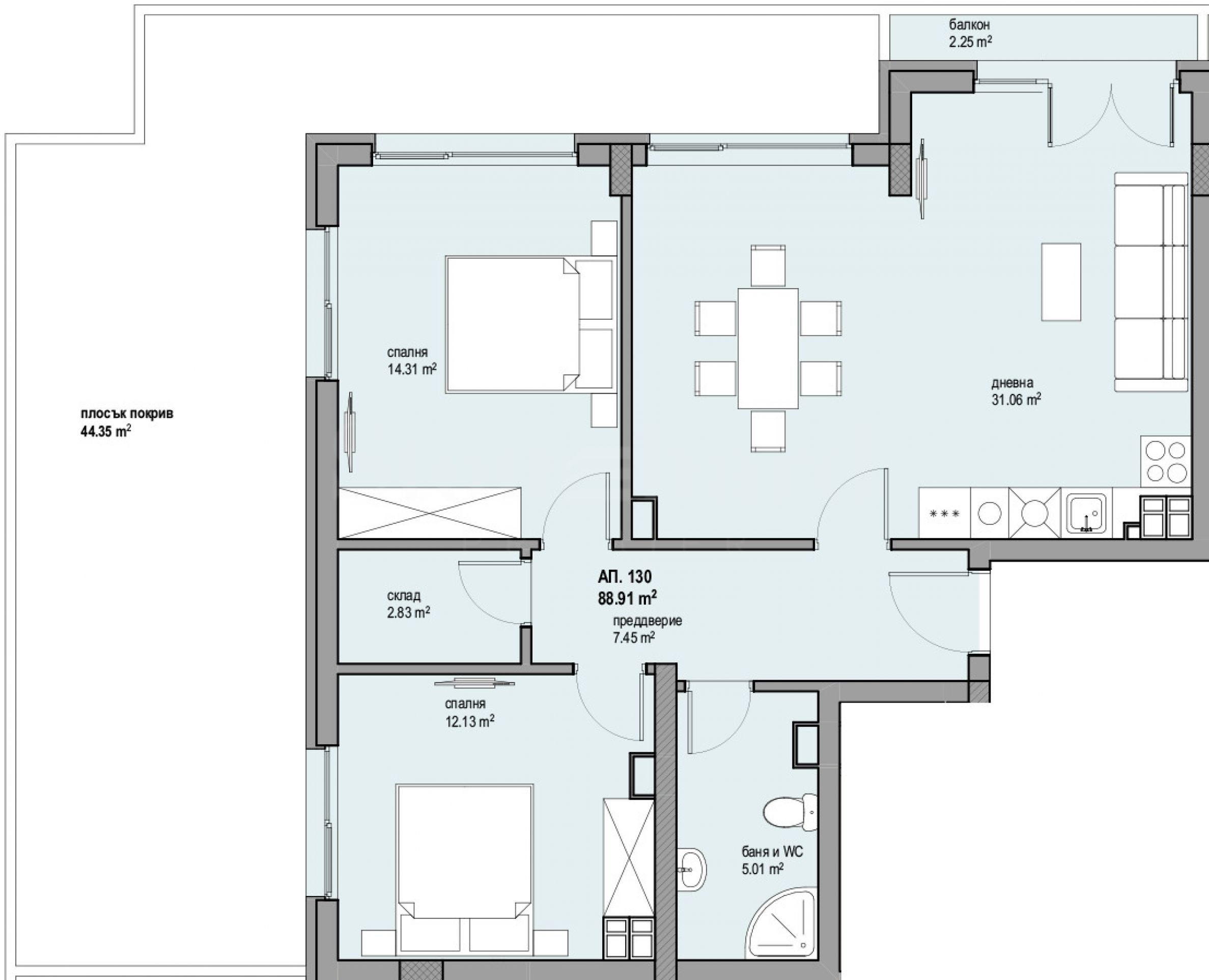
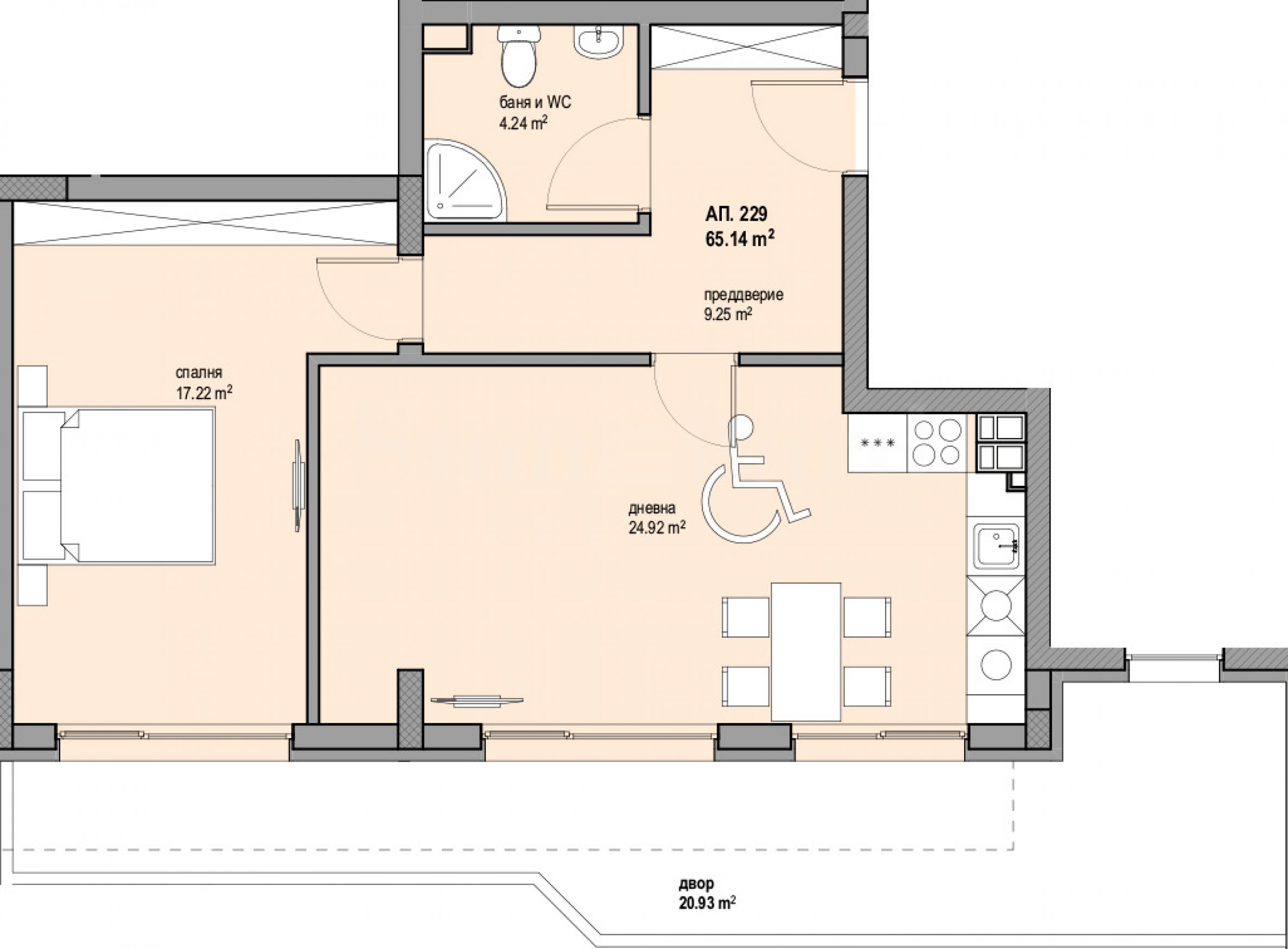
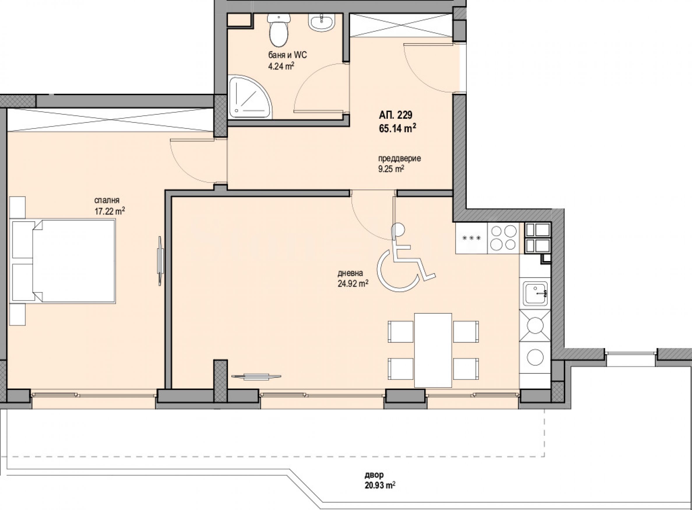
Površine stanova: 78 m2 - 110 m2
Broj nekretnina u zgradi/kompleksu: 61
Slobodni za prodaju: 6 (9%)
Tipovi nekretnina u zgradi/kompleksu: Jednosobni stanovi, Dvosobni stanovi,
Ref. Broj: SOF-128017 / 4038
Lokacija: Sofia
Tip na zgrada/kompleks: Stambeni
Klas na zgradi/kompleksu:
Površine stanova: 78 m2 - 110 m2
Broj nekretnina u zgradi/kompleksu: 61
Slobodni za prodaju: 6 (9%)
Tipovi nekretnina u zgradi/kompleksu: Jednosobni stanovi, Dvosobni stanovi,
Локација
Зграда се налази у непосредној близини главних градских саобраћајница - булевара Сливница, булевара Пенча Владигерова, булевара Филиповско шосе и обилазнице. Удаљена је 5 км од Лављег моста и Централне станице. Насеље има добро развијену транспортну инфраструктуру и опслужено је свим врстама јавног превоза: метро станица Сливница, аутобуси 82, 108, 309, 83, 49, 54, 47, 48, 42 и тролејбус 6.
У близини су вртићи - ОДЗ бр. 139 Панорама, ДГ бр. 73 Маргарита, ОДЗ бр. 31 Љулин и образовне институције - 56 Средња школа „Проф. Константин Иречек“, 137 Средња школа Ангел Кaнчев. У подручју се налазе и разни ланци супермаркета - ХИТ Макс, Метро, Фантастико, Билла, Технополис, Практикер, а за оне који воле шетњу - Западни парк, Северни парк, са брзим приступом еко-стази „Стаза здравља“ - Банкја и Коњичка база „Ген. Крум Лекарски“ - Божуриште.
О згради
Зграда ће имати атрактивну фасаду са клинкер плочицама. Планирани завршетак - 12.2026.
Састоји се од 2 улаза и 6 надземних спратова, распоређених на следећи начин:
Оставе се налазе у подруму, где је обезбеђен и паркинг са означеним појединачним паркинг местима, дуплим гаражним ћелијама, као и спољним паркинг местима;
приземље – 2 пословна простора, два стана и гараже;
од другог до шестог стамбеног спрата - двособни и трособни станови функционалног распореда. Станови се издају у следећем степену завршености према бугарским грађевинским стандардима:
ПВЦ прозори са шестокоморним, немачким профилом са троструким стаклом, са једним нискоемисионим стаклом;
улазна врата стана - блиндирана, са висококласном тајном бравом;
грејање на струју са прикључцима за клима уређаје;
завршени зидови и плафони до гипсане малтерске облоге са алуминијумским заштитним лајснама за углове постављеним на ивицама; плафони негрејаних просторија које се граниче са грејаним просторијама, са топлотном изолацијом од XPS екструдиране полистиренске пене; у купатилима, тоалетима и влажним просторијама са кречно-цементним малтером;
цементна кошуљица на поду; терасе са гранитним плочицама;
инсталирана стамбена табла, која се налази близу улазних врата куће;
слабострујне инсталације – реализоване према пројекту са слабострујном кутијом постављеном на улазним вратима;
ожичење за безбедносни систем у сваком стану;
инсталација видео интерфона - завршено ожичење, видео интерфони у становима и постављена је табла видео интерфона поред улазних врата;
инсталирана бројила електричне енергије. Техничке карактеристике зграде:
монолитна, армиранобетонска безгредна конструкција темељне плоче;
са хидроизолацијом темеља зграде - Kryton international Inc. Krystol Waterstop System;
зидање керамичким циглама WIENERBERGER;
спољни оградни зидови - керамичке цигле Porotherm 25 цм и систем термоизолације /експандирани полистирен EPS/;
за унутрашње зидове од цигле - керамичке цигле Porotherm 12 цм, са звучном изолацијом између станова;
раван кров са детаљно постављеним слојевима - паробрана, термоизолација од екструдиране полистиренске пене - XPS, армирана кошуљица са нагибом, два слоја ваљане битуменске хидроизолације; без топлотних мостова на конструктивним елементима;
заједничке просторије - гранитне плочице или природни камен;
лифтови са луксузним кабинама са аутоматским вратима. Радујемо се вашем упиту.
Уколико желите да закажете разгледање некретнине која вас занима или да посетите једну од наших канцеларија, контактирајте нас. Да бисте заказали дан и време састанка или разгледања, можете позвати број телефона наведен у огласу или послати упит путем е-поште. Наш консултант ће вам помоћи са свим потребним детаљима и заказати време које вам одговара.
Да ли тражите праву некретнину за вас?
Слободно нас контактирајте и реците нам о вашим потребама и жељама. Наш тим ће спровести темељно истраживање тржишта како би вам понудио некретнине које тачно испуњавају ваше критеријуме. Имамо изузетан портфолио висококвалитетних и ексклузивних кућа које су доступне само нашим клијентима. Да бисте први добили информације о њима – контактирајте нас.
Додатне услуге
Као цењени клијент наше компаније, имаћете привилегију да користите услуге нашег искусног правног тима потпуно бесплатно. Поред тога, нудимо свеобухватна решења, укључујући осигурање имовине, бесплатно финансијско саветовање, као и повољне услове финансирања. Наше услуге се протежу и на област препродаје, изнајмљивања и управљања некретнинама. Пружамо висококвалитетно реновирање и опремање преко специјализованих компанија које су део наше корпоративне групе и наши су дугогодишњи професионални партнери.
Mesto na karti
PRAVA
Nova stambena zgrada do parka "Zaimov" i na metar od "Doktorski pamentnik"
Oborishte / Sofia / Sofia / Бугарска karta
Cene na imovinu: 555 000 €
Cene po m²: 4 974 €/m2
Mnogofamiljna stambena zgrada sa ozelenjenim dvorištem i različitim tipovima apartmana u kv. "Malinova dolina"
Malinova Dolina / Sofia / Sofia / Бугарска karta
Cene na imovinu: CENA NA UPIT
Нови стамбени пројекат од три зграде са различитим типовима станова у округу „Дианабад“
Dianabad / Sofia / Sofia / Бугарска karta
Cene na imovinu: 176 199 - 450 565 €
Cene po m²: 2 913 - 3 339 €/m2
Izaberite ovu opciju i obaveštavaćemo Vas putem imejla o promenama statusa ponude, na primer:
• Promena cene;
• Nekretnina je ušla u promotivnu ponudu;
• Nekretnina je rezervisana ili prodata;
• Druge novosti vezane za nekretninu.
• Nekretnina je skinuta sa prodaje;
Možete se lako odjaviti sa notifikacija kad god poželite.• Promene uslova ponude;
• Promena iznosa investicije;
• Predmet investicije je u potpunosti realizovan;
• Važenje ponude je isteklo.
Možete se lako odjaviti ako u budućnosti odlučite da više ne želite da pratite ovu ponudu.
Da biste dobili apsolutno tačne informacije o slobodnim nekretninama dostupnim za prodaju u projektu i njihovim aktuelnim cenama, molimo vas da kontaktirate našu kancelariju na navedene kontakt informacije.
Trudimo se da naše cenovnike održavamo apsolutno aktuelnim i tačnim, ali često to nije moguće zbog velikog broja novih projekata u našem katalogu i snažne dinamike prodaje.
Hvala vam na razumevanju!



...Kao dokazani stručnjak Stonehard PREMIER radi na tržišnom pozicioniranju i prodaji brojnih projekata novogradnje, čija je realizacija poverena od strane vodećih preduzetničkih kompanija u Bugarskoj i inostranstvu...