Ausgezeichnete Vierzimmerwohnung in einem modernen Gebäude im Zentrum von Sofia
Preis:
450 527 € (2 650 €/m 2)
*Die angegebenen Preise und die Verfügbarkeit freier Immobilien im Projekt sind Richtwerte. Für aktuelle Preisinformationen kontaktieren Sie uns bitte!
Art.-Nr. Nummer: SOF-127148 / 3935
Standort: Center / Sofia Karte
Gebäude-/Komplextyp: Wohnen
Wohngebiete: 170.01 m 2
Arten von Immobilien im Gebäude/Komplex: Mehr-Zimmer-Apartments
Art.-Nr. Nummer: SOF-127148 / 3935
Standort: Center / Sofia
Gebäude-/Komplextyp: Wohnen
Gebäude-/Komplexklasse:
Wohngebiete: 170.01 m 2
Arten von Immobilien im Gebäude/Komplex: Mehr-Zimmer-Apartments
Vor dem Gesetz Nr. 15 wird das Gesetz Nr. 16 voraussichtlich Ende September 2026 in Kraft treten.
Das Gebäude befindet sich im Bau, zeichnet sich durch ein modernes und klares Erscheinungsbild aus und liegt in einer Straße mit sehr guter Infrastruktur und einem angenehmen Umfeld. Es befindet sich zwischen:
"Maria Luisa" Blvd.;
"Hristo Botev" Blvd.;
"Slivnitsa"-Boulevard. Das moderne Gebäude bietet bequemen Zugang zu öffentlichen Verkehrsmitteln, einer U-Bahn-Station und ist schnell mit dem Stadtzentrum und dem Flughafen Sofia verbunden. Die fußläufige Erreichbarkeit von Sehenswürdigkeiten, Einkaufsmöglichkeiten, Kunsträumen und Restaurants macht die Wohnungen im Gebäude sowohl für die Eigennutzung als auch als Kapitalanlage attraktiv.
Das Projekt ist das Werk eines Investors mit langjähriger Erfahrung und einer Reihe bereits abgeschlossener Projekte in Sofia.
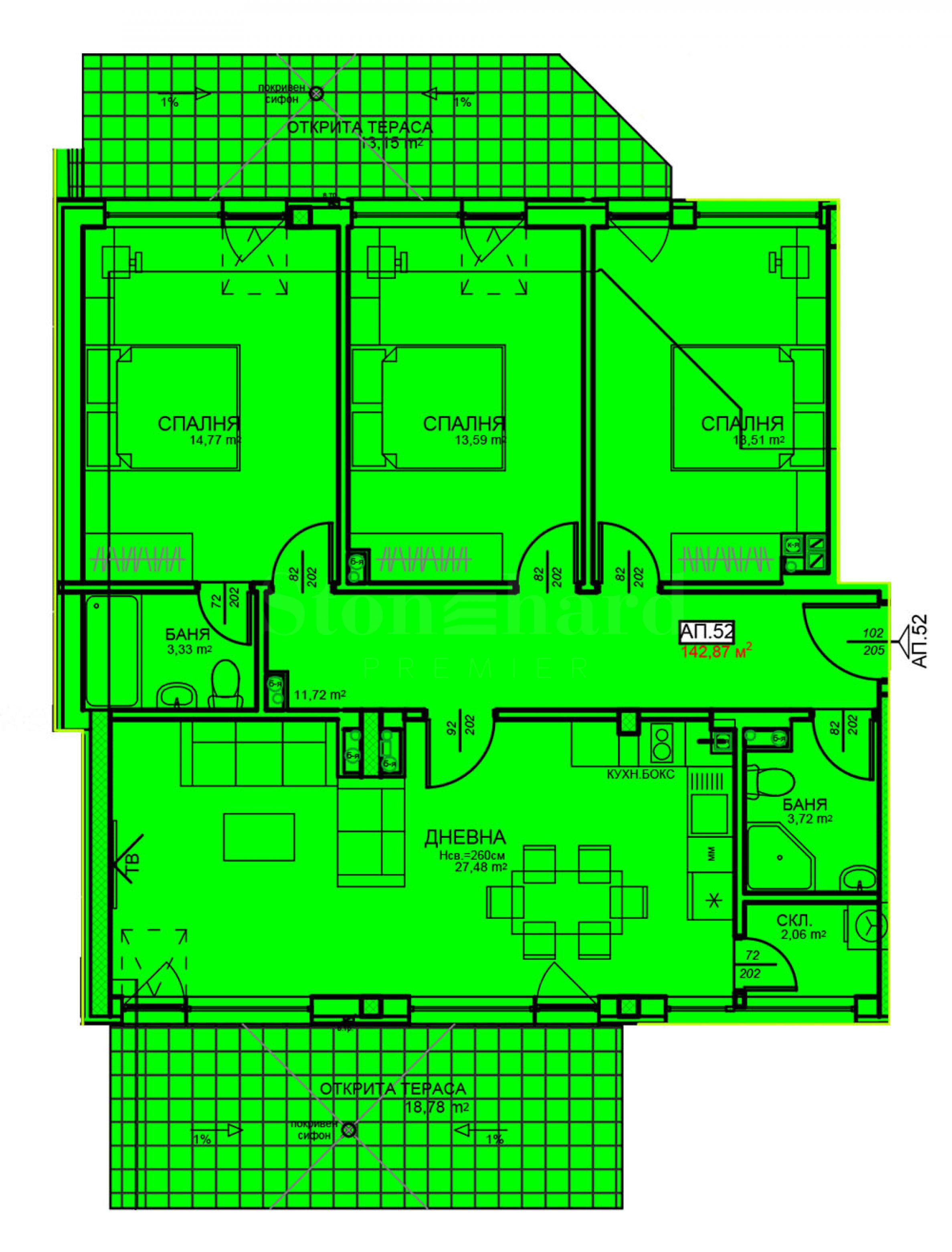
Die Wohnung Nr. 52 befindet sich im 7. Stock.
Verteilung:
Flur/Korridor;
zwei Badezimmer mit Toiletten;
Wohnzimmer mit Kochnische: 27,48 m², mit Abstellraum;
Terrasse von 18,78 m² am Wohnzimmer;
Schlafzimmer 1: 13,51 m²;
Schlafzimmer 2: 13,59 m²;
Schlafzimmer 3: 14,77 m²;
Terrasse - 13,15 m² mit Zugang von den drei Schlafzimmern. Intelligent gestaltete Häuser
Die Wohnungen im Gebäude erfüllen alle modernen Anforderungen an Funktionalität und Komfort. Alle Wohnungen verfügen über großzügige Wohn- und Schlafbereiche mit bodentiefen Fenstern, die viel Tageslicht hereinlassen. Jede Wohnung ist mit einem Abstellraum/Badezimmer und Zugang zu einer Terrasse mit einer Mindesttiefe von 1,50 m ausgestattet, auf der bequem ein Tisch mit vier Stühlen Platz findet.
Flexible Zahlungspläne – mit einer Reservierungsanzahlung von 3.000 Euro und 20 % des Immobilienwerts bei Vertragsabschluss.
Ein Parkplatz oder eine Garage kann mit dem Objekt erworben werden.
Technische Merkmale:
moderne Fassade – eine Kombination aus Silikonputz, Glas und Fassadenverkleidung;
Energieeffiziente Sechs-Kammer-Fenster mit Dreifachverglasung;
hochwertige Wärmedämmung mit 10 cm Steinwolle und Dampfsperre der Dachräume;
Glasgeländer;
luxuriös ausgestattete Gemeinschaftsbereiche mit Installation energieeffizienter Beleuchtung;
zwei Hochgeschwindigkeits-Personenaufzüge, die für Menschen mit Behinderungen geeignet sind;
Heizung von Wärmekraftwerken. Wir freuen uns auf Ihre Anfrage.
Wenn Sie eine Immobilie besichtigen möchten, die Sie interessiert, oder eines unserer Büros besuchen möchten, kontaktieren Sie uns bitte. Um einen Termin für eine Besichtigung oder ein Treffen zu vereinbaren, rufen Sie uns bitte unter der in der Anzeige angegebenen Telefonnummer an oder senden Sie uns eine Anfrage per E-Mail. Unser Berater unterstützt Sie gerne mit allen notwendigen Informationen und findet einen passenden Termin für Sie.
Sind Sie auf der Suche nach der passenden Immobilie für Sie?
Zögern Sie nicht, uns zu kontaktieren und uns Ihre Wünsche und Vorlieben mitzuteilen. Unser Team führt eine gründliche Marktanalyse durch, um Ihnen Immobilien anzubieten, die genau Ihren Kriterien entsprechen. Wir verfügen über ein außergewöhnliches Portfolio an hochwertigen und exklusiven Häusern, die nur unseren Kunden zur Verfügung stehen. Um als Erster Informationen darüber zu erhalten, kontaktieren Sie uns.
Zusätzliche Dienstleistungen
Als geschätzter Kunde unseres Unternehmens genießen Sie den Vorteil, die Dienste unseres erfahrenen Rechtsteams kostenfrei in Anspruch zu nehmen. Darüber hinaus bieten wir Ihnen umfassende Lösungen, darunter Gebäudeversicherungen, kostenlose Finanzberatung sowie attraktive Finanzierungskonditionen. Unser Leistungsspektrum umfasst auch die Bereiche Wiederverkauf, Vermietung und Immobilienverwaltung. Hochwertige Renovierungen und Einrichtungsarbeiten vermitteln wir Ihnen über spezialisierte Unternehmen unserer Unternehmensgruppe, mit denen wir seit Langem zusammenarbeiten.
Besichtigungen
Wir können eine Besichtigung der Immobilie zu einer für Sie passenden Zeit vereinbaren. Bitte kontaktieren Sie den für dieses Angebot zuständigen Makler und teilen Sie ihm die von Ihnen gewünschte Uhrzeit mit.
Reservierung der Immobilie
Gegen eine nicht erstattete Anzahlung in Höhe von 2.000 Euro wird die Immobilie reserviert. Weitere Besichtigungen mit anderen Käufern finden nicht statt und Makler beginnt mit der Vorbereitung der Dokumente für den Abschluss des endgültigen Vertrags für Eigentumsübertragung. Bitte kontaktieren Sie den zuständigen Makler für mehr Information über den Kauf einer Immobilie und Zahlungsarten.
Zusatzleistungen und Kundendienst
Wir sind ein seriöses Unternehmen und werden nicht nur während des Kaufs, sondern auch danach bei Ihnen sein und Ihnen auf Ihren Wunsch zusätzliche Dienstleistungen anbieten, um die neu gekaufte Immobilie vollständig und nahtlos zu nutzen. Die Dienstleistungen, die wir anbieten können, umfassen die Erlangung einer Hypothekengenehmigung, eine Versicherung für bewegliche und unbewegliche Sachen, eine Lebensversicherung, eine Kranken- und Autoversicherung, Bau- und Reparaturaktivitäten, Möbel, Rechts- und Buchhaltungsdienstleistungen usw.
Bei uns können Sie nicht nur eine Immobilie mieten, sondern auch eine Reihe von Zusatzleistungen in Anspruch nehmen. Wir können Versicherungen für bewegliches und unbewegliches Vermögen, Lebensversicherungen, Kranken- und Kfz-Versicherungen, Bau- und Reparaturarbeiten, Möbel, Rechts- und Buchhaltungsdienstleistungen usw. anbieten.
Standort auf der Karte
Boutique-Apartments in einem luxuriösen Neubau in "Malinova Dolina"
Malinova Dolina / Sofia / Sofia / Bulgarien Karte
Gebäudeklasse: Luxuriös
Immobilienpreise: 174 575 - 371 115 €
Preise pro m²: 2 500 - 2 700 €/m 2
VERKAUF
PROJEKT
Penthouse mit Blick auf Vitosha und Option auf zwei Garagen neben „Simeonovsko Shose“
Vitosha / Sofia / Sofia / Bulgarien Karte
Bereich: 300 m 2
Preis: 615 500 € /// 2 052 €/m 2
RECHTE
VERKAUF
PROJEKT
Exklusive Wohnung mit drei Schlafzimmern in der Gloria Palace Residence
Gorna Banya / Sofia / Sofia / Bulgarien Karte
Bereich: 207.43 m 2
Preis: 430 000 € /// 2 073 €/m 2
Wählen Sie diese Option und wir benachrichtigen Sie per E-Mail, wenn sich der Angebotsstatus ändert, zum Beispiel:
• Preisänderung;
• Die Immobilie hat ein Sonderangebot abgegeben;
• Die Immobilie ist reserviert oder verkauft;
• Weitere Neuigkeiten im Zusammenhang mit der Immobilie.
• Die Immobilie wird aus dem Verkauf genommen;
Sie können Benachrichtigungen jederzeit problemlos abbestellen.• Änderungen der Angebotsbedingungen;
• Änderung der Investitionshöhe;
• Der Investitionsgegenstand wurde vollständig realisiert;
• Das Angebot ist abgelaufen.
Sie können sich ganz einfach abmelden, wenn Sie in Zukunft entscheiden, dass Sie dieses Angebot nicht mehr nutzen möchten.
Um absolut korrekte Informationen über die im Projekt verfügbaren, leerstehenden Immobilien und deren aktuelle Preise zu erhalten, kontaktieren Sie bitte unser Büro unter den angegebenen Kontaktdaten.
Wir bemühen uns nach Kräften, unsere Preislisten stets aktuell und korrekt zu halten, doch angesichts der Vielzahl neuer Projekte in unserem Katalog und der stark schwankenden Verkaufszahlen ist dies oft unmöglich.
Vielen Dank für Ihr Verständnis!



...Als ausgewiesener Spezialist arbeitet Stonehard PREMIER an der Marktpositionierung und dem Vertrieb zahlreicher Neubauprojekte, deren Umsetzung uns führende Unternehmergesellschaften in Bulgarien und im Ausland anvertraut haben...