Dreizimmerwohnung in einem neuen Wohngebäude direkt am Strand in Zarewo
auf der KartePreis:
126 088 € (ohne MwSt.) (1 230 €/m 2 (ohne MwSt.))
*Die angegebenen Preise und die Verfügbarkeit freier Immobilien im Projekt sind Richtwerte. Für aktuelle Preisinformationen kontaktieren Sie uns bitte!
Art.-Nr. Nummer: LXH-126447 / 3933
Standort: Tsarevo Karte
Gebäude-/Komplextyp: Wohnen
Wohngebiete: 102.47 m 2
Arten von Immobilien im Gebäude/Komplex: 3-Raum-Apartments
Art.-Nr. Nummer: LXH-126447 / 3933
Standort: Tsarevo
Gebäude-/Komplextyp: Wohnen
Gebäude-/Komplexklasse:
Wohngebiete: 102.47 m 2
Arten von Immobilien im Gebäude/Komplex: 3-Raum-Apartments
Voraussichtliches Gesetz 16 – September 2025
Kauf ohne Provision.
Keine Wartungsgebühr.
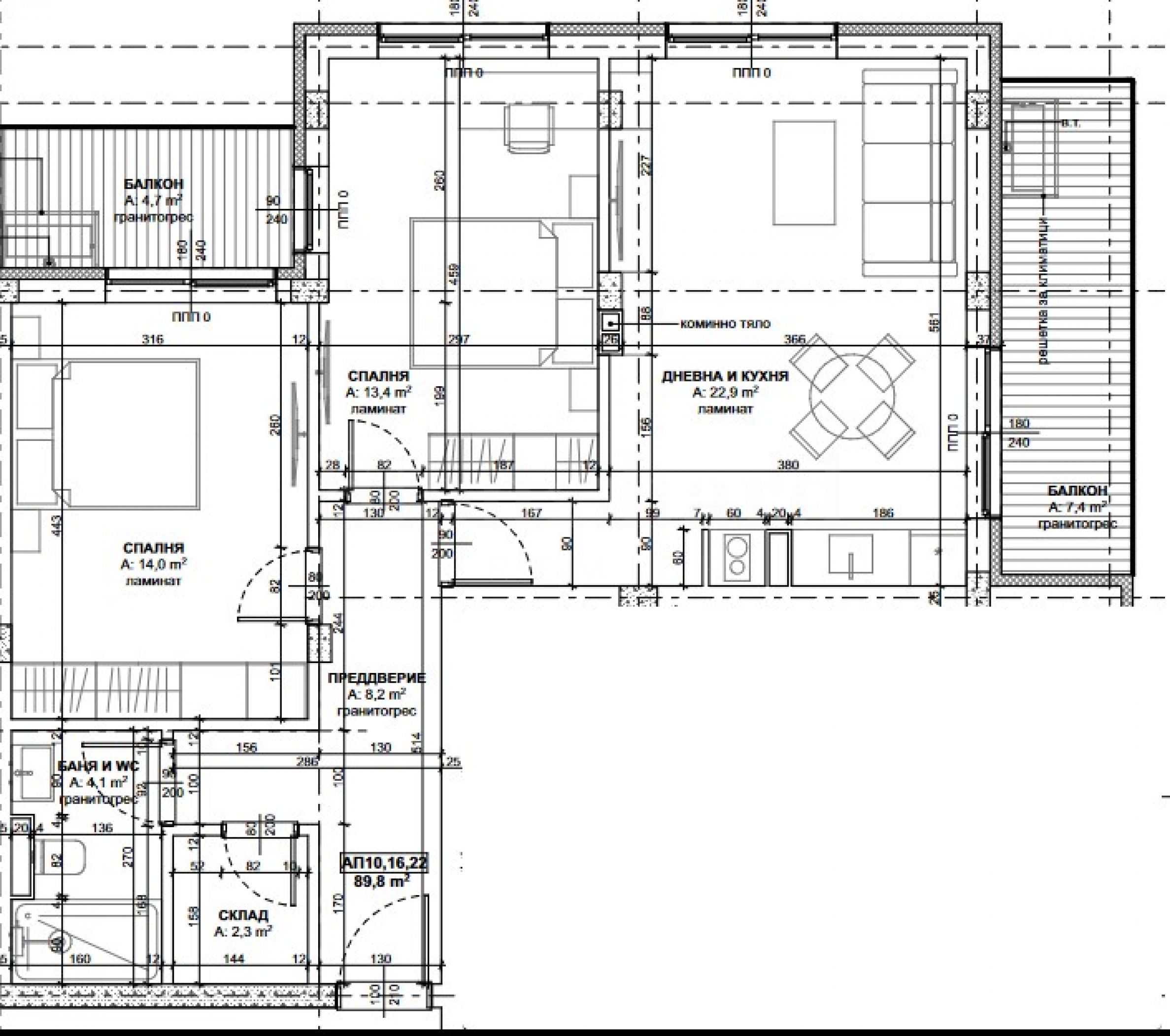
Wir bieten zum Verkauf eine Dreizimmerwohnung in einem neuen Wohngebäude mit schönem Design und ausgezeichneter Lage, nur wenige Meter vom zentralen Strand von Tsarevo entfernt.
Das Anwesen hat eine Fläche von 102,47 m² und liegt im 3. Stock mit Ausrichtung nach Nordosten/Nordwesten.
Verteilung:
Eingangshalle;
Wohnzimmer mit Küche;
zwei Schlafzimmer;
Badezimmer mit Toilette;
Lager;
zwei Terrassen. Es ist im Ausbaugrad nach BDS, Spachtelmasse und Estrich erhältlich.
Es besteht die Möglichkeit, einen zusätzlichen Parkplatz zu erwerben.
Das Gebäude verfügt über 5 Etagen mit elegantem und modernem Aussehen, die mit hochwertigen Materialien gefüllt sind und ein Gefühl von Gemütlichkeit, Raffinesse und Komfort vermitteln. Es bietet verschiedene Wohnungen vom Typ Einzimmer-, Zweizimmer- und Dreizimmerwohnungen mit einer Fläche von 29,78 m² bis 102,47 m² mit Blick auf das Meer und den Park. Das Parken ist durch oberirdische Stellplätze gewährleistet.
Standort:
In unmittelbarer Nähe zum Meer und Strand, Supermarkt, Kindergarten, Bank, Park, Unterhaltungsmöglichkeiten, Verwaltungsgebäuden, Spielplatz, Schule und anderen Einrichtungen.
Wir erwarten Ihre Anfrage
Wenn Sie eine Besichtigung einer Immobilie, an der Sie interessiert sind, vereinbaren oder eines unserer Büros besuchen möchten, kontaktieren Sie uns bitte. Um einen Termin für ein Treffen oder eine Inspektion zu vereinbaren, können Sie die in der Anzeige angegebene Telefonnummer anrufen oder eine Anfrage per E-Mail senden. Unser Berater berät Sie gerne bei allen notwendigen Details und vereinbart einen für Sie passenden Termin.
Sie sind auf der Suche nach der passenden Immobilie für sich?
Zögern Sie nicht, uns zu kontaktieren und uns Ihre Bedürfnisse und Vorlieben mitzuteilen. Unser Team führt eine gründliche Marktrecherche durch, um Ihnen Immobilien anzubieten, die genau Ihren Kriterien entsprechen. Wir verfügen über ein außergewöhnliches Portfolio an hochwertigen und exklusiven Häusern, die nur unseren Kunden zur Verfügung stehen. Um als Erster Informationen darüber zu erhalten, kontaktieren Sie uns.
Zusätzliche Dienstleistungen
Als geschätzter Mandant unseres Unternehmens haben Sie das Privileg, die Dienste unseres erfahrenen Rechtsteams völlig kostenlos in Anspruch zu nehmen. Darüber hinaus bieten wir komplexe Lösungen inklusive Sachversicherung, kostenloser Finanzberatung sowie günstigen Finanzierungskonditionen. Unsere Dienstleistungen erstrecken sich auch auf den Weiterverkauf, die Vermietung und die Immobilienverwaltung. Wir erbringen hochwertige Reparatur- und Einrichtungsarbeiten durch spezialisierte Unternehmen, die Teil unserer Unternehmensgruppe sind und unsere langjährigen professionellen Partner sind.
Besichtigungen
Wir können eine Besichtigung der Immobilie zu einer für Sie passenden Zeit vereinbaren. Bitte kontaktieren Sie den für dieses Angebot zuständigen Makler und teilen Sie ihm die von Ihnen gewünschte Uhrzeit mit.
Reservierung der Immobilie
Gegen eine nicht erstattete Anzahlung in Höhe von 2.000 Euro wird die Immobilie reserviert. Weitere Besichtigungen mit anderen Käufern finden nicht statt und Makler beginnt mit der Vorbereitung der Dokumente für den Abschluss des endgültigen Vertrags für Eigentumsübertragung. Bitte kontaktieren Sie den zuständigen Makler für mehr Information über den Kauf einer Immobilie und Zahlungsarten.
Zusatzleistungen und Kundendienst
Wir sind ein seriöses Unternehmen und werden nicht nur während des Kaufs, sondern auch danach bei Ihnen sein und Ihnen auf Ihren Wunsch zusätzliche Dienstleistungen anbieten, um die neu gekaufte Immobilie vollständig und nahtlos zu nutzen. Die Dienstleistungen, die wir anbieten können, umfassen die Erlangung einer Hypothekengenehmigung, eine Versicherung für bewegliche und unbewegliche Sachen, eine Lebensversicherung, eine Kranken- und Autoversicherung, Bau- und Reparaturaktivitäten, Möbel, Rechts- und Buchhaltungsdienstleistungen usw.
Bei uns können Sie nicht nur eine Immobilie mieten, sondern auch eine Reihe von Zusatzleistungen in Anspruch nehmen. Wir können Versicherungen für bewegliches und unbewegliches Vermögen, Lebensversicherungen, Kranken- und Kfz-Versicherungen, Bau- und Reparaturarbeiten, Möbel, Rechts- und Buchhaltungsdienstleistungen usw. anbieten.
Standort auf der Karte
VERKAUF
PROJEKT
Komfortable 3-Zimmer-Wohnung mit Meerblick in der ersten Reihe in Tsarevo
Tsarevo / Burgas / Bulgarien Karte
Bereich: 130 m 2
Preis: 195 000 € /// 1 500 €/m 2
VERKAUF
PROJEKT
Dreizimmerwohnung mit Meerblick in der ersten Reihe in Tsarevo
Tsarevo / Burgas / Bulgarien Karte
Bereich: 179.87 m 2
Preis: 324 000 € /// 1 801 €/m 2
VERKAUF
PROJEKT
Gemütliche Maisonette-Wohnung mit drei Schlafzimmern und Meerblick in erster Reihe in Tsarevo
Tsarevo / Burgas / Bulgarien Karte
Bereich: 152.63 m 2
Preis: 229 200 € /// 1 502 €/m 2
Wählen Sie diese Option und wir benachrichtigen Sie per E-Mail, wenn sich der Angebotsstatus ändert, zum Beispiel:
• Preisänderung;
• Die Immobilie hat ein Sonderangebot abgegeben;
• Die Immobilie ist reserviert oder verkauft;
• Weitere Neuigkeiten im Zusammenhang mit der Immobilie.
• Die Immobilie wird aus dem Verkauf genommen;
Sie können Benachrichtigungen jederzeit problemlos abbestellen.• Änderungen der Angebotsbedingungen;
• Änderung der Investitionshöhe;
• Der Investitionsgegenstand wurde vollständig realisiert;
• Das Angebot ist abgelaufen.
Sie können sich ganz einfach abmelden, wenn Sie in Zukunft entscheiden, dass Sie dieses Angebot nicht mehr nutzen möchten.
Um absolut korrekte Informationen über die im Projekt verfügbaren, leerstehenden Immobilien und deren aktuelle Preise zu erhalten, kontaktieren Sie bitte unser Büro unter den angegebenen Kontaktdaten.
Wir bemühen uns nach Kräften, unsere Preislisten stets aktuell und korrekt zu halten, doch angesichts der Vielzahl neuer Projekte in unserem Katalog und der stark schwankenden Verkaufszahlen ist dies oft unmöglich.
Vielen Dank für Ihr Verständnis!



...Als ausgewiesener Spezialist arbeitet Stonehard PREMIER an der Marktpositionierung und dem Vertrieb zahlreicher Neubauprojekte, deren Umsetzung uns führende Unternehmergesellschaften in Bulgarien und im Ausland anvertraut haben...