Тристаен апартамент с веранда в нов комплекс с вътрешен двор
REF#SOF 125704
/
Тристайни апартаменти
/
Реализирани проекти
/
София
/
Манастирски ливади - Изток
/
София
/
България
на картата
Цена:
226 200 € (2 250 €/м2)
*Указаните цени и наличности от свободни имоти в проекта са индикативни. За актуална ценова информация, моля свържете се с нас!
Реф. Номер: SOF 125704 / 3693
Местоположение: Манастирски ливади - Изток / София карта
Тип на сграда/комплекс: Жилищен
Клас на сградата/комплекса: Висок стандарт
Площи на жилищата: 100.53 м2
Типове имоти в сградата/комплекса: Тристайни апартаменти
Реф. Номер: SOF 125704 / 3693
Местоположение: Манастирски ливади - Изток / София
Тип на сграда/комплекс: Жилищен
Клас на сградата/комплекса: Висок стандарт
Площи на жилищата: 100.53 м2
Типове имоти в сградата/комплекса: Тристайни апартаменти
Комплексът се намира в предпочитания кв. "Манастирски ливади - Изток", в близост до основните пътни артерии бул. "България" и бул. "Тодор Каблешков", както и с лесен достъп до Южен парк и Bulgaria Mall. Районът се отличава с чист въздух и прекрасни изгледи към Витоша, като разполага с четири детски градини, частна детска кухня, две училища с изучаване на чужди езици, хранителни магазини, офиси на спедиторски дружества. В близост до комплекса е планирано изграждане на 27 декара линеен парк.
В активен процес на строителство. Очаквано завършване - ноември 2026 г.
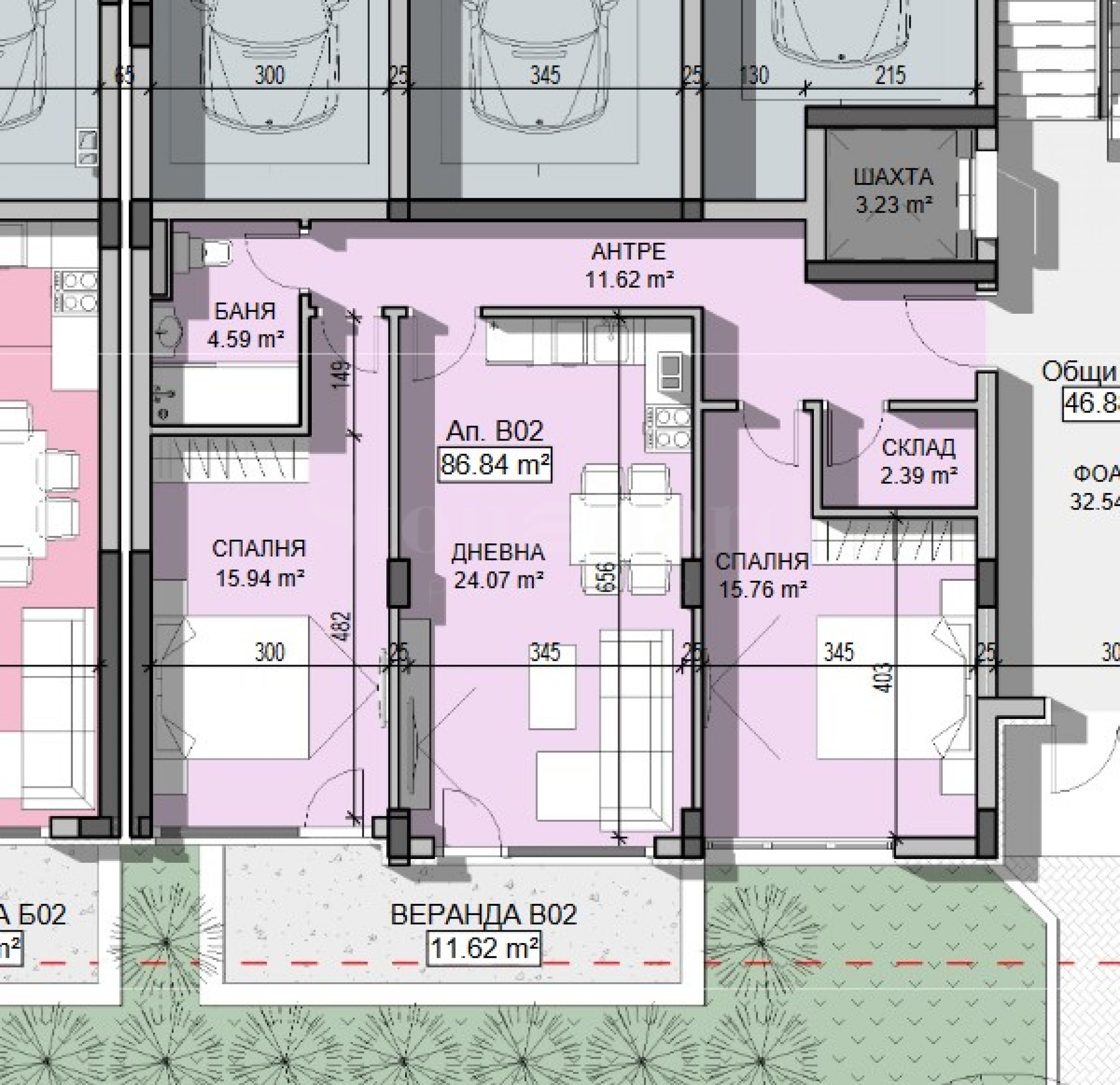
Апартаментът е ситуиран на ниво партер и предлага 100.53 кв.м обща площ. Състои се от антре, всекидневна с кухня и трапезария, две спални, баня, веранда.
Има възможност за закупуване на подземни паркоместа и гаражи.
В строителството е заложено на нисък процент общи части, висок клас материали и модерна архитектурна визия. Фасадата е с изчистени линии, комбинация от травертин и дърво, и френски прозорци, които не само гарантират изобилие от естествена светлина, но и откриват гледки към Витоша и зелените площи около комплекса. На разположение на собствениците ще има богато озеленен двор с алеи за разходки и места за отдих, оформени с висока и ниска растителност и 90 м река, както и ограничен достъп за повече сигурност и спокойствие. Паркирането е решено с подземни паркоместа.
Имотите в комплекса са проектирани с мисъл за удобството и комфорта на своите обитатели. Налични за продажба са двустайни и тристайни апартаменти, всеки с просторни и слънчеви помещения с големи френски прозорци, а в пода има възможност да се изгради система за водно подово отопление и охлаждане. Имотите се предлагат в степен на завършеност по БДС.
Висок клас материали в строителството:
вентилируема фасада - с топлоизолация от вата, алуминий с дървесен ефект и италиански плоскости Laminam;
тухли Wienerberger;
двойна зидария с шумоизолация между отделните апартаменти;
шумоизолация на пода;
алуминиева дограма Reynaers MasterLine 8 с 3 стъкла и топъл дистанционер;
луксозни общи части с камък травертин;
асансьори Schindler със стени, облицовани в осветен камък оникс;
възможност за изграждане на система за водно подово отопление и охлаждане.Схеми на плащане:
Схема на плащане 1: 80%/20%;
Схема на плащане 2: 30%/30%/30%/10%;
Схема на плащане 3: 30%/70%.
Цената в офертата е по Схема на плащане 1.
Очакваме Вашето запитване
Ако желаете да организирате оглед на имот, който Ви интересува, или да посетите някой от нашите офиси, моля свържете се с нас. За да уговорите ден и час за среща или оглед, можете да се обадите на посочения в обявата телефон или да изпратите запитване чрез електронната поща. Нашият консултант ще Ви съдейства с всички необходими подробности и ще уговори удобно за Вас време.
Търсите подходящия за Вас имот?
Не се колебайте да се свържете с нас и да ни разкажете за Вашите нужди и предпочитания. Нашият екип ще проведе задълбочено проучване на пазара, за да Ви предложи имоти, които точно отговарят на Вашите критерии. Разполагаме с изключително портфолио от висококачествени и ексклузивни жилища, които са достъпни само за нашите клиенти. За да сте първите, които ще получите информация за тях – свържете се с нас.
Допълнителни услуги
Като ценен клиент на нашата компания, Вие ще имате привилегията да ползвате напълно безплатно услугите на нашия опитен юридически екип. В допълнение, предлагаме комплексни решения, включващи имуществена застраховка, безплатна финансова консултация, както и изгодни условия за финансиране. Нашите услуги се разпростират и в сферата на препродажбата, отдаването под наем и управлението на имоти. Осигуряваме висококачествени ремонтни дейности и обзавеждане чрез специализирани фирми, които са част от нашата корпоративна група и са наши дългогодишни професионални партньори.
Местоположение на картата
ПРОДАЖБА
ПРОЕКТ
Нов, тристаен апартамент с гледка към Витоша, близо до Южен парк
Гоце Делчев / София / София / България карта
Площ: 143 м2
Цена: 460 000 € /// 3 217 €/м2
Многофамилна жилищна сграда с озеленен двор и различни типове апартаменти в кв. "Малинова долина"
Малинова долина / София / София / България карта
Цени на имотите: Цена при запитване
ПРОДАЖБА
ПРОЕКТ
Тристаен апартамент в модерна нова сграда с Акт 16 в "Малинова долина"
Малинова долина / София / София / България карта
Площ: 104.99 м2
Цена: 273 000 € /// 2 600 €/м2
Изберете тази опция и ще Ви уведомяваме по имейла при настъпили промени по статуса на офертата, например:
• Промяна на цената;
• Имотът влезе в промоционално предложение;
• Имотът бъде резервран или продаден;
• Други новости, свързани с имота.
• Имотът бъде свален от продажба;
Може да се отпишете от нотификациите лесно, когато пожелаете.• Промени по условията на офертата;
• Промяна в сумата на инвестицията;
• Предметът на инвестицията е изцяло реализиран;
• Валидността на офертата е изтекла.
Може лесно да се отпишете, ако в бъдеще решите, че повече не желаете да следите тази оферта.
За да получите абсолютно коректна информация относно свободните имоти, налични за продажба в проекта и техните актуални цени, моля свържете се с нашия офис на посочената информация за контакт.
Ние полагаме усилия, за да поддържаме нашите ценови листи абсолютно актуални и коректни, но често това е невъзможно, предвид големия брой нови проекти в нашия каталог и силно динамичните продажби.
Благодарим Ви за проявеното разбиране!



...В качеството си на доказан спецалист Stonehard PREMIER работи по пазарното позициониране и продажбите на множество проекти ново строителство, чиято реализация ни е поверена от водещи предприемачески компании в България и чужбина...