Самостоятелна къща с двор и гараж в комплекс от къщи в кв. Сеславци, гр. София

на картата

Цена:

384 000 ()

*Указаните цени и наличности от свободни имоти в проекта са индикативни. За актуална ценова информация, моля свържете се с нас!

Реф. Номер: SOF-135272 / 4803

Местоположение: Сеславци / София карта

Тип на сграда/комплекс: Жилищен

Площи на жилищата: 258 м2

Типове имоти в сградата/комплекса: Къщи

Реф. Номер: SOF-135272 / 4803

Местоположение: Сеславци / София

Тип на сграда/комплекс: Жилищен

Клас на сградата/комплекса:  

Площи на жилищата: 258 м2

Типове имоти в сградата/комплекса: Къщи

Описание на проекта
Представяме нова къща с Акт 14 в комплекс от осем самостоятелни къщи в кв. "Сеславци", гр. София.

Проектът включва изграждането на модерни, уютни и енергийно ефективни самостоятелни къщи в кв. "Сеславци", разположен в североизточната част на София. Този район е известен със своята красива природа, чист въздух и спокойна атмосфера, което го прави идеалното място за бягство от градската среда.

Разпределение на къщи №1 (двор 374 кв. м) и №2 (двор 394 кв. м):

Ниво сутерен – 74,30 кв. м:
- Входно антре – 8,45 кв. м;
- Двоен гараж - 34,77 кв. м;
- Складово помещение 1 – 5,38 кв. м;
- Складово помещение 2 – 3,57 кв. м;
- Стълбище – 8,16 кв. м.

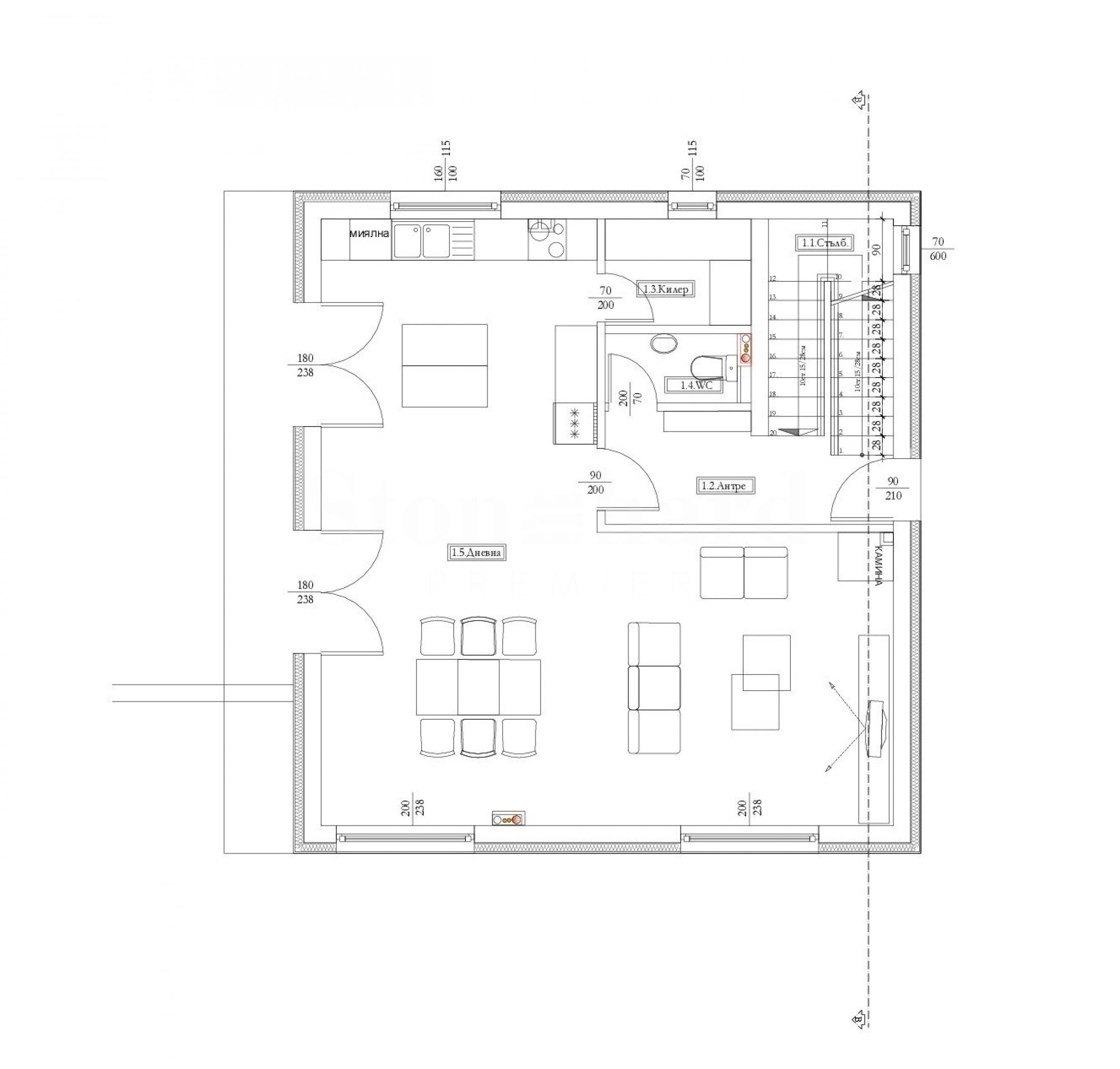
Ниво етаж 1 (кота 0) – 87 кв. м:
- Дневна с кухненски бокс – 52,73 кв. м;
- Килер – 3,25 кв. м;
- Тоалетна – 2,11 кв. м;
- Входно антре – 5,84 кв. м;
- Стълбище – 5,89 кв. м.

Ниво етаж 2 (кота 3,00):
- Спалня 1 – 13,55 кв. м;
- Спалня 2 – 16,32 кв. м;
- Родителска спалня (14,38 кв. м) с дрешник (4,96 кв. м) и баня с тоалетна (4,34 кв. м);
- Баня с тоалетна – 3,57 кв. м;
- Мокро помещение – 3,57 кв. м;
- Коридор – 8,11 кв. м;
- Стълбище – 5,89 кв. м.

Основни характеристики:
• Тип имоти: самостоятелни къщи с три спални;
• Брой къщи: 8;
• Площ на парцелите: oт 340 до 570 кв.м;
• Застроена площ на къщите: oт 180 до 258 кв.м.

Технически характеристики:
• тухли Wiеnerberger Porotherm 25 см;
• тухли вътрешни преградни стени Wiеnerberger Porotherm 12 см;
• изолация по фасада 15 см;
• фасадна мазилка Baumit;
• два броя автоматични гаражни врати Hörmann;
• входна врата от висок клас;
• дограма: 5-камерна PVC, троен стъклопакет, 4К сезона външно – висок клас;
• мълниезащита;
• изградени Електро и ВиК инсталации;
• отопление на ток с подготовка за поставяне на термопомпа;
• индивидуална пречиствателна станция и подготовка за присъединяване към канализация на централната ВиК мрежа;
• керемиди и покривни материали – Брамак;
• озеленяване и затревяване на двора.

Стандартна схема на плащане:
• 20% - предварителен договор;
• 80% - разрешение за ползване.

Етапи на строителство:
Проектът ще бъде изпълнен в три фази, като фаза I, състояща се от къщи № 1 и № 2 е вече с акт 14 и завършване м. септември 2025 г.
Следващите фази ще бъдат стартирани според желанията на бъдещите собственици.

Предимства на проекта:
• Природа и чист въздух: Квартал Сеславци е заобиколен от зеленина и предлага прекрасни гледки към планината. Чистият въздух и спокойствието на района създават идеални условия за здравословен и релаксиращ начин на живот.
• Бягство от градската среда: Къщите предоставят възможност за уединение и спокойствие, далеч от шума и стреса на големия град, като същевременно са на кратко разстояние от центъра на София (19 км).
• Модерни удобства: Всяка къща е проектирана с внимание към детайла и включва модерни удобства като просторни дневни, съвременно разпределение, енергийно ефективни системи и красиви градини.
• Сигурност и комфорт: Проектът включва комплекс с контролиран достъп, което гарантира безопасността и спокойствието на жителите.

За района
Проектът за самостоятелни къщи в квартал Сеславци предлага уникална възможност за комфортен и спокоен живот сред природата, без да се лишавате от удобствата на градската среда. Това е идеалното място за семейства, които търсят баланс между работа и личен живот, както и за всички, които ценят качеството на живот и природната красота.

Квартал Сеславци се намира в североизточната част на София и е част от район “Кремиковци”. До 1978 година Сеславци е било самостоятелно село, но след това е присъединено към столицата. Известен е със своята богата история и културно наследство, включително и няколко манастира. Един от най-значимите е Сеславският манастир "Св. Николай Мирликийски". Други забележителни манастири в района са Кремиковският манастир "Св. Георги Победоносец" и Буховският манастир "Св. Архангел Михаил".

• Инфраструктура
Сеславци разполага с основна инфраструктура, включваща редовна автобусна линия номер 117, която свързва квартала с останалата част на града. В квартала има и новоизградени детски площадки и спортни съоръжения.

• Училище
В Сеславци има основно училище, което обслужва местните деца и предлага качествено образование.

• Детска градина
През 2022 година в Сеславци беше открита нова сграда на детска градина, филиал на ДГ № 146 „Звездица“. Тя разполага с просторни занимални и спални помещения, физкултурен и музикален салон, както и кухненски блок с изцяло ново оборудване. Детската градина има и площадки за игра на открито и футболно игрище.

• Магазини
В квартала има няколко малки магазина за хранителни стоки и други основни нужди, които обслужват местните жители.

Контакти на нашия офис
Контакти на нашия офис

Местоположение на картата

ПРИБЛИЗИТЕЛНО МЕСТОПОЛОЖЕНИЕ
Изпратете запитване за повече информация
Контакти на нашия офис
Вашето име*
Вашият email*
Вашият мобилен номер*

“Стоунхард Маркетинг” ЕООД защитава Вашите лични данни и следва фирмена Политиката на поверителност , съобразно изискванията на Регламент (ЕС) № 2016/679. На следващата стъпка ще можете да ни разрешите или да откажете да съхраняваме и оперираме с Вашите лични данни. Направете Вашия избор от имейла, който ще Ви изпратим след като получим Вашето запитване.

Още имоти с подобни характеристики
ВТОРИЧНА
ПРОДАЖБА
ЗАВЪРШЕН
ПРОЕКТ

Модерна къща с четири спални, двоен гараж и двор в нов комплекс

в.з.Малинова долина / София / София / България карта

Площ: 460.76 м2

Цена: Цена при запитване ///

ВТОРИЧНА
ПРОДАЖБА
ЗАВЪРШЕН
ПРОЕКТ

Еко къща тип Б за продажба в затворен комплекс, в кв. Бояна

Бояна / София / София / България карта

Площ: 451 м2

Цена: 950 000 € ///

ВТОРИЧНА
ПРОДАЖБА
ЗАВЪРШЕН
ПРОЕКТ

Еко къща в затворен комплекс в кв. Бояна

Бояна / София / София / България карта

Площ: 360.55 м2

Цена: 903 000 € ///

...В качеството си на доказан спецалист Stonehard PREMIER работи по пазарното позициониране и продажбите на множество проекти ново строителство, чиято реализация ни е поверена от водещи предприемачески компании в България и чужбина...

Изберете тази опция и ще Ви уведомяваме по имейла при настъпили промени по статуса на офертата, например:

• Промяна на цената;

• Имотът влезе в промоционално предложение;

• Имотът бъде резервран или продаден;

• Други новости, свързани с имота.

• Имотът бъде свален от продажба;

Може да се отпишете от нотификациите лесно, когато пожелаете.
Площта на имотите в Дубай / ОАЕ се изчислява в квадратни футове. Всички площи в тази оферта са преизчиселни автоматично в квадратни метри по формулата 1 кв.м = 10.7639 кв.фута.
Наемодателят заплаща ток, вода, отопление/охлаждане, интернет, кабелна ТВ и ТБО
Оригиналната цена на имота е обявена в местната валута дирхам (AED). Цената, указана във валута, различна от дирхам е индикативна и се изчислява автоматично по кръстосан курс, който обновяваме 4 пъти на ден. Ето защо цената, указана във валута, различна от дирхам (AED) варира постоянно, макар и в неголеми граници.
Цените са ориентировъчни. За абсолютно точна ценова калкулация и оферта, моля свържете се отговорния консултант!
Изберете тази опция и ще започнете да получавате нови оферти с подобен предмет на инвестицията и с разположение в същия район.
Ще получавате по имейла всички нови оферти и актуална информация за нашата дейност
Предвид текущата силна динамика на продажбите и пазара, указаните в нашия сайт цени и наличности от свободни имоти в този проект може леко да се различават от актуалните.
За да получите абсолютно коректна информация относно свободните имоти, налични за продажба в проекта и техните актуални цени, моля свържете се с нашия офис на посочената информация за контакт.
Ние полагаме усилия, за да поддържаме нашите ценови листи абсолютно актуални и коректни, но често това е невъзможно, предвид големия брой нови проекти в нашия каталог и силно динамичните продажби.
Благодарим Ви за проявеното разбиране!