Отдельно стоящий дом с двором и гаражом в комплексе домов в квартале Сеславци, София
Цена:
384 000 €
*Цены и наличие свободных площадей в проекте указаны ориентировочно. Для получения актуальной информации о ценах, пожалуйста, свяжитесь с нами!
Ссылка. Число: SOF-135272 / 4803
Расположение: Сеславци / София карта
Тип здания/комплекса: Жилой
Жилые районы: 258 м 2
Типы объектов недвижимости в здании/комплексе: Дома
Ссылка. Число: SOF-135272 / 4803
Расположение: Сеславци / София
Тип здания/комплекса: Жилой
Класс здания/комплекса:
Жилые районы: 258 м 2
Типы объектов недвижимости в здании/комплексе: Дома
Проект предусматривает строительство современных, уютных и энергоэффективных отдельно стоящих домов в районе Сеславци, расположенном в северо-восточной части Софии. Этот район известен своей прекрасной природой, чистым воздухом и спокойной атмосферой, что делает его идеальным местом для отдыха от городской суеты.
Распределение домов № 1 (двор 374 кв. м) и № 2 (двор 394 кв. м):
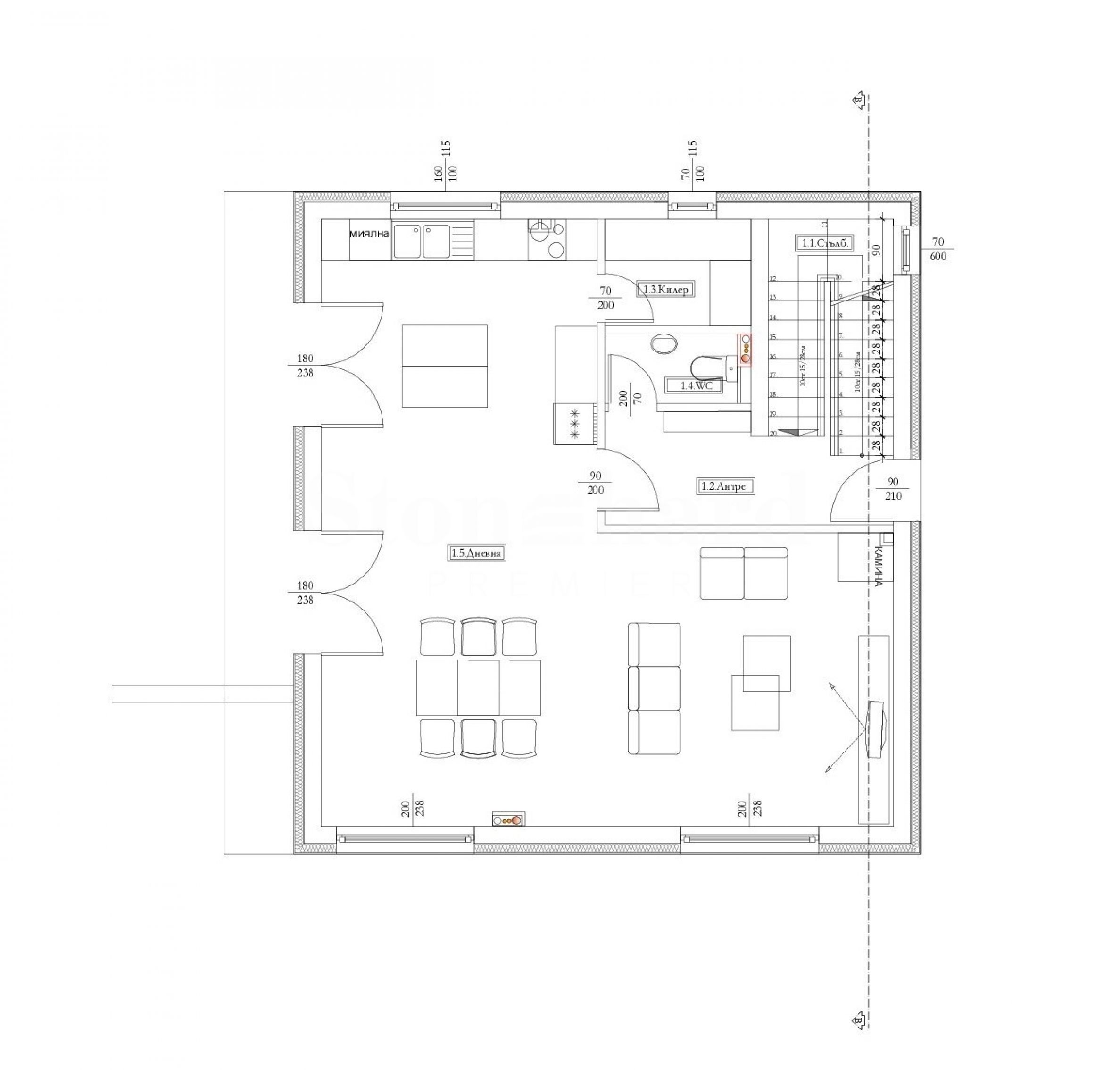
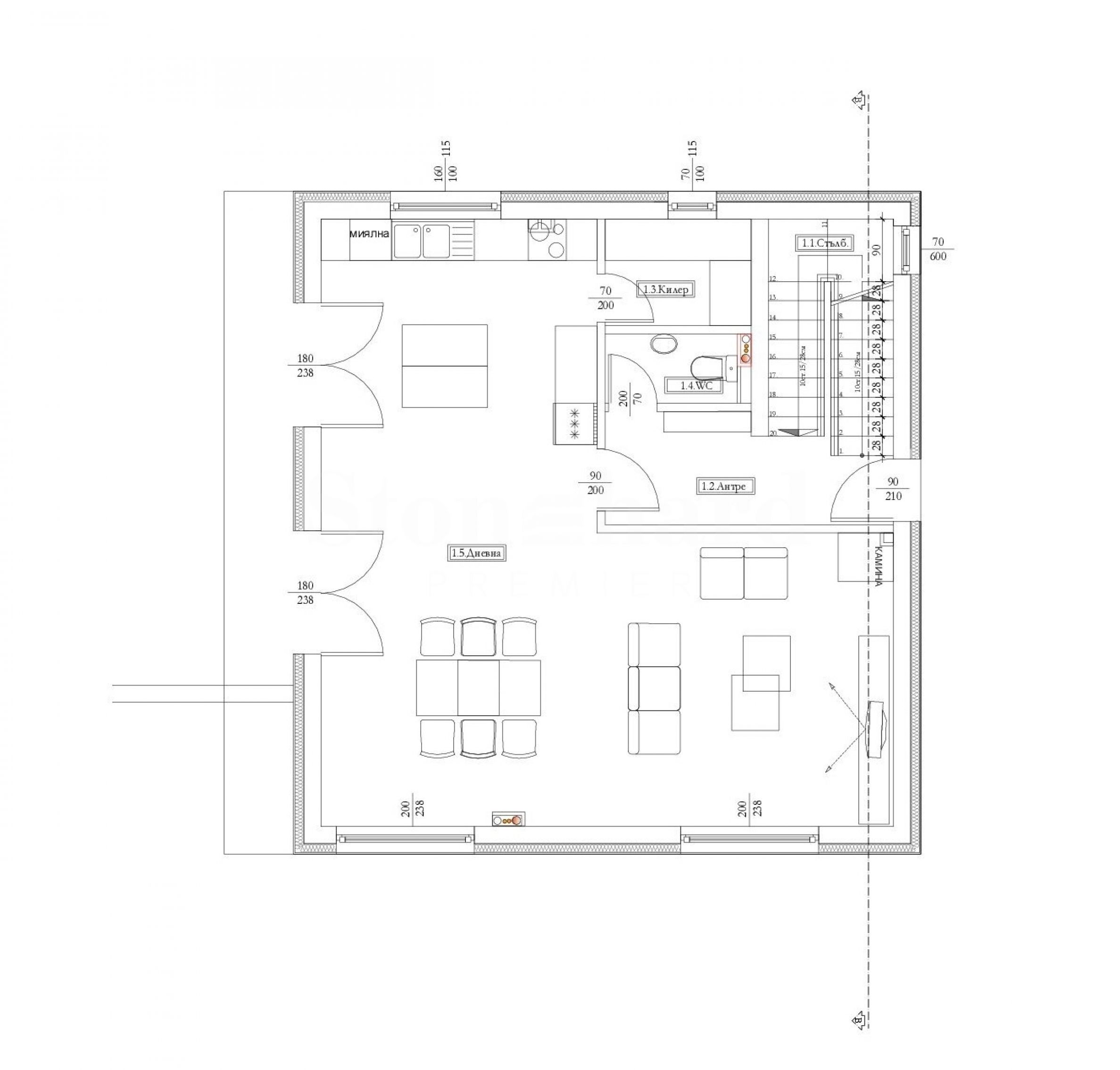
• Цокольный этаж – 74,30 кв. м:
- Прихожая – 8,45 кв. м;
- Двойной гараж - 34,77 кв. м;
- Кладовая 1 – 5,38 кв. м;
- Кладовая 2 – 3,57 кв. м;
- Лестница – 8,16 кв. м.
• Уровень 1 (отметка 0) – 87 кв. м:
- Гостиная с мини-кухней – 52,73 кв. м;
- Кладовая – 3,25 кв. м;
Туалет – 2,11 кв. м;
- Прихожая – 5,84 кв. м;
- Лестница – 5,89 кв. м.
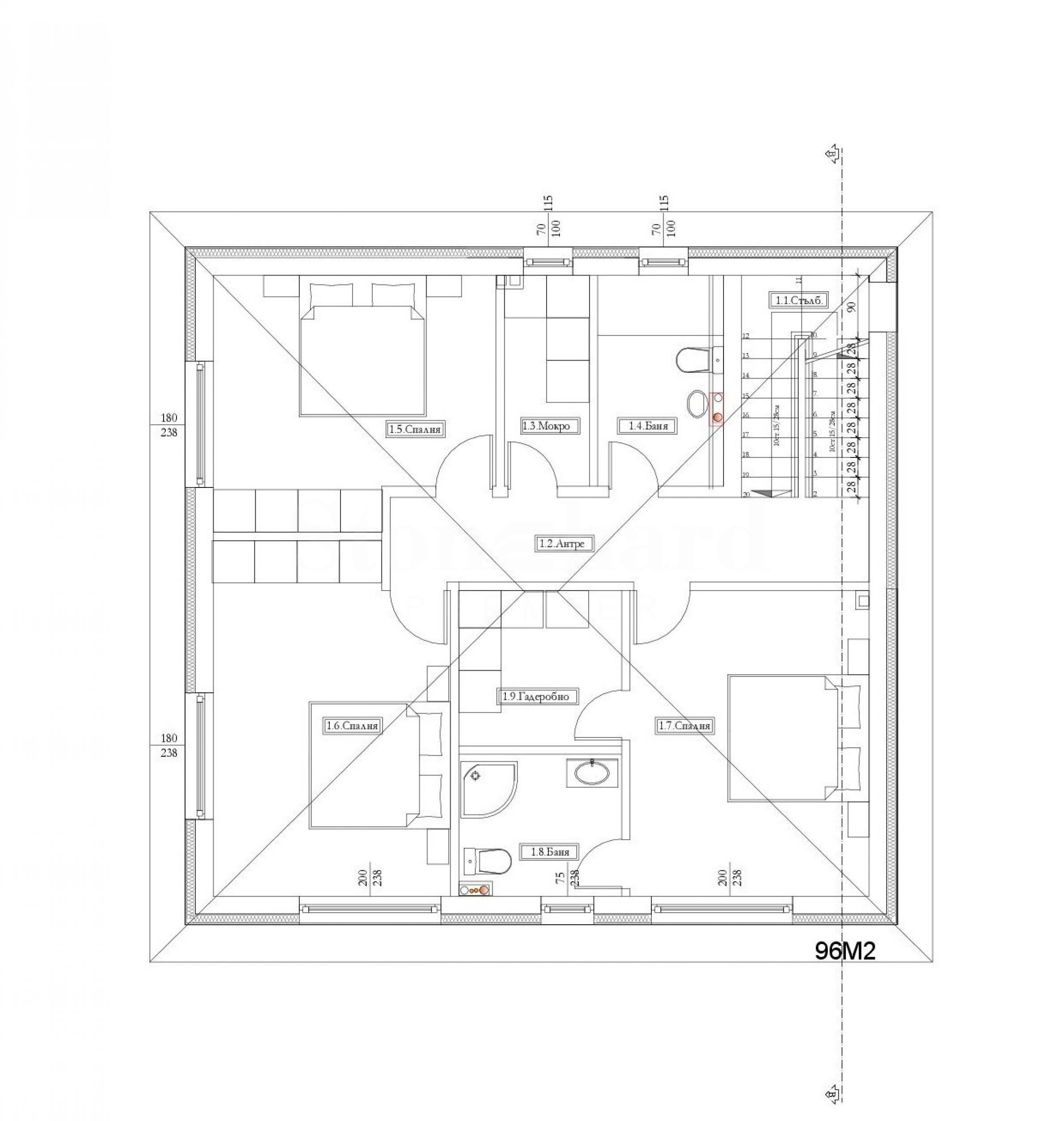
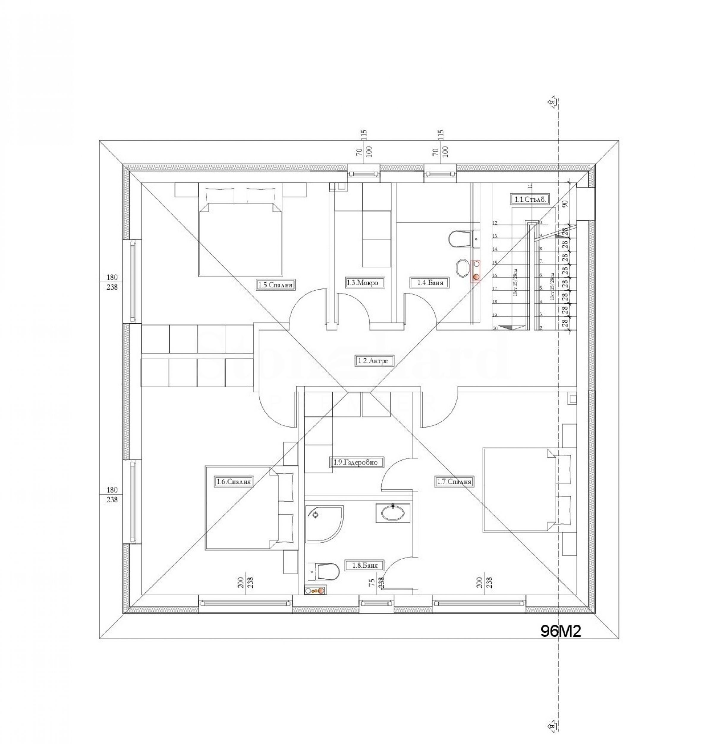
• Второй этаж (высота 3,00):
- Спальня 1 – 13,55 кв. м;
Спальня 2 – 16,32 кв. м;
- Главная спальня (14,38 кв. м) со шкафом (4,96 кв. м) и ванной комнатой с туалетом (4,34 кв. м);
- Ванная комната с туалетом – 3,57 кв. м;
- Влажная комната - 3,57 кв. м;
- Коридор – 8,11 квадратных метров;
- Лестница – 5,89 кв. м.
Основные отличительных перечисленных характеристики:
• Тип недвижимости: отдельно стоящие дома с тремя спальнями;
• Количество домов: 8;
• Площадь участка: от 340 до 570 кв. метров.;
• Площадь застройки домов: от 180 до 258 кв. метров.
Технические отличительных перечисленных характеристики:
• Кирпичи Wienerberger Porotherm 25 см;
• Внутренние перегородки из кирпича Wienerberger Porotherm 12 см;
• 15 см теплоизоляции фасада;
• Фасадная штукатурка Баумит;
• Две автоматические гаражные ворота H?rmann;
• Высококачественная входная дверь;
• Окна: 5-камерные ПВХ, тройное остекление, наружное покрытие 4K – высокого класса;
• защита от молнии;
• Выполнены электромонтажные и сантехнические работы;
• электрическое отопление с подготовкой к установке теплового насоса;
• Индивидуальная очистная установка и подготовка к подключению к центральной канализационной системе;
• Черепица и кровельные материалы – Bramak;
• Озеленение и посадка газона на участке.
Стандартная схема оплаты:
• 20% - предварительный контракт;
• 80% - разрешение на использование.
Этапы строительства:
Проект будет реализован в два этапа, при этом первый этап, включающий дома № 1 и № 2, уже имеет акт 14 и будет завершен в августе 2026 года.
Следующий этап, включающий строительство оставшихся 6 домов, начнется в начале апреля 2026 года.
Преимущества проекта:
• Природа и свежий воздух: район Сеславци окружен зеленью и предлагает прекрасные виды на горы. Чистый воздух и спокойствие этого места создают идеальные условия для здорового и расслабляющего образа жизни.
• Возможность уединиться и отдохнуть от городской суеты: дома предоставляют возможность насладиться приватностью и спокойствием, вдали от шума и стресса большого города, и в то же время находятся недалеко от центра Софии (19 км).
• Современные удобства: Каждый дом спроектирован с вниманием к деталям и включает в себя современные удобства, такие как просторные гостиные, современная планировка, энергоэффективные системы и прекрасные сады.
• Безопасность и комфорт: Проект включает в себя комплекс с контролируемым доступом, что гарантирует безопасность и спокойствие жителей.
Об этом районе
Проект отдельно стоящих домов в районе Сеславцы предлагает уникальную возможность для комфортной и спокойной жизни на лоне природы, не лишая себя при этом удобств городской среды. Это идеальное место для семей, стремящихся к балансу между работой и личной жизнью, а также для всех, кто ценит качество жизни и красоту природы.
Район Сеславцы расположен в северо-восточной части Софии и входит в состав Кремиковского района. До 1978 года Сеславцы были самостоятельным селем, но затем были присоединены к столице. Он известен своей богатой историей и культурным наследием, включая несколько монастырей. Одним из наиболее значимых является Сеславский монастырь «Святого Николая Мирликийского». Другие известные монастыри в этом районе — Кремиковский монастырь «Святого Георгия Победоносного» и Буховский монастырь «Святого Архангела Михаила».
• Инфраструктура
В районе Сеславци имеется базовая инфраструктура, включая регулярный автобусный маршрут № 117, соединяющий район с остальной частью города. В районе также недавно были построены детские площадки и спортивные сооружения.
• Школа
В Сеславцах есть начальная школа, которая принимает местных детей и предлагает качественное образование.
• Детский сад
В 2022 году в Сеславцах открылось новое здание детского сада, филиала ДГ № 146 «Звездица». В нем расположены просторные классы и комнаты, спортивный зал и музыкальный класс, а также кухонный блок с совершенно новым оснащением. Детский сад также располагает открытыми игровыми площадками и футбольным полем.
• Магазины
В этом районе есть несколько небольших магазинов, где можно купить продукты и другие товары первой необходимости, которые обслуживают местных жителей.
Смотр недвижимости
Мы готовы организовать смотр недвижимости в удобное для вас время. Обратитесь к ответственному менеджеру по продажам и проинформируйте его, когда бы Вы хотели приехать на смотровой тур. Мы можем помочь Вам забронировать авиабилет и отель, а также помочь Вам оформить визу и необходимую страховку.
Бронирование недвижимости
Вы можете забронировать недвижимость, заплатив невозмещаемый задаток в размере 2 000 евро наличным платежом, кредитной картой или банковским переводом на фирменный счет компании. После получения задатка недвижимость бронируется, осмотры с другими потенциальными покупателями производиться не будут, и начнется изготовление необходимых документов по оформлению сделки. Пожалуйста, обратитесь к ответственному за данный объект менеджеру по продажам для получения подробной информации относительно процедуры покупки и способов оплаты.
Послепродажное обслуживание
Мы уважаемая компания, за плечами которой многолетний опыт работы в сфере недвижимости. Мы будем сопровождать Вас не только во время покупки, но и после приобретения недвижимости, обеспечивая Вам дополнительный набор услуг с учетом Ваших требовании, для того, чтобы Вы могли насладиться полноценным и спокойным времяпровождением в Болгарии. Услуги, которые мы можем предложить, включают страхование, строительство и ремонт, услуги по меблировке, бухгалтерские и юридическиe услуги, переоформление договоров на электричество, воду, телефон и многое другое.
Расположение на карте
ПРОДАЖА
ПРОЕКТ
Эксклюзивный двухквартирный дом с разрешением на строительство (Ac 16) в роскошном закрытом комплексе в районе Бояна.
Бояна / София / София / Болгария карта
Область: 200.87 м 2
Цена: 425 000 € ///
ПРОДАЖА
ПРОЕКТ
Эксклюзивный дом в элитном закрытом комплексе в районе Бояна.
Бояна / София / София / Болгария карта
Область: 160.59 м 2
Цена: 405 000 € ///
ПРОЕКТ
Новые бутиковые дома у подножия Витоши.
Драгалевци / София / София / Болгария карта
Сдача планируется: Ноябрь, 2025
Цены на недвижимость: 670 000 - 820 000 € (без НДС)
Цены за м²: 2 078 - 2 204 €/м 2 (без НДС)
Выберите эту опцию, и мы уведомим вас по электронной почте в случае каких-либо изменений в статусе предложения, например:
• Изменение цены;
• Объект недвижимости попал в рекламное предложение;
• Имущество зарезервировано или продано;
• Другие новости, связанные с недвижимостью.
• Имущество снимается с продажи;
Вы можете легко отписаться от уведомлений в любое время.• Изменения условий предложения;
• Изменение размера инвестиций;
• Объект инвестиции полностью реализован;
• Срок действия предложения истек.
Вы сможете легко отказаться от подписки, если в будущем решите, что больше не хотите следовать этому предложению.
Для получения абсолютно корректной информации о свободных объектах недвижимости, выставленных на продажу в проекте, и их актуальных ценах, пожалуйста, свяжитесь с нашим офисом по указанным контактам.
Мы прилагаем все усилия, чтобы наши прайс-листы были абсолютно актуальными и правильными, но зачастую это невозможно, учитывая большое количество новых проектов в нашем каталоге и высокую динамику продаж.
Благодарим за понимание!



...Как проверенный специалист, Stonehard PREMIER работает над позиционированием на рынке и продажами многочисленных новых строительных проектов, реализацию которых нам доверили ведущие предпринимательские компании в Болгарии и за рубежом...