Тристаен апартамент в нова модерна сграда до метростанция "Хаджи Димитър"
REF#Sve-110288
/
Тристайни апартаменти
/
Реализирани проекти
/
София
/
Сухата река
/
София
/
България
на картата
Цена:
277 000 € (2 553 €/м2)
*Указаните цени и наличности от свободни имоти в проекта са индикативни. За актуална ценова информация, моля свържете се с нас!
Реф. Номер: Sve-110288 / 3250
Местоположение: Сухата река / София карта
Тип на сграда/комплекс: Жилищен
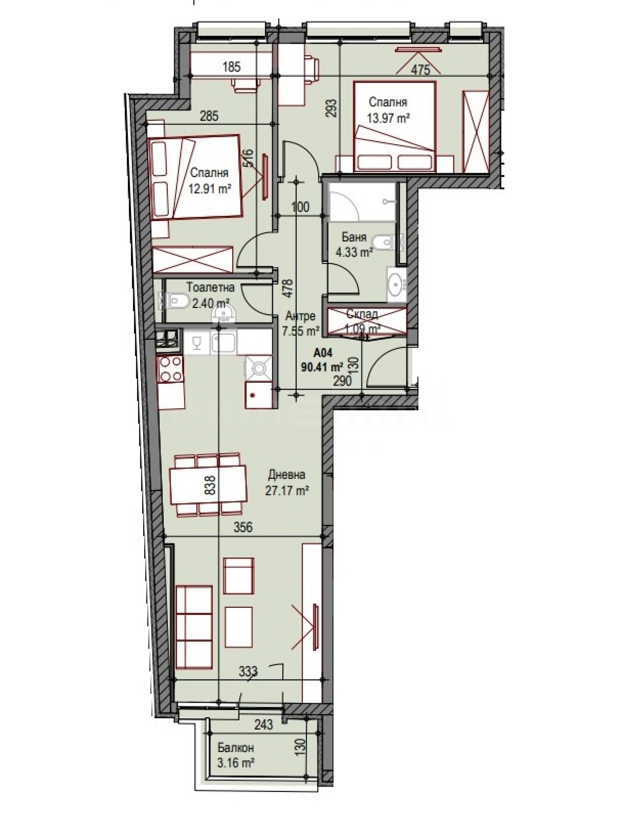
Площи на жилищата: 108.49 м2
Типове имоти в сградата/комплекса: Тристайни апартаменти
Реф. Номер: Sve-110288 / 3250
Местоположение: Сухата река / София
Тип на сграда/комплекс: Жилищен
Клас на сградата/комплекса:
Площи на жилищата: 108.49 м2
Типове имоти в сградата/комплекса: Тристайни апартаменти
Имотът е разположен на 8-ми етаж и предлага 108.49 кв.м, разпределена в антре, всекидневна, две спални, баня с тоалетна, тоалетна и балкон.
Местоположението е в близост до до спирки на градски транспорт и метростанция "Хаджи Димитър", супермаркети, училища и детски градина. Районът се обслужва от ул. "Черковна", ул. "Александър Екзарх" и булевардите "Владимир Вазов" и "Ген. Данаил Николаев", чрез които се осъществява връзката с всички части на града. Мол "Сердика" е на отстояние 5 минути с автомобил или 10 минути пешеходно разстояние, а парк "Заимов", разположен в престижния квартал "Оборище", е на 18 минути пешеходно разстояние.
Покупка без комисиона.
Сградата е на 9 етажа, разпределена в два входа и предлага избор от двустайни, тристайни и четиристайни апартаменти, проектирани по европейски стандарти с усещането за много простор и слънчева светлина.
Паркирането е решено с паркоместа и гаражи, разпределени на ниво партер и сутерен:
паркоместа на цени от EUR 20 000;
гаражи на цени EUR 30 000 - EUR 40 000.
В строителството са заложени модерни технологии и съвременни материали за постигане на ниски енергийни разходи и създаване на висок стандарт, уют и спокойствие на живущите в комплекса. Архитектурният дизайн е модерен, с фасада от полимерна мазилка и естествен камък, а общите части ще бъдат луксозно изпълнени с гранит, ламперия и хидравличен асансьор. Предвидено е фасадно LED осветление и декоративно градинско осветление, което да очертае парцела и зелените площи.
Характеристики:
ограждащи и преградни тухлени стени с висококачествените тухли Wienerberger;
сградите са топлоизолирани с 10 см EPS изолация, а покривите са топлоизолирани с XPS изолация 10 см и двойна хидроизолация;
всички тераси са хидроизолирани;
6-камерна дограма с трислоен стъклопакет и К стъкло;
блиндирани врати;
система за контрол на достъпа към сградата и подземния гараж, видеодомофонна система с контрол на достъпа с чипове или карти;
система за видеонаблюдение, което обхваща периметъра около сградата;
СОТ система за всеки апартамент;
електронни водомери, при които цялата информация ще се сканира от входа на сградата;
към всяко жилище са осигурени звънчева, телефонна и видеодомофонна инсталации, мрежа за включване на кабелна телевизия и интернет;
изводи за електрически щори за всеки прозорец в жилищната част;
изводи за климатици във всяка стая.
Схемата на плащане:
30% - Предварителен договор;
30% - Акт 14;
20% - ВиК;
10% - Акт 15;
10% - Акт 16.
Етапи на строителство:
начало - декември 2023 г.;
Акт 14 - април 2025 г.;
Акт 16 - октотомври 2026 г.
За допълнителна информация и организиране на оглед, моля свържете се с отговорния брокер по офертата.
Местоположение на картата
Многофамилна жилищна сграда с озеленен двор и различни типове апартаменти в кв. "Малинова долина"
Малинова долина / София / София / България карта
Цени на имотите: Цена при запитване
ПРОДАЖБА
ПРОЕКТ
Тристаен апартамент в модерна нова сграда с Акт 16 в "Малинова долина"
Малинова долина / София / София / България карта
Площ: 104.99 м2
Цена: 273 000 € /// 2 600 €/м2
ПРОДАЖБА
ПРОЕКТ
Тристаен апартамент в нов комплекс, близо до метростанция и Paradise Mall
Кръстова вада / София / София / България карта
Площ: 147.05 м2
Цена: 399 000 € /// 2 713 €/м2
Изберете тази опция и ще Ви уведомяваме по имейла при настъпили промени по статуса на офертата, например:
• Промяна на цената;
• Имотът влезе в промоционално предложение;
• Имотът бъде резервран или продаден;
• Други новости, свързани с имота.
• Имотът бъде свален от продажба;
Може да се отпишете от нотификациите лесно, когато пожелаете.• Промени по условията на офертата;
• Промяна в сумата на инвестицията;
• Предметът на инвестицията е изцяло реализиран;
• Валидността на офертата е изтекла.
Може лесно да се отпишете, ако в бъдеще решите, че повече не желаете да следите тази оферта.
За да получите абсолютно коректна информация относно свободните имоти, налични за продажба в проекта и техните актуални цени, моля свържете се с нашия офис на посочената информация за контакт.
Ние полагаме усилия, за да поддържаме нашите ценови листи абсолютно актуални и коректни, но често това е невъзможно, предвид големия брой нови проекти в нашия каталог и силно динамичните продажби.
Благодарим Ви за проявеното разбиране!



...В качеството си на доказан спецалист Stonehard PREMIER работи по пазарното позициониране и продажбите на множество проекти ново строителство, чиято реализация ни е поверена от водещи предприемачески компании в България и чужбина...