Ref. Number: SOF-122064 / 3592
Location: Manastirski Livadi - East / Sofia map
Building/complex type: Residential
Housing areas: 141.02 m 2
Types of properties in the building/complex: 2-bedroom apartments
Ref. Number: SOF-122064
Location: Manastirski Livadi - East / Sofia
Building/complex type: Жилищен
Building/complex class:
Housing areas: 141.02 m 2
Types of properties in the building/complex: 2-bedroom apartments
It is located on the 11th floor of eleven floors in the completed first phase of the project, which consists of five buildings that have been commissioned.
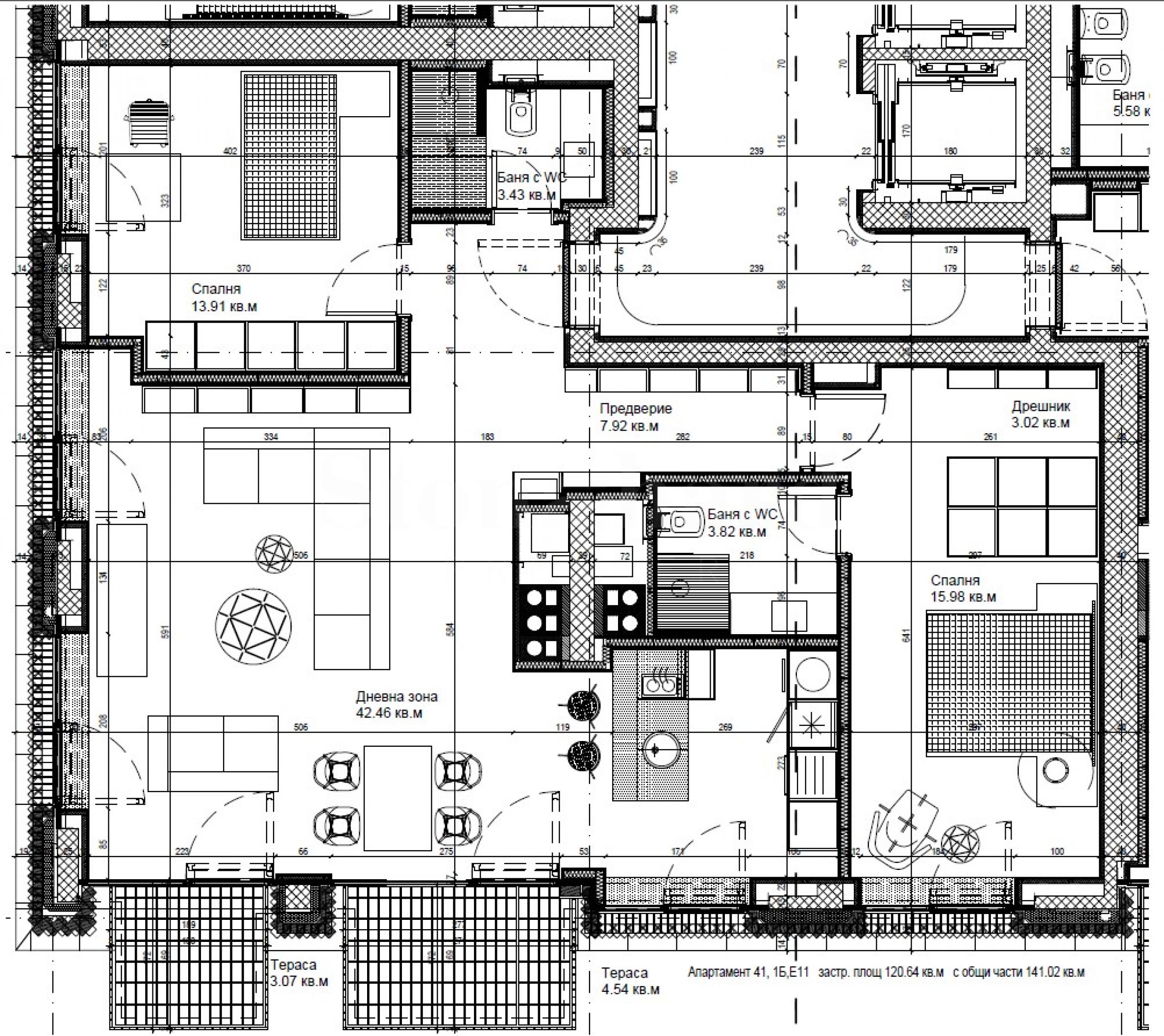
The three-room apartment has a total area of 141.02 m2 and a net area of 120.64 m2 and has the following layout:
• entrance;
• living room with dining room and kitchenette;
• two bedrooms, one of which has a closet;
• two bathrooms with toilet;
• two terraces.
The location of the property makes it unique with views that extend to the mountains and the city.
The apartment is delivered qualitatively finished according to BDS. A floor heating installation connected to an individual gas boiler is installed. There is an option for placing air conditioners in designated places in the building.
About the complex
The materials used in the construction of the buildings are:
• brick - a combination of beige to black and gray to copper;
• stone - travertine, which brings resistance and a feeling of connection with nature;
• metal - iridescent from gold to copper and from red to gray;
• glass - three-layer glass units with a UV filter for maximum sound insulation and energy efficiency.
The proximity to the mountain and the green spaces in the area create a connection with nature, which gives new opportunities for leisure, sports and entertainment.
Alleys will cross the green park spaces, providing unimpeded access to individual areas in the residential complex. A jogging track with a length of 500 m will be built. For children, separate areas for games are planned, as well as the construction of a kindergarten.
Advantages:
• a residential complex with a cleaner and safer environment, with a variety of opportunities for an active and social life;
• modern and functional architecture, innovative materials and technologies;
• excellent location close to the mountain and to major road connections, such as the Ring Road and Bulgaria Blvd.;
• richly landscaped park space with avenues for sports and recreation;
• provided security and a high level of maintenance of the complex.
Other properties available in the building
On the entire 11th /last/ floor in building 1, we can offer:
• three two-room apartments;
• one three-room apartment.
For more details, please contact the responsible broker for the property.
Viewings
We are ready to organize a viewing of this property at a time convenient for you. Please contact the responsible estate agent and inform them when you would like to have viewings arranged. We can also help you with flight tickets and hotel booking, as well as with travel insurance.
Property reservation
You can reserve this property with a non-refundable deposit of 2,000 Euro, payable by credit card or by bank transfer to our company bank account. After receiving the deposit the property will be marked as reserved, no further viewings will be carried out with other potential buyers, and we will start the preparation of the necessary documents for completion of the deal. Please contact the responsible estate agent for more information about the purchase procedure and the payment methods.
After sale services
We are a reputable company with many years of experience in the real estate business. Thus, we will be with you not only during the purchase process, but also after the deal is completed, providing you with a wide range of additional services tailored to your requirements and needs, so that you can fully enjoy your property in Bulgaria. The after sale services we offer include property insurance, construction and repair works, furniture, accounting and legal assistance, renewal of contracts for electricity, water, telephone and many more.
Location on the map
It is located on the 11th floor of eleven floors in the completed first phase of the project, which consists of five buildings that have been commissioned.
The three-room apartment has a total area of 141.02 m2 and a net area of 120.64 m2 and has the following layout:
• entrance;
• living room with dining room and kitchenette;
• two bedrooms, one of which has a closet;
• two bathrooms with toilet;
• two terraces.
The location of the property makes it unique with views that extend to the mountains and the city.
The apartment is delivered qualitatively finished according to BDS. A floor heating installation connected to an individual gas boiler is installed. There is an option for placing air conditioners in designated places in the building.
About the complex
The materials used in the construction of the buildings are:
• brick - a combination of beige to black and gray to copper;
• stone - travertine, which brings resistance and a feeling of connection with nature;
• metal - iridescent from gold to copper and from red to gray;
• glass - three-layer glass units with a UV filter for maximum sound insulation and energy efficiency.
The proximity to the mountain and the green spaces in the area create a connection with nature, which gives new opportunities for leisure, sports and entertainment.
Alleys will cross the green park spaces, providing unimpeded access to individual areas in the residential complex. A jogging track with a length of 500 m will be built. For children, separate areas for games are planned, as well as the construction of a kindergarten.
Advantages:
• a residential complex with a cleaner and safer environment, with a variety of opportunities for an active and social life;
• modern and functional architecture, innovative materials and technologies;
• excellent location close to the mountain and to major road connections, such as the Ring Road and Bulgaria Blvd.;
• richly landscaped park space with avenues for sports and recreation;
• provided security and a high level of maintenance of the complex.
Other properties available in the building
On the entire 11th /last/ floor in building 1, we can offer:
• three two-room apartments;
• one three-room apartment.
For more details, please contact the responsible broker for the property.
Viewings
We are ready to organize a viewing of this property at a time convenient for you. Please contact the responsible estate agent and inform them when you would like to have viewings arranged. We can also help you with flight tickets and hotel booking, as well as with travel insurance.
Property reservation
You can reserve this property with a non-refundable deposit of 2,000 Euro, payable by credit card or by bank transfer to our company bank account. After receiving the deposit the property will be marked as reserved, no further viewings will be carried out with other potential buyers, and we will start the preparation of the necessary documents for completion of the deal. Please contact the responsible estate agent for more information about the purchase procedure and the payment methods.
After sale services
We are a reputable company with many years of experience in the real estate business. Thus, we will be with you not only during the purchase process, but also after the deal is completed, providing you with a wide range of additional services tailored to your requirements and needs, so that you can fully enjoy your property in Bulgaria. The after sale services we offer include property insurance, construction and repair works, furniture, accounting and legal assistance, renewal of contracts for electricity, water, telephone and many more.
It is located on the 11th floor of eleven floors in the completed first phase of the project, which consists of five buildings that have been commissioned.
The three-room apartment has a total area of 141.02 m2 and a net area of 120.64 m2 and has the following layout:
• entrance;
• living room with dining room and kitchenette;
• two bedrooms, one of which has a closet;
• two bathrooms with toilet;
• two terraces.
The location of the property makes it unique with views that extend to the mountains and the city.
The apartment is delivered qualitatively finished according to BDS. A floor heating installation connected to an individual gas boiler is installed. There is an option for placing air conditioners in designated places in the building.
About the complex
The materials used in the construction of the buildings are:
• brick - a combination of beige to black and gray to copper;
• stone - travertine, which brings resistance and a feeling of connection with nature;
• metal - iridescent from gold to copper and from red to gray;
• glass - three-layer glass units with a UV filter for maximum sound insulation and energy efficiency.
The proximity to the mountain and the green spaces in the area create a connection with nature, which gives new opportunities for leisure, sports and entertainment.
Alleys will cross the green park spaces, providing unimpeded access to individual areas in the residential complex. A jogging track with a length of 500 m will be built. For children, separate areas for games are planned, as well as the construction of a kindergarten.
Advantages:
• a residential complex with a cleaner and safer environment, with a variety of opportunities for an active and social life;
• modern and functional architecture, innovative materials and technologies;
• excellent location close to the mountain and to major road connections, such as the Ring Road and Bulgaria Blvd.;
• richly landscaped park space with avenues for sports and recreation;
• provided security and a high level of maintenance of the complex.
Other properties available in the building
On the entire 11th /last/ floor in building 1, we can offer:
• three two-room apartments;
• one three-room apartment.
For more details, please contact the responsible broker for the property.
Viewings
We are ready to organize a viewing of this property at a time convenient for you. Please contact the responsible estate agent and inform them when you would like to have viewings arranged. We can also help you with flight tickets and hotel booking, as well as with travel insurance.
Property reservation
You can reserve this property with a non-refundable deposit of 2,000 Euro, payable by credit card or by bank transfer to our company bank account. After receiving the deposit the property will be marked as reserved, no further viewings will be carried out with other potential buyers, and we will start the preparation of the necessary documents for completion of the deal. Please contact the responsible estate agent for more information about the purchase procedure and the payment methods.
After sale services
We are a reputable company with many years of experience in the real estate business. Thus, we will be with you not only during the purchase process, but also after the deal is completed, providing you with a wide range of additional services tailored to your requirements and needs, so that you can fully enjoy your property in Bulgaria. The after sale services we offer include property insurance, construction and repair works, furniture, accounting and legal assistance, renewal of contracts for electricity, water, telephone and many more.
MANDATE
SALE
PROJECT
Spacious, designer apartment with parking space in a luxury building with Act 16
Malinova Dolina / Sofia / Sofia / Bulgaria map
Building/complex class: High standard
Area: 136 m 2
Price: 434 900 € /// 3 198 €/m 2
Apartments in Stage 2 of a modern complex near "Simeonovsko Shose"
Malinova Dolina / Sofia / Sofia / Bulgaria map
Property prices: 69 346 - 192 316 €
Prices per m²: 1 575 - 1 995 €/m 2
Apartments in Stage 1 of a modern complex near "Simeonovsko Shose"
Malinova Dolina / Sofia / Sofia / Bulgaria map
Property prices: 114 096 - 247 180 €
Prices per m²: 1 828 - 2 296 €/m 2
Select this option and we will notify you by email if there are any changes to the offer status, for example:
• Price change;
• The property entered into a promotional offer;
• The property is reserved or sold;
• Other news related to the property.
• The property is removed from sale;
You can easily unsubscribe from notifications whenever you want.• Changes to the terms of the offer;
• Change in the amount of the investment;
• The subject of the investment has been fully realized;
• The offer has expired.
You can easily unsubscribe if you decide in the future that you no longer want to follow this offer.



...As a proven specialist, Stonehard PREMIER works on the market positioning and sales of numerous new construction projects, the implementation of which has been entrusted to us by leading entrepreneurial companies in Bulgaria and abroad...