Ein-Zimmer-Wohnung in einem Gebäude ohne Instandhaltungskosten im Stadtteil "Sarafovo", Burgas
Preis:
110 000 € (1 239 €/m 2)
*Die angegebenen Preise und die Verfügbarkeit freier Immobilien im Projekt sind Richtwerte. Für aktuelle Preisinformationen kontaktieren Sie uns bitte!
Art.-Nr. Nummer: LXH-138512 / 5089
Standort: Sarafovo / Burgas Karte
Gebäude-/Komplextyp: Wohnen
Wohngebiete: 88.77 m 2
Arten von Immobilien im Gebäude/Komplex: 2-Raum-Apartments
Art.-Nr. Nummer: LXH-138512 / 5089
Standort: Sarafovo / Burgas
Gebäude-/Komplextyp: Wohnen
Gebäude-/Komplexklasse:
Wohngebiete: 88.77 m 2
Arten von Immobilien im Gebäude/Komplex: 2-Raum-Apartments
Wir bieten zum Verkauf eine Einzimmerwohnung in einem Neubau mit modernem Erscheinungsbild im Stadtteil "Sarafovo" in Burgas an.
Standort
Ausgezeichnete Lage, nur 300 Meter vom Strand entfernt, in einer Gegend mit brandneuer Infrastruktur, neuen Straßen, Straßenbeleuchtung und einem Park mit Kinderspielplatz in 150 Metern Entfernung. Zentrum, Bushaltestelle, Supermarkt und weitere Annehmlichkeiten sind fußläufig erreichbar.
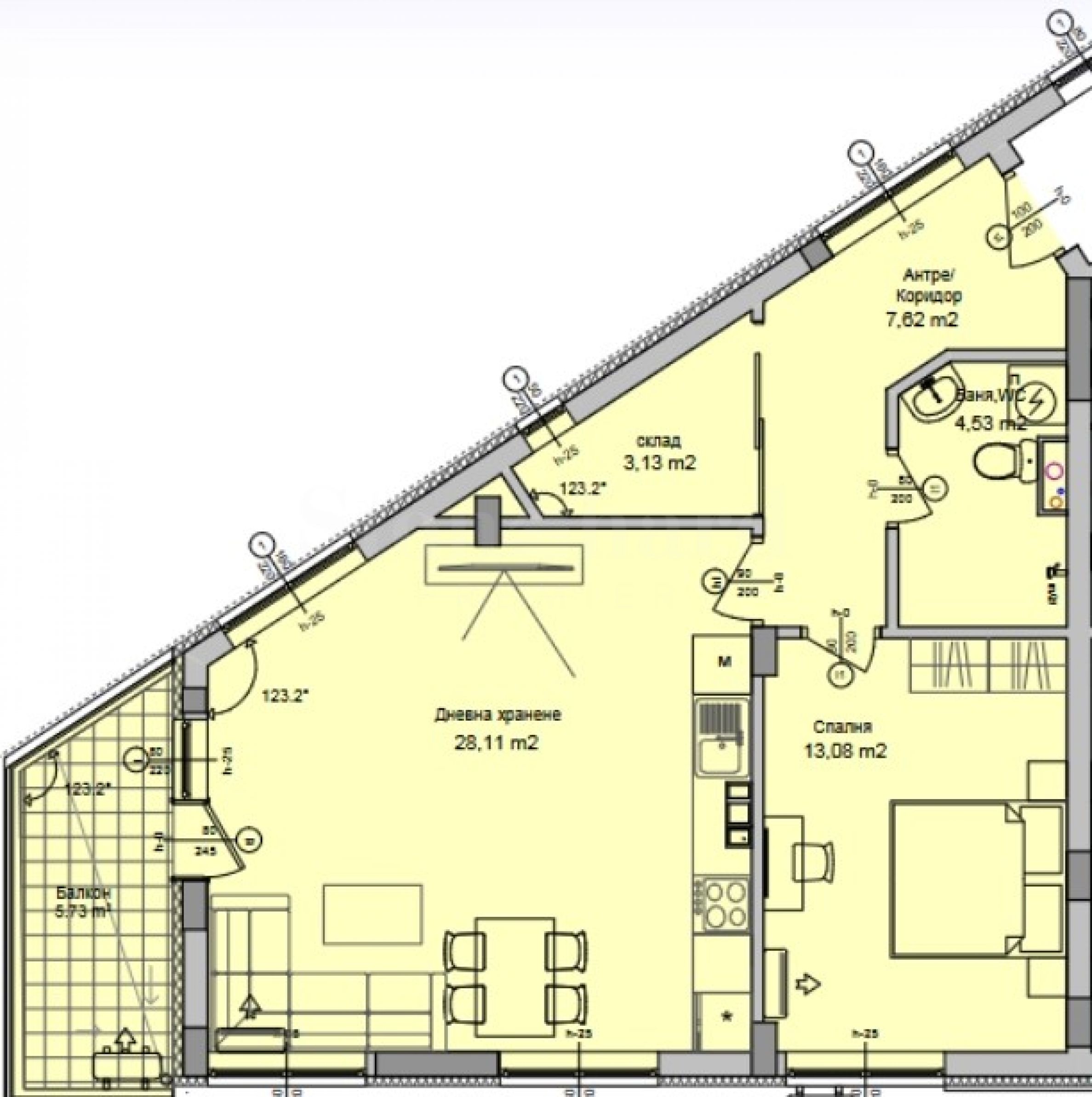
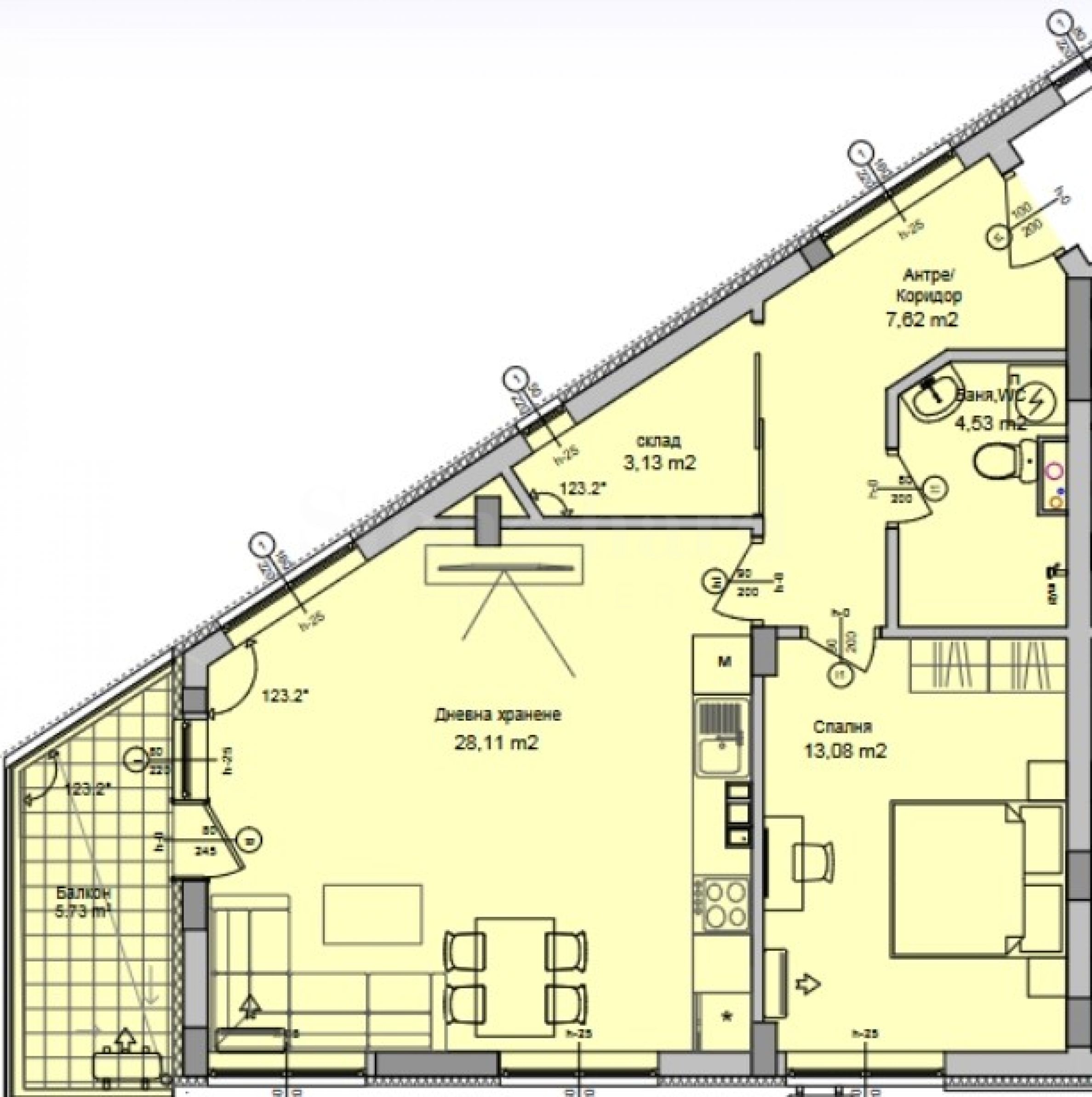
Das Objekt hat eine Gesamtfläche von 88,77 m² und befindet sich im 2. Obergeschoss mit folgender Aufteilung:
• Eingangshalle;
• Wohnzimmer mit Küche;
• Schlafzimmer;
• Badezimmer mit Toilette;
• Lager;
• Terrasse.
Die Wohnung wird im fertiggestellten Zustand gemäß den bulgarischen Baustandards, mit Putz und Estrich, vermietet.
Das Gebäude erstreckt sich über fünf Etagen und umfasst 20 Zwei- und Dreizimmerwohnungen mit Blick auf den Park und das Meer. Im Hof befindet sich ein großer Parkplatz für 20 Autos sowie ein Fahrradständer.
Keine Wartungsgebühr.
Wir freuen uns auf Ihre Anfrage.
Wenn Sie eine Immobilie besichtigen möchten, die Sie interessiert, oder eines unserer Büros besuchen möchten, kontaktieren Sie uns bitte. Um einen Termin für eine Besichtigung oder ein Treffen zu vereinbaren, rufen Sie uns bitte unter der in der Anzeige angegebenen Telefonnummer an oder senden Sie uns eine Anfrage per E-Mail. Unser Berater unterstützt Sie gerne mit allen notwendigen Informationen und findet einen passenden Termin für Sie.
Sind Sie auf der Suche nach der passenden Immobilie für sich?
Zögern Sie nicht, uns zu kontaktieren und uns Ihre Wünsche und Vorlieben mitzuteilen. Unser Team führt eine gründliche Marktanalyse durch, um Ihnen Immobilien anzubieten, die genau Ihren Kriterien entsprechen. Wir verfügen über ein außergewöhnliches Portfolio an hochwertigen und exklusiven Häusern, die nur unseren Kunden zur Verfügung stehen. Um als Erster Informationen darüber zu erhalten, kontaktieren Sie uns.
Zusätzliche Dienstleistungen
Als geschätzter Kunde unseres Unternehmens genießen Sie den Vorteil, die Dienste unseres erfahrenen Rechtsteams kostenfrei in Anspruch zu nehmen. Darüber hinaus bieten wir Ihnen umfassende Lösungen, darunter Gebäudeversicherungen, kostenlose Finanzberatung sowie attraktive Finanzierungskonditionen. Unser Leistungsspektrum umfasst auch die Bereiche Wiederverkauf, Vermietung und Immobilienverwaltung. Hochwertige Renovierungen und Einrichtungsarbeiten vermitteln wir Ihnen über spezialisierte Unternehmen unserer Unternehmensgruppe, mit denen wir seit Langem zusammenarbeiten.
Besichtigungen
Wir können eine Besichtigung der Immobilie zu einer für Sie passenden Zeit vereinbaren. Bitte kontaktieren Sie den für dieses Angebot zuständigen Makler und teilen Sie ihm die von Ihnen gewünschte Uhrzeit mit.
Reservierung der Immobilie
Gegen eine nicht erstattete Anzahlung in Höhe von 2.000 Euro wird die Immobilie reserviert. Weitere Besichtigungen mit anderen Käufern finden nicht statt und Makler beginnt mit der Vorbereitung der Dokumente für den Abschluss des endgültigen Vertrags für Eigentumsübertragung. Bitte kontaktieren Sie den zuständigen Makler für mehr Information über den Kauf einer Immobilie und Zahlungsarten.
Zusatzleistungen und Kundendienst
Wir sind ein seriöses Unternehmen und werden nicht nur während des Kaufs, sondern auch danach bei Ihnen sein und Ihnen auf Ihren Wunsch zusätzliche Dienstleistungen anbieten, um die neu gekaufte Immobilie vollständig und nahtlos zu nutzen. Die Dienstleistungen, die wir anbieten können, umfassen die Erlangung einer Hypothekengenehmigung, eine Versicherung für bewegliche und unbewegliche Sachen, eine Lebensversicherung, eine Kranken- und Autoversicherung, Bau- und Reparaturaktivitäten, Möbel, Rechts- und Buchhaltungsdienstleistungen usw.
Bei uns können Sie nicht nur eine Immobilie mieten, sondern auch eine Reihe von Zusatzleistungen in Anspruch nehmen. Wir können Versicherungen für bewegliches und unbewegliches Vermögen, Lebensversicherungen, Kranken- und Kfz-Versicherungen, Bau- und Reparaturarbeiten, Möbel, Rechts- und Buchhaltungsdienstleistungen usw. anbieten.
Standort auf der Karte
Apartments in einem modernen neuen Mischnutzungskomplex in Burgas
Slaveykov / Burgas / Burgas / Bulgarien Karte
Gebäudeklasse: Hoher Standard
Immobilienpreise: 97 969 - 293 161 €
Preise pro m²: 1 390 - 1 690 €/m 2
VERKAUF
PROJEKT
2-Zimmer-Wohnung in einem modernen Gebäude im Stadtteil Sarafovo, Burgas
Sarafovo / Burgas / Burgas / Bulgarien Karte
Bereich: 70 m 2
Preis: 88 000 € /// 1 257 €/m 2
Wohnungen im neuen, fünften Gebäude des modernen Komplexes neben dem Einkaufszentrum Burgas Plaza
Horizont / Burgas / Burgas / Bulgarien Karte
Immobilienpreise: 90 000 - 207 000 €
Preise pro m²: 1 390 - 1 580 €/m 2
Wählen Sie diese Option und wir benachrichtigen Sie per E-Mail, wenn sich der Angebotsstatus ändert, zum Beispiel:
• Preisänderung;
• Die Immobilie hat ein Sonderangebot abgegeben;
• Die Immobilie ist reserviert oder verkauft;
• Weitere Neuigkeiten im Zusammenhang mit der Immobilie.
• Die Immobilie wird aus dem Verkauf genommen;
Sie können Benachrichtigungen jederzeit problemlos abbestellen.• Änderungen der Angebotsbedingungen;
• Änderung der Investitionshöhe;
• Der Investitionsgegenstand wurde vollständig realisiert;
• Das Angebot ist abgelaufen.
Sie können sich ganz einfach abmelden, wenn Sie in Zukunft entscheiden, dass Sie dieses Angebot nicht mehr nutzen möchten.
Um absolut korrekte Informationen über die im Projekt verfügbaren, leerstehenden Immobilien und deren aktuelle Preise zu erhalten, kontaktieren Sie bitte unser Büro unter den angegebenen Kontaktdaten.
Wir bemühen uns nach Kräften, unsere Preislisten stets aktuell und korrekt zu halten, doch angesichts der Vielzahl neuer Projekte in unserem Katalog und der stark schwankenden Verkaufszahlen ist dies oft unmöglich.
Vielen Dank für Ihr Verständnis!



...Als ausgewiesener Spezialist arbeitet Stonehard PREMIER an der Marktpositionierung und dem Vertrieb zahlreicher Neubauprojekte, deren Umsetzung uns führende Unternehmergesellschaften in Bulgarien und im Ausland anvertraut haben...