Art.-Nr. Nummer: LXH-131004 / 4398
Standort: Nessebar Karte
Gebäude-/Komplextyp: Wohnen
Wohngebiete: 171.67 m 2
Arten von Immobilien im Gebäude/Komplex: Doppelhaus
Art.-Nr. Nummer: LXH-131004
Standort: Nessebar
Gebäude-/Komplextyp: Жилищен
Gebäude-/Komplexklasse:
Wohngebiete: 171.67 m 2
Arten von Immobilien im Gebäude/Komplex: Doppelhaus
Der Komplex liegt am Kap Akrotiri in der Stadt Nessebar an der Schwarzmeerküste mit 100 % atemberaubendem Meerblick, 30 m vom NSA-Strand und 200 m vom Strand Süd-Nessebar entfernt.
Im Bau. Voraussichtliches Gesetz 16 – Juni 2027
Das Grundstück verfügt über eine Gesamtfläche von 171,67 m², einen privaten Hof mit einer Fläche von 184,26 m² und zwei Parkplätze.
Verteilung:
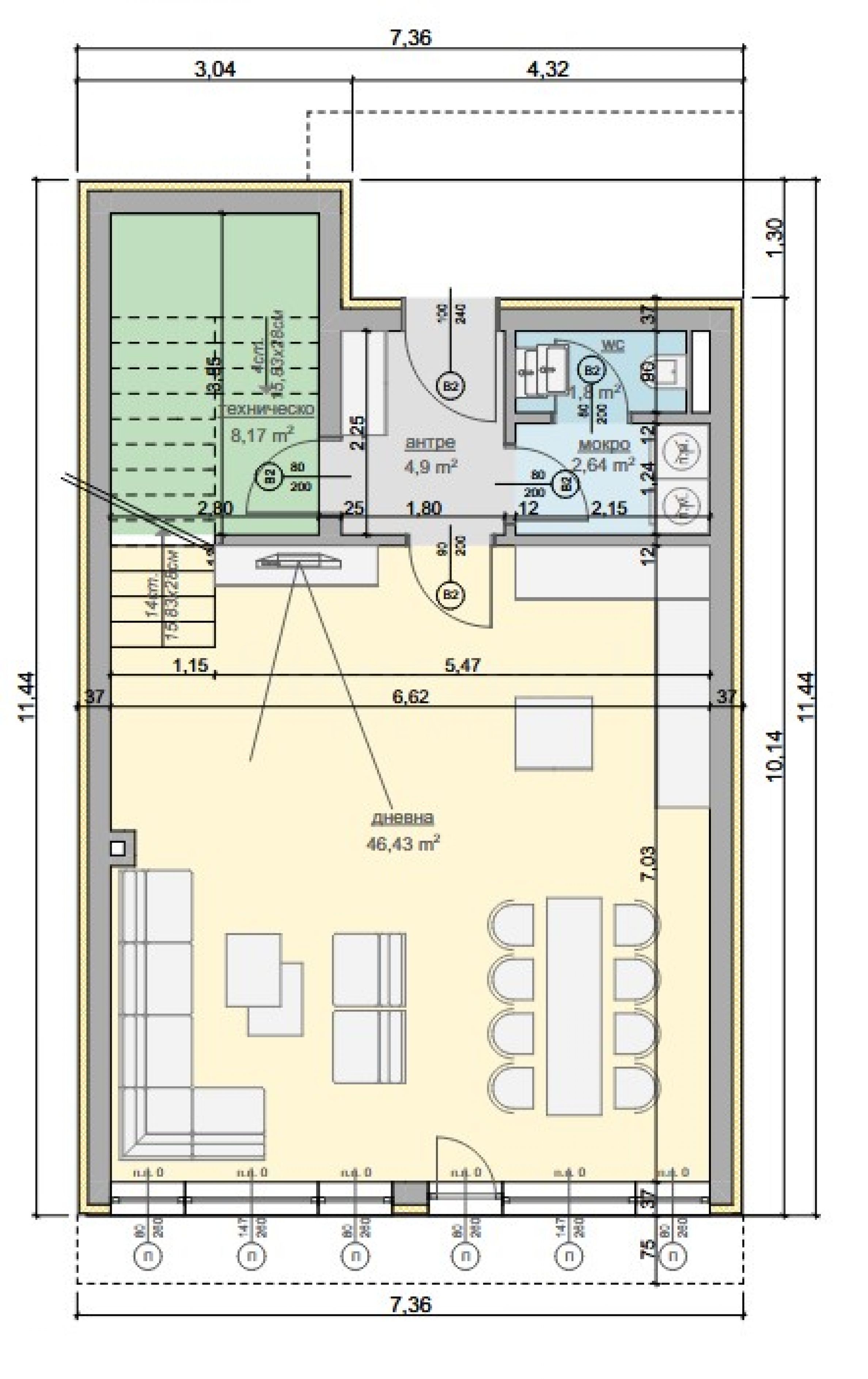
Erdgeschoss: Eingangshalle, Abstellraum, Badezimmer, Wohnzimmer mit Küche und Esszimmer, Veranda;
Zweiter Stock: drei Schlafzimmer mit eigenem Bad und WC. Die Immobilie wird im Fertigstellungsgrad gemäß bulgarischem Zivilgesetzbuch vermietet:
Wände - Spritzputz;
Boden - Estrich mit Schallschutzunterlage;
Sanitärsysteme - an einem Stecker;
Stromsysteme – Schalttafeln, Schalter, Steckdosen, Lampenfassungen;
Schwachstrominstallation - Kästen;
Wi-Fi-Ausgänge. Hoffläche:
getrennt durch einen Zaun aus Stahlbetonplatten und einen Metallzaun;
Parkplatz - für zwei Autos;
Landschaftsgärtnerei;
Landschaftsparkbeleuchtung;
Bewässerungssystem. Technische Eigenschaften:
Stahlbetonkonstruktion – 3 mH (Höhe) pro Etage;
Wände – Keramikziegel Wienerberger Porotherm 25 cm /Mehrkammer/ für bessere Wärme- und Schalldämmung;
Fassade – hinterlüftetes HPL-Fassadensystem, Natursteinverkleidung, Wärmedämmung doppelt eingespritzte Steinwolle 10 cm;
Tischlerei – Aluminiumtischlerei, Thermoprofil mit Dreifachverglasung, Hebe-Schiebe-System mit 50 % Öffnungskapazität;
gepanzerte einbruchhemmende Eingangstür;
Dach – 10 cm expandierter Polystyrolschaum, verstärkter Estrich, doppelt verklebte wasserdichte Beschichtung mit UV-Faktor. Wir freuen uns auf Ihre Anfrage.
Wenn Sie einen Besichtigungstermin für eine Immobilie vereinbaren möchten, an der Sie interessiert sind, oder eines unserer Büros besuchen möchten, kontaktieren Sie uns bitte. Um einen Termin für ein Treffen oder eine Besichtigung zu vereinbaren, können Sie die in der Anzeige angegebene Telefonnummer anrufen oder eine Anfrage per E-Mail senden. Unser Berater unterstützt Sie bei allen notwendigen Details und vereinbart einen für Sie passenden Termin.
Sie suchen die passende Immobilie für sich?
Zögern Sie nicht, uns zu kontaktieren und uns Ihre Bedürfnisse und Wünsche mitzuteilen. Unser Team führt eine gründliche Marktforschung durch, um Ihnen Immobilien anzubieten, die genau Ihren Kriterien entsprechen. Wir verfügen über ein außergewöhnliches Portfolio hochwertiger und exklusiver Häuser, die nur unseren Kunden zur Verfügung stehen. Um als Erster Informationen darüber zu erhalten, kontaktieren Sie uns.
Zusätzliche Dienstleistungen
Als geschätzter Kunde unseres Unternehmens haben Sie das Privileg, die Dienste unseres erfahrenen Rechtsteams völlig kostenlos in Anspruch zu nehmen. Darüber hinaus bieten wir umfassende Lösungen inklusive Sachversicherung, kostenloser Finanzberatung sowie günstigen Finanzierungskonditionen. Unsere Leistungen erstrecken sich auch auf die Bereiche Weiterverkauf, Vermietung und Hausverwaltung. Hochwertige Renovierungen und Einrichtungsarbeiten führen wir durch spezialisierte Unternehmen unserer Unternehmensgruppe durch, die uns als langjährige, professionelle Partner zur Seite stehen.
Besichtigungen
Wir können eine Besichtigung der Immobilie zu einer für Sie passenden Zeit vereinbaren. Bitte kontaktieren Sie den für dieses Angebot zuständigen Makler und teilen Sie ihm die von Ihnen gewünschte Uhrzeit mit.
Reservierung der Immobilie
Gegen eine nicht erstattete Anzahlung in Höhe von 2.000 Euro wird die Immobilie reserviert. Weitere Besichtigungen mit anderen Käufern finden nicht statt und Makler beginnt mit der Vorbereitung der Dokumente für den Abschluss des endgültigen Vertrags für Eigentumsübertragung. Bitte kontaktieren Sie den zuständigen Makler für mehr Information über den Kauf einer Immobilie und Zahlungsarten.
Zusatzleistungen und Kundendienst
Wir sind ein seriöses Unternehmen und werden nicht nur während des Kaufs, sondern auch danach bei Ihnen sein und Ihnen auf Ihren Wunsch zusätzliche Dienstleistungen anbieten, um die neu gekaufte Immobilie vollständig und nahtlos zu nutzen. Die Dienstleistungen, die wir anbieten können, umfassen die Erlangung einer Hypothekengenehmigung, eine Versicherung für bewegliche und unbewegliche Sachen, eine Lebensversicherung, eine Kranken- und Autoversicherung, Bau- und Reparaturaktivitäten, Möbel, Rechts- und Buchhaltungsdienstleistungen usw.
Bei uns können Sie nicht nur eine Immobilie mieten, sondern auch eine Reihe von Zusatzleistungen in Anspruch nehmen. Wir können Versicherungen für bewegliches und unbewegliches Vermögen, Lebensversicherungen, Kranken- und Kfz-Versicherungen, Bau- und Reparaturarbeiten, Möbel, Rechts- und Buchhaltungsdienstleistungen usw. anbieten.
Standort auf der Karte
Der Komplex liegt am Kap Akrotiri in der Stadt Nessebar an der Schwarzmeerküste mit 100 % atemberaubendem Meerblick, 30 m vom NSA-Strand und 200 m vom Strand Süd-Nessebar entfernt.
Im Bau. Voraussichtliches Gesetz 16 – Juni 2027
Das Grundstück verfügt über eine Gesamtfläche von 171,67 m², einen privaten Hof mit einer Fläche von 184,26 m² und zwei Parkplätze.
Verteilung:
Erdgeschoss: Eingangshalle, Abstellraum, Badezimmer, Wohnzimmer mit Küche und Esszimmer, Veranda;
Zweiter Stock: drei Schlafzimmer mit eigenem Bad und WC. Die Immobilie wird im Fertigstellungsgrad gemäß bulgarischem Zivilgesetzbuch vermietet:
Wände - Spritzputz;
Boden - Estrich mit Schallschutzunterlage;
Sanitärsysteme - an einem Stecker;
Stromsysteme – Schalttafeln, Schalter, Steckdosen, Lampenfassungen;
Schwachstrominstallation - Kästen;
Wi-Fi-Ausgänge. Hoffläche:
getrennt durch einen Zaun aus Stahlbetonplatten und einen Metallzaun;
Parkplatz - für zwei Autos;
Landschaftsgärtnerei;
Landschaftsparkbeleuchtung;
Bewässerungssystem. Technische Eigenschaften:
Stahlbetonkonstruktion – 3 mH (Höhe) pro Etage;
Wände – Keramikziegel Wienerberger Porotherm 25 cm /Mehrkammer/ für bessere Wärme- und Schalldämmung;
Fassade – hinterlüftetes HPL-Fassadensystem, Natursteinverkleidung, Wärmedämmung doppelt eingespritzte Steinwolle 10 cm;
Tischlerei – Aluminiumtischlerei, Thermoprofil mit Dreifachverglasung, Hebe-Schiebe-System mit 50 % Öffnungskapazität;
gepanzerte einbruchhemmende Eingangstür;
Dach – 10 cm expandierter Polystyrolschaum, verstärkter Estrich, doppelt verklebte wasserdichte Beschichtung mit UV-Faktor. Wir freuen uns auf Ihre Anfrage.
Wenn Sie einen Besichtigungstermin für eine Immobilie vereinbaren möchten, an der Sie interessiert sind, oder eines unserer Büros besuchen möchten, kontaktieren Sie uns bitte. Um einen Termin für ein Treffen oder eine Besichtigung zu vereinbaren, können Sie die in der Anzeige angegebene Telefonnummer anrufen oder eine Anfrage per E-Mail senden. Unser Berater unterstützt Sie bei allen notwendigen Details und vereinbart einen für Sie passenden Termin.
Sie suchen die passende Immobilie für sich?
Zögern Sie nicht, uns zu kontaktieren und uns Ihre Bedürfnisse und Wünsche mitzuteilen. Unser Team führt eine gründliche Marktforschung durch, um Ihnen Immobilien anzubieten, die genau Ihren Kriterien entsprechen. Wir verfügen über ein außergewöhnliches Portfolio hochwertiger und exklusiver Häuser, die nur unseren Kunden zur Verfügung stehen. Um als Erster Informationen darüber zu erhalten, kontaktieren Sie uns.
Zusätzliche Dienstleistungen
Als geschätzter Kunde unseres Unternehmens haben Sie das Privileg, die Dienste unseres erfahrenen Rechtsteams völlig kostenlos in Anspruch zu nehmen. Darüber hinaus bieten wir umfassende Lösungen inklusive Sachversicherung, kostenloser Finanzberatung sowie günstigen Finanzierungskonditionen. Unsere Leistungen erstrecken sich auch auf die Bereiche Weiterverkauf, Vermietung und Hausverwaltung. Hochwertige Renovierungen und Einrichtungsarbeiten führen wir durch spezialisierte Unternehmen unserer Unternehmensgruppe durch, die uns als langjährige, professionelle Partner zur Seite stehen.
Besichtigungen
Wir können eine Besichtigung der Immobilie zu einer für Sie passenden Zeit vereinbaren. Bitte kontaktieren Sie den für dieses Angebot zuständigen Makler und teilen Sie ihm die von Ihnen gewünschte Uhrzeit mit.
Reservierung der Immobilie
Gegen eine nicht erstattete Anzahlung in Höhe von 2.000 Euro wird die Immobilie reserviert. Weitere Besichtigungen mit anderen Käufern finden nicht statt und Makler beginnt mit der Vorbereitung der Dokumente für den Abschluss des endgültigen Vertrags für Eigentumsübertragung. Bitte kontaktieren Sie den zuständigen Makler für mehr Information über den Kauf einer Immobilie und Zahlungsarten.
Zusatzleistungen und Kundendienst
Wir sind ein seriöses Unternehmen und werden nicht nur während des Kaufs, sondern auch danach bei Ihnen sein und Ihnen auf Ihren Wunsch zusätzliche Dienstleistungen anbieten, um die neu gekaufte Immobilie vollständig und nahtlos zu nutzen. Die Dienstleistungen, die wir anbieten können, umfassen die Erlangung einer Hypothekengenehmigung, eine Versicherung für bewegliche und unbewegliche Sachen, eine Lebensversicherung, eine Kranken- und Autoversicherung, Bau- und Reparaturaktivitäten, Möbel, Rechts- und Buchhaltungsdienstleistungen usw.
Bei uns können Sie nicht nur eine Immobilie mieten, sondern auch eine Reihe von Zusatzleistungen in Anspruch nehmen. Wir können Versicherungen für bewegliches und unbewegliches Vermögen, Lebensversicherungen, Kranken- und Kfz-Versicherungen, Bau- und Reparaturarbeiten, Möbel, Rechts- und Buchhaltungsdienstleistungen usw. anbieten.
Der Komplex liegt am Kap Akrotiri in der Stadt Nessebar an der Schwarzmeerküste mit 100 % atemberaubendem Meerblick, 30 m vom NSA-Strand und 200 m vom Strand Süd-Nessebar entfernt.
Im Bau. Voraussichtliches Gesetz 16 – Juni 2027
Das Grundstück verfügt über eine Gesamtfläche von 171,67 m², einen privaten Hof mit einer Fläche von 184,26 m² und zwei Parkplätze.
Verteilung:
Erdgeschoss: Eingangshalle, Abstellraum, Badezimmer, Wohnzimmer mit Küche und Esszimmer, Veranda;
Zweiter Stock: drei Schlafzimmer mit eigenem Bad und WC. Die Immobilie wird im Fertigstellungsgrad gemäß bulgarischem Zivilgesetzbuch vermietet:
Wände - Spritzputz;
Boden - Estrich mit Schallschutzunterlage;
Sanitärsysteme - an einem Stecker;
Stromsysteme – Schalttafeln, Schalter, Steckdosen, Lampenfassungen;
Schwachstrominstallation - Kästen;
Wi-Fi-Ausgänge. Hoffläche:
getrennt durch einen Zaun aus Stahlbetonplatten und einen Metallzaun;
Parkplatz - für zwei Autos;
Landschaftsgärtnerei;
Landschaftsparkbeleuchtung;
Bewässerungssystem. Technische Eigenschaften:
Stahlbetonkonstruktion – 3 mH (Höhe) pro Etage;
Wände – Keramikziegel Wienerberger Porotherm 25 cm /Mehrkammer/ für bessere Wärme- und Schalldämmung;
Fassade – hinterlüftetes HPL-Fassadensystem, Natursteinverkleidung, Wärmedämmung doppelt eingespritzte Steinwolle 10 cm;
Tischlerei – Aluminiumtischlerei, Thermoprofil mit Dreifachverglasung, Hebe-Schiebe-System mit 50 % Öffnungskapazität;
gepanzerte einbruchhemmende Eingangstür;
Dach – 10 cm expandierter Polystyrolschaum, verstärkter Estrich, doppelt verklebte wasserdichte Beschichtung mit UV-Faktor. Wir freuen uns auf Ihre Anfrage.
Wenn Sie einen Besichtigungstermin für eine Immobilie vereinbaren möchten, an der Sie interessiert sind, oder eines unserer Büros besuchen möchten, kontaktieren Sie uns bitte. Um einen Termin für ein Treffen oder eine Besichtigung zu vereinbaren, können Sie die in der Anzeige angegebene Telefonnummer anrufen oder eine Anfrage per E-Mail senden. Unser Berater unterstützt Sie bei allen notwendigen Details und vereinbart einen für Sie passenden Termin.
Sie suchen die passende Immobilie für sich?
Zögern Sie nicht, uns zu kontaktieren und uns Ihre Bedürfnisse und Wünsche mitzuteilen. Unser Team führt eine gründliche Marktforschung durch, um Ihnen Immobilien anzubieten, die genau Ihren Kriterien entsprechen. Wir verfügen über ein außergewöhnliches Portfolio hochwertiger und exklusiver Häuser, die nur unseren Kunden zur Verfügung stehen. Um als Erster Informationen darüber zu erhalten, kontaktieren Sie uns.
Zusätzliche Dienstleistungen
Als geschätzter Kunde unseres Unternehmens haben Sie das Privileg, die Dienste unseres erfahrenen Rechtsteams völlig kostenlos in Anspruch zu nehmen. Darüber hinaus bieten wir umfassende Lösungen inklusive Sachversicherung, kostenloser Finanzberatung sowie günstigen Finanzierungskonditionen. Unsere Leistungen erstrecken sich auch auf die Bereiche Weiterverkauf, Vermietung und Hausverwaltung. Hochwertige Renovierungen und Einrichtungsarbeiten führen wir durch spezialisierte Unternehmen unserer Unternehmensgruppe durch, die uns als langjährige, professionelle Partner zur Seite stehen.
Besichtigungen
Wir können eine Besichtigung der Immobilie zu einer für Sie passenden Zeit vereinbaren. Bitte kontaktieren Sie den für dieses Angebot zuständigen Makler und teilen Sie ihm die von Ihnen gewünschte Uhrzeit mit.
Reservierung der Immobilie
Gegen eine nicht erstattete Anzahlung in Höhe von 2.000 Euro wird die Immobilie reserviert. Weitere Besichtigungen mit anderen Käufern finden nicht statt und Makler beginnt mit der Vorbereitung der Dokumente für den Abschluss des endgültigen Vertrags für Eigentumsübertragung. Bitte kontaktieren Sie den zuständigen Makler für mehr Information über den Kauf einer Immobilie und Zahlungsarten.
Zusatzleistungen und Kundendienst
Wir sind ein seriöses Unternehmen und werden nicht nur während des Kaufs, sondern auch danach bei Ihnen sein und Ihnen auf Ihren Wunsch zusätzliche Dienstleistungen anbieten, um die neu gekaufte Immobilie vollständig und nahtlos zu nutzen. Die Dienstleistungen, die wir anbieten können, umfassen die Erlangung einer Hypothekengenehmigung, eine Versicherung für bewegliche und unbewegliche Sachen, eine Lebensversicherung, eine Kranken- und Autoversicherung, Bau- und Reparaturaktivitäten, Möbel, Rechts- und Buchhaltungsdienstleistungen usw.
Bei uns können Sie nicht nur eine Immobilie mieten, sondern auch eine Reihe von Zusatzleistungen in Anspruch nehmen. Wir können Versicherungen für bewegliches und unbewegliches Vermögen, Lebensversicherungen, Kranken- und Kfz-Versicherungen, Bau- und Reparaturarbeiten, Möbel, Rechts- und Buchhaltungsdienstleistungen usw. anbieten.
Einfamilienhäuser in einem neuen geschlossenen Komplex in Nessebar
Nessebar / Burgas / Bulgarien Karte
Immobilienpreise: 280 000 - 680 000 €
Preise pro m²: 1 700 - 2 360 €/m 2
Wählen Sie diese Option und wir benachrichtigen Sie per E-Mail, wenn sich der Angebotsstatus ändert, zum Beispiel:
• Preisänderung;
• Die Immobilie hat ein Sonderangebot abgegeben;
• Die Immobilie ist reserviert oder verkauft;
• Weitere Neuigkeiten im Zusammenhang mit der Immobilie.
• Die Immobilie wird aus dem Verkauf genommen;
Sie können Benachrichtigungen jederzeit problemlos abbestellen.• Änderungen der Angebotsbedingungen;
• Änderung der Investitionshöhe;
• Der Investitionsgegenstand wurde vollständig realisiert;
• Das Angebot ist abgelaufen.
Sie können sich ganz einfach abmelden, wenn Sie in Zukunft entscheiden, dass Sie dieses Angebot nicht mehr nutzen möchten.



...Als ausgewiesener Spezialist arbeitet Stonehard PREMIER an der Marktpositionierung und dem Vertrieb zahlreicher Neubauprojekte, deren Umsetzung uns führende Unternehmergesellschaften in Bulgarien und im Ausland anvertraut haben...