Тристаен мезонет с двор в бутикова нова сграда близо до Paradise Mall и Южен парк
Цена:
323 571 € (без ДДС) (2 350 €/м2 (без ДДС))
*Указаните цени и наличности от свободни имоти в проекта са индикативни. За актуална ценова информация, моля свържете се с нас!
Реф. Номер: SOF-138383 / 5075
Местоположение: кв. Кръстова вада / гр. София карта
Тип на сграда/комплекс: Жилищен
Площи на жилищата: 137.69 м2
Типове имоти в сградата/комплекса: Тристайни апартаменти
Реф. Номер: SOF-138383 / 5075
Местоположение: кв. Кръстова вада / гр. София
Тип на сграда/комплекс: Жилищен
Клас на сградата/комплекса:
Площи на жилищата: 137.69 м2
Типове имоти в сградата/комплекса: Тристайни апартаменти
Сградата е бутикова, с лимитиран брой апартаменти, разположена на тиха и спокойна улица, която осигурява дискретност, комфорт и усещане за уединение. Локацията съчетава спокойствието на жилищната среда с непосредствен достъп до всичко необходимо за динамичното ежедневие – големи хипермаркети, аптеки, ресторанти и салони за красота.
Само на 400 метра се намират Paradise Center и Южен парк – комбинация, която придава допълнителна престижност и стойност на адреса. На пешеходно разстояние е метростанция „Витоша“, както и няколко автобусни линии, гарантиращи бърз и удобен достъп до всички точки на града. В непосредствена близост са разположени и утвърдени медицински и образователни институции – ключов фактор при избора на дом както за живеене, така и за инвестиция.
Характеристики на имота
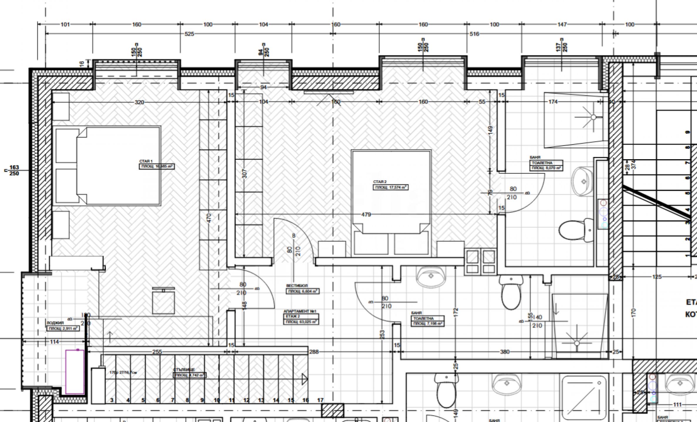
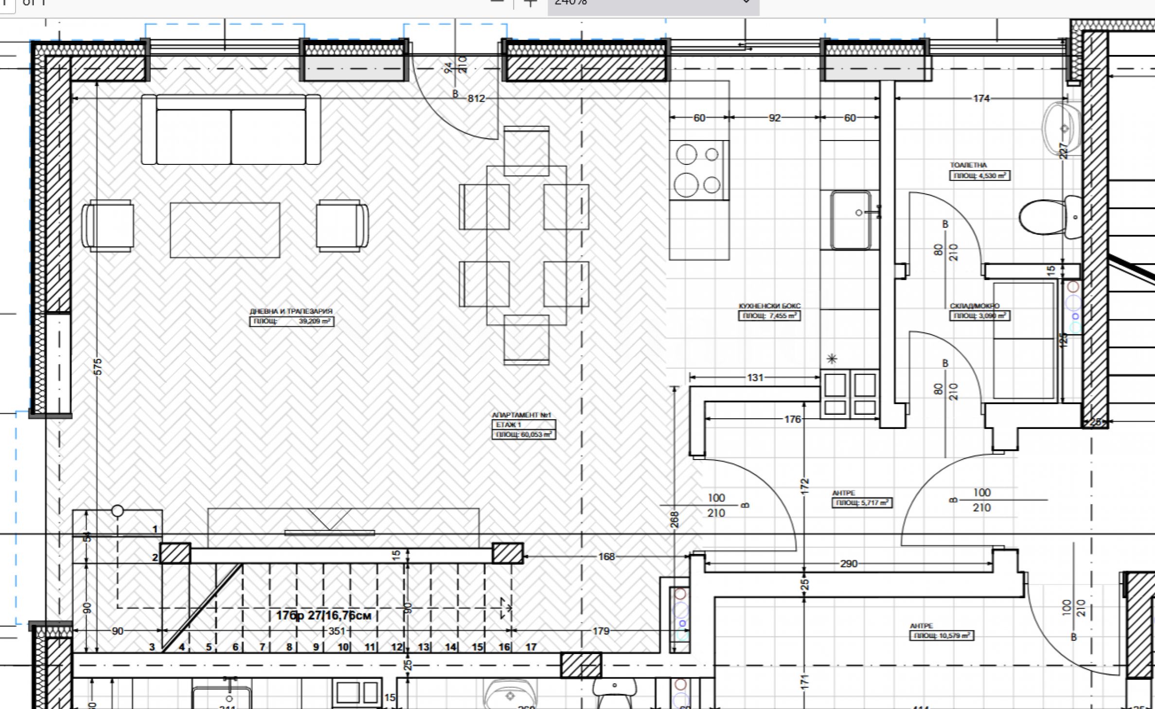
Избрахме да Ви представим мезонет, разположен на партера и първия етаж на сградата с дворно пространство. С обща площ 137.69 кв.м, от които 57.04 са чистата площ на първото ниво и 63.92 - на второто. Разпределението включва всекидневна с кухня и трапезария с излаз към двора на първия етаж и две спални със собствени бани на втория етаж.
Разпределението е комфортно и функционално, осигуряващо пространства за отдих и почивка на всички обитатели, а високите тавани и големите прозорци осигуряват изобилие от дневна светлина във всички помещения.
Технически характеристики:
• Окачена вентилируема фасада с камък и HPL панели;
• Чиста височина на помещенията – 2,60 м;
• Голям асансьор Orona с капацитет 6–8 души;
• Висококачествена дограма Trocal;
• Зидария с тухли Wienerberger;
• Отоплението е планирано на газ.
Има възможност за закупуване на големи и малки паркоместа, на цени от 42 000 - 45 000 евро (82 144,86 - 88 012,35 лв.) с ДДС.
Посочената цена е без ДДС.
Очакваме Вашето запитване
Ако желаете да организирате оглед на имот, който Ви интересува, или да посетите някой от нашите офиси, моля свържете се с нас. За да уговорите ден и час за среща или оглед, можете да се обадите на посочения в обявата телефон или да изпратите запитване чрез електронната поща. Нашият консултант ще Ви съдейства с всички необходими подробности и ще уговори удобно за Вас време.
Търсите подходящия за Вас имот?
Не се колебайте да се свържете с нас и да ни разкажете за Вашите нужди и предпочитания. Нашият екип ще проведе задълбочено проучване на пазара, за да Ви предложи имоти, които точно отговарят на Вашите критерии. Разполагаме с изключително портфолио от висококачествени и ексклузивни жилища, които са достъпни само за нашите клиенти. За да сте първите, които ще получите информация за тях – свържете се с нас.
Допълнителни услуги
Като ценен клиент на нашата компания, Вие ще имате привилегията да ползвате напълно безплатно услугите на нашия опитен юридически екип. В допълнение, предлагаме комплексни решения, включващи имуществена застраховка, безплатна финансова консултация, както и изгодни условия за финансиране. Нашите услуги се разпростират и в сферата на препродажбата, отдаването под наем и управлението на имоти. Осигуряваме висококачествени ремонтни дейности и обзавеждане чрез специализирани фирми, които са част от нашата корпоративна група и са наши дългогодишни професионални партньори.
Местоположение на картата
ПРОЕКТ
Жилищна сграда предлагаща различни типове апартаменти в кв. Оборище
кв. Оборище / гр. София / София / България карта
Дата на завършване: Декември, 2025 г.
Цени на имотите: 365 000 - 2 610 000 € (без ДДС)
Цени на м²: 3 900 - 7 655 €/м2 (без ДДС)
ПРОДАЖБА
ПРОЕКТ
Тристаен апартамент с паркомясто във Flora Park
кв. Манастирски ливади - Изток / гр. София / София / България карта
Площ: 128.15 м2
Цена: 500 000 € /// 3 902 €/м2
ПРАВА
ПРОДАЖБА
ПРОЕКТ
Мезонет с голяма панорамна тераса с гледка към цяла София, до бул. "Сливница"
кв. Банишора / гр. София / София / България карта
Площ: 224.88 м2
Цена: 395 000 € /// 1 756 €/м2
Изберете тази опция и ще Ви уведомяваме по имейла при настъпили промени по статуса на офертата, например:
• Промяна на цената;
• Имотът влезе в промоционално предложение;
• Имотът бъде резервран или продаден;
• Други новости, свързани с имота.
• Имотът бъде свален от продажба;
Може да се отпишете от нотификациите лесно, когато пожелаете.• Промени по условията на офертата;
• Промяна в сумата на инвестицията;
• Предметът на инвестицията е изцяло реализиран;
• Валидността на офертата е изтекла.
Може лесно да се отпишете, ако в бъдеще решите, че повече не желаете да следите тази оферта.
За да получите абсолютно коректна информация относно свободните имоти, налични за продажба в проекта и техните актуални цени, моля свържете се с нашия офис на посочената информация за контакт.
Ние полагаме усилия, за да поддържаме нашите ценови листи абсолютно актуални и коректни, но често това е невъзможно, предвид големия брой нови проекти в нашия каталог и силно динамичните продажби.
Благодарим Ви за проявеното разбиране!



...В качеството си на доказан спецалист Stonehard PREMIER работи по пазарното позициониране и продажбите на множество проекти ново строителство, чиято реализация ни е поверена от водещи предприемачески компании в България и чужбина...