Нова къща на шпакловка и замазка, с двор в бутиков комплекс Serenity Six, край Ахелой
на картата
Цена:
165 000 € ()
*Указаните цени и наличности от свободни имоти в проекта са индикативни. За актуална ценова информация, моля свържете се с нас!
Реф. Номер: LXH-137283 / 4988
Местоположение: Ахелой карта
Тип на сграда/комплекс: Жилищен
Площи на жилищата: 182 м2
Типове имоти в сградата/комплекса: Къщи
Реф. Номер: LXH-137283 / 4988
Местоположение: Ахелой
Тип на сграда/комплекс: Жилищен
Клас на сградата/комплекса:
Площи на жилищата: 182 м2
Типове имоти в сградата/комплекса: Къщи
На снимките виждате една от шестте къщи – единствената, завършена до ключ, както и интериорни визуализации, които са маркирани като такива.
Останалите пет къщи се предлагат в текущото им състояние – на шпакловка и замазка.
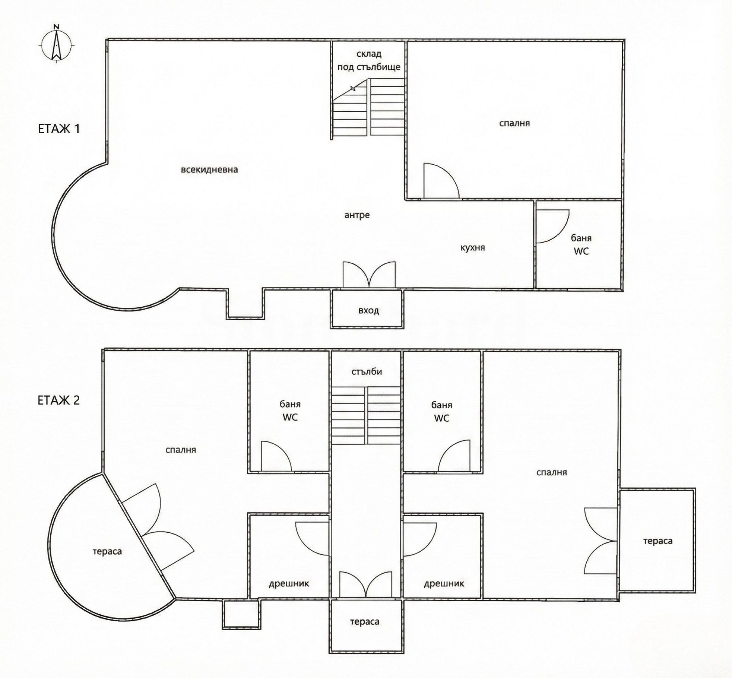
Основни параметри:
• РЗП: 182 кв.м.
• Двор: 300 кв.м.
• Място за паркиране на два автомобила в предния двор (тип драйвуей).
Разпределение:
Първи етаж:
• просторна дневна зона/ хол 42 кв.м с камина и излаз към двора;
• кухня и трапезария;
• тоалетна за гости;
• спалня 16 кв.м, подходяща за гостна, кабинет или фитнес.
Втори етаж:
• две големи спални по 22 кв.м., всяка със собствена баня с тоалетна (ен сюит) и ниша за собствена гардеробна;
• родителската спалня е с обла тераса;
• втора спалня с по-малка тераса;
• на етажа има и трета тераса, достъпна от площадката между двете спални.
Допълнителни възможности:
• Възможност за изграждане на басейн по желание на купувача;
• Възможност за съединяване на две съседни къщи, с цел оформяне на една къща с 6 спални;
• Комплексът има собствен водоизточник и изградена септична система.
Акт 16 от декември 2025 г.
Депозит: 2 000 EUR
Проектът Serenity Six е отлична възможност за покупка на нова къща близо до морето, с гъвкавост за довършване според личния вкус.
Местоположение на картата
ПРОДАЖБА
ПРОЕКТ
Нова завършена къща с двор в бутиков комплекс Serenity Six, близо до морето
Ахелой / Бургас / България карта
Площ: 182 м2
Цена: 190 000 € ///
ПРОДАЖБА
ПРОЕКТ
Двуетажна вила с басейн в целогодишен СПА комплекс до Ахелой
Ахелой / Бургас / България карта
Площ: 146 м2
Цена: 127 000 € ///
ПРОДАЖБА
ПРОЕКТ
Къща с гледка море на 2 км от плажа на Ахелой
Ахелой / Бургас / България карта
Площ: 120.80 м2
Цена: 250 000 € ///
Изберете тази опция и ще Ви уведомяваме по имейла при настъпили промени по статуса на офертата, например:
• Промяна на цената;
• Имотът влезе в промоционално предложение;
• Имотът бъде резервран или продаден;
• Други новости, свързани с имота.
• Имотът бъде свален от продажба;
Може да се отпишете от нотификациите лесно, когато пожелаете.• Промени по условията на офертата;
• Промяна в сумата на инвестицията;
• Предметът на инвестицията е изцяло реализиран;
• Валидността на офертата е изтекла.
Може лесно да се отпишете, ако в бъдеще решите, че повече не желаете да следите тази оферта.
За да получите абсолютно коректна информация относно свободните имоти, налични за продажба в проекта и техните актуални цени, моля свържете се с нашия офис на посочената информация за контакт.
Ние полагаме усилия, за да поддържаме нашите ценови листи абсолютно актуални и коректни, но често това е невъзможно, предвид големия брой нови проекти в нашия каталог и силно динамичните продажби.
Благодарим Ви за проявеното разбиране!



...В качеството си на доказан спецалист Stonehard PREMIER работи по пазарното позициониране и продажбите на множество проекти ново строителство, чиято реализация ни е поверена от водещи предприемачески компании в България и чужбина...