Двустаен апартамент с голяма тераса в луксозен комплекс в Банско
Цена:
92 363 € (без ДДС) (1 250 €/м2 (без ДДС))
*Указаните цени и наличности от свободни имоти в проекта са индикативни. За актуална ценова информация, моля свържете се с нас!
Реф. Номер: STO-137153 / 4138
Местоположение: гр. Банско карта
Тип на сграда/комплекс: Жилищен
Клас на сградата/комплекса: Стандартен
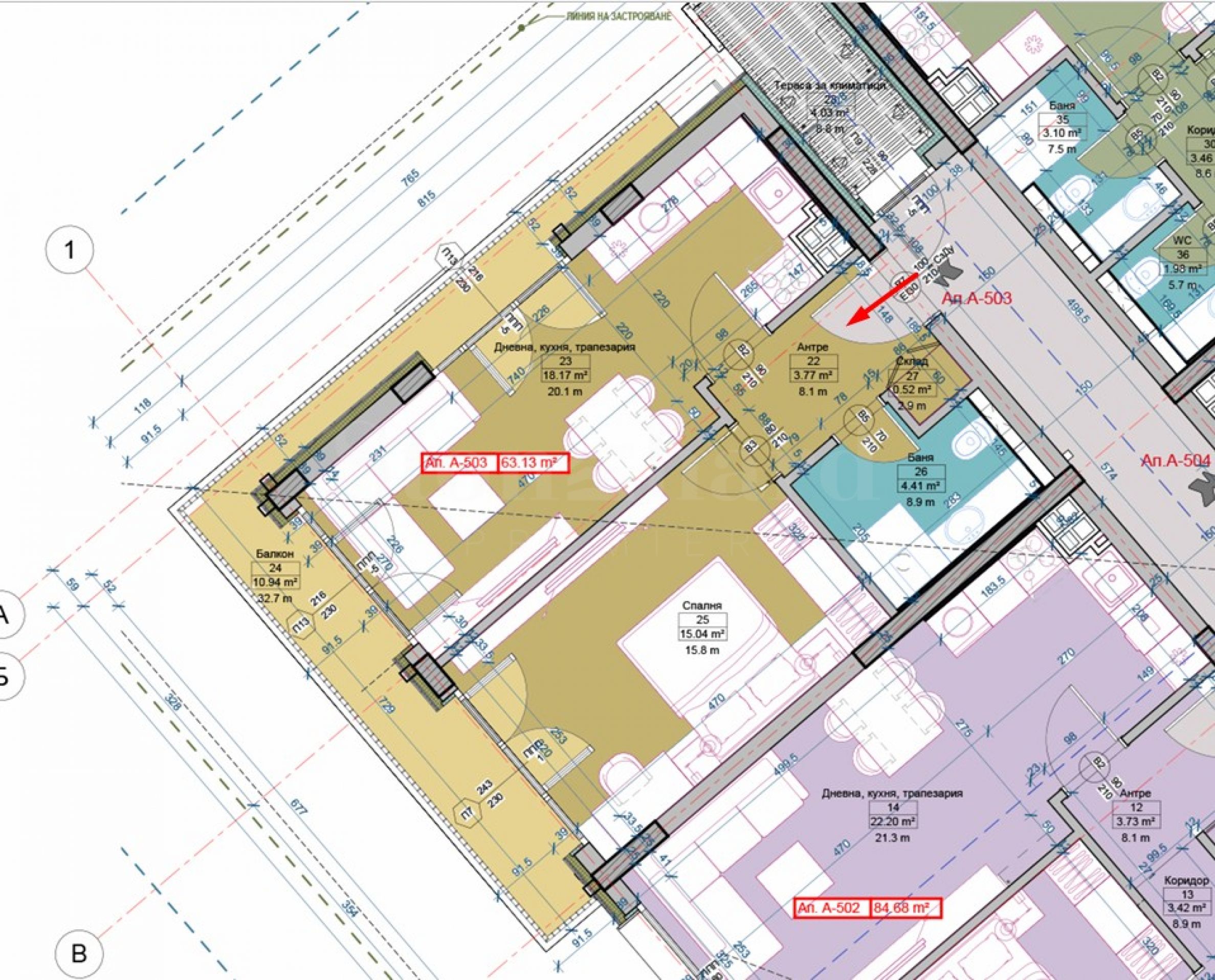
Площи на жилищата: 73.89 м2
Типове имоти в сградата/комплекса: Двустайни апартаменти
Реф. Номер: STO-137153 / 4138
Местоположение: гр. Банско
Тип на сграда/комплекс: Жилищен
Клас на сградата/комплекса: Стандартен
Площи на жилищата: 73.89 м2
Типове имоти в сградата/комплекса: Двустайни апартаменти
Ексклузивно предлагаме за покупка просторен двустаен апартамент, разположен в нова сграда на утвърдения ваканционен комплекс Belvedere Holiday Club в Банско.
„Белведере Холидей Клуб“ е модерен и напълно завършен ваканционен комплекс от висок клас, утвърдил се като едно от най-предпочитаните места за планински отдих в България. Комплексът е от затворен тип и включва отлично проектирани апартаменти, допълнени от богат набор удобства и съоръжения за релакс и свободно време. Локацията е изключително комуникативна – в новата и модерна част на Банско, на приблизително 400 м от кабинковия лифт и в непосредствена близост до търговския център Mall of Bansko.
Новата сграда се отличава със съвременна вентилируема фасада с HPL облицовка, издържана в характерната за комплекса цветова гама. Проектирана е на 5 етажа и разполага с два самостоятелни входа – „А“ и „Б“, обслужвани от модерен асансьор. В сградата се предлагат просторни студиа, двустайни и тристайни апартаменти, създадени с акцент върху комфорта и функционалността.
Предлаганият двустаен апартамент е с обща площ от 73.89 кв.м, разположен на 5-и етаж и се издава в степен на завършеност "до ключ".
Довършителни работи:
• инсталации за отводняване на водата от климатиците - сплит и мултисплит система;
• под - висококачествен ламинат и гранитогрес в коридор и кухненската част;
• бани завършени, с бойлер, гранитогрес;
• стени - тухли Wienerberger, вътрешни стени - тухла 25 см;
• тавани - гипсова шпакловка с алуминиеви ъгли;
• боя латекс - бяло;
• дограма PVC - 5-камерен профил, цвят графит отвън, вътре бяло, троен стъклопакет;
• парапети - метални;
• врати - входни;
• интериорни врати.
Технически характеристики на сградата:
• облицовка - вентилируема фасада с HPL;
• алуминиеви рамки на прозорците;
• 12 см изолация, мазилка бял и сив цвят;
• керемиди Bramac;
• дворчета - бетон на партера, без тревни площи;
• ВИК инсталации - бойлери 100 л, водомери за студена вода с дистанционно отчитане, вентилация;
• общи части изцяло завършени - стъпала с гранит, гранитогрес във фоайета и коридори;
• видеонаблюдение - на входа във фоайето - по периферията на сградата;
• контрол на достъп;
• осветителни тела в общи части с детектори;
• окабеляване за Интернет и кабел;
• домофонна система (кабел за видеонаблюдение);
• асансьор - електромеханичен - Orona за 8 души, 2 бр. асансьори, по 1 във всеки вход;
• вода, канал и ток - захранване.
Схема на плащане:
• 20% на Предварителен договор;
• 20% на котата, на която е разположен апартаментът;
• 20% на Акт 14;
• 30% на Акт 15;
• 10% на Акт 16.
Първата фаза на комплекса е напълно завършена, успешно функционираща и е с разрешение за ползване (Акт 16) от 2008 година. Състои се от от три блока с апартаменти.
Екстри и съоръжения в "Белведере Холидей Клуб"
• Модерен ресторант "Belvedere Classico", предлагащ европейска кухня и традиционни ястия за района. Предлагат се преференциални цени за собственици и румсървис;
• Закрит отопляем басейн със зона за възрастни и зона за деца с постоянна температура от 32-33 градуса;
• Открит басейн (отопляем през лятото) със зона за възрастни, зона за деца, зона за много малки бебета и деца, и pool-бар;
• Външно джакузи за 15 човека;
• Фитнес;
• Луксозна денонощно работеща рецепция в блок 1 и мини-рецепции в другите блокове;
• Лоби зона с мека мебел;
• Лоби бар, сервиращ напитки и храни;
• Зала с билярди, дартс и други забавни игри;
• Кът за тихи игри: билярдни маси, тенис на маса, симулатор, Интернет игри;
• Детски кът - външен;
• Детски кът - вътрешен;
• Гардероб за ски и голф принадлежности;
• Паркинги с паркоместа;
• Красиво оформени градини с осветление и алеи;
• Видеонаблюдение.
SPA център:
• Инфрачервена сауна с хималайска сол;
• Турска баня – Хамам;
• 2 сухи финландски сауни;
• 2 парни бани;
• Джакузи за 10 души;
• Солариум.
*Собствениците на апартаментите ползват преференциални условия в обновения SPA центъра на комплекса, имат право да ползват неограничено външните басейни, джакузито и фитнеса.
Услуги в Belvedere Holiday Club:
• Денонощна рецепция и румсървис;
• Охранителни камери;
• Собствен автобусен транспорт до кабинковия лифт, центъра на Банско и до голф игрището. През зимния сезон се предлага безплатен превоз до начална станция на лифта. Важи само за собственици на апартаменти;
• Безжичен Интернет.
Очакваме Вашето запитване
Ако желаете да организирате оглед на имот, който Ви интересува, или да посетите някой от нашите офиси, моля свържете се с нас. За да уговорите ден и час за среща или оглед, можете да се обадите на посочения в обявата телефон или да изпратите запитване чрез електронната поща. Нашият консултант ще Ви съдейства с всички необходими подробности и ще уговори удобно за Вас време.
Търсите подходящия за Вас имот?
Не се колебайте да се свържете с нас и да ни разкажете за Вашите нужди и предпочитания. Нашият екип ще проведе задълбочено проучване на пазара, за да Ви предложи имоти, които точно отговарят на Вашите критерии. Разполагаме с изключително портфолио от висококачествени и ексклузивни жилища, които са достъпни само за нашите клиенти. За да сте първите, които ще получите информация за тях – свържете се с нас.
Допълнителни услуги
Като ценен клиент на нашата компания, Вие ще имате привилегията да ползвате напълно безплатно услугите на нашия опитен юридически екип. В допълнение, предлагаме комплексни решения, включващи имуществена застраховка, безплатна финансова консултация, както и изгодни условия за финансиране. Нашите услуги се разпростират и в сферата на препродажбата, отдаването под наем и управлението на имоти. Осигуряваме висококачествени ремонтни дейности и обзавеждане чрез специализирани фирми, които са част от нашата корпоративна група и са наши дългогодишни професионални партньори.
Местоположение на картата
ПРОДАЖБА
ПРОЕКТ
Просторен двустаен апартамент, разположен в близост до ски лифта в Банско
гр. Банско / Благоевград / България карта
Площ: 72 м2
Цена: 84 000 € /// 1 167 €/м2
ПРОДАЖБА
ПРОЕКТ
Двустаен апартамент, разположен в елитния комплекс "Белведере Холидей Клуб"
гр. Банско / Благоевград / България карта
Клас на сградата/комплекса: Стандартен
Площ: 56.27 м2
Цена: 79 000 € /// 1 404 €/м2
ПРОДАЖБА
ПРОЕКТ
Южен двустаен апартамент с фронтална гледка към пистите в луксозния Регнум Хотел
гр. Банско / Благоевград / България карта
Площ: 61.03 м2
Цена: 110 000 € /// 1 802 €/м2
Изберете тази опция и ще Ви уведомяваме по имейла при настъпили промени по статуса на офертата, например:
• Промяна на цената;
• Имотът влезе в промоционално предложение;
• Имотът бъде резервран или продаден;
• Други новости, свързани с имота.
• Имотът бъде свален от продажба;
Може да се отпишете от нотификациите лесно, когато пожелаете.• Промени по условията на офертата;
• Промяна в сумата на инвестицията;
• Предметът на инвестицията е изцяло реализиран;
• Валидността на офертата е изтекла.
Може лесно да се отпишете, ако в бъдеще решите, че повече не желаете да следите тази оферта.
За да получите абсолютно коректна информация относно свободните имоти, налични за продажба в проекта и техните актуални цени, моля свържете се с нашия офис на посочената информация за контакт.
Ние полагаме усилия, за да поддържаме нашите ценови листи абсолютно актуални и коректни, но често това е невъзможно, предвид големия брой нови проекти в нашия каталог и силно динамичните продажби.
Благодарим Ви за проявеното разбиране!



...В качеството си на доказан спецалист Stonehard PREMIER работи по пазарното позициониране и продажбите на множество проекти ново строителство, чиято реализация ни е поверена от водещи предприемачески компании в България и чужбина...