Тристаен апартамент, до бъдеща метростанция и нов обществен парк
на картатаЦена:
265 500 € (без ДДС) (2 062 €/м2 (без ДДС))
*Указаните цени и наличности от свободни имоти в проекта са индикативни. За актуална ценова информация, моля свържете се с нас!
Реф. Номер: SOF-136669 / 4930
Местоположение: Витоша / София карта
Тип на сграда/комплекс: Жилищен
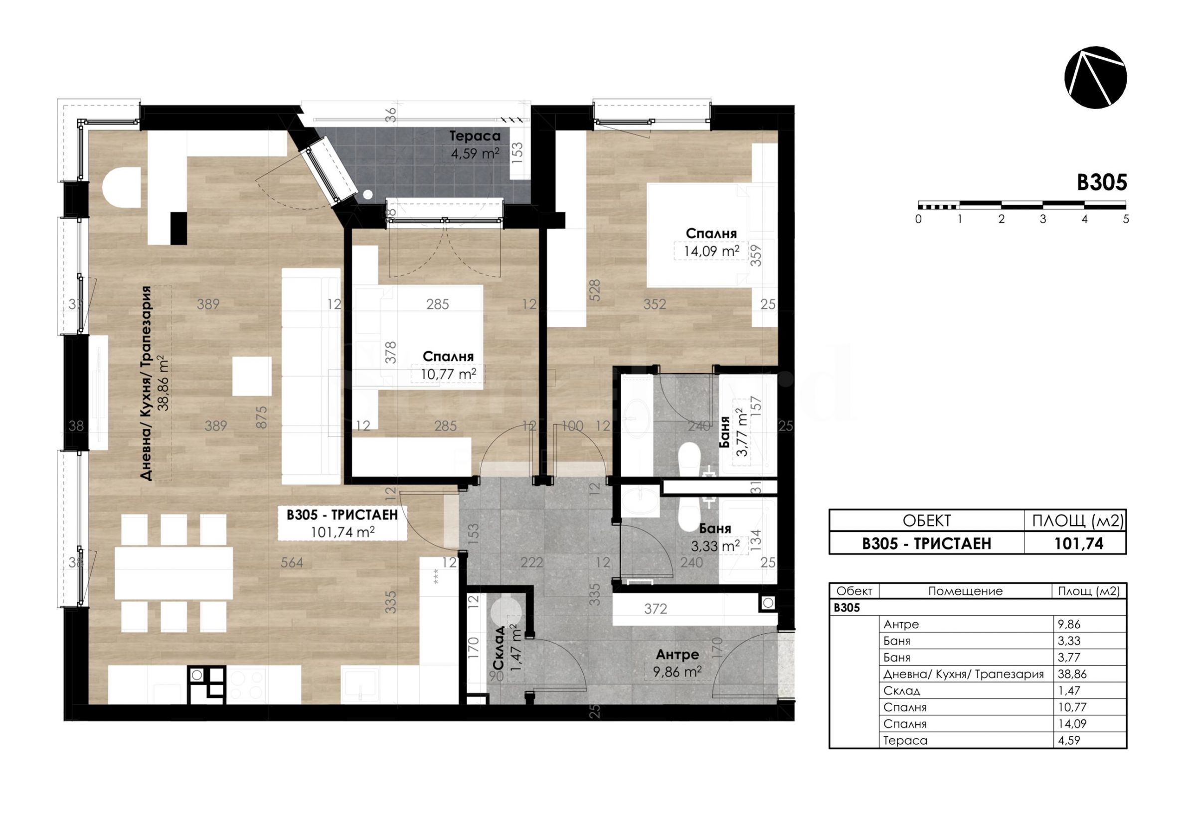
Площи на жилищата: 128.74 м2
Типове имоти в сградата/комплекса: Двустайни апартаменти
Реф. Номер: SOF-136669 / 4930
Местоположение: Витоша / София
Тип на сграда/комплекс: Жилищен
Клас на сградата/комплекса:
Площи на жилищата: 128.74 м2
Типове имоти в сградата/комплекса: Двустайни апартаменти
Планирано начало на строителството - януари 2026 г. Срок за завършване - 2028 г.
Проектът съчетава модерната градска инфраструктура с непосредствената близост до природата, като бъдещите собственици ще се наслаждават на панорамни гледки към планината и зеленината на бъдещ обществен парк в района. Ниското обкръжаващо застрояване допринася за усещане за простор, тишина и уют — благоприятна среда за модерен и спокоен дом.
Локация
Сградата е позиционирана на ключово място — само на 150 метра от бъдеща метростанция, което осигурява бърз достъп до всички важни точки на града. В непосредствена близост се намират бъдещ обществен парк (100 м), магазини, училища, детски градини и спортни центрове. Основната транспортна артерия — бул. „Симеоновско шосе“, е на едва 900 метра, което гарантира лесна връзка с централната част на София и Околовръстен път.
Имотът е разположен на 3-ти етаж и има обща площ 128.74 кв.м.
Разпределение:
• антре, килер;
• баня/тоалетна;
• просторна дневна с кухня и трапезария;
• спалня със собствена баня/тоалетна;
• втора спалня.
Цената е по стандартната схема на плащане и е без ДДС.
За удобство на купувачите се предлагат още две атрактивни схеми на плащане:
• Схема 90/10 "с – 5%";
• Схема 20/80 "с + 10%".
Има възможност за закупуването на външно паркомясто, подземен гараж и склад.
Технически характеристики:
• Сеизмично осигурена монолитна стоманобетонова конструкция;
• Външни и вътрешни стени от керамична тухла;
• Фасадна топлоизолация – минимум 10 см EPS или каменна вата;
• Топло-, хидро- и пароизолиран покрив;
• Озеленен вътрешен двор и вертикална планировка;
• Входна врата с контрол на достъп;
• Луксозно завършени общи части с гранитогрес;
• Асансьор за до 8 лица;
• PVC дограма – 7-камерна с троен стъклопакет;
• Блиндирани входни врати на апартаментите;
• Стени и тавани – шпакловка и мазилка, подове на замазка;
• Тераси с външен гранитогрес;
• Подземен паркинг с бетонна настилка и осветление;
• Пожарогасителна и пожароизвестителна система;
• Изградени електро-, ВиК и интернет инсталации;
• Подготовка за климатици и газово отопление.
Очакваме Вашето запитване
Ако желаете да организирате оглед на имот, който Ви интересува, или да посетите някой от нашите офиси, моля свържете се с нас. За да уговорите ден и час за среща или оглед, можете да се обадите на посочения в обявата телефон или да изпратите запитване чрез електронната поща. Нашият консултант ще Ви съдейства с всички необходими подробности и ще уговори удобно за Вас време.
Търсите подходящия за Вас имот?
Не се колебайте да се свържете с нас и да ни разкажете за Вашите нужди и предпочитания. Нашият екип ще проведе задълбочено проучване на пазара, за да Ви предложи имоти, които точно отговарят на Вашите критерии. Разполагаме с изключително портфолио от висококачествени и ексклузивни жилища, които са достъпни само за нашите клиенти. За да сте първите, които ще получите информация за тях – свържете се с нас.
Допълнителни услуги
Като ценен клиент на нашата компания, Вие ще имате привилегията да ползвате напълно безплатно услугите на нашия опитен юридически екип. В допълнение, предлагаме комплексни решения, включващи имуществена застраховка, безплатна финансова консултация, както и изгодни условия за финансиране. Нашите услуги се разпростират и в сферата на препродажбата, отдаването под наем и управлението на имоти. Осигуряваме висококачествени ремонтни дейности и обзавеждане чрез специализирани фирми, които са част от нашата корпоративна група и са наши дългогодишни професионални партньори.
Местоположение на картата
ПРАВА
ПРОДАЖБА
ПРОЕКТ
Южен двустаен апартамент с паркомясто и гледка към Витоша
в.з.Малинова долина / София / София / България карта
Площ: 64 м2
Цена: 125 000 € /// 1 953 €/м2
Апартаменти за продажба в нова сграда в кв.Овча Купел
Овча купел / София / София / България карта
Цени на имотите: 141 210 - 330 345 €
Цени на м²: 2 250 - 2 600 €/м2
ПРОДАЖБА
ПРОЕКТ
Двустаен апартамент с двор в нова жилищна сграда в кв. "Дружба"
Дружба 1 / София / София / България карта
Площ: 55.60 м2
Цена: 123 000 € /// 2 212 €/м2
Изберете тази опция и ще Ви уведомяваме по имейла при настъпили промени по статуса на офертата, например:
• Промяна на цената;
• Имотът влезе в промоционално предложение;
• Имотът бъде резервран или продаден;
• Други новости, свързани с имота.
• Имотът бъде свален от продажба;
Може да се отпишете от нотификациите лесно, когато пожелаете.• Промени по условията на офертата;
• Промяна в сумата на инвестицията;
• Предметът на инвестицията е изцяло реализиран;
• Валидността на офертата е изтекла.
Може лесно да се отпишете, ако в бъдеще решите, че повече не желаете да следите тази оферта.
За да получите абсолютно коректна информация относно свободните имоти, налични за продажба в проекта и техните актуални цени, моля свържете се с нашия офис на посочената информация за контакт.
Ние полагаме усилия, за да поддържаме нашите ценови листи абсолютно актуални и коректни, но често това е невъзможно, предвид големия брой нови проекти в нашия каталог и силно динамичните продажби.
Благодарим Ви за проявеното разбиране!



...В качеството си на доказан спецалист Stonehard PREMIER работи по пазарното позициониране и продажбите на множество проекти ново строителство, чиято реализация ни е поверена от водещи предприемачески компании в България и чужбина...