Двустаен апартамент в Mountain View Obelya, на 35 м от метростанция
на картатаЦена:
133 450 € (1 900 €/м2)
*Указаните цени и наличности от свободни имоти в проекта са индикативни. За актуална ценова информация, моля свържете се с нас!
Реф. Номер: SOF-136312 / 4850
Местоположение: Обеля / София карта
Тип на сграда/комплекс: Жилищен
Клас на сградата/комплекса: Стандартен
Площи на жилищата: 70.24 м2
Типове имоти в сградата/комплекса: Двустайни апартаменти
Реф. Номер: SOF-136312 / 4850
Местоположение: Обеля / София
Тип на сграда/комплекс: Жилищен
Клас на сградата/комплекса: Стандартен
Площи на жилищата: 70.24 м2
Типове имоти в сградата/комплекса: Двустайни апартаменти
Само на 35 метра от метростанция, локацията осигурява бърз и лесен достъп до центъра на София, както и до главните пътни артерии и спирки на градския транспорт. Районът предлага всички необходими удобства за комфортен живот – търговски обекти, училища, детски градини, спортни комплекси и здравни заведения в непосредствена близост.
ЕКСКЛУЗИВНИ ПРОДАЖБИ. БЕЗ КОМИСИОНА ОТ КУПУВАЧА!
Разрешение за строеж - в средата на лятото 2026 г.
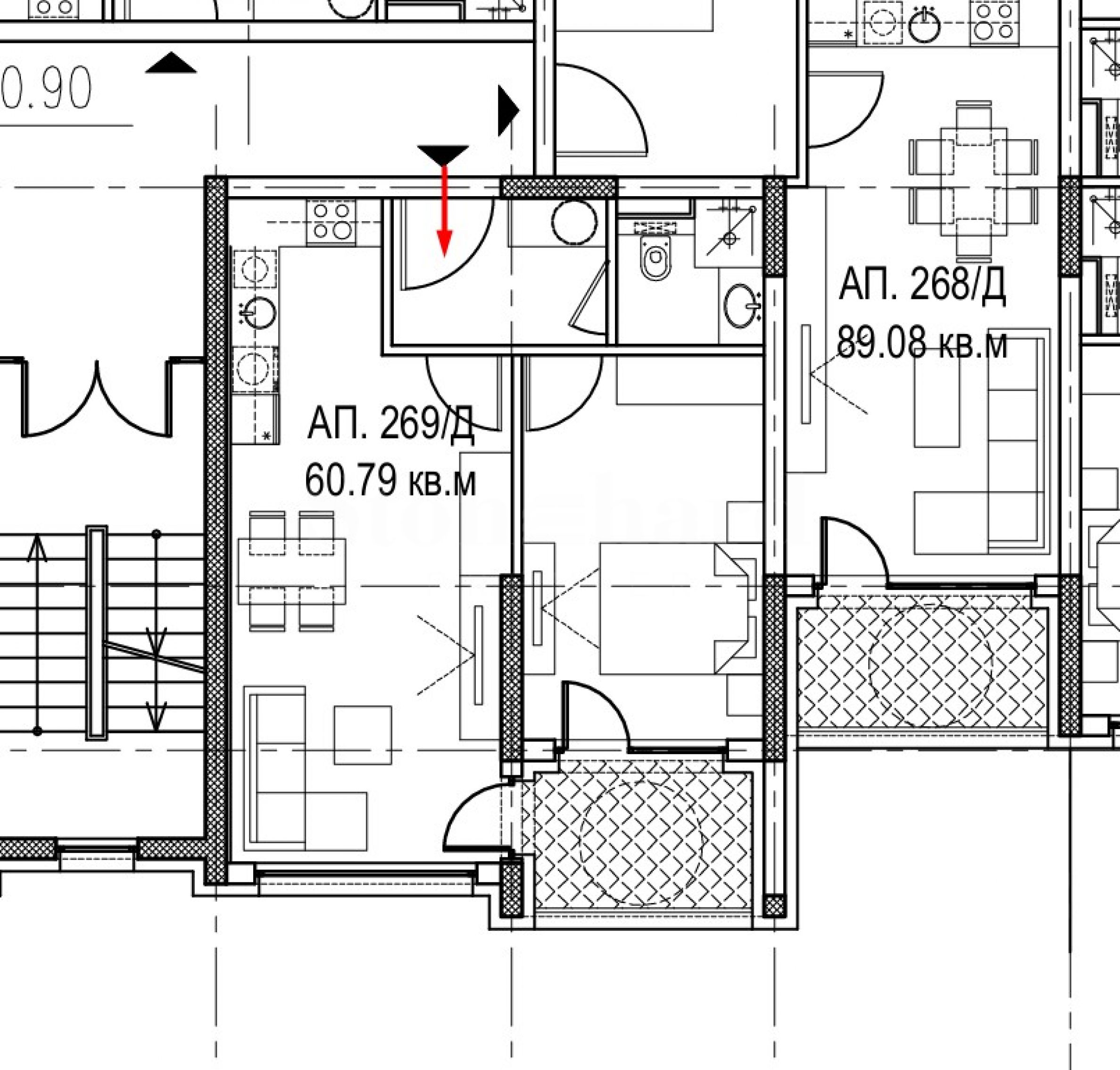
Имотът е разположен на 8-и етаж и е с обща площ 70,24 кв.м, чиста площ - 60,79 кв.м, върху които са разпределени: антре, баня с тоалетна, дневна с кухня, тераса, една спалня. Жилището се издава в степен на завършеност по БДС, с петкамерна PVC дограма Rehau, с троен стъклопакет и блиндирана входна врата.
Има възможност за закупуването на гаражи на цени от 40 000 евро (78 233.20 лв.), както и външни паркоместа на цени от 18 000 евро (35 205 лв.)
Новият комплекс е с финансово предимство – без индексация на цените след подписване на договор, както и с възможност за избор между две схеми на плащане.
Депозит:
• Депозит за двустаен апартамент - 5 000 евро (9 779 лв.);
• Депозит за тристаен или четиристаен имот - 10 000 евро (19 558.30 лв.).
Схема 1:
• При подписване на договор: 40%;
• При кота 0: 20%;
• 20% на Акт 14;
• 10% на Акт 15;
• 10% на Акт 16.
Схема 2:
• При подписване на договор: 20%;
• При кота 0: 10%;
• 50% - чл.181;
• 10% на Акт 15;
• 10% на Акт 16.
Концепция
Проектът ще се отличава с модерна визия, функционална архитектура и отлично съчетание между градски комфорт и локация. Разработен е с мисъл за различните нужди на съвременните домакинства и предлага богато разнообразие от апартаменти - двустайни, тристайни и четиристайни жилища, разположени в общо 7 входа и на 9 етажа, с общ брой 415 имота в комплекса. Апартаментите са проектирани с оптимални разпределения, просторни дневни и светли помещения, а от по-високите етажи ще се откриват красиви панорамни гледки към Витоша.
Жителите на комплекса ще разполагат с богато озеленен вътрешен двор с площ от 1500 кв.м – пространство, създадено за отдих, игри и социални контакти. На територията ще има търговски обекти, хранителни магазини, аптека, салон за красота и други ежедневни удобства.
Инвеститорът е утвърдена компания с над 15 години опит и успешно реализирани проекти в столицата.
Етапи и срокове на изпълнението:
• Разрешение за строеж – 30.06.2026 г.
• Кота 0.00 – 30.01.2027 г.
• Акт 14 – 30.03.2028 г.
• Чл. 181 – 30.06.2028 г.
• Акт 15 – 30.09.2029 г.
• Акт 16 – 30.12.2029 г.
Технически характеристики:
• Вид строителство: монолитно, стоманобетонна рамкова конструкция с тухлени ограждащи и разпределителни стени;
• Фасада: топлоизолирана, с минерална мазилка и модерен архитектурен облик;
• Подови настилки: фина изравнителна замазка;
• Стени и тавани: фина гипсова мазилка;
• Общи части: с настилки от естествен камък – мрамор и травертин, парапети и осветителни тела по проект;
• Дограма: немска петкамерна PVC дограма Rehau с троен стъклопакет;
• Входни врати: блиндирани, фурнирован MDF;
• ВиК инсталация: изградена до тапа, с лични водомери и връзка към градската мрежа;
• Електроинсталация: напълно изградена, с ключове, контакти и узаконено електрическо табло;
• Отопление: ТЕЦ;
• Интернет: оптичен кабел до апартаментите;
• Вентилация: отвори и комини, изпълнени по проект;
• Сутерени и гаражи: подове с циментова замазка, стени с гладка мазилка, метални врати на гаражите и рампите.
Очакваме Вашето запитване
Ако желаете да организирате оглед на имот, който Ви интересува, или да посетите някой от нашите офиси, моля свържете се с нас. За да уговорите ден и час за среща или оглед, можете да се обадите на посочения в обявата телефон или да изпратите запитване чрез електронната поща. Нашият консултант ще Ви съдейства с всички необходими подробности и ще уговори удобно за Вас време.
Търсите подходящия за Вас имот?
Не се колебайте да се свържете с нас и да ни разкажете за Вашите нужди и предпочитания. Нашият екип ще проведе задълбочено проучване на пазара, за да Ви предложи имоти, които точно отговарят на Вашите критерии. Разполагаме с изключително портфолио от висококачествени и ексклузивни жилища, които са достъпни само за нашите клиенти. За да сте първите, които ще получите информация за тях – свържете се с нас.
Допълнителни услуги
Като ценен клиент на нашата компания, Вие ще имате привилегията да ползвате напълно безплатно услугите на нашия опитен юридически екип. В допълнение, предлагаме комплексни решения, включващи имуществена застраховка, безплатна финансова консултация, както и изгодни условия за финансиране. Нашите услуги се разпростират и в сферата на препродажбата, отдаването под наем и управлението на имоти. Осигуряваме висококачествени ремонтни дейности и обзавеждане чрез специализирани фирми, които са част от нашата корпоративна група и са наши дългогодишни професионални партньори.
Местоположение на картата
Бутикова сграда в полите на Витоша планина - кв.Бояна
Бояна / София / София / България карта
Завършване: 2027 г.
Цени на имотите: 170 181 - 712 380 € (без ДДС)
Цени на м²: 2 600 - 2 900 €/м2 (без ДДС)
ПРАВА
ПРОДАЖБА
ПРОЕКТ
Двустайно жилище с голяма тераса в сграда с акт 16 в кв. "Бояна"
Бояна / София / София / България карта
Площ: 66.09 м2
Цена: 260 000 € /// 3 934 €/м2
ПРАВА
ПРОДАЖБА
ПРОЕКТ
Дизайнерски двустаен апартамент в комплекс „Amaya 3“
Кръстова вада / София / София / България карта
Площ: 69 м2
Цена: 310 080 € /// 4 494 €/м2
Изберете тази опция и ще Ви уведомяваме по имейла при настъпили промени по статуса на офертата, например:
• Промяна на цената;
• Имотът влезе в промоционално предложение;
• Имотът бъде резервран или продаден;
• Други новости, свързани с имота.
• Имотът бъде свален от продажба;
Може да се отпишете от нотификациите лесно, когато пожелаете.• Промени по условията на офертата;
• Промяна в сумата на инвестицията;
• Предметът на инвестицията е изцяло реализиран;
• Валидността на офертата е изтекла.
Може лесно да се отпишете, ако в бъдеще решите, че повече не желаете да следите тази оферта.
За да получите абсолютно коректна информация относно свободните имоти, налични за продажба в проекта и техните актуални цени, моля свържете се с нашия офис на посочената информация за контакт.
Ние полагаме усилия, за да поддържаме нашите ценови листи абсолютно актуални и коректни, но често това е невъзможно, предвид големия брой нови проекти в нашия каталог и силно динамичните продажби.
Благодарим Ви за проявеното разбиране!



...В качеството си на доказан спецалист Stonehard PREMIER работи по пазарното позициониране и продажбите на множество проекти ново строителство, чиято реализация ни е поверена от водещи предприемачески компании в България и чужбина...