Двустаен апартамент в бутикова нова сграда в кв. "Оборище"
Цена:
269 280 € (4 017 €/м2)
*Указаните цени и наличности от свободни имоти в проекта са индикативни. За актуална ценова информация, моля свържете се с нас!
Реф. Номер: SOF-136171 / 4874
Местоположение: Оборище / София карта
Тип на сграда/комплекс: Жилищен
Площи на жилищата: 67.04 м2
Типове имоти в сградата/комплекса: Двустайни апартаменти
Реф. Номер: SOF-136171 / 4874
Местоположение: Оборище / София
Тип на сграда/комплекс: Жилищен
Клас на сградата/комплекса:
Площи на жилищата: 67.04 м2
Типове имоти в сградата/комплекса: Двустайни апартаменти
Планирани срокове на завършване:
• Акт 14 – в края на 2026 г.
• Акт 15 – есен 2027 г.
• Акт 16 – в край на 2027 г.
Престижна локация
Само на две минути пеша от парк „Заимов“ – идеалното място за сутрешно кафе, спорт или спокойна разходка сред зеленина. Наоколо ще откриете богата градска инфраструктура, културни институции, училища и заведения – всичко, което прави ежедневието удобно и вдъхновяващо. Метростанция „Театрална“ и близките булеварди осигуряват бърза връзка с центъра и всяка точка на София. Това е локация, която съчетава тишина и динамика по най-добрия възможен начин.
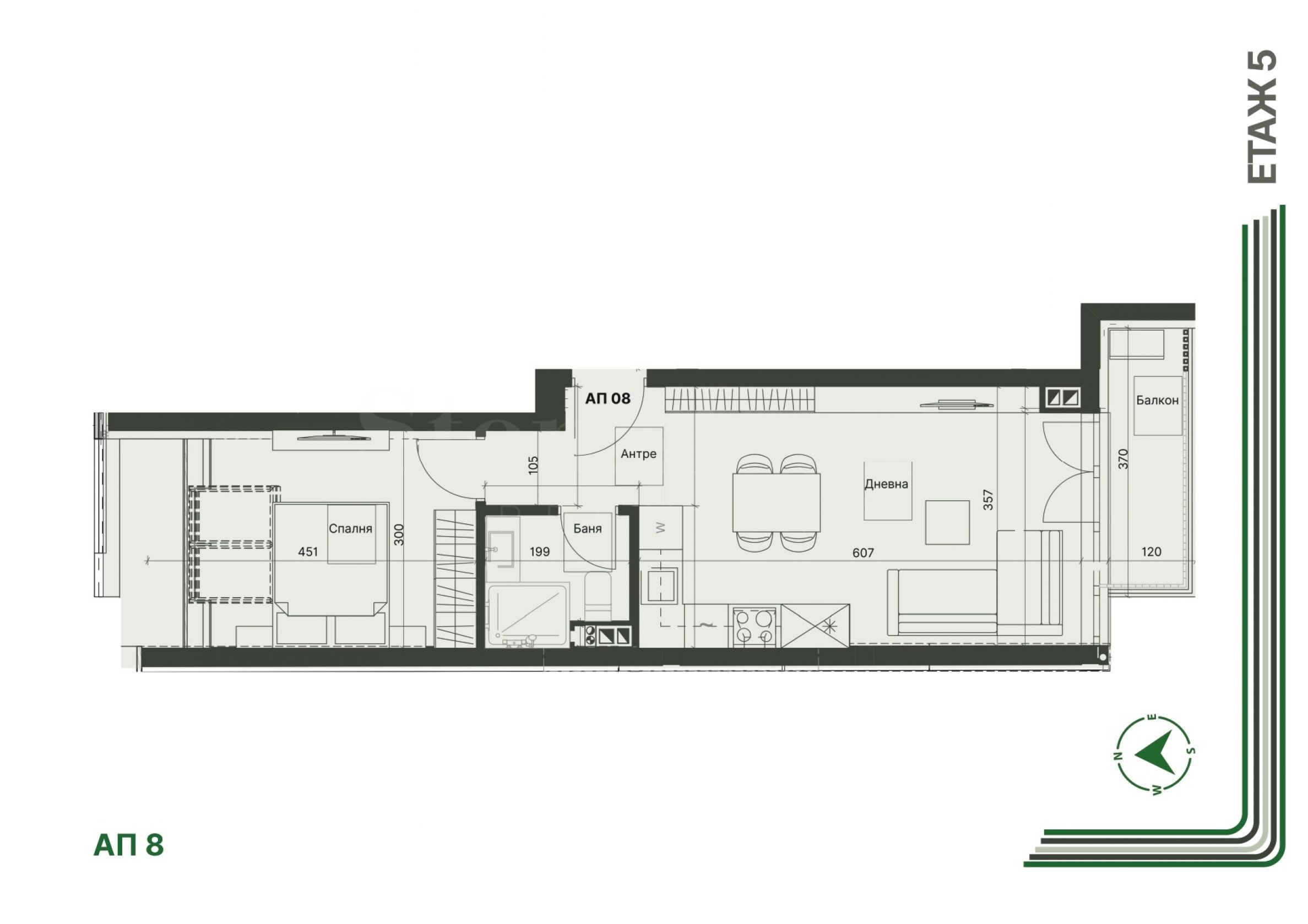
Апартамент №8
Имотът се намира на 5-и етаж и има обща площ 67.04 кв.м, чиста площ - 52.63 кв.м. Издава се в степен на завършеност по БДС, с висок клас PVC дограма REHAU, с троен стъклопакет и блиндирана входна врата. Разпределението включва антре, баня/тоалетна, спалня, дневна с кухня и трапезария и с тераса. Към жилището има мазе от 2.57 кв.м.
Изключителни жилища за модерен начин на живот
Проектът предлага отличен избор от ателиета (студиа), двустайни и тристайни апартаменти с функционални разпределения и просторни тераси. Апартаментите на високите етажи разполагат с панорамни гледки, които разкриват красотата на града ден и нощ. Жилищата се предават с висококачествени мазилки и замазки – идеална основа за Вашия персонален интериор. Паркоместа, гаражи и складови помещения са налични както в подземното, така и в партера – максимален комфорт за живущите, достъпни директно с асансьор.
Модерна архитектура с премиум материали
Сградата впечатлява с архитектура, която съчетава съвременен дизайн, прецизна детайлност и материали от най-висок клас. Линиите са чисти и елегантни, а цялостната визия носи усещане за динамика, стил и градски лукс. Фасадата е проектирана с вентилируема система, широкоформатни керамични плочи и структурна мазилка, подбрани заради тяхната издръжливост, естетика и енергийна ефективност. Тези премиум решения не само подчертават модерния характер на сградата, но и гарантират дългогодишна устойчивост и безупречен външен вид. Архитектурните акценти и внимателно подбраните материали създават хармонична композиция, която превръща проекта в отличителен и престижен дом – истински еталон за градско строителство от висок клас.
Луксозно входно фоайе – визитната картичка на сградата
Входът e място, което вдъхновява, впечатлява и задава високо ниво на комфорт и престиж за цялата сграда. То разкрива атмосфера на стил и изтънченост, която посреща жителите още от първия миг. Пространството ще бъде оформено с първокласни материали – естествен камък, огледални детайли и декоративни елементи, които придават усещане за модерен лукс. Многопластовият окачен таван с елегантно вградено осветление създава впечатляваща светлинна игра, която подчертава архитектурните линии и допринася за простор и представителност.
Поддържана среда и професионално управление
Пространството около сградата е оформено със стилно озеленяване и модерно паркоустройство, което допълва елегантния ѝ облик. Поддръжката е поверена на професионална фирма, която гарантира ред, чистота и удобство за всички обитатели.
Сигурност без компромиси
В тази сграда сигурността е на най-високо ниво – защото спокойствието на обитателите е приоритет. Контролът на достъпа и видеонаблюдението осигуряват постоянен мониторинг на общите части, а модерната видеодомофонна система гарантира удобна и безопасна комуникация с всеки посетител. Жилищата са оборудвани с висококачествени блиндирани входни врати, а автоматизираните гаражни системи позволяват бърз и сигурен достъп до придвижване с автомобил. LED осветлението с интелигентно управление поддържа видимост и комфорт денонощно. Тук всяка детайл е замислен така, че да осигури максимална защита и пълно спокойствие – дом, в който се чувствате напълно защитени.
Технически характеристики:
• Конструкция: стоманобетонна скелетно-безгредова конструкция; фундаментна плоча; сертифицирани бетонни смеси и кофражни системи;
• Хидроизолация: системи PENETRON в основи и сутерен; армирани замазки; многопластови хидроизолационни мембрани за покрив и тераси;
• Покрив: топъл плосък покрив с пароизолация, XPS, армирана замазка и UV мембрана; скрито отводняване чрез PVC тръби и воронки HL;
• Фасада: вентилируема фасадна система с широкоформатни керамични плочи и структурна мазилка;
• Топлоизолация: негорима каменна вата 10 см по фасадата;
• Дограма: PVC Rehau профили с прекъснат термомост; троен стъклопакет (високоенергийно стъкло + K-стъкло);
• Первази: външни каменни или керамични первази;
• Стени: керамични тухли Porotherm WIENERBERGER; варо–циментова мазилка в мокри зони;
• Общи части: естествен камък, декоративни елементи, дизайнерски тавани и LED осветление;
• Електроинсталация: кабели Gamakabel, Елкабел, ЕМКА; табла и защити ABB, Schneider, Legrand; дефектнотокови защити; оптичен интернет; слаботокови инсталации; видеодомофон FERMAX;
• Тераси: XPS 10 см, армирана замазка, гранитогрес; двупластова хидроизолация;
• Асансьор: ORONA или KONE; луксозен интериор; плавно задвижване; безопасност при отпадане на захранване;
• Отопление: централно отопление от Топлофикация София; радиатори висок клас; лири в баните;
• Климатизация: изградена инфраструктура за климатици; обособени места за външни тела;
• Входни врати (Solid или подобни): блиндирани, многоточково заключване, падащ праг;
• Паркоместа и гаражи: подземни нива с шлайфан бетон; автоматични секционни врати; двуетажни паркинг системи;
• Сигурност: контрол на достъпа; видеонаблюдение 24/7; видеодомофон FERMAX; автоматизирано LED осветление.
Очакваме Вашето запитване
Ако желаете да организирате оглед на имот, който Ви интересува, или да посетите някой от нашите офиси, моля свържете се с нас. За да уговорите ден и час за среща или оглед, можете да се обадите на посочения в обявата телефон или да изпратите запитване чрез електронната поща. Нашият консултант ще Ви съдейства с всички необходими подробности и ще уговори удобно за Вас време.
Търсите подходящия за Вас имот?
Не се колебайте да се свържете с нас и да ни разкажете за Вашите нужди и предпочитания. Нашият екип ще проведе задълбочено проучване на пазара, за да Ви предложи имоти, които точно отговарят на Вашите критерии. Разполагаме с изключително портфолио от висококачествени и ексклузивни жилища, които са достъпни само за нашите клиенти. За да сте първите, които ще получите информация за тях – свържете се с нас.
Допълнителни услуги
Като ценен клиент на нашата компания, Вие ще имате привилегията да ползвате напълно безплатно услугите на нашия опитен юридически екип. В допълнение, предлагаме комплексни решения, включващи имуществена застраховка, безплатна финансова консултация, както и изгодни условия за финансиране. Нашите услуги се разпростират и в сферата на препродажбата, отдаването под наем и управлението на имоти. Осигуряваме висококачествени ремонтни дейности и обзавеждане чрез специализирани фирми, които са част от нашата корпоративна група и са наши дългогодишни професионални партньори.
Местоположение на картата
Комфортни семейни жилища в нова сграда до бул. "Цар Борис III"
Лагера / София / София / България карта
Завършване: Юли, 2026 г.
Цени на имотите: 175 000 - 450 000 €
Цени на м²: 1 997 - 2 234 €/м2
ПРОДАЖБА
ПРОЕКТ
Двустаен апартамент с двор и гараж до парка на кв. "Горна баня"
Горна баня / София / София / България карта
Площ: 73.20 м2
Цена: 218 525 € /// 2 985 €/м2
Бутикова сграда в полите на Витоша планина - кв.Бояна
Бояна / София / София / България карта
Завършване: 2027 г.
Цени на имотите: 170 181 - 712 380 € (без ДДС)
Цени на м²: 2 600 - 2 900 €/м2 (без ДДС)
Изберете тази опция и ще Ви уведомяваме по имейла при настъпили промени по статуса на офертата, например:
• Промяна на цената;
• Имотът влезе в промоционално предложение;
• Имотът бъде резервран или продаден;
• Други новости, свързани с имота.
• Имотът бъде свален от продажба;
Може да се отпишете от нотификациите лесно, когато пожелаете.• Промени по условията на офертата;
• Промяна в сумата на инвестицията;
• Предметът на инвестицията е изцяло реализиран;
• Валидността на офертата е изтекла.
Може лесно да се отпишете, ако в бъдеще решите, че повече не желаете да следите тази оферта.
За да получите абсолютно коректна информация относно свободните имоти, налични за продажба в проекта и техните актуални цени, моля свържете се с нашия офис на посочената информация за контакт.
Ние полагаме усилия, за да поддържаме нашите ценови листи абсолютно актуални и коректни, но често това е невъзможно, предвид големия брой нови проекти в нашия каталог и силно динамичните продажби.
Благодарим Ви за проявеното разбиране!



...В качеството си на доказан спецалист Stonehard PREMIER работи по пазарното позициониране и продажбите на множество проекти ново строителство, чиято реализация ни е поверена от водещи предприемачески компании в България и чужбина...