Тристаен апартамент в нов бутиков комплекс с 4 сгради в кв. "Прослав"
REF#PLV-136162
/
Тристайни апартаменти
/
Реализирани проекти
/
Пловдив
/
Прослав
/
Пловдив
/
България
на картата
Цена:
153 000 € (1 408 €/м2)
*Указаните цени и наличности от свободни имоти в проекта са индикативни. За актуална ценова информация, моля свържете се с нас!
Реф. Номер: PLV-136162 / 4876
Местоположение: Прослав / Пловдив карта
Тип на сграда/комплекс: Жилищен
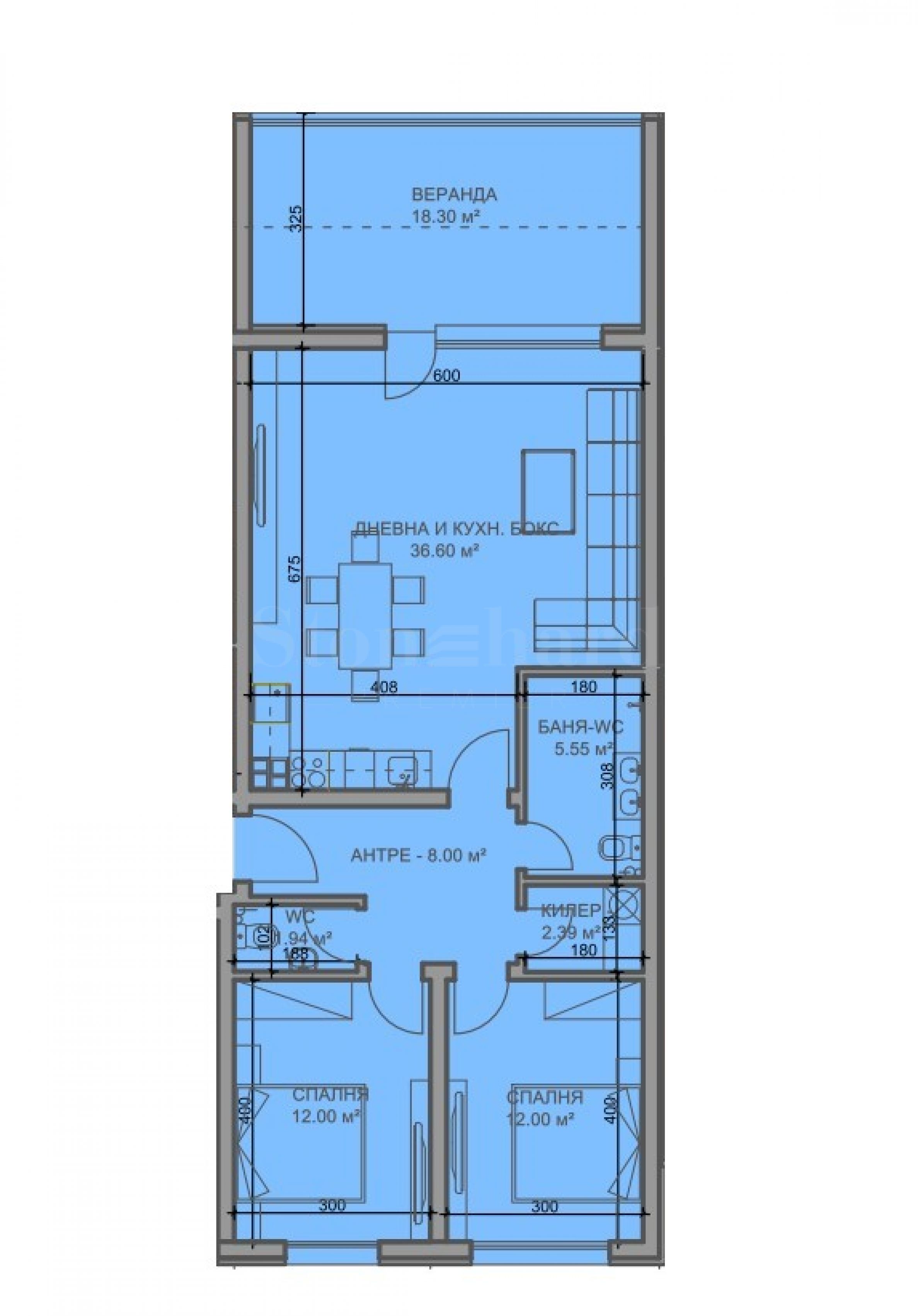
Площи на жилищата: 108.68 м2
Типове имоти в сградата/комплекса: Тристайни апартаменти
Реф. Номер: PLV-136162 / 4876
Местоположение: Прослав / Пловдив
Тип на сграда/комплекс: Жилищен
Клас на сградата/комплекса:
Площи на жилищата: 108.68 м2
Типове имоти в сградата/комплекса: Тристайни апартаменти
Предварителни продажби! Акт 14 се очаква август 2026 г., а Акт 16 през август 2027 г.
Проектът се състои от четири сгради по четири етажа, всяка с едва 11 апартамента - двустайни и тристайни. Предлага спокойна и подбрана среда за живот, ниска гъстота на застрояване и отлично планирани жилища.
Имотът с обща площ от 108,68 кв.м се намира на 1-ви етаж от 4 и разполага с веранда 18,30 кв.м.
Апартаментите се издават в степен на завършеност по БДС, което включва:
• под - циментова замазка;
• стени и тавани - гипсова мазилка;
• входна блиндирана врата;
• монтирани ключове, контакти и вертикални щрангове;
• външна изолация на сградата и общи части с висок клас материали;
• алуминиева дограма с висок клас профил и съклопакет;
• изводи за климатици.
Това позволява на собствениците да завършат жилището според своя вкус и стил.
Архитектура и среда
Комплексът е продължение на утвърденото качество на първата реализирана сграда в района. Предлага модерна визия, внимание към детайла и среда, в която природата и архитектурата са в пълен баланс.
Предимства
• четири модерни сгради, по 4 етажа;
• само 11 апартамента във всяка сграда;
• двустайни и тристайни апартаменти с функционални разпределения;
• богато озеленени вътрешни пространства;
• детски площадки и зони за отдих;
• подземни и наземни паркоместа, както и гаражи;
• отличен достъп и спокойна, добре развиваща се среда.
Схема на плащане
• на предварителен договор - 30%;
• Акт 14 – 60%;
• Акт 15 – 10%.
За повече информация, моля свържете се с отговорния брокер по офертата.
Местоположение на картата
Апартаменти в нов бутиков комплекс с 4 сгради в кв. "Прослав"
Прослав / Пловдив / Пловдив / България карта
Очаквано завършване: Август, 2027 г.
Цени на имотите: 90 000 - 155 000 €
Цени на м²: 1 200 - 1 260 €/м2
Апартаменти в нов бутиков комплекс до Гребната база
Христо Смирненски / Пловдив / Пловдив / България карта
Завършване: Декември, 2027 г.
Цени на имотите: 132 192 - 299 027 €
Цени на м²: 1 788 - 1 800 €/м2
Апартаменти в нов комплекс до Гребната база в Пловдив
Христо Смирненски / Пловдив / Пловдив / България карта
Завършване: Юни, 2028 г.
Цени на имотите: 95 511 - 193 414 €
Цени на м²: 1 250 - 1 400 €/м2
Изберете тази опция и ще Ви уведомяваме по имейла при настъпили промени по статуса на офертата, например:
• Промяна на цената;
• Имотът влезе в промоционално предложение;
• Имотът бъде резервран или продаден;
• Други новости, свързани с имота.
• Имотът бъде свален от продажба;
Може да се отпишете от нотификациите лесно, когато пожелаете.• Промени по условията на офертата;
• Промяна в сумата на инвестицията;
• Предметът на инвестицията е изцяло реализиран;
• Валидността на офертата е изтекла.
Може лесно да се отпишете, ако в бъдеще решите, че повече не желаете да следите тази оферта.
За да получите абсолютно коректна информация относно свободните имоти, налични за продажба в проекта и техните актуални цени, моля свържете се с нашия офис на посочената информация за контакт.
Ние полагаме усилия, за да поддържаме нашите ценови листи абсолютно актуални и коректни, но често това е невъзможно, предвид големия брой нови проекти в нашия каталог и силно динамичните продажби.
Благодарим Ви за проявеното разбиране!



...В качеството си на доказан спецалист Stonehard PREMIER работи по пазарното позициониране и продажбите на множество проекти ново строителство, чиято реализация ни е поверена от водещи предприемачески компании в България и чужбина...