Тристаен апартамент с двор в нов комплекс пред Акт 14 в престижния кв. "Виница"
Цена:
155 200 € (2 000 €/м2)
*Указаните цени и наличности от свободни имоти в проекта са индикативни. За актуална ценова информация, моля свържете се с нас!
Реф. Номер: VAR-136117 / 4868
Местоположение: Виница / Варна карта
Тип на сграда/комплекс: Жилищен
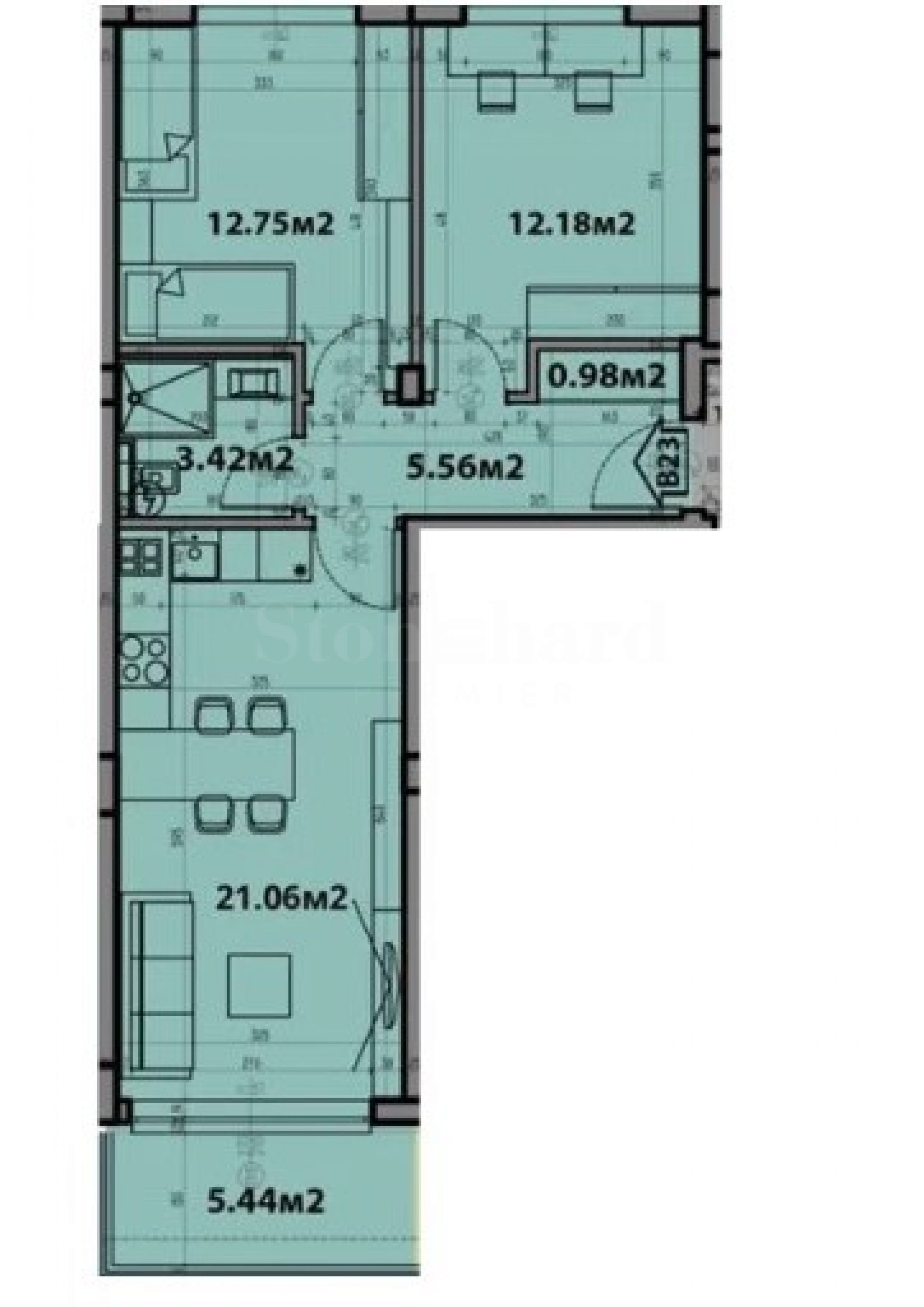
Площи на жилищата: 77.60 м2
Типове имоти в сградата/комплекса: Тристайни апартаменти
Реф. Номер: VAR-136117 / 4868
Местоположение: Виница / Варна
Тип на сграда/комплекс: Жилищен
Клас на сградата/комплекса:
Площи на жилищата: 77.60 м2
Типове имоти в сградата/комплекса: Тристайни апартаменти
Комплексът е пред Акт 14, а Акт 16 е предвиден до декември 2026 г.
Сградата предлага съчетание от модерен дизайн, функционалност и тиха жилищна среда. Локацията осигурява лесен достъп до центъра на квартала, спирки на градския транспорт, училища, детски градини и разнообразни търговски обекти. Панорамната гледка към морето и спокойствието на района я превръщат в отличен избор за съвременен начин на живот.
Комплексът разполага с 62 просторни апартамента - двустайни и тристайни, проектирани с мисъл за комфорт и функционалност. Като всяко жилище предлага възможност за индивидуално разпределение според предпочитанията на клиента.
Имотът с обща площ от 77,60 кв.м се намира на 4-и етаж от 4.
Апартаментите се предават в степен на завършеност по БДС, на шпакловка и замазка.
В двора на сградата са обособени 65 паркоместа с 24-часово видеонаблюдение и 2 бр. зарядни станции за електромобили тип "Fast charge" c 22kW мощност.
Технически характеристики:
• общи части - луксозно завършени 100%;
• фасада - изпълнена от система с топлоизолация EPS 10 см по детайл със силикатна мазилка;
• стаи - под циментова замазка, стени – бяла, гипсова мазилка, таван гипсова шпакловка;
• санитарен възел - стени и таван – мазилка, под замазка, без санитарно обзавеждане;
• отопление - решено със сплит системи, с предварително вграден в стените тръбен климатичен път;
• алуминиева дограма - иновативна 7-камерна система, троен стъклопакет, 80 мм профил на дограмата;
• външна врата - висок клас на врати-блиндирани;
• сигурност - за спокойствието и сигурността на живущите, комплексът разполага с множество видеокамери, разположени на ключови места, които следят входовете на • сградата и паркинга за автомобили. Видеодомофонната инсталация във всяко жилище е свързана с видео камера, монтирана на всеки вход;
• асансьори - ORONA.
Схеми на плащане:
Вариант 1:
• 30% при подписване на предварителен договор;
• 50% при подписан Акт 14 със/без кредит;
• 20% при подписан Акт 15.
Вариант 2: Прилага се отстъпка -1,5% от Вариант 1
• 30% при подписване на предварителен договор;
• 30% при готова покривна плоча на втори етаж;
• 30% при подписан Акт 14 /без кредит/;
• 10% при подписан Акт 15.
Вариант 3: Прилага се отстъпка -2.5% от Вариант 1
• 80% при подписване на предварителен договор;
• 20% при подписан Акт 15.
Вариант 4: Прилага се оскъпяване с +9% от Вариант 1
• 20% при подписване на предварителен договор;
• 80% при подписан Акт 15.
За повече информация, моля свържете се с нас.
Местоположение на картата
ПРАВА
ПРОДАЖБА
ПРОЕКТ
BAY VIEW - тристаен апартамент с нескриваема морска панорама в центъра на Варна
Център / Варна / Варна / България карта
Площ: 180 м2
Цена: 900 000 € /// 5 000 €/м2
ПРОДАЖБА
ПРОЕКТ
Артистичен тристаен апартамент с нескриваема морска панорама в м-т Долна Трака
м-т Траката / Варна / Варна / България карта
Площ: 115.52 м2
Цена: 420 000 € /// 3 636 €/м2
Апартаменти в нова сграда пред Акт 14 в престижния кв. "Виница"
Виница / Варна / Варна / България карта
Завършване: Декември, 2026 г.
Цени на имотите: 98 000 - 183 200 €
Цени на м²: 1 649 - 2 119 €/м2
Изберете тази опция и ще Ви уведомяваме по имейла при настъпили промени по статуса на офертата, например:
• Промяна на цената;
• Имотът влезе в промоционално предложение;
• Имотът бъде резервран или продаден;
• Други новости, свързани с имота.
• Имотът бъде свален от продажба;
Може да се отпишете от нотификациите лесно, когато пожелаете.• Промени по условията на офертата;
• Промяна в сумата на инвестицията;
• Предметът на инвестицията е изцяло реализиран;
• Валидността на офертата е изтекла.
Може лесно да се отпишете, ако в бъдеще решите, че повече не желаете да следите тази оферта.
За да получите абсолютно коректна информация относно свободните имоти, налични за продажба в проекта и техните актуални цени, моля свържете се с нашия офис на посочената информация за контакт.
Ние полагаме усилия, за да поддържаме нашите ценови листи абсолютно актуални и коректни, но често това е невъзможно, предвид големия брой нови проекти в нашия каталог и силно динамичните продажби.
Благодарим Ви за проявеното разбиране!



...В качеството си на доказан спецалист Stonehard PREMIER работи по пазарното позициониране и продажбите на множество проекти ново строителство, чиято реализация ни е поверена от водещи предприемачески компании в България и чужбина...