Двустаен апартамент с частен двор и просторна тераса в м-т Мисаря, Созопол
на картатаЦена:
102 500 € (1 939 €/м2)
*Указаните цени и наличности от свободни имоти в проекта са индикативни. За актуална ценова информация, моля свържете се с нас!
Реф. Номер: LXH-135747 / 4854
Местоположение: Созопол карта
Тип на сграда/комплекс: Жилищен
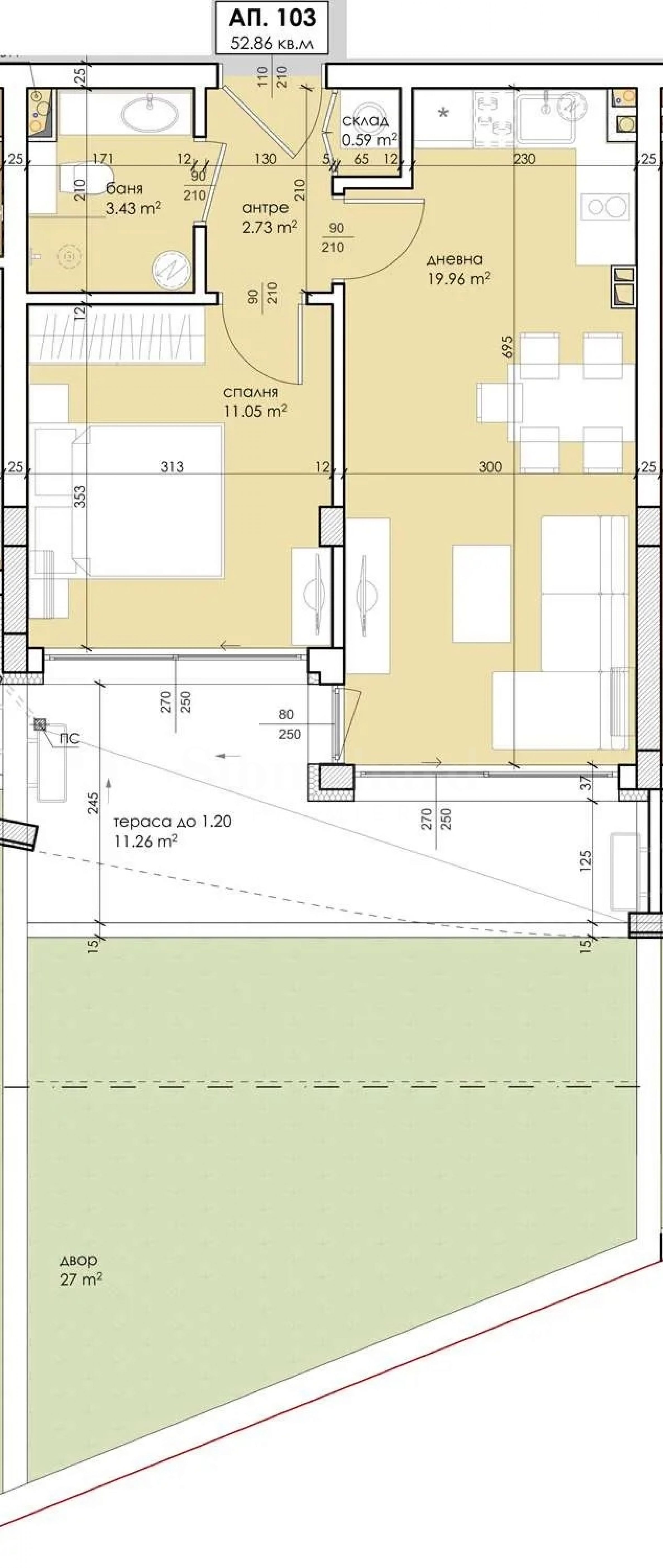
Площи на жилищата: 52.86 м2
Типове имоти в сградата/комплекса: Двустайни апартаменти
Реф. Номер: LXH-135747 / 4854
Местоположение: Созопол
Тип на сграда/комплекс: Жилищен
Клас на сградата/комплекса:
Площи на жилищата: 52.86 м2
Типове имоти в сградата/комплекса: Двустайни апартаменти
В процес на строителство. Очакван Акт 16 - декември 2027 г.
Имотът е разположен на първи етаж и предлага обща площ от 52,86 кв.м и двор с площ 27 кв.м.
Разпределение:
• антре;
• дневна с кухня;
• спалня;
• баня с тоалет;
• веранда с достъп до двора.
Жилището се издава в степен на завършеност по БДС:
• PVC дограма – SALAMANDER 76;
• подпрозоречни первази от естествен камък;
• противовзломни апартаментни входни врати;
• стени и тавани: варо-циментова мазилка с ъглови профили;
• подове: циментова замазка;
• балкон с фасадна мазилка и монтирани осветителни тела;
• хидроизолация газопламъчна битумна 3mm Venus и гранитогрес;
• парапет – съгласно проект.
Има възможност за довършване "до ключ", както и за мебелиране срещу допълнително заплащане.
Апартаментът е подходящ както за целогодишно живеене, така и за ваканционно ползване.
За сградата
Сградата е проектирана на 4 етажа с атрактивна визия, разполага с двустайни и тристайни жилища, и 18 паркоместа на надземно и подземно ниво. Входът на подземния гараж е проектиран с рампа през двора и улицата.
Технически характеристики:
• стълбища и общи части: гранитогрес или камък;
• стени и тавани: мазилка и латекс;
• парапети – по проект;
• монтирани хидравлични асансьори;
• покривна хидроизолация газопламъчна битумна 3mm Venus;
• топлоизолация – XPS 10 см.
• циментова замазка;
• под на паркоместа и гараж - шлайфан бетон;
• фасадни външни стени: тухла 25см – Wienerberger Тhermo;
• топлоизолация по тухлени зидове с ЕРS 10см – Baumit;
• фасадна мрежа шпаклована с лепило – Baumit;
• структорна полимерна мазилка – Baumit;
• топлоизолация по бетонови повърхности – XPS 10см;
• ВиК инсталация - полипропиленов водопровод на „тапа”;
• изградена силнотокова електро инсталация за осветление и контакти;
• монтирани електромери, апартаментно ел. табло;
• монтирани ключове и контакти;
• монтирани осветителни тела на балконите;
• звънчева и домофонна инсталация;
• вътрешни инсталации за интернет и ТV.
Очакваме Вашето запитване
Ако желаете да организирате оглед на имот, който Ви интересува, или да посетите някой от нашите офиси, моля свържете се с нас. За да уговорите ден и час за среща или оглед, можете да се обадите на посочения в обявата телефон или да изпратите запитване чрез електронната поща. Нашият консултант ще Ви съдейства с всички необходими подробности и ще уговори удобно за Вас време.
Търсите подходящия за Вас имот?
Не се колебайте да се свържете с нас и да ни разкажете за Вашите нужди и предпочитания. Нашият екип ще проведе задълбочено проучване на пазара, за да Ви предложи имоти, които точно отговарят на Вашите критерии. Разполагаме с изключително портфолио от висококачествени и ексклузивни жилища, които са достъпни само за нашите клиенти. За да сте първите, които ще получите информация за тях – свържете се с нас.
Допълнителни услуги
Като ценен клиент на нашата компания, Вие ще имате привилегията да ползвате напълно безплатно услугите на нашия опитен юридически екип. В допълнение, предлагаме комплексни решения, включващи имуществена застраховка, безплатна финансова консултация, както и изгодни условия за финансиране. Нашите услуги се разпростират и в сферата на препродажбата, отдаването под наем и управлението на имоти. Осигуряваме висококачествени ремонтни дейности и обзавеждане чрез специализирани фирми, които са част от нашата корпоративна група и са наши дългогодишни професионални партньори.
Местоположение на картата
ПРОДАЖБА
ПРОЕКТ
Обзаведен двустаен апартамент в модерна сграда в Созопол
Созопол / Бургас / България карта
Площ: 78 м2
Цена: 125 000 € /// 1 603 €/м2
ПРОДАЖБА
ПРОЕКТ
Двустаен апартамент в затворен комплекс на плаж Каваците
Созопол / Бургас / България карта
Площ: 65 м2
Цена: 121 000 € /// 1 862 €/м2
Апартаменти в нова сграда в м-т Мисаря, Созопол
Созопол / Бургас / България карта
Завършване: Декември, 2027 г.
Цени на имотите: 98 000 - 171 000 €
Цени на м²: 1 599 - 2 254 €/м2
Изберете тази опция и ще Ви уведомяваме по имейла при настъпили промени по статуса на офертата, например:
• Промяна на цената;
• Имотът влезе в промоционално предложение;
• Имотът бъде резервран или продаден;
• Други новости, свързани с имота.
• Имотът бъде свален от продажба;
Може да се отпишете от нотификациите лесно, когато пожелаете.• Промени по условията на офертата;
• Промяна в сумата на инвестицията;
• Предметът на инвестицията е изцяло реализиран;
• Валидността на офертата е изтекла.
Може лесно да се отпишете, ако в бъдеще решите, че повече не желаете да следите тази оферта.
За да получите абсолютно коректна информация относно свободните имоти, налични за продажба в проекта и техните актуални цени, моля свържете се с нашия офис на посочената информация за контакт.
Ние полагаме усилия, за да поддържаме нашите ценови листи абсолютно актуални и коректни, но често това е невъзможно, предвид големия брой нови проекти в нашия каталог и силно динамичните продажби.
Благодарим Ви за проявеното разбиране!



...В качеството си на доказан спецалист Stonehard PREMIER работи по пазарното позициониране и продажбите на множество проекти ново строителство, чиято реализация ни е поверена от водещи предприемачески компании в България и чужбина...