Четиристаен апартамент с двоен гараж и двор в полите на Витоша
REF#SOF-135630
/
Четиристайни апартаменти
/
Реализирани проекти
/
София
/
м-т Камбаните
/
София
/
България
на картата
Цена:
575 000 € (без ДДС) (2 245 €/м2 (без ДДС))
*Указаните цени и наличности от свободни имоти в проекта са индикативни. За актуална ценова информация, моля свържете се с нас!
Реф. Номер: SOF-135630 / 3591
Местоположение: м-т Камбаните / София карта
Тип на сграда/комплекс: Жилищен
Клас на сградата/комплекса: Луксозен
Площи на жилищата: 256.11 м2
Типове имоти в сградата/комплекса: Многостайни апартаменти
Реф. Номер: SOF-135630 / 3591
Местоположение: м-т Камбаните / София
Тип на сграда/комплекс: Жилищен
Клас на сградата/комплекса: Луксозен
Площи на жилищата: 256.11 м2
Типове имоти в сградата/комплекса: Многостайни апартаменти
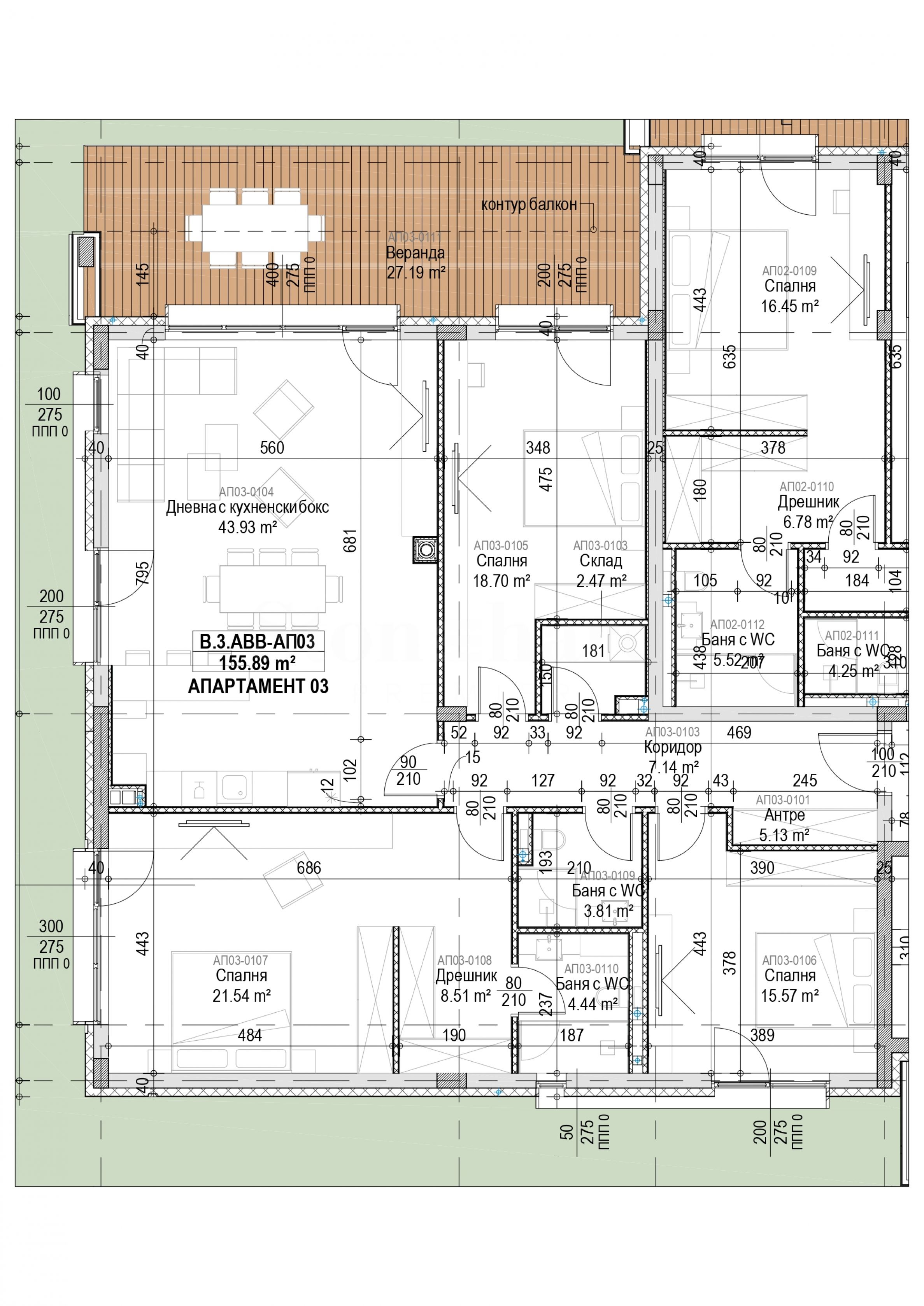
Апартаментът е разположен на партерен етаж и има чиста площ 155.89 кв.м.
Разпределение:
• антре/коридор;
• склад, баня/тоалетна;
• две спални;
• трета спалня със собствена баня и дрешник;
• просторна дневна с кухня и трапезария;
• веранда от 27.19 кв.м;
• излаз в двор с обща площ 100.22 кв.м.
Жилищата в комплекса се издават по БДС, като има опция за цели 4 варианта на завършването на имотите, от международна архитектурна и дизайн компания SGI.
Всички апартаменти се характеризират с просторни и светли помещения, благоприятни изложения и функционални разпределения.
Към имота се предлага двоен гараж на цена 50 000 евро (97 792 лв.).
Локация
Разположен на удобна локация във все по-предпочитания и престижен район "Камбаните", в съседство с едни от най-търсените затворени комплекси в столицата, този комплекс се явява последната възможност за изграждане на проект с подобен мащаб в тази местност. Комплексът олицетворява спокоен живот в живописната среда с чист въздух, на обща площ от 110 000 кв.м, от които 92 000 кв.м - зелена площ, както и цели 10 дка собствен парк.
На 20 минути с кола от центъра на столицата, в близост до два от големите Бизнес центъра - Business Park Sofia и Garitage Office Park, това е едно ексклузивно място за живот за възрастни и деца:
• до парк Камбаните;
• на 3 мин с кола от "Околовръстен път";
• 6 мин с кола от Ring Mall;
• 15 мин с кола от Летището.
Стартирало строителството на Етап 1, включващ цялата планирана паркова среда - 12.2023 г.
Срок на завършване - 2.5 години, PЗП нa Eтaп 1 - 21 000 кв.м:
• три триeтaжни cгpaди c aпapтaмeнти - тристайни имоти на последните етажи и четиристайни жилища, с двор или тераси;
• редови къщи и къщи тип близнак, с площ от 285 кв.м до 454 кв.м.
• Rесrеаtіоnаl Вuіldіng - общecтвeнa cгpaдa с 40 паркоместа за гостите – 2 400 кв.м.
Жилищен комплекс от ново поколение:
• готови жилища за интелигентен дом - Smart Home System;
• френски прозорци и високи тавани 3+ м светло;
• иновативна топлоизолационна система;
• термопомпена отоплителна система;
• опция за индивидуални асансьори и басейн за къщите;
• фотоволтаици с инверторни централи;
• широкоформатна алуминиева дограма с троен стъклопакет и с нисък борд;
• пречиствателна станция;
• интегрирани станции за зареждане на електромобили;
• модерни smart технологии за сигурност от VIP Security;
• фасилити мениджмънт услуги за комплекса.
Разнообразие от удобства за цялото семейство, отдих и спорт, както и Вашия успешен бизнес:
• денонощна рецепция;
• фитнес и СПА център, йога студио, зала за бокс;
• барбекю и пикник зони, парк за домашни любимци, фитнес на открито, алеи за бягане, каране на колело и спорт;
• лятно кино;
• спортни игрища, детски площадки и детски център;
• 5* Хотелски тип Лаундж зона с рецепция и заведения;
• кино и игрална зала;
• конферентни зали и отворена зона за работа и срещи (co-working space) и др.
За допълнителна информация и организиране на оглед, моля свържете се с отговорния брокер по офертата.
Местоположение на картата
ПРОДАЖБА
ПРОЕКТ
Четиристаен апартамент за продажба в кв. "Оборище", до парк "Заимов"
Оборище / София / София / България карта
Площ: 190.90 м2
Цена: 544 290 € /// 2 851 €/м2
ПРОДАЖБА
ПРОЕКТ
Южен четиристаен мезонет с двор и два гаража в луксозна сграда в "Кръстова вада"
Кръстова вада / София / София / България карта
Клас на сградата/комплекса: Луксозен
Площ: 198 м2
Цена: 670 000 € /// 3 384 €/м2
ПРАВА
Mountain View Obelya - ексклузивни апартаменти в модерен комплекс до метростанция
Обеля 2 / София / София / България карта
Клас на сградата: Стандартен
Планирано начало: Юни, 2026 г.
Очаквано завършване: Декември, 2029 г.
Цени на имотите: 108 405 - 286 483 €
Цени на м²: 1 500 - 1 900 €/м2
Изберете тази опция и ще Ви уведомяваме по имейла при настъпили промени по статуса на офертата, например:
• Промяна на цената;
• Имотът влезе в промоционално предложение;
• Имотът бъде резервран или продаден;
• Други новости, свързани с имота.
• Имотът бъде свален от продажба;
Може да се отпишете от нотификациите лесно, когато пожелаете.• Промени по условията на офертата;
• Промяна в сумата на инвестицията;
• Предметът на инвестицията е изцяло реализиран;
• Валидността на офертата е изтекла.
Може лесно да се отпишете, ако в бъдеще решите, че повече не желаете да следите тази оферта.
За да получите абсолютно коректна информация относно свободните имоти, налични за продажба в проекта и техните актуални цени, моля свържете се с нашия офис на посочената информация за контакт.
Ние полагаме усилия, за да поддържаме нашите ценови листи абсолютно актуални и коректни, но често това е невъзможно, предвид големия брой нови проекти в нашия каталог и силно динамичните продажби.
Благодарим Ви за проявеното разбиране!



...В качеството си на доказан спецалист Stonehard PREMIER работи по пазарното позициониране и продажбите на множество проекти ново строителство, чиято реализация ни е поверена от водещи предприемачески компании в България и чужбина...